Размещено на портале Архи.ру (www.archi.ru)

26.12.2018

Храм гостеприимства

Объект:
Павильон чачечных церемоний
Адрес:
Грузия, Тбилиси. 1 Улица Василь Петриашвили (1 Vasil Petriashvili Street)
Мастерская:
Архитектурное бюро «Александр Бродский»
Авторский коллектив:
Александр Бродский, автор
Мария Кремер, соавтор, архитектор
Алексей Храпов, главный строитель (фирма Metall.works)

Павильон Чачечных церемоний с фестиваля искусств в Тбилиси – почти квинтэссенция нескольких «архетипических» приемов Александра Бродского; и в то же время грузинское солнце и вино, видимо, сделали его совершенно другим, каким-то вовсе не хрупким и даже почти каменным.

Павильон чачечных церемоний; автор Александр Бродский, соавтор Мария Кремер. 2018. Фотография © Юрий Пальмин
Павильон чачечных церемоний; автор Александр Бродский, соавтор Мария Кремер. 2018. Фотография © Юрий Пальмин

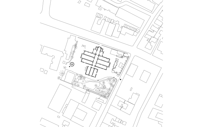
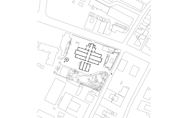
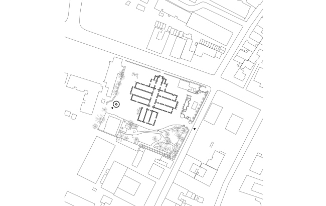
Павильон построен для Тбилисской ярмарки искусств, прошедшей в мае на территории Винного квартала Ghvinis Ubani – арт и гастрономического кластера, расположенного вокруг первого в городе, но ныне бывшего коньячного завода №1 Сараджишвили, чье псевдороманское здание построил в 1894-1896 архитектор Александр Озеров. Место для павильона нашлось в конце дорожки, ведущей от входа на территорию к гостиницы.
Павильон чачечных церемоний; автор Александр Бродский, соавтор Мария Кремер. Ситуационный план. 2018.
Павильон чачечных церемоний; автор Александр Бродский, соавтор Мария Кремер. Ситуационный план. 2018.
Павильон чачечных церемоний; автор Александр Бродский, соавтор Мария Кремер. Генлан. 2018.
Павильон чачечных церемоний; автор Александр Бродский, соавтор Мария Кремер. Генлан. 2018.

Начало проекту, как поясняют авторы, дал штабель стеклоблоков, найденный в одном из складов Тбилиси, со стеклом белого, голубоватого и зеленоватого цвета. Шесть рядов стеклоблоков образуют непрозрачную, но пропускающую свет как оттуда, так и туда стену, толщиной около 22 см. Стена уложена ровным кругом, под полом металлические конструкции компании Metall.works Алексея Храпова, которого авторы настойчиво просят упомянуть как строителя инсталляции. Еще один металлический обруч – в верхней части стены, от него начинаются деревянные конструкции конуса кровли, увенчанные вверху еще одним металлическим обручем вокруг трубы камина. Конус покрыт двумя слоями рубероида, изнутри и снаружи. Высота стены из стеклоблоков – 1,5 м, высота конуса кровли – 6,2 м. Камин расположен ровно в центре, тоже сложен из стеклоблоков и светится изнутри; над ним вытяжка и труба, все из неровно заржавленного, но, кажется, не кортенового металла. Шатрик, прикрывающий вверху отверстие трубы от дождя, от ржавчины совершенно оранжевый и издали кажется декоративным навершием типа фиала, нашлепкой декоративного гвоздика, венчающей конус кровли – но между тем имеет вполне практические предназначение. Вокруг камина расставлены пластиковые коробки из-под пива, служащие табуретками. В основании стен – невысокая лента бетонного фундамента, который служит выравнивающей базой для кладки стеклоблоков; в ленте бетона проделано множество круглых отверстий, служащих для сквозного проветривания павильона методом естественной тяги снизу-вверх, благо его высокий конус обеспечивает достаточно интенсивный ток воздуха.
Павильон чачечных церемоний; автор Александр Бродский, соавтор Мария Кремер. 2018. Фотография © Юрий Пальмин
Павильон чачечных церемоний; автор Александр Бродский, соавтор Мария Кремер. 2018. Фотография © Юрий Пальмин
Павильон чачечных церемоний; автор Александр Бродский, соавтор Мария Кремер. 2018. Фотография © Ольга Сабо
Павильон чачечных церемоний; автор Александр Бродский, соавтор Мария Кремер. 2018. Фотография © Ольга Сабо
Павильон чачечных церемоний; автор Александр Бродский, соавтор Мария Кремер. План на уровне пола. 2018.
Павильон чачечных церемоний; автор Александр Бродский, соавтор Мария Кремер. План на уровне пола. 2018.
Павильон чачечных церемоний; автор Александр Бродский, соавтор Мария Кремер. Разрез. 2018.
Павильон чачечных церемоний; автор Александр Бродский, соавтор Мария Кремер. Разрез. 2018.
Павильон чачечных церемоний; автор Александр Бродский, соавтор Мария Кремер. Аксонометрия камина. 2018.
Павильон чачечных церемоний; автор Александр Бродский, соавтор Мария Кремер. Аксонометрия камина. 2018.

Павильон отлично вписывается в контекст творчества Александра Бродского, заставляя даже подозревать, что в нем намеренно собраны вместе и акцентированы его самые заметные и характерные особенности и архетипы – как будто бы в поиске «архетипа Бродского». Стены из найденного вторичного материала, принадлежащего к кругу советского послевоенного модернизма, когда-то устаревшего и надоевшего, а теперь открываемого заново во всей красоте нюансов и оттенков, которые авторы тщательно перечисляют в своем описании (да простят мне авторы, когда-то я всей душой ненавидела стены из стеклоблоков, даже в 1 гуманитарном корпусе исторического факультета; может быть, зря). Такие же стены из вторички, один из важных методов современного искусства, апеллирующий к экологичному сохранению, но, что важнее, ностальгическим воспоминаниям, мы видим: в павильоне Водочных церемоний из Пирогова, к которому восходит название нынешней инсталляции – из замазанных оконных рам; в Ротонде с Архстояния – старые двери; в новой вилле ПО-2 там же – бетонный забор. Рубероид – попросту один из самых любимых материалов Бродского сейчас: вспоминаем скошенный домик на венецианской биеннале или павильон проекта «101-й километр – Далее везде» для Пушкинского дома в Лондоне. Камин – просто один из архетипов, он нередко встречается еще в выставочных объектах 2000-х и более ранних офортах, Бродский не представляет жилья без очага, что, признаемся, совершенно справедливо. Центр Ротонды и виллы из бетонных плит – очаг. Он именно в центре, не в углу, как в нынешнем коттеджном строительстве.
Павильон чачечных церемоний; автор Александр Бродский, соавтор Мария Кремер. 2018. Фотография © Юрий Пальмин
Павильон чачечных церемоний; автор Александр Бродский, соавтор Мария Кремер. 2018. Фотография © Юрий Пальмин

Между тем разумеется, несмотря на узнаваемость, вероятно намеренную, составных частей, которые нам как будто затверживают по принципу «повторенье–мать–ученья», павильон, конечно, отличается. Во-первых, Бродский как правило очень чувствителен к контексту. В «дачном» Пирогове, прообразе названия нынешней инсталляции, павильон был похож на теплицу или веранду, традиционное место подмосковных возлияний до-девяностых. Много более крупная, но скрипуче-деревянная Ротонда тяготеет к усадебной палладианской затее. Домики за границей, что в Венеции, что в Лондоне – своего рода приют эмигранта-почти-бомжа, времянка; кстати что в Пирогово, что в этих приютах печек нет.
Павильон чачечных церемоний; автор Александр Бродский, соавтор Мария Кремер. 2018. Фотография © Ольга Сабо
Павильон чачечных церемоний; автор Александр Бродский, соавтор Мария Кремер. 2018. Фотография © Ольга Сабо
Павильон чачечных церемоний; автор Александр Бродский, соавтор Мария Кремер. 2018. Фотография © Ольга Сабо
Павильон чачечных церемоний; автор Александр Бродский, соавтор Мария Кремер. 2018. Фотография © Ольга Сабо
Павильон чачечных церемоний; автор Александр Бродский, соавтор Мария Кремер. 2018. Фотография © Ольга Сабо
Павильон чачечных церемоний; автор Александр Бродский, соавтор Мария Кремер. 2018. Фотография © Ольга Сабо

В Грузии павильон основательный и даже монументальный. Дерево есть в конструкции купола, но его не видно, а будучи обтянуто рубероидом, оно остро похоже на бетон. Надо сказать, здесь совершенно исчезла одна из любимых тем Бродского – хрупкость временных сооружений, восходящая, кажется, к причалу-ресторану 95 градусов. Возможно потому, что на юге, среди гор, даже пастушеский очаг сложат скорее всего будет сложен из камня. В отличие от подмосковных и зарубежных «хибарок» грузинский павильон похож на каменную часовню, этакий храмик крепкого виноградного вина (чача – аналог граппы), или же в целом – храм гостеприимства. В этом тоже есть большая основательность и даже контраст с павильоном Водочных церемоний и его тазиком. Здесь как-то все иначе.
Павильон чачечных церемоний; автор Александр Бродский, соавтор Мария Кремер. 2018. Фотография © Юрий Пальмин
Павильон чачечных церемоний; автор Александр Бродский, соавтор Мария Кремер. 2018. Фотография © Юрий Пальмин

Достаточно очевидно, что объем похож на купола грузинских храмов – и абрисом, и лаконичной стереометрией, и даже свечением тулова-«барабана». Впрочем тот же силуэт здесь может быть и у башенки на стене, однако обнаруживается и еще один прообраз, совершенно не грузинский, но близкий функционально: так называемая «романская кухня» в аббатстве Фонтенвро, так похожая на наши шатровые церкви. Здесь, как ни удивительно, вступает в силу другой, не общегрузинский, а более частный контекст – здания коньячного завода, похожего отчасти на грузинские, но больше не романские храмы. Вместе с павильоном – совершенное Fontevraud. Впрочем, сложно отрицать возможность похожих грузинских кухонь, и так далее. Главное – очаг горит, греет, ждет гостей.