Подведены итоги архитектурного конкурса Manni Group «Железнодорожный вокзал в Сиане»

mainImg
Холдинг Manni Group, в состав которого входит ООО «ИЗОПАН РУС», и организатор архитектурных конкурсов YAC-Young Architects Competitions подвели итоги конкурса дизайнерских идей Manni Design Award по созданию проекта современного железнодорожного вокзала на основе принципов устойчивого развития.

За последние годы Сиань, один из древнейших городов мира, стал высокотехнологичным центром Китая. К 2023 г. мегаполис расширится на 17 км2 и станет местом проведения мероприятий международного масштаба. В Сиане не забывают о традициях Великого шелкового пути, здесь делают все возможное для возрождения этого маршрута: строительство нового железнодорожного вокзала призвано привлечь миллионы туристов.

«Решение провести этот конкурс было вызвано желанием поддержать талантливых архитекторов, воплощающих новаторские решения в области экостроительства», − отметил президент холдинга Франческо Манни. «Архитектурное сообщество с энтузиазмом откликнулось на объявленный конкурс, проекты поступили из 75 стран мира − символичная цифра для холдинга, которому в этом году исполняется 75 лет».

Главными критериями оценки конкурсных проектов стали экологичность и принципы «сухого строительства». По словам Энрико Фриццера, генерального директора Manni Group, участникам была предоставлена возможность реализовать инновационные методы модульного строительства и внедрить принципы циркулярной экономики в практическую деятельность архитектора.
Спонсорами специальных номинаций конкурса Manni Group Design Award выступили компании Rockwool, Renolit, Dow, Tata Steel.

Организаторы и экспертное жюри рады представить победителей конкурса «Железнодорожный вокзал в Сиане»:

1-е место: Студия Mograph, Волна. Италия

Джованна де Симоне и Матео Амикарелло, студия Mograph, г. Пескара − победители первого архитектурного конкурса Manni Group. Это двойная победа для молодых архитекторов, которые также получили приз в специальной номинации от Rockwool за особое внимание к жизненному циклу здания.
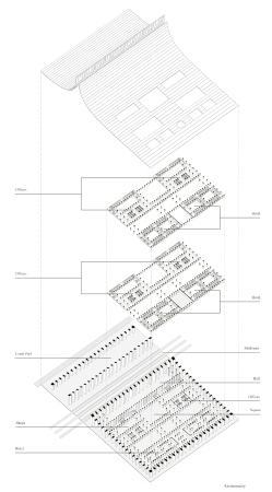
В основе архитектурного замысла – имитация горной местности Сычуань: волнообразная зеленая кровля, простирающаяся над железнодорожными путями и торговыми зонами вокзала, станет пешеходной зоной для пассажиров. «Зеленый ковер» выполнен по технологии плоской кровли GreenROOF на основе сэндвич-панелей Isopan. Разработанный проект вокзала имеет изящную форму кольца, которое символизирует целостность и единство мегаполиса со всем миром.
  • zooming
    1 / 6
    Волна
    © Mograph / предоставлено ISOPAN RUS
  • zooming
    2 / 6
    Волна
    © Mograph / предоставлено ISOPAN RUS
  • zooming
    3 / 6
    Волна
    © Mograph / предоставлено ISOPAN RUS
  • zooming
    4 / 6
    Волна
    © Mograph / предоставлено ISOPAN RUS
  • zooming
    5 / 6
    Волна
    © Mograph / предоставлено ISOPAN RUS
  • zooming
    6 / 6
    Волна
    © Mograph / предоставлено ISOPAN RUS


2-е место: Atelier_62, Высокоскоростная пагода. Испания

Над проектом, занявшим второе место, работала испанская команда из студии Atelier_62, в составе которой Луис Руис Андрес, Хуан Перес Гарсиа и Родриго Март инес Гарсиа. На создание проекта их вдохновила история Сианя: кровля здания визуально напоминает величественную в своей простоте пагоду, а ограждающие конструкции, словно щиты воинов терракотовой армии, защищают здание от ненастья. В проекте предполагается использовать панели Isodeck PVSteel (такие производятся и в России!) – прочные сэндвич-панели с двойной металлической обшивкой и мембраной ПВХ в качестве гидроизоляции.
  • zooming
    1 / 5
    Высокоскоростная пагода
    © Atelier_62 / предоставлено ISOPAN RUS
  • zooming
    2 / 5
    Высокоскоростная пагода
    © Atelier_62 / предоставлено ISOPAN RUS
  • zooming
    3 / 5
    Высокоскоростная пагода
    © Atelier_62 / предоставлено ISOPAN RUS
  • zooming
    4 / 5
    Высокоскоростная пагода
    © Atelier_62 / предоставлено ISOPAN RUS
  • zooming
    5 / 5
    Высокоскоростная пагода
    © Atelier_62 / предоставлено ISOPAN RUS


3-е место: DS-WORKS, Колесница. Швейцария

Проект Даниэля Шалапски и Антонио Скальоне, представляющих швейцарскую студию DS-WORKS, также обращается к богатому историческому и художественному наследию Сианя: на создание внушительного зонтичного купола железнодорожной станции авторов проекта вдохновила знаменитая колесница императора Цинь Ши Хуанди. В проекте используется принцип «сухого» строительства на основе продукции Manni Group.
  • zooming
    1 / 6
    Колесница
    © DS-WORKS / предоставлено ISOPAN RUS
  • zooming
    2 / 6
    Колесница
    © DS-WORKS / предоставлено ISOPAN RUS
  • zooming
    3 / 6
    Колесница
    © DS-WORKS / предоставлено ISOPAN RUS
  • zooming
    4 / 6
    Колесница
    © DS-WORKS / предоставлено ISOPAN RUS
  • zooming
    5 / 6
    Колесница
    © DS-WORKS / предоставлено ISOPAN RUS
  • zooming
    6 / 6
    Колесница
    © DS-WORKS / предоставлено ISOPAN RUS


«ИЗОПАН РУС» поздравляет победителей и призеров, благодарит всех участников за интересные проекты, в основе которых – взаимоотношение с окружающей средой и взаимодействие с историческим наследием.
 

16 Марта 2020

Технологии и материалы
Тихий офис – продуктивный офис
Тихий офис – ключ к продуктивности. Миллионы компаний тратят средства на эргономику и оборудование, игнорируя главного врага эффективности: шум. В офисах open space сотрудники теряют до 66% потенциала лишь из-за разговоров коллег, что напрямую влияет на прибыль и успех бизнеса.
​Крыша в цветах
ПВХ-мембраны – один из ключевых материалов для современной кровли, сочетающий высокую гидроизоляцию, долговечность и эстетическую гибкость. В отличие от традиционных рулонных покрытий, они легче, прочнее, а благодаря разнообразной палитре – позволяют реализовать полноценный «пятый фасад».
Четыре сценария игры
Летом 2025 года АБ «МЕСТО» совместно с префектурой района Строгино завершила комплексное благоустройство на Таллиннской улице. Были реализованы четыре уникальные игровые площадки общей площадью 1500 кв. м. – многослойная среда для развития и приключений, которая учит и вдохновляет.
Цифровая печать – для архитектурных задач
Цифровая печать на алюминиевых и стальных композитных панелях выводит концепцию современных фасадов на новый уровень, предлагая архитекторам инструмент для создания сложных визуальных эффектов – от точной аналогии с натуральными материалами до перфорации и создания 3D объема на плоской металлокомпозитной кассете.
Кирпич с душой
Российская керамика «Донские зори» обновила коллекции облицовочного кирпича, объединяющие традиционные технологии с современными производственными возможностями. Их особенность – в неоднородной фактуре с нюансами оттенков, характерными для ручной формовки.
Баварская кладка в Ижевске
ЖК «ARTNOVA» стал в Ижевске пилотным проектом комплексного развития территории и получил признание профессионального сообщества. Одним из ключевых факторов успеха является грамотное решение фасадных систем с использованием облицовочного кирпича.
Формула света
Как превратить мансардное пространство из технического чердака в полноценное помещение премиум-класса? Ключевой фактор – грамотное проектирование световой среды. Разбираемся, как оконные решения влияют на здоровье жильцов и какие технологии помогают создавать по-настоящему комфортные пространства под крышей.
Будущее за химически упрочненным стеклом
В архитектуре премиум-класса безупречный внешний вид остекления – ключевое требование. Однако традиционно используемое термоупрочненное стекло часто создает оптические искажения. Российская Стекольная Компания (РСК) представляет инновационное для российского рынка решение этой проблемы – переработку стекла методом химического упрочнения.
Архитектура игры
Проекты научных детских площадок от компании «Новые горизонты» – основаны на синтезе игры, образования и городской среды. Они создают принципиально новый уровень игрового опыта, провоцирующий исследовательский интерес, и одновременно работают как градостроительная доминанта, формирующая уникальный образ места и новую точку притяжения.
Фасадные системы Sun Garden: технологии СФТК Церезит в...
Комплекс Sun Garden в Джемете (Анапа) демонстрирует специфику применения штукатурных систем фасадной теплоизоляции в условиях агрессивной приморской среды. Проект потребовал разработки дифференцированного подхода к выбору материалов для различных архитектурных элементов: от арочных галерей до многоуровневых террас.
Бесшовные фасады: как крупноформатные стеклопакеты...
Прозрачные бесшовные фасады, еще недавно доступные лишь в проектах уровня Apple Park, теперь можно реализовать в России благодаря появлению собственного производства стеклопакетов-гигантов у компании Modern Glass. Разбираемся в технологии и смотрим кейсы со стеклопакетами hugesize от Алматы до Москвы.
Локализация против санкций: решения для остекления
Новый пакет ограничений Евросоюза создал серьезные вызовы для российской строительной отрасли в сфере остекления, непосредственно затронув профильные системы, фурнитуру и алюминиевые конструкции. Для проектировщиков это означает необходимость пересмотра привычных спецификаций и поиска новых технических решений.
LVL брус в большепролетных сооружениях: свобода пространства
Высокая несущая способность LVL бруса позволяет проектировщикам реализовывать смелые пространственные решения – от безопорных перекрытий до комбинированных систем со стальными элементами. Технология упрощает создание сложных архитектурных форм благодаря высокой заводской готовности конструкций, что критично для работы в стесненных условиях существующей застройки.
Безопасность в движении: инновационные спортивные...
Безопасность спортсменов, исключительная долговечность и универсальность применения – ключевые критерии выбора покрытий для современных спортивных объектов. Компания Tarkett, признанный лидер в области напольных решений, предлагает два технологичных продукта, отвечающих этим вызовам: спортивный ПВХ-линолеум Omnisports Action на базе запатентованной 3-слойной технологии и многослойный спортивный паркет Multiflex MR. Рассмотрим их инженерные особенности и преимущества.
​Teplowin: 20 лет эволюции фасадных технологий – от...
В 2025 году компания Teplowin отмечает 20-летие своей деятельности в сфере фасадного строительства. За эти годы предприятие прошло путь от производителя ПВХ-конструкций до комплексного строительного подрядчика, способного решать самые сложные архитектурные задачи.
«АЛЮТЕХ»: как технологии остекления решают проблемы...
Основной художественный прием в проекте ЖК «Level Причальный» – смелый контраст между монументальным основанием и парящим стеклянным верхом, реализованный при помощи светопрозрачных решений «АЛЮТЕХ». Разбираемся, как это устроено с точки зрения технологий.
Искусство прикосновения: инновационные текстуры...
Современный интерьерный дизайн давно вышел за пределы визуального восприятия. Сегодня материалы должны быть не только красивыми, но и тактильными, глубокими, «живыми» – теми, что создают ощущение подлинности, не теряя при этом функциональности. Именно в этом направлении движется итальянская фабрика Iris FMG, представляя новые поверхности и артикулы в рамках линейки MaxFine, одного из самых технологичных брендов крупноформатного керамогранита на рынке.
Как бороться со статическим электричеством: новые...
Современные отделочные материалы всё чаще выполняют не только декоративную, но и высокотехнологичную функцию. Яркий пример – напольное покрытие iQ ERA SC от Tarkett, разработанное для борьбы со статическим электричеством. Это не просто пол, а интеллектуальное решение, которое делает пространство безопаснее и комфортнее.
​Тренды остекления аэропортов: опыт российских...
Современные аэровокзалы – сложные инженерные системы, где каждый элемент работает на комфорт и энергоэффективность. Ключевую роль в них играет остекление. Архитектурное стекло Larta Glass стало катализатором многих инноваций, с помощью которых терминалы обрели свой яркий индивидуальный облик. Изучаем проекты, реализованные от Камчатки до Сочи.
Сейчас на главной
Несгибаемый
Появились детали проекта башни неназываемого бюро в ММДЦ Москва-Сити. Изучаем башню, ее соседей, форму внутри и снаружи и ставим проект в контекст работы иностранцев в России. Надо сказать, неназываемый архитектор уже сейчас занимает в этой истории особенное место. Он, как кажется, очень смелый архитектор. Так где сложная, продырявленная скульптурная форма? Вот в чем вопрос...
Ладожский ковчег
Деревянный ковчег посреди полей – так SLOI Architects увидели новое фондохранилище для Староладожского музея-заповедника. Диалог с историей здесь ведется на языке современного деревянного зодчества, где технологичность идет рука об руку с аутентичным образом.
Лечение природой, лечение искусством
Бывшая поликлиника, запланированная, но не реализованная из-за Второй мировой как большая больница с потенциалом «лечения природой» – в проекте Александра Деринга и ТМ «Классика» становится арт-кластером. Нередкое для наших времен превращение. Редким, пожалуй, стоит назвать то внимание, с которым архитекторы подошли к истории зданий и местности. Даже название проекту дали – «Дети Бурлакова». В честь автора приспособляемых строений.
Значимость малого
Словенские архитекторы Ofis сдержанным, но точным жестом вернули изначальную общественную функцию старому заброшенному колодцу в центре деревни Стара-Фужина.
«На грани»: интервью с куратором «Зодчества 2025» Тиграном...
С 4 по 6 ноября в московском Гостином дворе состоится XXXIII Международный архитектурный фестиваль «Зодчество». В этом году его приглашенным куратором стал вице-президент Союза московских архитекторов, основатель бюро STUDIO-ТА Тигран Бадалян.
Вариация фахверка
Конструкция дома, построенного в Ленинградской области по проекту бюро SOLOarch, представляет собой силовой каркас из клееной древесины. Акцентом выступила остекленная наклонная стена, которая открывает из двусветной гостиной панорамный обзор на лес. Динамику этого элемента продолжает обратный уклон кровли, а рейки разного сечения на фасадах связывают разные корпуса в единый комплекс.
Архитектура здоровья
Бюро archCLOUD подготовило проект реставрации фасадов и обновления интерьеров оздоровительного комплекса «Сосны». Ансамбль на Николиной горе у Москвы-реки включает здания 1930-х и 1960-х годов, а также вышку лифта со смотровой площадкой. Подгоняя корпуса под требования современных норм, архитекторы постарались сохранить черты нескольких советских эпох.
Символы и символы
Министерство культуры и туризма Московской области совместно с АНО «МосОблПарк» провело конкурс «Символы Подмосковья» с целью создания новых художественных форм, отражающих идентичность региона. Показываем не все победившие объекты, а почти все – те, которые нам понравились, 9 из 11. Плюс! Не попавший в число победителей (! а вот так!) объект Александра Бродского.
Традиции троглодитов
Реконструкция отеля Les Roches 5* по проекту Pietri Architectes на Лазурном берегу предлагает современную интерпретацию местных строительных и курортных традиций.
Призы Архитектона
В 2025 году жюри Архитектона рассматривало проекты финалистов в очном формате открытых защит, проходивших прямо в выставочном зале фестиваля. Это довольно увлекательный перформанс – такое редко встречается среди российских премий. Вот бы Зодчеству перенять. Показываем все победившие проекты, включая 4 спецноминации.
Курганы, вепсы и трилобиты
Выставка «Область», открытая на «Архитектоне», представляет собой сумму впечатлений об отдаленных уголках Ленинградской области, которую группы студентов открывали для себя во время трехдневных экспедиций под руководством опытных проводников-архитекторов. Здесь вы не увидите дворцов, церквей и готовых решений, зато точно почувствуете азарт первооткрывателя и подивитесь миру, лежащему по ту сторону градостроительства. Предлагаем небольшой путеводитель по экспозиции.
Следы на камне
ZROBIM architects создало интерьер кафе-пекарни «Синяя птица» в центре Минска, соединив минимализм с эко- и этноэлементами, благодаря которым компактный зал кажется древним святилищем, посвященным культу хлеба.
Сад знаний
Бюро UNK architects и UNK design создали интерьеры кампуса «Летово. Джуниор» при участии NF studio, которая отвечала за образовательную технологию, учитывающую потребности и восприятие детей младшего и среднего школьного возраста.
Такая архитектурная игра
Вчера в Петербурге открылся – второй по счету и обновленный – фестиваль Архитектон. Он рассчитан на целых 10 дней, что для архитектурного фестиваля прямо удивительно. Проходит в Манеже; его тема – Взаимодействие архитектурного цеха с простыми горожанами. Что делается довольно задорно, но в то же время по-питерски сдержанно и элегантно. Экспозиция состоит из 5 выставок, каждая их которых могла бы «потянуть» на отдельный проект. Рассказываем и показываем, что и как смотреть на Архитектоне.
Не для оборотней
Дом Casa Lua, построенный на окраине бразильского мегаполиса Белу-Оризонти по проекту мастерской Tetro, вобрал в себя не только захватывающие виды на город и горы, но и лунный свет.
Три башни под одной крышей
В панораме Заречной части Нижнего Новгорода появился свой горизонтальный небоскреб. «ГОРПРО» накрыли три корпуса ЖК «КМ Ривер Парк» – четвертым: получилась эффектная «горизонтальная балка», ставшая логичным продолжением экспериментов нижегородского застройщика с железобетонными панелями в поисках нового архитектурного языка.
Река и виадук
Новый парк площадью почти 50 га в новой части мегаполиса Чанчунь на самом северо-востоке Китая вписан в сложный участок с рекой и виадуком. Авторы проекта – шанхайское бюро SHUISHI.
Серебряные коньки
Офисный квартал STONE Калужская сопровождают два жилых дома, что делает комплекс, а это именно он, взвешенным с функциональной точки зрения. Архитекторы Kleinewelt сделали дома серебристыми под стать офисным корпусам. В чем сходство, в чем отличия и при чем тут «Серебряные коньки» – читайте в нашем материале.
Мост и модуль
По проекту Parallel architects проведена частичная реновация зданий Международного аграрного университета в Ташкенте. Точечное обновление трех разрозненных блоков сформировало современный облик университетского кампуса, которому очень идет модернизм. Лаконичный мост-переход, динамичный фасад из натурального кирпича и новый входной портал создают среду, по уровню и эстетике сравнимую с международными университетскими центрами.
Богадельня XXI века
Как лучшее здание Великобритании отмечен Премией Стерлинга социальный жилой комплекс для пожилых Appleby Blue в лондонском округе Саутуарк. Авторы проекта – Witherford Watson Mann Architects.
Форма без случайностей
Креативный директор «Генпро» Елена Пучкова – о том, что такое честная современная архитектура: почему важно свести пилоны, как работать с ограниченной палитрой материалов и что делать с любимым медным цветом, который появляется в каждом проекте.
Острова и ножки
Главный архитектор группы RBI Александр Зюзин разработал концепцию общественно-делового кластера для территории у нового морского порта Санкт-Петербурга. Традиционная палитра и отсылки к советскому авангарду сочетаются с зелеными «островами» и бионическими формами. Помимо офисов здание включает музей, спортивный блок, учебный и досуговый центры.
Speed-dating с героями 90-х и другие причины пойти на Архитектон-2025
На этой неделе в петербургском Манеже открывается Архитектон – 10-дневный фестиваль с выставкой, премией и деловой программой, которая обещает северной столице встряску: придет ОАМ, будут новые форматы, обсудят намыв, конкурсы, философское и социальное измерение архитектуры. Советуем запастись абонементом и начать составлять график. В этом материале – хайлайты, на которые мы обратили внимание.
Дан приказ ему на Сити, ей в другую сторону...
Второй по счету конкурс архитектурных идей телеграм-канала Небоскребы привлек профессиональное жюри и присудил, в главной номинации, денежный приз. Как водится, за горизонтальный небоскреб – все остальные, в основном, предложили вертикальные башни... Показываем победившие и не победившие идеи, размышляем о влиянии башни участка номер один. Где? Смотрите ближе к концу материала.
На династической тропе
Дома и таунхаусы комплекса «Царская тропа» строятся в поселке Гаспра – с запада и востока от дворцов бывшей великокняжеской резиденции «Ай-Тодор». Так что одной из главных задач разработавших проект архитекторов бюро KPLN было соответствовать значимому соседству. Как это отразилось на объемном построении, как на фасадах и каким образом авторы используют рельеф – читайте в нашей статье.
Крылья Маяковского
Проект реконструкции главного входа в парк Маяковского в Екатеринбурге, который подготовил Алексей Гуров совместно с Уральским центром реставрации и проектирования, возвращает арке исторический облик и градостроительное значение. Помимо реставрационных работ предусмотрена особая подсветка, цветник, приспособление боковых павильонов, а также восстановление утраченных чугунных торшеров и афишных стен.
Новый путь
Главная особенность проекта Яр Парка, спроектированного Сергеем Скуратовым в Казани – он объединен вдоль «хребта» многофункционального молла с эффектным многосветным пространством. А вся территория на уровне города: со стороны как жилых районов, так и набережной Казанки – открыта для горожан. Комплекс призван стать не «очередным забором», а, как говорят градостроители, «полицентром» – местом притяжения для всей Казани и особенно ее северной, состоящей из микрорайонов, части, ранее не знавшей столь активного общественного пространства. Новый градостроительный подход к высокоплотному многофункциональному комплексу в центре города. В некотором роде – антиквартал. Такого и в Москве, с позволения сказать, пока что не было. Ура Казани.
Перекресток культур
Бюро MAST, вдохновляясь атмосферой Тбилиси, превратило интерьер грузинского ресторана NENE в диалог культур, которым, на самом деле, и является этот прекрасный город.
Пресса: Движимые недвижимостью: Архитектурные и жилищные...
Что можно сказать об архитекторе по его дому, как традиции трансформируются под влиянием разгерметизации сообществ, где прорастают спустя полвека бумажные замки концептуалистов. Поступления на тематические полки ко Дню архитектора.