RSS
Вилла Беер – реставрация
Фотография © Hertha Hurnaus / предоставлена a b c works

Вилла Беер – реставрация


/ Villa Beer′s renovation

информация:

cp architektur / Австрия
Вилла Беер – реставрация
Фотография © Hertha Hurnaus / предоставлена a b c works

Архи.ру об этом объекте:

06.02.2026

Анна Старостина. Свидетельница эпохи

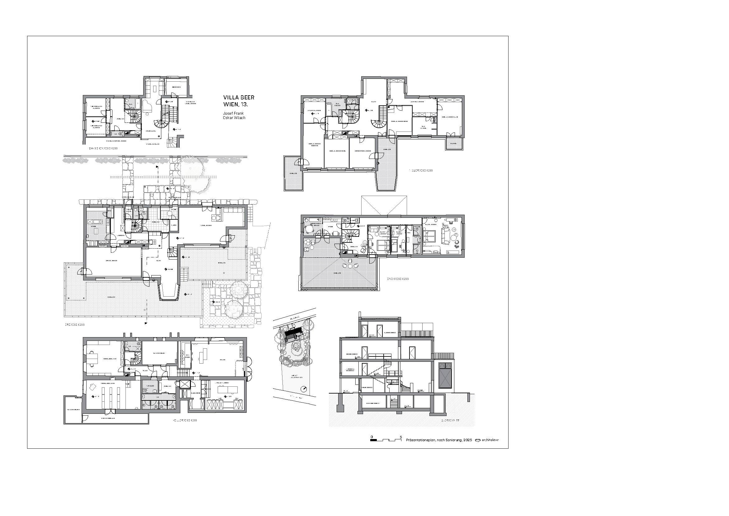
Вилла Беер, памятник венского модернизма, стала музеем и образовательным центром в результате реставрации и приспособления по проекту бюро cp architecture.

читать дальше
Вилла Беер – реставрация
Фотография © Hertha Hurnaus / предоставлена a b c works

описание:

Авторы первоначального проекта виллы – Йозеф Франк и Оскар Влах.

Вилла Беер – реставрация
Фотография © Hertha Hurnaus / предоставлена a b c works
Вилла Беер – реставрация
Фотография © Hertha Hurnaus / предоставлена a b c works
Вилла Беер – реставрация
Фотография © Stefan Huger / предоставлена a b c works
Вилла Беер – реставрация
Фотография © Stefan Huger / предоставлена a b c works
Вилла Беер – реставрация
Фотография © Stefan Huger / предоставлена a b c works
Вилла Беер – реставрация
Фотография © Stefan Huger / предоставлена a b c works
Вилла Беер – реставрация
Фотография © Stefan Huger / предоставлена a b c works
Вилла Беер – реставрация
Фотография © Stefan Huger / предоставлена a b c works
Вилла Беер – реставрация
Фотография © Stefan Huger / предоставлена a b c works
Вилла Беер – реставрация
Фотография © Stefan Huger / предоставлена a b c works
Вилла Беер – реставрация
Фотография © Hertha Hurnaus / предоставлена a b c works
Вилла Беер – реставрация
Фотография © Hertha Hurnaus / предоставлена a b c works
Вилла Беер – реставрация
Фотография © Hertha Hurnaus / предоставлена a b c works
Вилла Беер – реставрация
Фотография © Hertha Hurnaus / предоставлена a b c works
Вилла Беер – реставрация
Фотография © Hertha Hurnaus / предоставлена a b c works
Вилла Беер – реставрация
Фотография © Hertha Hurnaus / предоставлена a b c works
Вилла Беер – реставрация
Фотография © Hertha Hurnaus / предоставлена a b c works
Вилла Беер – реставрация
Фотография © Stefan Huger / предоставлена a b c works
Вилла Беер – реставрация
Фотография © Stefan Huger / предоставлена a b c works
Вилла Беер – реставрация
Фотография © Stefan Huger / предоставлена a b c works
Вилла Беер – реставрация
Фотография © Stefan Huger / предоставлена a b c works
Вилла Беер – реставрация
Фотография © Stefan Huger / предоставлена a b c works
Вилла Беер – реставрация
Фотография © Stefan Huger / предоставлена a b c works
Вилла Беер – реставрация
Фотография © Stefan Huger / предоставлена a b c works
Вилла Беер – реставрация
Фотография © Stefan Huger / предоставлена a b c works
Вилла Беер – реставрация
Фотография © Stefan Huger / предоставлена a b c works
Вилла Беер – реставрация
Фотография © Stefan Huger / предоставлена a b c works
Вилла Беер – реставрация
Фотография © Stefan Huger / предоставлена a b c works
Вилла Беер – реставрация
© cp architecture / предоставлено a b c works
Вилла Беер – реставрация
© cp architecture / предоставлено a b c works
Вилла Беер – реставрация
© cp architecture / предоставлено a b c works
Вилла Беер – реставрация
© cp architecture / предоставлено a b c works
Вилла Беер – реставрация
© cp architecture / предоставлено a b c works
Вилла Беер – реставрация
© cp architecture / предоставлено a b c works
Вилла Беер – реставрация
© cp architecture / предоставлено a b c works
Вилла Беер – реставрация
© cp architecture / предоставлено a b c works
Вилла Беер – реставрация
© cp architecture / предоставлено a b c works
Вилла Беер – реставрация
© cp architecture / предоставлено a b c works
Вилла Беер – реставрация
© cp architecture / предоставлено a b c works
Вилла Беер – реставрация
© cp architecture / предоставлено a b c works

Избранные архитекторы:

  • Тоёо Ито
  • Оскар Нимейер
  • Петер Цумтор
  • Ричард Майер
  • Дэвид Чипперфильд
  • Стивен Холл
  • Норман Фостер
  • Рафаэль Монео
  • Даниэль Либескинд

Проект из каталога (случайный выбор)

Унаватуна - проект застройки
Даниэль Либескинд, 2005 – 2005
Унаватуна - проект застройки

Избранные постройки:

  • Дайкман – Бьёрвика, главная библиотека Осло
  • Музей современного искусства Киасма
  • Жилой дом Gemini Residencies
  • Башня Oasia Hotel Downtown
  • Комплекс «Джинджер и Фред» («Танцующий дом»)
  • Архитектурная инсталляция «Город времени»
  • Музеи современного искусства и архитектуры
  • Вилла Capital Hill
  • Стадион «Уэмбли»

Зарубежные новости