RSS
Дом «Танграм»
Фото © Manuel Sá

Дом «Танграм»


/ Tangram House

информация:

Tetro / Бразилия
Дом «Танграм»
Фото © Manuel Sá

Архи.ру об этом объекте:

09.12.2025

Нина Фролова. Крыша-головоломка

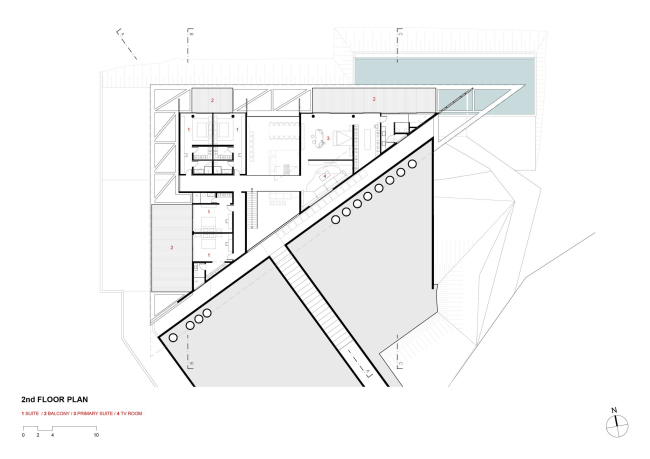
У треугольного в плане дома по проекту бюро Tetro в агломерации Белу-Оризонти крыша тоже составлена из треугольников – сплошных и остекленных.

читать дальше
Дом «Танграм»
Фото © Manuel Sá
Дом «Танграм»
Фото © Manuel Sá
Дом «Танграм»
Фото © Manuel Sá
Дом «Танграм»
Фото © Manuel Sá
Дом «Танграм»
Фото © Manuel Sá
Дом «Танграм»
Фото © Manuel Sá
Дом «Танграм»
Фото © Manuel Sá
Дом «Танграм»
Фото © Manuel Sá
Дом «Танграм»
Фото © Manuel Sá
Дом «Танграм»
Фото © Manuel Sá
Дом «Танграм»
Фото © Manuel Sá
Дом «Танграм»
Фото © Manuel Sá
Дом «Танграм»
Фото © Manuel Sá
Дом «Танграм»
Фото © Manuel Sá
Дом «Танграм»
Фото © Manuel Sá
Дом «Танграм»
Фото © Manuel Sá
Дом «Танграм»
Фото © Manuel Sá
Дом «Танграм»
Фото © Manuel Sá
Дом «Танграм»
Фото © Manuel Sá
Дом «Танграм»
Фото © Manuel Sá
Дом «Танграм»
© TETRO
Дом «Танграм»
© TETRO
Дом «Танграм»
© TETRO
Дом «Танграм»
© TETRO
Дом «Танграм»
© TETRO
Дом «Танграм»
© TETRO
Дом «Танграм»
© TETRO

Избранные архитекторы:

  • Тадао Андо
  • Петер Цумтор
  • Алвару Сиза
  • Арата Исодзаки
  • Рафаэль Виньоли
  • Кристиан де Портзампарк
  • Заха Хадид
  • Сигэру Бан
  • Ричард Роджерс

Проект из каталога (случайный выбор)

Мэрия Монпелье
Жан Нувель, – 2011
Мэрия Монпелье

Избранные постройки:

  • Церковь Сен-Пьер де Фирмини
  • Центр наследия и искусств Tai Kwun
  • Социальный жилой комплекс в районе Карабанчель
  • Музей Ван Гога – выставочное крыло
  • Лахта-центр
  • Центр госуслуг в Тбилиси
  • Канадский национальный центр музыки – здание Studio Bell
  • Центральный рынок Абу-Даби
  • Отель Marina Bay Sands

Зарубежные новости

Симулятор «зеленой» жизни
05.03.2026

Симулятор «зеленой» жизни

Томас Хезервик
От пещеры до звезды
04.03.2026

От пещеры до звезды

Станислав Субботин
Дарья Кириллова
Горный страж
03.03.2026

Горный страж

Артем Агекян