RSS
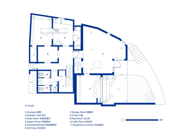
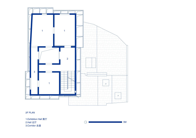
Музей Z в деревне Сунчжуан
Фото © Jonathan Leijonhufvud

Музей Z в деревне Сунчжуан


/ Songzhuang Z Museum

информация:

TEAM_BLDG / Китай
Музей Z в деревне Сунчжуан
Фото © Jonathan Leijonhufvud

Архи.ру об этом объекте:

05.06.2025

Нина Фролова. Нитяной фасад

Посвященный ткачеству музей открылся в маленькой деревне в горах Уишань. Авторы его проекта – шанхайское бюро TEAM_BLDG.

читать дальше
Музей Z в деревне Сунчжуан
Фото © Jonathan Leijonhufvud
Музей Z в деревне Сунчжуан
Фото © Jonathan Leijonhufvud
Музей Z в деревне Сунчжуан
Фото © Jonathan Leijonhufvud
Музей Z в деревне Сунчжуан
Фото © Jonathan Leijonhufvud
Музей Z в деревне Сунчжуан
Фото © Jonathan Leijonhufvud
Музей Z в деревне Сунчжуан
Фото © Jonathan Leijonhufvud
Музей Z в деревне Сунчжуан
Фото © Jonathan Leijonhufvud
Музей Z в деревне Сунчжуан
Фото © Jonathan Leijonhufvud
Музей Z в деревне Сунчжуан
Фото © Jonathan Leijonhufvud
Музей Z в деревне Сунчжуан
Фото © Jonathan Leijonhufvud
Музей Z в деревне Сунчжуан
Фото © Jonathan Leijonhufvud
Музей Z в деревне Сунчжуан
Фото © Jonathan Leijonhufvud
Музей Z в деревне Сунчжуан
Фото © Jonathan Leijonhufvud
Музей Z в деревне Сунчжуан
Фото © Jonathan Leijonhufvud
Музей Z в деревне Сунчжуан
Фото © Jonathan Leijonhufvud
Музей Z в деревне Сунчжуан
Фото © Jonathan Leijonhufvud
Музей Z в деревне Сунчжуан
Фото © Jonathan Leijonhufvud
Музей Z в деревне Сунчжуан
Фото © Jonathan Leijonhufvud
Музей Z в деревне Сунчжуан
Фото © Jonathan Leijonhufvud
Музей Z в деревне Сунчжуан
Фото © Jonathan Leijonhufvud
Музей Z в деревне Сунчжуан
Фото © Jonathan Leijonhufvud
Музей Z в деревне Сунчжуан
Фото © Jonathan Leijonhufvud
Музей Z в деревне Сунчжуан
Фото © Jonathan Leijonhufvud
Музей Z в деревне Сунчжуан
Фото © Jonathan Leijonhufvud
Музей Z в деревне Сунчжуан
Фото © Jonathan Leijonhufvud
Музей Z в деревне Сунчжуан
Фото © Jonathan Leijonhufvud
Музей Z в деревне Сунчжуан
Фото © Jonathan Leijonhufvud
Музей Z в деревне Сунчжуан
Фото © Jonathan Leijonhufvud
Музей Z в деревне Сунчжуан
Фото © Jonathan Leijonhufvud
Музей Z в деревне Сунчжуан
© TEAM_BLDG
Музей Z в деревне Сунчжуан
© TEAM_BLDG
Музей Z в деревне Сунчжуан
© TEAM_BLDG
Музей Z в деревне Сунчжуан. Участок до начала строительства
Фото © TEAM_BLDG
Музей Z в деревне Сунчжуан. Участок до начала строительства
Фото © TEAM_BLDG
Музей Z в деревне Сунчжуан
© TEAM_BLDG
Музей Z в деревне Сунчжуан
© TEAM_BLDG
Музей Z в деревне Сунчжуан
© TEAM_BLDG
Музей Z в деревне Сунчжуан
© TEAM_BLDG
Музей Z в деревне Сунчжуан
© TEAM_BLDG
Музей Z в деревне Сунчжуан
© TEAM_BLDG
Музей Z в деревне Сунчжуан
© TEAM_BLDG
Музей Z в деревне Сунчжуан
© TEAM_BLDG
Музей Z в деревне Сунчжуан
© TEAM_BLDG
Музей Z в деревне Сунчжуан
© TEAM_BLDG
Музей Z в деревне Сунчжуан
© TEAM_BLDG

Избранные архитекторы:

  • Рафаэль Виньоли
  • Кэнго Кума
  • Николас Гримшо
  • Алехандро Аравена
  • Тадао Андо
  • Дэвид Аджайе
  • Фрэнк Гери
  • Массимилиано Фуксас
  • Том Мейн

Проект из каталога (случайный выбор)

Технологический центр McLaren
Норман Фостер, 1998 – 2004
Технологический центр McLaren

Избранные постройки:

  • Музей американского искусства Уитни – новое здание
  • Олимпийский хоккейный стадион – Pala Alpitour
  • Европейский центральный банк
  • Школа искусств и истории искусства Университета Айовы (Art Building West)
  • Жилой квартал «Велтон Парк»
  • Лахта-центр
  • Музей Тенгли
  • Штаб-квартира компании Dyson
  • Музей Гуггенхайм-Эрмитаж

Зарубежные новости