Фондохранилище Музея Виктории и Альберта
Фотография © Hufton+Crow / предоставлена V&A Museum
Фондохранилище Музея Виктории и Альберта
/ V&A East Storehouse
информация:
-
статус
реализовано -
даты
2018 / — 05.2025 -
место
Великобритания, Лондон -
координаты
51.546338, -0.021381 -
функция
Культурный / Фондохранилище -
теги
Лестница, Атриум, Свет в архитектуре, Остекленные перекрытия -
общая площадь
16 000 м2

Diller Scofidio + Renfro /
Diller Scofidio + Renfro / СШАФондохранилище Музея Виктории и Альберта
Фотография © Hufton+Crow / предоставлена V&A Museum
Архи.ру об этом объекте:
30.05.2025
Анна Старостина. Искусство в доступе
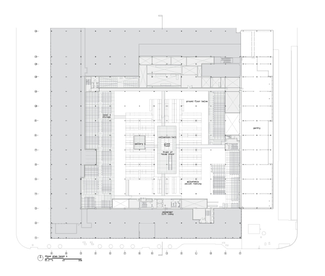
В Лондоне сооружено фондохранилище для Музея Виктории и Альберта по проекту Diller Scofidio + Renfro: экспонаты здесь выставлены без привычного стекла.
читать дальшеФондохранилище Музея Виктории и Альберта
Фотография © Hufton+Crow / предоставлена V&A Museum
Фондохранилище Музея Виктории и Альберта
Фотография © Hufton+Crow / предоставлена V&A Museum
Фондохранилище Музея Виктории и Альберта
Фотография © Hufton+Crow / предоставлена V&A Museum
Фондохранилище Музея Виктории и Альберта
Фотография © Hufton+Crow / предоставлена V&A Museum
Фондохранилище Музея Виктории и Альберта
Фотография © Hufton+Crow / предоставлена V&A Museum
Фондохранилище Музея Виктории и Альберта
Фотография © Hufton+Crow / предоставлена V&A Museum
Фондохранилище Музея Виктории и Альберта
Фотография © Hufton+Crow / предоставлена V&A Museum
Фондохранилище Музея Виктории и Альберта
Фотография © Hufton+Crow / предоставлена V&A Museum
Фондохранилище Музея Виктории и Альберта
Фотография © Hufton+Crow / предоставлена V&A Museum
Фондохранилище Музея Виктории и Альберта
Фотография © Hufton+Crow / предоставлена V&A Museum
Фондохранилище Музея Виктории и Альберта
Фотография © Hufton+Crow / предоставлена V&A Museum
Фондохранилище Музея Виктории и Альберта
Фотография © Hufton+Crow / предоставлена V&A Museum
Фондохранилище Музея Виктории и Альберта
Фотография © Hufton+Crow / предоставлена V&A Museum
Фондохранилище Музея Виктории и Альберта
Фотография © Hufton+Crow / предоставлена V&A Museum
Фондохранилище Музея Виктории и Альберта
Фотография © Hufton+Crow / предоставлена V&A Museum
Фондохранилище Музея Виктории и Альберта
Фотография © Hufton+Crow / предоставлена V&A Museum
Фондохранилище Музея Виктории и Альберта
© Diller Scofidio + Renfro / предоставлена V&A Museum
Фондохранилище Музея Виктории и Альберта
© Diller Scofidio + Renfro / предоставлена V&A Museum
Избранные архитекторы:
Проект из каталога (случайный выбор)
Избранные постройки:
Зарубежные новости
08.10.2025
Руины. Второе дыхание
03.10.2025
С открытым сердцем
01.10.2025
Пиранези для первокурсников
30.09.2025
Больше арок
26.09.2025