RSS
Overhead
Фотография © Илья Митрошенков / предотавлена Максим Цыбин

Overhead

информация:

  • статус
    реализовано
  • даты
    03.2023 — 08.2023 / 09.2023 — 12.2024
  • место
    Индонезия
    Jl. Tj. Simah, Pecatu, Kec. Kuta Sel., Kabupaten Badung
  • координаты
    -8.809583, 115.112528
  • функция
    Торгово-коммерческий / ресторан
    Fusion street food
  • теги
    send.project
  • площадь участка
    0,04 га
  • общая площадь
    200 м2
  • высота
    6
  • ссылки:
  • авторский коллектив
    Greywoods design & construction
    ГАП, руководитель авторского коллектива: ​Максим Цыбин 
    Архитектор: Йога Висмаван
    Дизайнер: Тиржа Деви Сударсоно
  • партнеры, заказчики, смежники
    Строительная компания: Greywoods.pro
Максим Цыбин
Overhead
Фотография © Илья Митрошенков / предотавлена Максим Цыбин

Архи.ру об этом объекте:

15.04.2025

Тень от франжипани

Ресторан, построенный по проекту бюро Максима Цыбина Overhead на острове Бали, простыми и крупными формами подсвечивает колоритный контекст: на фоне белых и бетонных поверхностей ярче проступает разнообразие растительности, самобытность придомовых храмов и детали окружающих зданий.

читать дальше
Overhead
Фотография © Илья Митрошенков / предотавлена Максим Цыбин

история проекта:

Клиент обратился по рекомендации от моих прошлых заказчиков

описание:

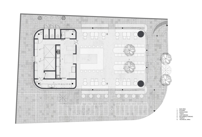
Проект расположен в южной части острова Бали, на полуострове Букит, в районе Печату. Угловой участок находится на пересечении двух небольших улиц, среди аутентичных балийских построек с придомовыми храмами для религиозных подношений, а также характерной для тропической зоны густой растительности, окруженной паутиной электрокабелей, растянутых над дорогой.

Имея такой богатый контекст, было принято решение создать простую архитектурную композицию из чистых, масштабных геометрических форм. В основу концепции легла идея игры контрастов, которая одинаково выгодно работает в обе стороны.

С одной стороны, на фоне крупных, чистых форм современного сооружения окружающая архитектура и среда стали выглядеть более выразительно. Мелкие декоративные элементы и растения оказались еще более подчеркнутыми. С другой стороны, массивные лаконичные формы здания стали безусловным акцентом на фоне пышной зелени, проработанных архитектурных деталей балийских домов и динамичных линий электропроводов.

Большое внимание было уделено взаимодействию света с архитектурными формами. Так же детально проработано движение и влияние солнечного света и теней на здание: круглые колонны под массивным навесом, рифленые фасады с карнизами, консольные наружные вывески или почитаемое балийцами дерево франжипани, которое отбрасывает утренние тени на главный фасад.

Что касается вечернего освещения, здесь применена концепция «снаружи – внутрь». С наступлением темноты здание растворяется и почти исчезает. Только легкий направленный свет тактично подчеркивает его основные формы и элементы, создавая фон для теплого внутреннего свечения основного зала ресторана.

Таким образом, данное архитектурное произведение – это гармоничное взаимодействие форм, деталей, фактур, света и материалов с окружающим контекстом.

Overhead
Фотография © Илья Митрошенков / предотавлена Максим Цыбин
Overhead
Фотография © Илья Митрошенков / предотавлена Максим Цыбин
Overhead
Фотография © Илья Митрошенков / предотавлена Максим Цыбин
Overhead
Фотография © Илья Митрошенков / предотавлена Максим Цыбин
Overhead
Фотография © Илья Митрошенков / предотавлена Максим Цыбин
Overhead
Фотография © Илья Митрошенков / предотавлена Максим Цыбин
Overhead
Фотография © Илья Митрошенков / предотавлена Максим Цыбин
Overhead
Фотография © Илья Митрошенков / предотавлена Максим Цыбин
Overhead
Фотография © Илья Митрошенков / предотавлена Максим Цыбин
Overhead
Фотография © Илья Митрошенков / предотавлена Максим Цыбин
Overhead
Фотография © Илья Митрошенков / предотавлена Максим Цыбин
Overhead
Фотография © Илья Митрошенков / предотавлена Максим Цыбин
Overhead
Фотография © Илья Митрошенков / предотавлена Максим Цыбин
Overhead
Фотография © Илья Митрошенков / предотавлена Максим Цыбин
Overhead
Фотография © Илья Митрошенков / предотавлена Максим Цыбин
Overhead
Фотография © Илья Митрошенков / предотавлена Максим Цыбин
Overhead
Фотография © Илья Митрошенков / предотавлена Максим Цыбин
Overhead
Фотография © Илья Митрошенков / предотавлена Максим Цыбин
Overhead
© Максим Цыбин
Overhead
© Максим Цыбин
Overhead
© Максим Цыбин
Overhead
© Максим Цыбин
Overhead
© Максим Цыбин

Избранные архитекторы:

  • Даниэль Либескинд
  • Тадао Андо
  • Рафаэль Виньоли
  • Сантьяго Калатрава
  • Питер Айзенман
  • Норман Фостер
  • Одиль Декк
  • Том Мейн
  • Кристиан де Портзампарк

Проект из каталога (случайный выбор)

Ligovsky City. Редевелопмент товарной станции
Йерун Схиппер, Патрик Майерс, Рююрд Гитема, 2019 – 2020
Ligovsky City. Редевелопмент товарной станции

Избранные постройки:

  • Корпус Мильстейна Корнельского университета
  • Музей искусств Нельсон-Эткинс
  • Атлантик-ярдс – арена Barclays Center
  • Терминал 2 аэропорта Чатрапати Шиваджи
  • Музей нарративного искусства Джорджа Лукаса в Лос-Анджелесе
  • Тюремный дворик. Сад арестантского корпуса Спасо-Евфимиева монастыря
  • Большой театр в Харбине
  • Алезия – музейный и археологический парк
  • Концертный зал Никколо Паганини

Зарубежные новости