Edu Expo
Фотография © Bahadir Hakimov / предоставлена Parallel architects
Edu Expo
информация:
-
статус
реализовано -
даты
2019 — 2020 / 2020 — 2022 -
место
Узбекистан, Ташкент
3-й проезд Навбахор, 24 -
координаты
41.295315, 69.225459 -
функция
Образование и наука / Учебный корпус -
теги
send.project -
общая площадь
4 013.5 м2 -
высота
23.2 -
этажность
5 -
строительный объем
16 385.2 м3 -
авторский коллектив
ГАП: Фаррух Шарахмедов
ГИП: Обиджан Абидов
Архитекторы: Ислом Тоиров, Миркамол Шукуров, Муродилла Акбаралиев, Абдукодир Алимов -
партнеры, заказчики, смежники
Заказчик: Умиджон Ишмухамедов

Фаррух Шарахмедов /
/ УзбекистанParallel architects /
/ Узбекистаннаграды:
- Победитель смотр-конкурса ME’MOR 2023, в категории лучшая реализация общественного здания
Edu Expo
Фотография © Bahadir Hakimov / предоставлена Parallel architects
Архи.ру об этом объекте:
Спелый апельсин
Учебный центр Edu Expo построен в центральной части Ташкента по проекту местного бюро Parallel architects. Относительно простая планировочная структура – аудитории и конференц-залы, сосредоточенные вокруг центрального холла – проявлена на фасаде панелями с паттерном штрих-кода. Однако вставки ярко-оранжевых балконов и ниш полностью меняют восприятие.
читать дальшеEdu Expo
Фотография © Bahadir Hakimov / предоставлена Parallel architects
история проекта:
Сам проект мы начинали с нуля. С заказчиком мы были знакомы до этого, так как мы проектировали для него частный дом.
описание:
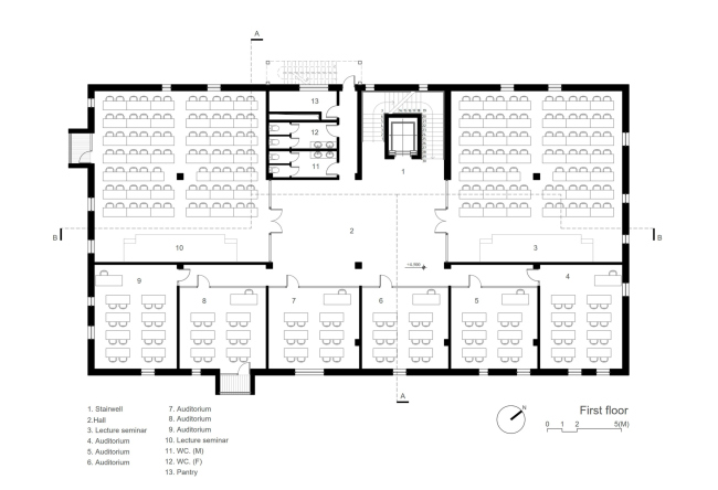
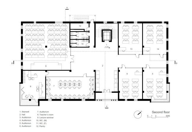
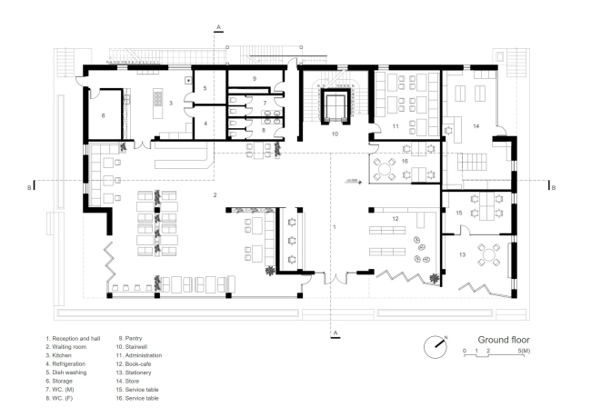
Проектом предусмотрено здание пятиэтажного учебного центра. Определенный вид объекта был согласован с заказчиком с самого начала. Нашей общей целью было выделение архитектуры здания от окружающих домов. Форма здания и цветовое решение похожи на детскую игрушку, которую можно разобрать и собрать заново, отсоединить часть и снова добавить. Главный вход в здание расположен прямо по ведущей к зданию дороге. Вертикальные линии на фасаде напоминают штрих код и дают индивуальность зданию.
«Хороший дизайн – это как можно меньше дизайна» Дитер Рамс. Этот дизайн-проект интерьера разработан для учебного центра Edu Expo.
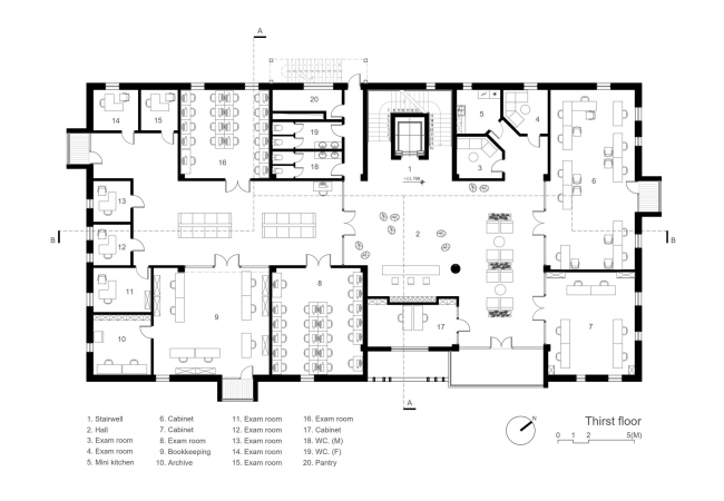
На этажах расположены офисные и экзаменационные кабинеты для молодежи, и это подчеркнуто притягательной и динамичной концепцией. Центр плана – это основной холл. Стены помещений и мебель ярких цветов и смелых форм. Вместе с этим, разные иллюстрации дарят гостям позитивный и активный настрой.
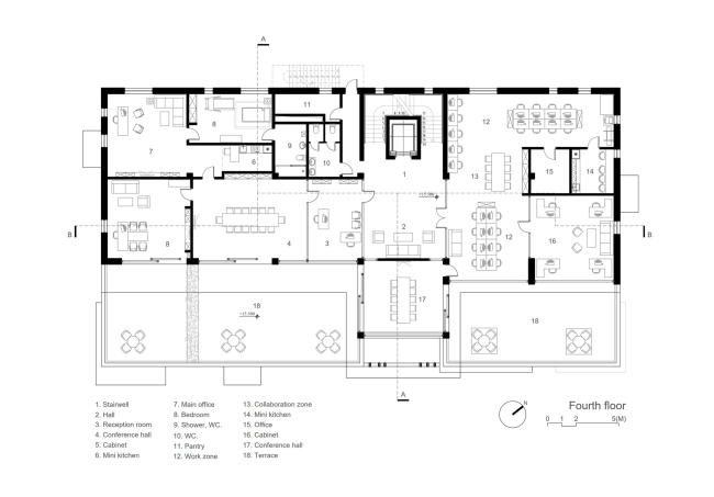
Пятый этаж выглядит серьезнее, так как состоит из помещений административного назначения. В последнем этаже избегали многоцветных деталей, на стенах помещений текстура дерева, а также состоям из черно-белых панелей. Витражные стены и горизонтальные светильники дают возможность свободной планировки помещений. Мебель и инвентарь подобраны тоже своеобразно минималистичны.