RSS
SIKORSKY HOUSE
Фотография © Екатерина Зданович / предоставлена Majsterni

SIKORSKY HOUSE

информация:

  • статус
    реализовано
  • даты
    20212022 / 20232024
  • место
    Беларусь, Брест
    улица Сикорского, 70
  • координаты
    52.094479, 23.716584
  • функция
    Жилой / жилой комплекс
  • теги
    send.project
  • общая площадь
    6 010 м2
  • этажность
    7
  • строительный объем
    23 788.41 м3
  • авторский коллектив
    Руководитель авторского коллектива и автор концепции: Максим Веремеюк
    Архитекторы: Ольга Науменко,  Никита Глушенок, Екатерина Зданович
  • партнеры, заказчики, смежники
    Соавторы, генподрядчик: Проектное СКБ
Максим Веремеюк
/ Беларусь
SIKORSKY HOUSE
Фотография © Екатерина Зданович / предоставлена Majsterni

Архи.ру об этом объекте:

01.10.2024

Диагональ и кирпич

В проекте среднеэтажного дома в Бресте местное бюро Majsterni использует несколько простых приемов, которые позволяют зданию не выбиваться из контекста, но и транслировать индивидуальность. Двухслойный фасад, объемную кладку и «аритмию» окон дополняет двор с безбарьерной средой, а также комплекс общих пространств и террасы на кровле.

читать дальше
SIKORSKY HOUSE
Фотография © Екатерина Зданович / предоставлена Majsterni

история проекта:

Молодое поколение пользователей кардинально меняет представление о том, каким должно быть современное жилье. Теперь это не просто про комфортную и эстетически привлекательную архитектуру: для молодого поколения это отражение их образа жизни, представлений о соседстве и сообществе, жизненной позиции. Проект жилого комплекса SIKORSKY HOUSE белорусской архитектурной мастерской Majsterni переосмысляет традиционные формы и фактуры в архитектуре, делая внешний вид здания уникальным. А новые многофункциональные общественные пространства, интегрированные в жилой объект, вдыхают в него жизнь и дух соседства и сообщества.

Жилой комплекс SIKORSKY HOUSE в городе Брест республики Беларусь – это переосмысление концепции типичного многоквартирного дома. Окруженный малоэтажной застройкой, проект будущего семиэтажного здания по задумке должен был гармонировать с близстоящими зданиями, не выделяясь своей высотой. Перед авторами стояла задача визуально «снизить» этажность проекта, чтобы избежать давления на зрителя.

описание:

Чтобы сделать облик здания уникальным, авторы решили поэкспериментировать с традиционными формами и фактурами. Избавившись от цоколя и карниза, архитекторы добавили скос по фасаду от высшей точки фасада к уровню шестого этажа, но не привычный ступенчатый, а диагональный.  Тем самым создав силуэт, который нетипичен для других зданий, но позволяет дому вписаться в окружающую застройку. 

Угловые лоджии делают здание визуально более легким, а последний этаж, замаскированный при помощи зеркальных панелей из алюминиевого композита, создает оптическую иллюзию: здание как будто сливается с небом благодаря отражающим свойствам материала. Так удалось сохранить форму здания, реализовав задуманные в проекте практически полные 7 этажей, добавив при этом изюминки. Смещенный контур последнего этажа позволил спроектировать на крыше дома террасы глубиной 5-7 метров, которые подходят для любого досуга. 

Основной объем здания составляет полотно из клинкерного кирпича. Чтобы его разнообразить, архитекторы использовали фигурную кирпичную кладку. Кирпич выложен таким образом, что создает объемный рисунок фасада дома. Выступающие кирпичи расположены в хаотичном порядке для создания эффекта легкости и ненавязчивости. А рядом находятся западающие внутрь кирпичи, в которые встроено освещение. Такое использование мелкой пластики на фасаде дома позволяет визуально разнообразить здание и создавать настроение объекта. 

Для архитекторов было важно создать не просто многоквартирный дом, а качественную жилую среду. Чтобы добиться хорошего освещения в квартирах, архитекторы добавили в проект большое количество панорамного остекления. Благоустройство жилого комплекса тоже не осталось без внимания, ведь обязательный критерий качественной и современной городской среды – безопасность прилегающей к дому территории. Авторы приняли решение создать двор без машин, вынеся парковку за пределы комплекса, что позволило более эффективно использовать территорию около дома. 

Придомовое пространство авторы оснастили двумя игровыми площадками вместо одной, а также разделили места для отдыха маленьких детей и подростков. На площадках авторы разместили игровое оборудование из дерева, которое соответствует возрастным потребностям детей, а сами площадки расположили так, чтобы не нужно было пересекать транспортные потоки на пути к ним. Убрав машины со двора, архитекторы учли потребности жильцов и оставили возможность подъехать к дому по усиленному тротуару: у жителей не возникнет проблем с доставкой мебели, а скорая доберется к любому подъезду.

Одной из задач авторов было создать максимально безбарьерную среду: в объекте нет ни пандусов, ни крылец со ступеньками. Минималистичные входные группы утоплены в плоскости стен и не имеют козырьков, что делает безбарьерное передвижение более комфортным. Места общего пользования с высокими потолками, комьюнити центр, велостоянки, кладовые – всё вместе образует комфортную и практически автономную экосистему современного многоквартирного дома.

SIKORSKY HOUSE
Фотография © Екатерина Зданович / предоставлена Majsterni
SIKORSKY HOUSE
Фотография © Екатерина Зданович / предоставлена Majsterni
SIKORSKY HOUSE
Фотография © Екатерина Зданович / предоставлена Majsterni
SIKORSKY HOUSE
Фотография © Екатерина Зданович / предоставлена Majsterni
SIKORSKY HOUSE
Фотография © Екатерина Зданович / предоставлена Majsterni
SIKORSKY HOUSE
Фотография © Екатерина Зданович / предоставлена Majsterni
SIKORSKY HOUSE
Фотография © Екатерина Зданович / предоставлена Majsterni
SIKORSKY HOUSE
Фотография © Екатерина Зданович / предоставлена Majsterni
SIKORSKY HOUSE
Фотография © Екатерина Зданович / предоставлена Majsterni
SIKORSKY HOUSE
Фотография © Екатерина Зданович / предоставлена Majsterni
SIKORSKY HOUSE
Фотография © Екатерина Зданович / предоставлена Majsterni
SIKORSKY HOUSE
Фотография © Екатерина Зданович / предоставлена Majsterni
SIKORSKY HOUSE
Фотография © Екатерина Зданович / предоставлена Majsterni
SIKORSKY HOUSE
Фотография © Екатерина Зданович / предоставлена Majsterni
SIKORSKY HOUSE
Фотография © Екатерина Зданович / предоставлена Majsterni
SIKORSKY HOUSE
Фотография © Екатерина Зданович / предоставлена Majsterni
SIKORSKY HOUSE
Фотография © Екатерина Зданович / предоставлена Majsterni
SIKORSKY HOUSE
Фотография © Екатерина Зданович / предоставлена Majsterni
SIKORSKY HOUSE
Фотография © Екатерина Зданович / предоставлена Majsterni
SIKORSKY HOUSE
Фотография © Екатерина Зданович / предоставлена Majsterni
SIKORSKY HOUSE
Фотография © Екатерина Зданович / предоставлена Majsterni
SIKORSKY HOUSE
Фотография © Екатерина Зданович / предоставлена Majsterni
SIKORSKY HOUSE
Фотография © Екатерина Зданович / предоставлена Majsterni
SIKORSKY HOUSE
Фотография © Екатерина Зданович / предоставлена Majsterni
SIKORSKY HOUSE
Фотография © Екатерина Зданович / предоставлена Majsterni
SIKORSKY HOUSE
Фотография © Екатерина Зданович / предоставлена Majsterni
SIKORSKY HOUSE
Фотография © Екатерина Зданович / предоставлена Majsterni
SIKORSKY HOUSE
Фотография © Екатерина Зданович / предоставлена Majsterni
SIKORSKY HOUSE
Фотография © Екатерина Зданович / предоставлена Majsterni
SIKORSKY HOUSE
Фотография © Екатерина Зданович / предоставлена Majsterni
SIKORSKY HOUSE
Фотография © Екатерина Зданович / предоставлена Majsterni
SIKORSKY HOUSE
Фотография © Екатерина Зданович / предоставлена Majsterni
SIKORSKY HOUSE
© Majsterni
SIKORSKY HOUSE
© Majsterni
SIKORSKY HOUSE
© Majsterni
SIKORSKY HOUSE
© Majsterni
SIKORSKY HOUSE
© Majsterni
SIKORSKY HOUSE
© Majsterni
SIKORSKY HOUSE
© Majsterni
SIKORSKY HOUSE
© Majsterni
SIKORSKY HOUSE
© Majsterni
SIKORSKY HOUSE. Генплан
© Majsterni
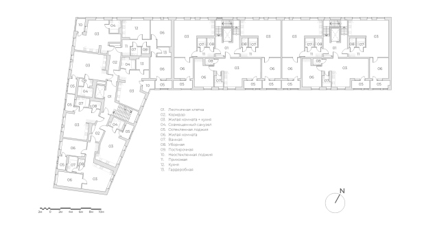
SIKORSKY HOUSE. План 1 этажа
© Majsterni
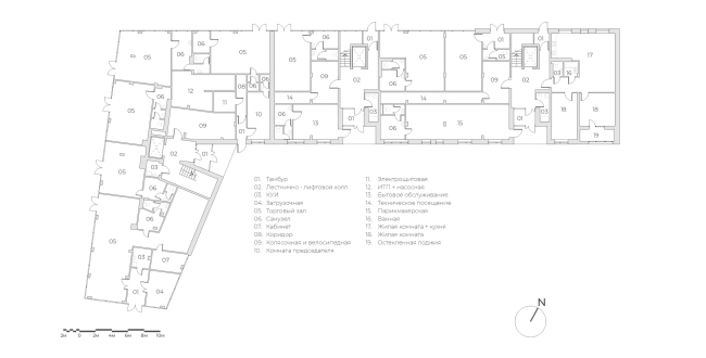
SIKORSKY HOUSE. План 2 этажа
© Majsterni

Избранные архитекторы:

  • Кристиан де Портзампарк
  • Даниэль Либескинд
  • Дэвид Чипперфильд
  • Алвару Сиза
  • Петер Цумтор
  • Рафаэль Монео
  • Одиль Декк
  • Ренцо Пьяно
  • Ричард Роджерс

Проект из каталога (случайный выбор)

Штаб-квартира компании ING в Венгрии
Эрик ван Эгераат, 1999 – 2004
Штаб-квартира компании ING в Венгрии

Избранные постройки:

  • Купол тысячелетия (Арена O2)
  • Музей современного искусства Аструп-Фернли
  • Начальная школа наук и биоразнообразия
  • Павильон Испании на ЭКСПО-2010
  • Комплекс Новой таможни
  • Дворец правосудия в Кордове
  • Башня Blue Tower
  • Мост Мийо
  • Университетская детская больница Цюриха

Зарубежные новости