RSS
Креативный хаб “ololoPlanet”
Фотография © Алексей Чеботарь / предоставлена Tsarik Architecture

Креативный хаб “ololoPlanet”

информация:

  • статус
    реализовано
  • даты
    06.2019 — 01.2020 / 02.2020 — 02.2023
  • место
    Киргизия, Бишкек
    ул. Юнусалиева 80
  • координаты
    42.849058, 74.623533
  • функция
    Административно-офисный / конференц-центр
    Коворкинг-центр
  • теги
    send.project
  • площадь участка
    0,263 га
  • площадь застройки
    1 331,76 м2
  • общая площадь
    6 283 м2
  • высота
    30
  • этажность
    5
  • строительный объем
    27 533 м3
  • кол-во машиномест
    57
  • авторский коллектив
    Архитектурная концепция и дизайн 1 этажа: Tsarik Architecture
    ГАП: Игорь Царик, Григорий Кобко
    Архитекторы: Борис Другалёв, Роман Усенко, Ярослав Колантай, Равшан Ва-Ахунов 
  • партнеры, заказчики, смежники
    Интерьер 2-4 этажа: дизайн-студия MEL
    Интерьер 5 этажа: Аsanbekova bureau

    Заказчик: ololo

Игорь Царик
Роман Усенко
Ярослав Колантай
/ Киргизия
Креативный хаб “ololoPlanet”
Фотография © Алексей Чеботарь / предоставлена Tsarik Architecture

Архи.ру об этом объекте:

17.10.2024

Планета людей

Пятиэтажный коворкинг-хаб в Бишкеке привлекает резидентов комфортными рабочими местами, а также ярким дизайном: интерьерами занималось сразу несколько бюро, развивая темы воды, леса, земли и неба. За архитектурную концепцию и первый этаж отвечали Tsarik Architecture.

читать дальше
Креативный хаб “ololoPlanet”
Фотография © Алексей Чеботарь / предоставлена Tsarik Architecture

история проекта:

На конкурсной основе

описание:

Первостепенная задача пространства – стереть классическую модель взаимодействия внутри бизнес-центра. Важно, чтобы сохранялась главная концепция ololo – максимальная открытость и взаимовыгодный нетворкинг.

Для здания коворкинг центра была выбрана форма буквы “Ш”, но тем не менее оно не обладает строгим разделением по зонам. Это позволяет резидентам чувствовать принадлежность к сообществу – работа в синергии только мотивирует.

Общая площадь пятиэтажного здания – 6000+ м² из которых 50% отведено под офисные помещения закрытого типа, а остальные 50% – под open space и внутреннюю логистику. Каждый этаж объекта отличается по функционалу и объёму. Внутренние входные группы смещены ближе к центру для быстрой вертикальной и горизонтальной логистики.

Креативный хаб “ololoPlanet”
Фотография © Алексей Чеботарь / предоставлена Tsarik Architecture
Креативный хаб “ololoPlanet”
Фотография © Алексей Чеботарь / предоставлена Tsarik Architecture
Креативный хаб “ololoPlanet”
Фотография © Алексей Чеботарь / предоставлена Tsarik Architecture
Креативный хаб “ololoPlanet”
Фотография © Алексей Чеботарь / предоставлена Tsarik Architecture
Креативный хаб “ololoPlanet”
Фотография © Алексей Чеботарь / предоставлена Tsarik Architecture
Креативный хаб “ololoPlanet”
Фотография © Алексей Чеботарь / предоставлена Tsarik Architecture
Креативный хаб “ololoPlanet”
Фотография © Алексей Чеботарь / предоставлена Tsarik Architecture
Креативный хаб “ololoPlanet”
Фотография © Алексей Чеботарь / предоставлена Tsarik Architecture
Креативный хаб “ololoPlanet”
Фотография © Алексей Чеботарь / предоставлена Tsarik Architecture
Креативный хаб “ololoPlanet”
Фотография © Алексей Чеботарь / предоставлена Tsarik Architecture
Креативный хаб “ololoPlanet”
Фотография © Алексей Чеботарь / предоставлена Tsarik Architecture
Креативный хаб “ololoPlanet”
Фотография © Алексей Чеботарь / предоставлена Tsarik Architecture
Креативный хаб “ololoPlanet”
Фотография © Алексей Чеботарь / предоставлена Tsarik Architecture
Креативный хаб “ololoPlanet”
Фотография © Алексей Чеботарь / предоставлена Tsarik Architecture
Креативный хаб “ololoPlanet”
Фотография © Алексей Чеботарь / предоставлена Tsarik Architecture
Креативный хаб “ololoPlanet”
Фотография © Алексей Чеботарь / предоставлена Tsarik Architecture
Креативный хаб “ololoPlanet”
Фотография © Алексей Чеботарь / предоставлена Tsarik Architecture
Креативный хаб “ololoPlanet”
Фотография © Алексей Чеботарь / предоставлена Tsarik Architecture
Креативный хаб “ololoPlanet”
Фотография © Алексей Чеботарь / предоставлена Tsarik Architecture
Креативный хаб “ololoPlanet”
Фотография © Алексей Чеботарь / предоставлена Tsarik Architecture
Креативный хаб “ololoPlanet”
Фотография © Алексей Чеботарь / предоставлена Tsarik Architecture
Креативный хаб “ololoPlanet”
Фотография © Алексей Чеботарь / предоставлена Tsarik Architecture
Креативный хаб “ololoPlanet”
Фотография © Алексей Чеботарь / предоставлена Tsarik Architecture
Креативный хаб “ololoPlanet”
Фотография © Алексей Чеботарь / предоставлена Tsarik Architecture
Креативный хаб “ololoPlanet”
Фотография © Алексей Чеботарь / предоставлена Tsarik Architecture
Креативный хаб “ololoPlanet”
Фотография © Алексей Чеботарь / предоставлена Tsarik Architecture
Креативный хаб “ololoPlanet”
Фотография © Алексей Чеботарь / предоставлена Tsarik Architecture
Креативный хаб “ololoPlanet”
Фотография © Алексей Чеботарь / предоставлена Tsarik Architecture
Креативный хаб “ololoPlanet”. Взрыв-схема
© Tsarik Architecture
Креативный хаб “ololoPlanet”. Концепция бизнес-центра
© Tsarik Architecture
Креативный хаб “ololoPlanet”. Зонирование первого этажа
© Tsarik Architecture
Креативный хаб “ololoPlanet”. Концепция внутренних пространств
© Tsarik Architecture
Креативный хаб “ololoPlanet”. Концепция конференц-зала
© Tsarik Architecture
Креативный хаб “ololoPlanet”. Концепция первого этажа
© Tsarik Architecture
Креативный хаб “ololoPlanet”. План на отм. -3,800
© Tsarik Architecture
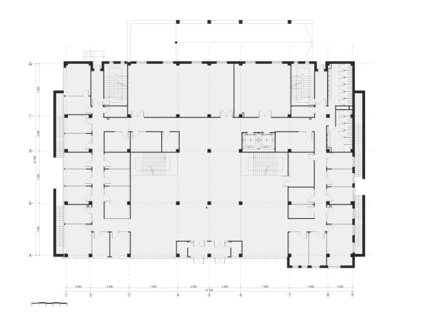
Креативный хаб “ololoPlanet”. План на отм. 0,000
© Tsarik Architecture
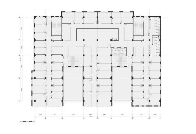
Креативный хаб “ololoPlanet”. План на отм. 5,000
© Tsarik Architecture
Креативный хаб “ololoPlanet”. План на отм. 8,600
© Tsarik Architecture
Креативный хаб “ololoPlanet”. Разрез 1-1
© Tsarik Architecture
Креативный хаб “ololoPlanet”. Разрез 2-2
© Tsarik Architecture

Избранные архитекторы:

  • Кэнго Кума
  • Николас Гримшо
  • Ричард Майер
  • Дэвид Аджайе
  • Сантьяго Калатрава
  • Рем Колхас
  • Алехандро Аравена
  • Сигэру Бан
  • Эдуарду Соту де Мора

Проект из каталога (случайный выбор)

Избранные постройки:

  • Монастырь Нови Двур
  • Дворец танцев Бориса Эйфмана
  • Музей искусств Фидж
  • Башня Meret Oppenheim
  • Национальный музей Катара
  • Мост тысячелетия в Гейтсхеде
  • Административное здание в Сан-Франциско
  • Новый теннисный стадион Ролан-Гаррос
  • Романтический парк «Тучков буян»

Зарубежные новости

Симулятор «зеленой» жизни
05.03.2026

Симулятор «зеленой» жизни

Томас Хезервик
От пещеры до звезды
04.03.2026

От пещеры до звезды

Станислав Субботин
Дарья Кириллова
Горный страж
03.03.2026

Горный страж

Артем Агекян