RSS
Центр естественных и точных наук имени Роберта Дея
Фото © Laurian Ghinitoiu

Центр естественных и точных наук имени Роберта Дея


/ Robert Day Sciences Center

информация:

BIG
BIG - Bjarke Ingels Group / Дания
Центр естественных и точных наук имени Роберта Дея
Фото © Laurian Ghinitoiu

Архи.ру об этом объекте:

01.10.2025

Нина Фролова. Пиранези для первокурсников

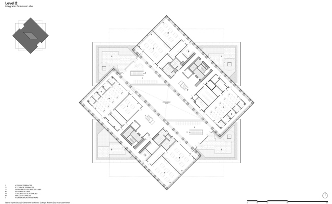
В калифорнийском Клермонтском колледже открылось первое из запланированных зданий по проекту BIG: Научный центр имени Роберта Дея, где масштабные стальные фермы снаружи обшиты стеклофибробетоном, а внутри – древесиной.

читать дальше
Центр естественных и точных наук имени Роберта Дея
Фото © Laurian Ghinitoiu
Центр естественных и точных наук имени Роберта Дея
Фото © Laurian Ghinitoiu
Центр естественных и точных наук имени Роберта Дея
Фото © Laurian Ghinitoiu
Центр естественных и точных наук имени Роберта Дея
Фото © Laurian Ghinitoiu
Центр естественных и точных наук имени Роберта Дея
Фото © Laurian Ghinitoiu
Центр естественных и точных наук имени Роберта Дея
Фото © Laurian Ghinitoiu
Центр естественных и точных наук имени Роберта Дея
Фото © Laurian Ghinitoiu
Центр естественных и точных наук имени Роберта Дея
Фото © Laurian Ghinitoiu
Центр естественных и точных наук имени Роберта Дея
Фото © Laurian Ghinitoiu
Центр естественных и точных наук имени Роберта Дея
Фото © Laurian Ghinitoiu
Центр естественных и точных наук имени Роберта Дея
Фото © Laurian Ghinitoiu
Центр естественных и точных наук имени Роберта Дея
Фото © Laurian Ghinitoiu
Центр естественных и точных наук имени Роберта Дея
Фото © Laurian Ghinitoiu
Центр естественных и точных наук имени Роберта Дея
Фото © Laurian Ghinitoiu
Центр естественных и точных наук имени Роберта Дея
Фото © Laurian Ghinitoiu
Центр естественных и точных наук имени Роберта Дея
Фото © Laurian Ghinitoiu
Центр естественных и точных наук имени Роберта Дея
Фото © Laurian Ghinitoiu
Центр естественных и точных наук имени Роберта Дея
Фото © Laurian Ghinitoiu
Центр естественных и точных наук имени Роберта Дея
Фото © Laurian Ghinitoiu
Центр естественных и точных наук имени Роберта Дея
Фото © Laurian Ghinitoiu
Центр естественных и точных наук имени Роберта Дея
Фото © Laurian Ghinitoiu
Центр естественных и точных наук имени Роберта Дея
Фото © Laurian Ghinitoiu
Центр естественных и точных наук имени Роберта Дея
Фото © Laurian Ghinitoiu
Центр естественных и точных наук имени Роберта Дея
Фото © Laurian Ghinitoiu
Центр естественных и точных наук имени Роберта Дея
Фото © Laurian Ghinitoiu
Центр естественных и точных наук имени Роберта Дея
Фото © Laurian Ghinitoiu
Центр естественных и точных наук имени Роберта Дея
Фото © Laurian Ghinitoiu
Центр естественных и точных наук имени Роберта Дея
Фото © Laurian Ghinitoiu
Центр естественных и точных наук имени Роберта Дея
Фото © Laurian Ghinitoiu
Центр естественных и точных наук имени Роберта Дея
© BIG
Центр естественных и точных наук имени Роберта Дея
© BIG
Центр естественных и точных наук имени Роберта Дея
© BIG
Центр естественных и точных наук имени Роберта Дея
© BIG
Центр естественных и точных наук имени Роберта Дея
© BIG
Центр естественных и точных наук имени Роберта Дея
© BIG
Центр естественных и точных наук имени Роберта Дея
© BIG
Центр естественных и точных наук имени Роберта Дея
© BIG
Центр естественных и точных наук имени Роберта Дея
© BIG
Центр естественных и точных наук имени Роберта Дея
© BIG
Центр естественных и точных наук имени Роберта Дея
© BIG
Центр естественных и точных наук имени Роберта Дея
© BIG
Центр естественных и точных наук имени Роберта Дея
© BIG
Центр естественных и точных наук имени Роберта Дея
© BIG
Центр естественных и точных наук имени Роберта Дея
© BIG
Центр естественных и точных наук имени Роберта Дея
© BIG
Центр естественных и точных наук имени Роберта Дея
© BIG
Центр естественных и точных наук имени Роберта Дея
© BIG
Центр естественных и точных наук имени Роберта Дея
© BIG
Центр естественных и точных наук имени Роберта Дея
Центр естественных и точных наук имени Роберта Дея
© BIG

Избранные архитекторы:

  • Алвару Сиза
  • Заха Хадид
  • Питер Айзенман
  • Джон Поусон
  • Алехандро Аравена
  • Жан Нувель
  • Рафаэль Монео
  • Стивен Холл
  • Кэнго Кума

Проект из каталога (случайный выбор)

Штаб-квартира компании Bloomberg
Норман Фостер, 2010 – 2017
Штаб-квартира компании Bloomberg

Избранные постройки:

  • Центр Помпиду-Мец
  • Отель Puerta América
  • Центр искусств Пола Меллона
  • Оперный театр Тенерифе
  • Центр культуры и искусства в Аньцзи
  • Оперный театр в Осло – Национальный театр оперы и балета
  • Музей современного искусства и градостроительная выставка – MOCAPE
  • Башня 53W53
  • Штаб-квартира канадского филиала компании GlaxoSmithKline

Зарубежные новости