Офисное здание HORTUS
Фото © Maris Mezulis
Офисное здание HORTUS
/ HORTUS office building
информация:
-
статус
реализовано -
даты
04.2020 — 06.2023 / 12.2022 — 05.2025 -
место
Швейцария, Альшвиль -
координаты
47.561138, 7.549953 -
функция
Административно-офисный / офисное здание -
теги
«Зеленое» строительство, Дерево, Внутренний двор, Глина и земля, Опоры -
площадь застройки
2 992 м2 -
общая площадь
14 100 м2 -
высота
23 -
этажность
5 -
строительный объем
58 500 м3 -
партнеры, заказчики, смежники
Заказчик: Senn Resources AG
Пит Аудолф /
Piet Oudolf / Нидерланды
Herzog & de Meuron /
Herzog & de Meuron / ШвейцарияОфисное здание HORTUS
Фото © Maris Mezulis
Архи.ру об этом объекте:
08.07.2025
Нина Фролова. Модули из глины и древесины
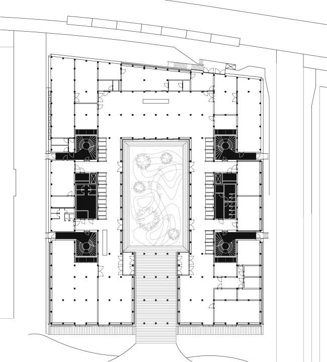
Модульное офисное здание HORTUS по проекту Herzog & de Meuron возведено под Базелем из возобновляемых и вторично используемых материалов, а также должно за 31 год «окупить» с помощью фотоэлектрических панелей всю затраченную при строительстве энергию.
читать дальшеОфисное здание HORTUS
Фото © Maris Mezulis
Офисное здание HORTUS
Фото © Maris Mezulis
Офисное здание HORTUS
Фото © Maris Mezulis
Офисное здание HORTUS
Фото © Maris Mezulis
Офисное здание HORTUS
Фото © Maris Mezulis
Офисное здание HORTUS
Фото © Maris Mezulis
Офисное здание HORTUS
Фото © Maris Mezulis
Офисное здание HORTUS
Фото © Maris Mezulis
Офисное здание HORTUS
Фото © Maris Mezulis
Офисное здание HORTUS
Фото © Maris Mezulis
Офисное здание HORTUS
Фото © Maris Mezulis
Офисное здание HORTUS
Фото © Maris Mezulis
Офисное здание HORTUS
Фото © Maris Mezulis
Офисное здание HORTUS
Фото © Maris Mezulis
Офисное здание HORTUS
Фото © Maris Mezulis
Офисное здание HORTUS
Фото © Maris Mezulis
Офисное здание HORTUS
Фото © Maris Mezulis
Офисное здание HORTUS
Фото © Maris Mezulis
Офисное здание HORTUS
Фото © Maris Mezulis
Офисное здание HORTUS
Фото © Maris Mezulis
Офисное здание HORTUS
Фото © Maris Mezulis
Офисное здание HORTUS
Фото © Maris Mezulis
Офисное здание HORTUS
Фото © Maris Mezulis
Офисное здание HORTUS
Фото © Maris Mezulis
Офисное здание HORTUS
Фото © Maris Mezulis
Офисное здание HORTUS
Фото © Maris Mezulis
Офисное здание HORTUS
© Herzog & de Meuron
Офисное здание HORTUS
© Herzog & de Meuron
Офисное здание HORTUS
Фото © Herzog & de Meuron; фотограф: Alexander Franz
Офисное здание HORTUS
Фото © Senn; фотограф: David Walter
Офисное здание HORTUS
Фото © Senn; фотограф: David Walter
Офисное здание HORTUS
Фото © Senn; фотограф: David Walter
Офисное здание HORTUS
Фото © Senn; фотограф: David Walter
Офисное здание HORTUS
© Herzog & de Meuron
Офисное здание HORTUS
© Herzog & de Meuron
Офисное здание HORTUS
© Herzog & de Meuron
Офисное здание HORTUS
© Herzog & de Meuron
Офисное здание HORTUS
© Herzog & de Meuron
Офисное здание HORTUS
© Herzog & de Meuron
Офисное здание HORTUS
© Herzog & de Meuron
Офисное здание HORTUS
© Herzog & de Meuron
Офисное здание HORTUS
© Herzog & de Meuron
Избранные архитекторы:
Проект из каталога (случайный выбор)
Избранные постройки:
Зарубежные новости
01.10.2025
Пиранези для первокурсников
30.09.2025
Больше арок
26.09.2025
Бумеранг на скалах
25.09.2025
Архитектурная «дипломатия»
24.09.2025