Аграрный экспо- и конференц-центр дельты Хуанхэ
Фото © ZY Studio
Аграрный экспо- и конференц-центр дельты Хуанхэ
/ Yellow River Delta Agricultural Product Trading Service Center
информация:
-
статус
реализовано -
даты
02.2020 — 02.2021 / — 09.2022 -
место
Китай, Биньчжоу -
координаты
37.339867, 117.946135 -
функция
Торгово-коммерческий / выставочный комплекс -
теги
Фасад, Цвет в архитектуре, Опоры -
площадь участка
15,46 га -
общая площадь
116 084 м2

Архитектурный проектно-исследовательский институт Чжэцзянского университета (UAD) /
Architectural Design & Research Institute of Zhejiang University (UAD) / КитайАграрный экспо- и конференц-центр дельты Хуанхэ
Фото © ZY Studio
Архи.ру об этом объекте:
10.06.2025
Нина Фролова. Волны на фасаде
Проект выставочного комплекса для агропромышленного комплекса в Биньчжоу – попытка сделать экспо-центр полноценной частью города. Архитекторы – проектный институт Чжэцзянского университета (UAD).
читать дальшеАграрный экспо- и конференц-центр дельты Хуанхэ
Фото © ZY Studio
Аграрный экспо- и конференц-центр дельты Хуанхэ
Фото © ZY Studio
Аграрный экспо- и конференц-центр дельты Хуанхэ
Фото © ZY Studio
Аграрный экспо- и конференц-центр дельты Хуанхэ
Фото © ZY Studio
Аграрный экспо- и конференц-центр дельты Хуанхэ
Фото © ZY Studio
Аграрный экспо- и конференц-центр дельты Хуанхэ
Фото © ZY Studio
Аграрный экспо- и конференц-центр дельты Хуанхэ
Фото © ZY Studio
Аграрный экспо- и конференц-центр дельты Хуанхэ
Фото © ZY Studio
Аграрный экспо- и конференц-центр дельты Хуанхэ
Фото © ZY Studio
Аграрный экспо- и конференц-центр дельты Хуанхэ
Фото © ZY Studio
Аграрный экспо- и конференц-центр дельты Хуанхэ
Фото © ZY Studio
Аграрный экспо- и конференц-центр дельты Хуанхэ
Фото © ZY Studio
Аграрный экспо- и конференц-центр дельты Хуанхэ
Фото © ZY Studio
Аграрный экспо- и конференц-центр дельты Хуанхэ
Фото © ZY Studio
Аграрный экспо- и конференц-центр дельты Хуанхэ
Фото © ZY Studio
Аграрный экспо- и конференц-центр дельты Хуанхэ
Фото © ZY Studio
Аграрный экспо- и конференц-центр дельты Хуанхэ
Фото © ZY Studio
Аграрный экспо- и конференц-центр дельты Хуанхэ
Фото © ZY Studio
Аграрный экспо- и конференц-центр дельты Хуанхэ
Фото © ZY Studio
Аграрный экспо- и конференц-центр дельты Хуанхэ
Фото © ZY Studio
Аграрный экспо- и конференц-центр дельты Хуанхэ
Фото © ZY Studio
Аграрный экспо- и конференц-центр дельты Хуанхэ
Фото © ZY Studio
Аграрный экспо- и конференц-центр дельты Хуанхэ
Фото © ZY Studio
Аграрный экспо- и конференц-центр дельты Хуанхэ
Фото © ZY Studio
Аграрный экспо- и конференц-центр дельты Хуанхэ
Фото © ZY Studio
Аграрный экспо- и конференц-центр дельты Хуанхэ
Фото © ZY Studio
Аграрный экспо- и конференц-центр дельты Хуанхэ
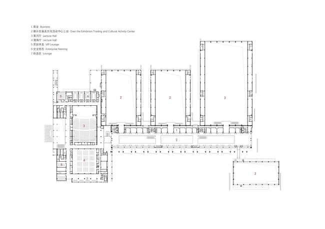
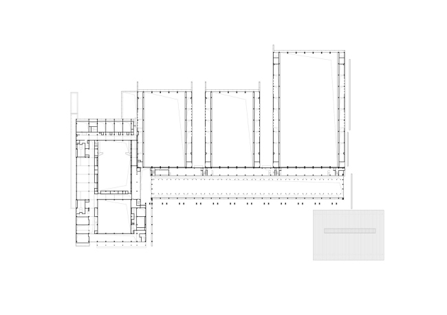
© Architectural Design & Research Institute of Zhejiang University
Аграрный экспо- и конференц-центр дельты Хуанхэ
© Architectural Design & Research Institute of Zhejiang University
Аграрный экспо- и конференц-центр дельты Хуанхэ
© Architectural Design & Research Institute of Zhejiang University
Аграрный экспо- и конференц-центр дельты Хуанхэ
© Architectural Design & Research Institute of Zhejiang University
Аграрный экспо- и конференц-центр дельты Хуанхэ
© Architectural Design & Research Institute of Zhejiang University
Аграрный экспо- и конференц-центр дельты Хуанхэ
© Architectural Design & Research Institute of Zhejiang University
Аграрный экспо- и конференц-центр дельты Хуанхэ
© Architectural Design & Research Institute of Zhejiang University
Избранные архитекторы:
Проект из каталога (случайный выбор)
Избранные постройки:
Зарубежные новости
08.10.2025
Руины. Второе дыхание
03.10.2025
С открытым сердцем
01.10.2025
Пиранези для первокурсников
30.09.2025
Больше арок
26.09.2025