Размещено на портале Архи.ру (www.archi.ru)

27.06.2022

Взлет многофункционального подхода

Алёна Кузнецова
Объект:
Аэросити. Концепция застройки территории старого аэропорта в Ростове-на-Дону
Адрес:
Россия, Ростов-на-Дону.
Архитектор:
Андрей Асадов
Александр Асадов
Мастерская:
АБ ASADOV
Авторский коллектив:
Архитектурная концепция: Бюро ASADOVА.Р.Асадов, А.А.Асадов, О.Кузьмина, Н.Кучеров, В.Шкуро, А.Копылов, А.Шершнева, Д.Космаченко
Проект планировки территории: ГАУ РО «РНИИПИ Градостроительства»
Консультанты проекта: И.Далаксакуашвили, А.Полянский, С.Трухачев

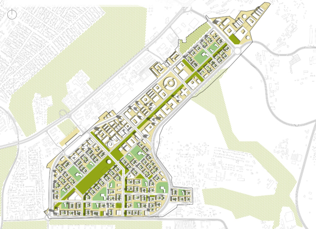
Бюро ASADOV представило концепцию развития территории старого аэропорта Ростова-на-Дону. Четырехкилометровый бульвар на месте взлетно-посадочной полосы и квартальная застройка, помноженные на широкий диапазон общественно-деловых функций, включая, может быть, даже правительственную, позволят району претендовать на роль новой точки притяжения с высоким уровнем самодостаточности.

Идея реновации территории старого аэропорта Ростова-на-Дону витала в воздухе больше десяти лет – с тех пор, как город получил право принимать матчи Чемпионата мира по футболу 2018 года. Уже тогда было понятно – как только введут в эксплуатацию современный «Платов», территория старого аэропорта, расположенная ощутимо ближе к освоенной части города: до Дома правительства 6,4 км, но до «Платова» оттуда же все 35 км, – станет хорошей greenfield-площадкой для нового строительства и всестороннего развития. Ее площадь порядка 360 га, что сопоставимо с территорией московского «Сколково».

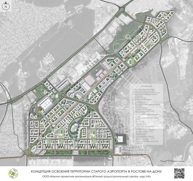
Одну из первых концепций развития территории подготовил французский архитектор Антуан Бешю, затем к работе подключился Алексей Полянский, а «НПО Южный градостроительный центр» под руководством Сергея Трухачева инициировало и представило общественности альтернативный проект

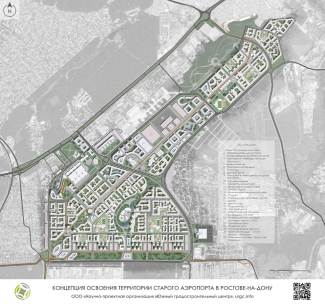
Концепция освоения территории старого аэропорта в Ростове-на-Дону
Концепция освоения территории старого аэропорта в Ростове-на-Дону
© «НПО Южный градостроительный центр»

Кроме того, рекомендации относительно стратегии развития и плотности застройки дал ДОМ.рф, а «конструктор» для среднеэтажных кварталов, приближенных по масштабу к историческому городу, был взят из арсенала одного из российских застройщиков, который успешно опробовал его в других регионах.

Все эти проекты и концепции были изучены, рассмотрены, а их предложения – по возможности учтены архитекторами АБ ASADOV, которые начали работать над своим предложением для территории старого ростовского аэропорта в 2021 году. Стоит отметить, что релевантный опыт у мастерской Асадовых уже есть – архитекторы, в частности, не только проектировали новый аэропорт в Саратове, но и работали над концепцией последующего развития территории старого аэропорта в том же городе.
Аэросити. Концепция застройки территории старого аэропорта в Ростове-на-Дону
Аэросити. Концепция застройки территории старого аэропорта в Ростове-на-Дону
© АБ ASADOV

Аэросити. Концепция застройки территории старого аэропорта в Ростове-на-Дону
Аэросити. Концепция застройки территории старого аэропорта в Ростове-на-Дону
© АБ ASADOV
Поли-город
Главная особенность нового района, унаследованная от предыдущих концепций и принципиально поддержанная администрацией – ни в коем случае он не должен стать «спальной» застройкой. Под общественные здания и офисы – причем самого разного профиля, вплоть до правительственного центра, куда, пока что гипотетически, могла бы переехать администрация – отведено едва ли не столько же места, сколько под жилье. Район «Аэросити» призван стать новым городским центром, драйвером развития полицентричности. 
 
Игорь Далаксакуашвили, главный архитектор Ростовской области

Концепция старого аэропорта формируется не как очередной жилой район типа Левенцовки 3.0, а как новый общественно-деловой центр для ростовской агломерации. Да, у него будет и жилая функция, но район этот не только для тех, кто в нем будет жить. Именно поэтому планируемый на территории старого аэропорта объем жилья минимум в полтора раза меньше, чем в новых спальных районах.

Источник

 
Алексей Полянский, председатель правления Союза архитекторов Ростовской области

Территория, безусловно, никогда не рассматривалась как исключительно спальный район. Больше – как новый общественно-административный центр города, который мог бы на себя принять часть функций центральной части города и разгрузил ее. А также нес какие-то новые функции, которые бы укрепили позиции Ростова как столицы Южного Федерального округа.

Источник


Отчасти размещению общественно-деловых функций способствовала и специфика территории: ее широкая часть расположена на юге, ближе к обжитым районам, выше же, к северо-востоку, направлен протяженный прямоугольник. Посередине к северной границе примыкает промзона, требующая 300 м санитарного отступа – жилье здесь строить нельзя, а административные и прочие функции размещать можно. Так что максимум многофункциональности сосредоточен в средней части территории, образуя своего рода «талию». В северной оконечности расположился треугольник выставочно-конгрессного центра.
Аэросити. Концепция застройки территории старого аэропорта в Ростове-на-Дону
Аэросити. Концепция застройки территории старого аэропорта в Ростове-на-Дону
© АБ ASADOV
Многофункциональная культурно-спортивная и деловая часть. Аэросити. Многофукнциональная культурно-деловая часть. Концепция застройки территории старого аэропорта в Ростове-на-Дону
Многофункциональная культурно-спортивная и деловая часть. Аэросити. Многофукнциональная культурно-деловая часть. Концепция застройки территории старого аэропорта в Ростове-на-Дону
© АБ ASADOV

Между тем у этого, определенно, правильного, решения, помимо причин технического свойства и доброй воли администрации и коллег, есть две особенности. Первая – район не просто насыщен офисами в дополнение к жилью, а действительно, по-хорошему многофункционален как небольшой город – что вполне соответствует и правилам современной урбанистики, и исходным условиям: гигантскому масштабу территории, ее почти совершенной свободе от предшествующей застройки, удачному расположению «близкого сателлита» градостроительно развитой части Ростова. 

Помимо правительственного центра, налоговой инспекции и офисных зданий в многофункциональной «талии» расположены: технопарк и инновационный центр, спортивный, медицинский, культурный и даже архивный кластер. Центром широкой южной, преимущественно жилой, части станет культурный кластер с хореографической школой и «якорем» в виде концертного зала – своего рода ответ расположенному на севере конгрессно-выставочному центру. 
Аэросити. Концепция застройки территории старого аэропорта в Ростове-на-Дону. Функциональная схема
Аэросити. Концепция застройки территории старого аэропорта в Ростове-на-Дону. Функциональная схема
© АБ ASADOV
Европейские кварталы
Между тем помимо разнообразия программы, оговоренной, в целом, в задании, архитекторы ASADOV стремились распределить участки так, чтобы, насколько это было возможно, избежать моно-функциональности – в частности, «вмешать» жилую функцию, в основном гостиницы, в центральную деловую часть. 
Аэросити. Концепция застройки территории старого аэропорта в Ростове-на-Дону. Соотношение жилой и общественно-деловой функции
Аэросити. Концепция застройки территории старого аэропорта в Ростове-на-Дону. Соотношение жилой и общественно-деловой функции
© АБ ASADOV

Той же задаче отвечают вынесенный к югу концертный и выставочный залы, и, конечно же, ФОКи, школы и поликлиники, а также предназначенные под аренду внешние контуры первых этажей жилых кварталов, большая часть которых сосредоточена в широкой южной части и предназначена к первым очередям строительства – поскольку обеспечить экономическую поддержку проекта за счет продажи жилья тоже необходимо. 
 
Андрей Асадов, АБ ASADOV

На территории есть явная жилая и общественная зона, но нам важно было перемешать функции – в жилье вплести элементы общественной структуры, и наоборот. В жилые кварталы равномерно встроены отдельные объекты – спортивные и культурные, также инфраструктура закладывалась в первые этажи домов, по аналогии с московской реновацией – это автоматически оживляет улицы и делает их обитаемыми. Для реновации, кстати, когда мы делали конкурсный проект, то вместе с экономистами рассчитывали оптимальное соотношение жилой и нежилой функции в городе. Получилась оптимальная пропорция: 80 процентов жилья и 20 инфраструктуры. Этих 20 процентов достаточно, чтобы все трудоспособные жители территории имели рабочие места – в сфере обслуживания, в коворкингах или небольших офисных пространствах. В ростовском проекте за счет всех общественных объектов это соотношение выше – 60 на 40, что даст дополнительные рабочие места прилегающим районам и автоматически разгрузит центр.


Другой особенностью планируемой застройки, в большей степени относящейся к жилью, стала квартальная типология и небольшая этажность в 6-10 этажей с отдельными высотными акцентами. Поблизости, вдоль улицы Берберовской, располагается ЖК «Вересаево» высотой в 20 этажей – в то время как новый район «Аэросити» предлагает альтернативу из, скажем так, области Нового урбанизма и современных веяний: сравнительно небольшие замкнутые кварталы, дворы без машин, разнотоновые и разновысотные секции для разнообразия фасадов. Такой подход близок и архитекторам АБ ASADOV, – но он же был задан и стандартами КБ «Стрелка» и ДОМ.рф, и девелоперским «конструктором», который был предложен авторам для работы. «Фактически, одной из задач была адаптация стандартов застройки от ДОМ.рф под уникальные условия данной площадки. – Рассказывает Андрей Асадов. – Задача оказалась непростой из-за большого числа нормативных особенностей и ограничений, потребовалась длительная и дотошная работа по детализации. Но было интересно». 
Вид с юга, на 1 плане – ЖК «Вересаево». Аэросити. Концепция застройки территории старого аэропорта в Ростове-на-Дону
Вид с юга, на 1 плане – ЖК «Вересаево». Аэросити. Концепция застройки территории старого аэропорта в Ростове-на-Дону
© АБ ASADOV
Аэросити. Концепция застройки территории старого аэропорта в Ростове-на-Дону
Аэросити. Концепция застройки территории старого аэропорта в Ростове-на-Дону
© АБ ASADOV

Планируется, что в новых домах будет жить почти 57 тысяч человек. Социальная инфраструктура предполагает семь детских садов, шесть школ, поликлиники и отделение скорой помощи. 
Линейный парк: от «агоры» к парку (и храму)
Все концепции развития территории старого аэропорта Ростова-на-Дону так или иначе объединяет одно решение – превратить бывшую взлетно-посадочную полосу в пешеходную зону, главную ось, которая свяжет цепочку общественных пространств и жилые кварталы. Причин несколько, одна из них – разбирать конструкцию посадочной полосы очень дорого, ее сохранили даже на московской Ходынке. 
Аэросити. Концепция застройки территории старого аэропорта в Ростове-на-Дону
Аэросити. Концепция застройки территории старого аэропорта в Ростове-на-Дону
© АБ ASADOV

Кроме того, новому району, конечно же, требуется общественная ось – пространственный «хребет», способный связать воедино всю территорию. Так вот, длина главного бульвара в проекте – порядка 4 км, он начинается в северо-восточной части от конгрессно-выставочного центра и ведет, не отклоняясь от прямой, на юго-запад, к «шарниру» автомобильной развязки, которым территория стыкуется с обжитой частью города. Три километра из этих четырех заняты тяжелыми бетонными плитами, демонтировать которые проблематично, но если сохранить их as is, они превратят общественную ось в «бетонную пустыню». Чтобы этого избежать, архитекторы предложили отнестись к взлетной полосе как к эксплуатируемой крыше и оживить ее – не повсеместно, но фрагментами – по принципу «зеленой кровли». Разместили на бетонном поле островки зелени, павильоны и элементы благоустройства. Над кольцом южной развязки разместили дублирующее пешеходное кольцо со сходами в разные стороны, призванное улучшить связность с городом. 
Аэросити. Концепция застройки территории старого аэропорта в Ростове-на-Дону
Аэросити. Концепция застройки территории старого аэропорта в Ростове-на-Дону
© АБ ASADOV

В широкой – и в большей степени жилой – части района к бульвару примыкает парк. Авторы сравнивают его в Центральным парком в Нью-Йорке: он прямоугольный, в центре планируется водоем. Парк присутствовал в «альтернативном» проекте Сергея Трухачева, но был отнесен южнее. Теперь он – масштабное расширение бульвара, ядро территории и преддверие концертного зала, который расположен на южном торце зеленого прямоугольника. Его северный торец замыкает храм Ксении Петербуржской; у южной автомобильно-пешеходной развязки запланирован еще один храм, поменьше, в северной части территории – часовня. Так что архитекторы полушутя называют осевой бульвар дорогой от агоры, чью роль исполняет конгресс-центр, к храму. 
Аэросити. Концепция застройки территории старого аэропорта в Ростове-на-Дону
Аэросити. Концепция застройки территории старого аэропорта в Ростове-на-Дону
© АБ ASADOV
Аэросити. Концепция застройки территории старого аэропорта в Ростове-на-Дону
Аэросити. Концепция застройки территории старого аэропорта в Ростове-на-Дону
© АБ ASADOV

«Притоки» зеленого бульвара проникают в глубину кварталов, оплетая весь район сетью прогулочных и рекреационных пространств. Бульвар пересекают семь поперечных проездов, еще один, параллельный, проезд дублирует его по всей длине. 

Концепция бюро ASADOV была утверждена на совете при губернаторе, на ее базе АУ РО «РНИИПИ Градостроительства» разработало проект планировки территории, который в скором времени представят на общественных слушаниях. Далее последует детальная разработка каждой очереди. Застройку планируют начать уже в 2023 году, синхронизируя возведение жилья, инженерной инфраструктуры и социальных объектов.