Размещено на портале Архи.ру (www.archi.ru)

07.04.2022

Градсовет Петербурга 6.04.2022

Алёна Кузнецова
Объект:
Гостиница на Уральской
Адрес:
Россия, Санкт-Петербург. улица Уральская, дом 8б, литера А
Архитектурно-градостроительный облик вестибюля станции метро «Электросила»
Адрес:
Россия, Санкт-Петербург. Московский проспект, д. 141А, литер А
Мастерская:
Настас и партнеры
Архитектурная мастерская Сахновского
Институт «Трансэкопроект»
Авторский коллектив:
ГАП: В.А. Сахновский
ГИП: М.Б. Шамонина

Третий подход к гостинице на Уральской, новый вестибюль станции метро «Электросила» и анонс изменений в 820-й закон.

Гостиница на Уральской / повторно

Санкт-Петербург, улица Уральская, дом 8б, литера А
Проектировщик: Архитектурное бюро «Настас и партнеры»
Заказчик: ООО «Торговая Компания «Невская линия»
Обсуждали: архитектурно-градостроительный облик


Бюро Дениса Настаса бьется над гостиницей на Уральской улице уже почти год. Первый вариант был представлен в мае 2021, когда на участке законодательно еще не было необходимости сохранять одноэтажный дом Фишера, построенный в начале XX века. Вторая итерация учитывала историческую постройку. А третья, нынешняя, – ужалась в ответ на многочисленные замечания экспертов по поводу транспортной схемы и внутренних планировок. 
Гостиница на Уральской. Панорамный вид в створе улиц Железноводской и Уральской © Настас и партнеры
Гостиница на Уральской. Панорамный вид в створе улиц Железноводской и Уральской
© Настас и партнеры
Гостиница на Уральской. Вариант 2. Панорамный вид в створе улиц Железноводской и Одоевского © Настас и партнеры / изображение предоставлено пресс-службой КГА
Гостиница на Уральской. Вариант 2. Панорамный вид в створе улиц Железноводской и Одоевского
© Настас и партнеры / изображение предоставлено пресс-службой КГА
Гостиница на Уральской. Вариант 3. Панорамный вид с пересечения улиц Уральская и Одоевского  © Настас и партнеры / изображение предоставлено пресс-службой КГА
Гостиница на Уральской. Вариант 3. Панорамный вид с пересечения улиц Уральская и Одоевского
© Настас и партнеры / изображение предоставлено пресс-службой КГА

После очередной переработки гостиница «сбросила» 1000 м2 и редуцировалась до односекционного здания, освободив пространство для нормативного озеленения, погрузки и маневров туристических автобусов. Это, впрочем, не сказалось на экономике проекта, поскольку сократились площади номеров и исчезли двухуровневые варианты. 
Гостиница на Уральской. Вариант 3. Генплан
Гостиница на Уральской. Вариант 3. Генплан
© Настас и партнеры / изображение предоставлено пресс-службой КГА
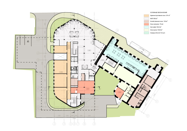
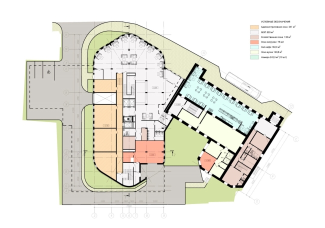
Гостиница на Уральской. Вариант 3. План 1 этажа
Гостиница на Уральской. Вариант 3. План 1 этажа
© Настас и партнеры / изображение предоставлено пресс-службой КГА

Рецензент Владимир Реппо похвалил работу: авторы наконец нащупали верный путь, пришли к симметричному зданию и подготовили ясный генплан, оставшиеся же шероховатости возможно отрегулировать, не влияя на объемное решение. Другие эксперты не торопились отпускать Дениса Настаса и, как видится, подготовили почву для четвертого варианта, попутно заметив, что такому сложному участку нужен конкурс и опытный проектировщик.  
Гостиница на Уральской. Вариант 3. Перспективный вид с ул. Уральская
Гостиница на Уральской. Вариант 3. Перспективный вид с ул. Уральская
© Настас и партнеры / изображение предоставлено пресс-службой КГА

Круг вопросов остался примерно тем же и касался транспортных вопросов и проблемных планировок. Сергей Орешкин отметил, что номера для маломобильных людей в брандмауэрной части здания «получились страшные», также его вновь смутили инсоляционные возможности окон-бойниц, которые вызвали у Владимира Григорьева другой вопрос – пролезет ли в них пожарный в экипировке? Олегу Харченко не понравилось расположение входа: такси будет останавливаться у перекрестка, создавая помехи и без того интенсивному движению. В какой-то момент обсуждение даже посчитали бессмысленным, а проект невозможным, поскольку автобус должен выезжать из двора сразу на перекресток, однако автор попытался заверить, что необходимые согласования получены.   
Гостиница на Уральской. Вариант 3. Панорамный вид в створе Уральской улицы
Гостиница на Уральской. Вариант 3. Панорамный вид в створе Уральской улицы
© Настас и партнеры / изображение предоставлено пресс-службой КГА

Евгений Герасимов придал дискуссии новый виток, вспомнив про первый вариант гостиницы, который предполагал снос дома Фишера и был «гораздо крепче в градостроительном отношении». Архитектор высказал мнение, что измерять ценность застройки только лишь возрастом абсурдно и вредно для города: «Мучаются авторы, мучаются девелоперы, отельеры и градсовет, пытаясь выжать что-то удобоваримое из этой ситуации. Мы боремся со следствиями, а не с причинами. Предлагаю профессионалам вернуться к обсуждению корректировки 820 закона».
Гостиница на Уральской. Вариант 3. Перспективный вид с пересечения улиц Уральская и Одоевского
Гостиница на Уральской. Вариант 3. Перспективный вид с пересечения улиц Уральская и Одоевского
© Настас и партнеры / изображение предоставлено пресс-службой КГА

Оказалось, что корректировки уже ведутся, об этом сообщил Павел Соколов. Расширил заместитель председателя КГИОП Алексей Михайлов: «Превентивная охрана сыграла свою роль, но сейчас мы уже в большей степени сталкиваемся с негативными последствиями. Проработка соответствующего раздела закона запланирована на 2022 год. ТЗ включает пожелание уйти от определения историчности исключительно по году к категории «ценной средовой застройки». Мы сосредоточились на центральных районах и надеемся в этом году сформировать поадресный перечень ценной застройки. Это вызовет большую дискуссию, поэтому мы бы представили перечень на градсовете». Александр Кононов напомнил, что 820-й закон спас исторический центр от «московского пути» и сохранил его цельность.
Гостиница на Уральской. Вариант 3. Развертки
Гостиница на Уральской. Вариант 3. Развертки
© Настас и партнеры / изображение предоставлено пресс-службой КГА

Итог: «за» проголосовали 3 члена градсовета, «против» – 17. Решено рекомендовать доработать архитектурно-градостроительный облик.

Подробнее о проекте ->
Вестибюль станции метро «Электросила»

Санкт-Петербург, Московский проспект, дом 141а
Проектировщик: АО «Трансэкопроект»
Заказчик: Комитет по развитию транспортной инфраструктуры Санкт-Петербурга
Обсуждали: архитектурно-градостроительный облик 


«Электросила» – одна из четырех типовых станций, спроектированных Ароном Гецкиным и Валентиной Шуваловой на Московском проспекте. Поскольку район сильно уплотнился по сравнению с 1960 годами, пропускная система перестала справляться с пассажиропотоком, назрела необходимость в реконструкции. Проект подготовила мастерская Виктора Сахновского, которая также занималась вестибюлем станции «Парк Победы».   
Архитектурно-градостроительный облик вестибюля станции метро «Электросила»
Архитектурно-градостроительный облик вестибюля станции метро «Электросила»
© Архитектурная мастерская Сахновского, Институт «Трансэкопроект» / изображение предоставлено пресс-службой КГА

Павильон согласно нормам реконструкции не может выходить за границы существующего участка, поэтому, чтобы уместить новые турникеты, кассы, зону досмотра и административные помещения, пришлось сделать его двухэтажным. Ради улучшения логистики движения потоков пассажиров вход в вестибюль архитекторы развернули от Московского проспекта в сторону здания «Ленгипротранса». Цветовое и стилистическое решение призвано увязать павильон в ансамбль с новыми зданиями на площади – БЦ Fort Tower и семиэтажным офисным блоком. Для отделки архитекторы выбрали светлый натуральный камень и темно-коричневый гранит для порталов входа и выхода. Витраж украшает эмблема завода «Электросила».     
Архитектурно-градостроительный облик вестибюля станции метро «Электросила» © Архитектурная мастерская Сахновского, Институт «Трансэкопроект» / изображение предоставлено пресс-службой КГА
Архитектурно-градостроительный облик вестибюля станции метро «Электросила»
© Архитектурная мастерская Сахновского, Институт «Трансэкопроект» / изображение предоставлено пресс-службой КГА
Архитектурно-градостроительный облик вестибюля станции метро «Электросила» © Архитектурная мастерская Сахновского, Институт «Трансэкопроект» / изображение предоставлено пресс-службой КГА
Архитектурно-градостроительный облик вестибюля станции метро «Электросила»
© Архитектурная мастерская Сахновского, Институт «Трансэкопроект» / изображение предоставлено пресс-службой КГА
Архитектурно-градостроительный облик вестибюля станции метро «Электросила» © Архитектурная мастерская Сахновского, Институт «Трансэкопроект» / изображение предоставлено пресс-службой КГА
Архитектурно-градостроительный облик вестибюля станции метро «Электросила»
© Архитектурная мастерская Сахновского, Институт «Трансэкопроект» / изображение предоставлено пресс-службой КГА
Архитектурно-градостроительный облик вестибюля станции метро «Электросила» © Архитектурная мастерская Сахновского, Институт «Трансэкопроект» / изображение предоставлено пресс-службой КГА
Архитектурно-градостроительный облик вестибюля станции метро «Электросила»
© Архитектурная мастерская Сахновского, Институт «Трансэкопроект» / изображение предоставлено пресс-службой КГА
Архитектурно-градостроительный облик вестибюля станции метро «Электросила» © Архитектурная мастерская Сахновского, Институт «Трансэкопроект» / изображение предоставлено пресс-службой КГА
Архитектурно-градостроительный облик вестибюля станции метро «Электросила»
© Архитектурная мастерская Сахновского, Институт «Трансэкопроект» / изображение предоставлено пресс-службой КГА
Архитектурно-градостроительный облик вестибюля станции метро «Электросила» © Архитектурная мастерская Сахновского, Институт «Трансэкопроект» / изображение предоставлено пресс-службой КГА
Архитектурно-градостроительный облик вестибюля станции метро «Электросила»
© Архитектурная мастерская Сахновского, Институт «Трансэкопроект» / изображение предоставлено пресс-службой КГА
Архитектурно-градостроительный облик вестибюля станции метро «Электросила» © Архитектурная мастерская Сахновского, Институт «Трансэкопроект» / изображение предоставлено пресс-службой КГА
Архитектурно-градостроительный облик вестибюля станции метро «Электросила»
© Архитектурная мастерская Сахновского, Институт «Трансэкопроект» / изображение предоставлено пресс-службой КГА

Рецензент Сергей Бобылев отметил два момента, вызвавших у него недоумение: ось симметрии, ориентированная на здание ЛенГипроТранса вместо Московского проспекта, а также одинаковое акцентирование входа и выхода. С ним согласился Михаил Мильчик, который при этом положительно оценил попытку добиться ансамблевости.
Архитектурно-градостроительный облик вестибюля станции метро «Электросила»
Архитектурно-градостроительный облик вестибюля станции метро «Электросила»
© Архитектурная мастерская Сахновского, Институт «Трансэкопроект» / изображение предоставлено пресс-службой КГА

Юрий Земцов высказал мнение, что выбранный архитектурный язык не уместен для утилитарного сооружения: «станцию не нужно вгонять в сталинский масштаб окружающих домов» и «поднимать аттик как на Казанском соборе». Сергей Орешкин поддержал: «Стилистика лужковского ампира себя не зарекомендовала, это не петербургский подход. Не хватило чистоты, которая была в павильонах Гецкина, простоты, белизны. Нужно меньше декора и помпезности».
Архитектурно-градостроительный облик вестибюля станции метро «Электросила»
Архитектурно-градостроительный облик вестибюля станции метро «Электросила»
© Архитектурная мастерская Сахновского, Институт «Трансэкопроект» / изображение предоставлено пресс-службой КГА

В этом же ключе высказался и Никита Явейн: «Пахнуло 90-ми годами, самыми нехорошими какими-то – полированный гранит, богато, жесткое смешение стилей». Чтобы вестибюль вписался в «сумбурный контекст», он предложил переработать проект в сторону минимализма. 
Архитектурно-градостроительный облик вестибюля станции метро «Электросила»
Архитектурно-градостроительный облик вестибюля станции метро «Электросила»
© Архитектурная мастерская Сахновского, Институт «Трансэкопроект» / изображение предоставлено пресс-службой КГА

Ту же мысль развивал и Владимир Григорьев: в изменившемся ансамбле площади лучше идти от противопоставления – вместо имитации стоечно-балочной конструкции и колоннады выбрать крупные формы, распластанный объем первого этажа и эстетику современного функционализма.   
Архитектурно-градостроительный облик вестибюля станции метро «Электросила»
Архитектурно-градостроительный облик вестибюля станции метро «Электросила»
© Архитектурная мастерская Сахновского, Институт «Трансэкопроект» / изображение предоставлено пресс-службой КГА

Итог: «за» проголосовали 3 члена градсовета, «против» – 17. Решено рекомендовать доработать архитектурно-градостроительный облик.

Подробнее о проекте ->