Размещено на портале Архи.ру (www.archi.ru)

28.07.2020

Комфортный город в себе

Юлия Тарабарина
Объект:
Жилой комплекс “homecity”
Адрес:
Россия, Румянцево.
Застройка земельного участка в районе деревни Румянцево
Адрес:
Россия, Румянцево.
Офисный комплекс Comcity, фаза Альфа
Адрес:
Россия, Румянцево. Киевское шоссе, 22-й километр, 6с1
Архитектор:
Игорь Шварцман
Мастерская:
АМ Сергей Киселев и Партнеры

Казалось бы, такое невозможно среди человейников, неритмично чередующихся со старыми дачами. И между тем жилой комплекс на территории бизнес-парка Comcity предлагает именно комфортную среду среднего города: не слишком высокую и умеренно-приватную, как вариант идеала современной урбанистики.

Участок жилого комплекса homecity, название которого образовано от «материнского» Comcity, расположен на территории, принадлежащей тому же владельцу, что и бизнес-центр, стеклянные крылья которого можно видеть вскоре после выезда из Москвы на Киевское шоссе, справа. Comcity здесь принадлежит территория, вытянутая протяженной трапецией, расширяющейся по мере удаления от шоссе. Если мысленно обвести ее треугольником, то острый нос окажется где-то на шоссе. В узкой части территории, ближе к шоссе, уже в 2014 году по проекту чешских архитекторов Cigler Marani было построено первое здание бизнес-парка Comcity. Через два года владельцы комплекса обратились к архитектрам СКиП с просьбой изучить терриорию с точки зрения возможности добавления к доминирируемой офисной функции некоторого количества жилой, ради корректировки ППТ. Тогда СКиП предложили несколько вариантов застройки северной части территории.

Застройка земельного участка в районе деревни Румянцево, 2016. Варианты развития
Застройка земельного участка в районе деревни Румянцево, 2016. Варианты развития
© АМ Сергей Киселев и Партнеры

ППТ был изменен, хотя и достаточно деликатно, преобладание офисов сохранилось. В итоге сейчас территория поделена на 4 очереди: первая, Альфа – это работающее здание, второе, Браво – тоже офисное, его проектируют сразу за Альфой архитекторы СКиП, далее следует участок Чарли, тоже офисный, но пока без проекта, сейчас там наземная парковка, и замыкает линию единственный в общем составе жилой комплекс – Дельта, он же ЖК homecity на примерно 2000 жителей и 1513 квартир. Предполагается, что люди, работающие в офисах, смогут покупать в нем квартиры бизнес-класса и жить спокойно и удобно рядом с работой, что, как известно, представляет собой одну из идей современного постиндустриального города, в котором функции смешаны и до всех не очень далеко.
Жилой комплекс “HOMECITY”. Ситуационный план
Жилой комплекс “HOMECITY”. Ситуационный план
© АМ Сергей Киселев и Партнеры

Жилой комплекс состоит из пяти П-образных кварталов, по 5 секций в каждом, с одним ярусом подземной парковки под пятном дома и его двора. Кварталы расставлены вдоль пешеходного бульвара, который служит осью территории, их дворы раскрыты друг навстречу другу и формируют вместе с бульваром общественное пространство комплекса. Высота домов к бульвару понижается ступеньками: снаружи 9 этажей, внутри шесть. Прямо-таки идеал, озвученный в 2017 году в пилотных проектах конкурса московской реновации, но не воплощенный в жизнь в рамках этой программы.
Жилой комплекс “HOMECITY”
Жилой комплекс “HOMECITY”
© АМ Сергей Киселев и Партнеры

Но более того: помимо высотных ограничений, связанных с аэропортом Внуково, ГПЗУ предполагал сравнительно небольшой объем квадратных метров жилья, заказчики не планировали отступать от ограничений. Так что перед архитекторами даже стояла задача не превысить объем – это дало множество сквозных арок в первых этажах, обеспечивших проницаемость пространства на уровне пешехода. Такая проницаемость – еще один принцип их любимых фишек постиндустриальной урбанистики, поскольку она существенно облегчает жизнь и обогащает грани ее восприятия. Арки расположены в плохо инсолированных частях, не подходящих для квартир.
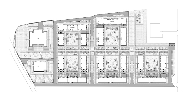
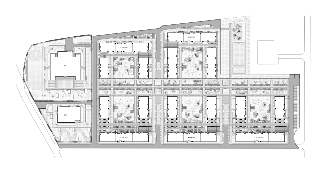
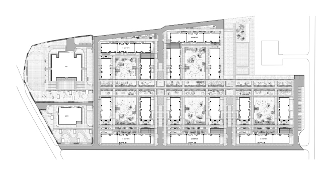
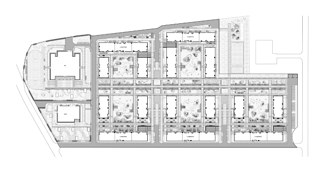
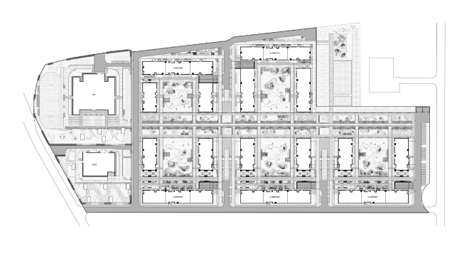
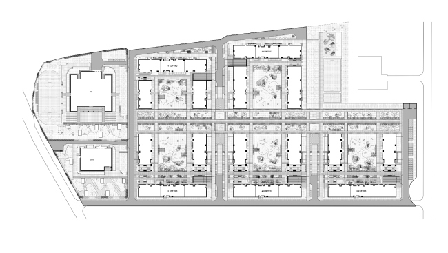
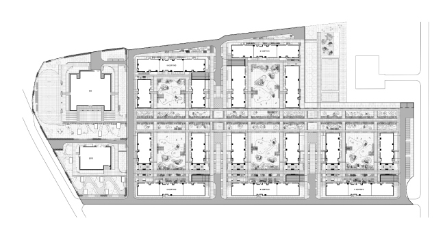
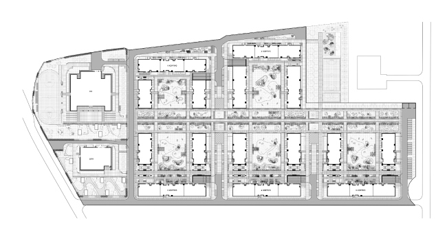
Жилой комплекс “HOMECITY”. Генплан
Жилой комплекс “HOMECITY”. Генплан
© АМ Сергей Киселев и Партнеры

Также в первых этажах, а отчасти даже в подземном уровне, запланированы общественные и коммерческие помещения, обеспечивающие городскую многофункциональность: кафе, магазины и сервисы разного профиля, аптека, банк, финтес и так далее. Список достаточно длинный, но он может изменяться в процессе становления комплекса. Высота первых этажей 4,5 метра. Для освещения помещений в подземном ярусе авторы проекта предусмотрели приямки – длинные и широкие, вдоль тыльных фасадов 1 и 2 корпусов. Над приямками перекинуты мостики, ведущие на первый этаж. Так что технические решение работает не только на многофункциональность, но и на разнообразие восприятия пространства развитого, городского типа, которое должно здесь постепенно возникнуть.
Жилой комплекс “HOMECITY”. План -1 этажа. Приямки видны на планах 1 и 2 корпусов
Жилой комплекс “HOMECITY”. План -1 этажа. Приямки видны на планах 1 и 2 корпусов
© АМ Сергей Киселев и Партнеры
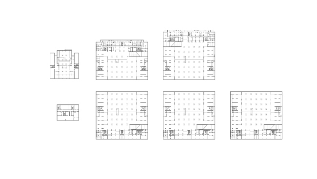
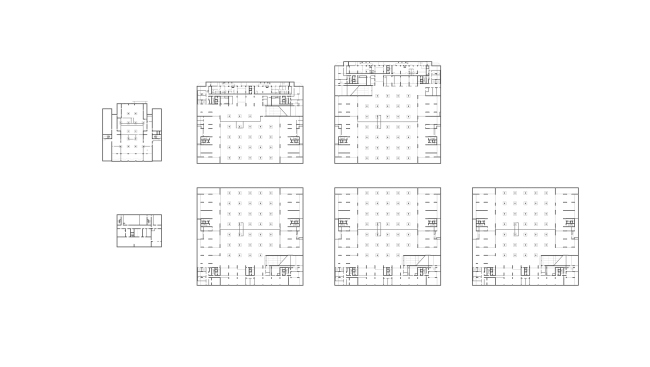
Жилой комплекс “HOMECITY”. План 1 этажа
Жилой комплекс “HOMECITY”. План 1 этажа
© АМ Сергей Киселев и Партнеры

Таким образом квартир в первых этажах стало ощутимо меньше, но те, которые остались, получили палисадники и собственные входы с улицы – еще один популярный современный прием, архитекторами СКиП уже опровованный в премиальном и отмеченном профессиональными наградами ЖК «Литератор», расположенном в самих Хамовниках. Сидя на террасе, из-за зеленой изгороди можно будет наблюдать за детьми во дворе.
 
Алексей Медведев, СКиП, главный архитектор проекта:
«В самых первых проработках 2016 года фигурировали 12-этажные доминанты, которые не нравились ни нам, ни закачикам. Очень удачно, что от них удалось отказаться и остановиться на более сдержанном, с точки зрения высотности, решении. В этом проекте мы не стремились создать какую-либо градостроительную доминанту, тем более что при расположении в глубине территории это было бы неуместно.

Мы понимаем комплекс Homecity как пример «жизни внутри», во многом самодостаточной, спокойной жизни – в природном окружении, но в городских условиях, сосредоточенной на приватном пространстве дворов и бульвара. Поэтому внешние фасады мы сделали темными, немного «крепостными», как внешний контур, а дворах стены светлые, почти белые».

Объемы домов похожи друг на друга и решены очень лаконично: ровная сетка окон, отличия намечены цветом вставок углубленных фиброцементных плит, сужающих простенки и визуально расширяющих окна. Полосатые решетки декорируют нишу для кондиционеров. Балконов нет, как и лоджий. Вверху фасады получают ленту «аттика», широкую полосу, которая ненавязчиво декорирует техэтаж кровли – с уровня земли его выступы не видны.
Жилой комплекс “HOMECITY”
Жилой комплекс “HOMECITY”
© АМ Сергей Киселев и Партнеры

Внешние фасады: обращенные вовне, а также к бульвару и стены, которыми дома «смотрят» друг на друга, действительно, решены подобно темной «коже» из клинкерной плитки, почти черной – графитового оттенка с легкими подпалинами. Простенки между окнами не просто сужены, в большинстве случаев они имеют одинаковую ширину и высоту, и образуют ровную тонкую сетку. Направление их линий подчеркнуто раскладкой плитки: вертикальным или горизонтальным, что превращает простенки в подобие плоского плетения, – Алексей Медведев уподобляет прием фахверку, поскольку он помогает подчеркнуть структуру фасада. рисунок проявляет себя очень сдержанно, как различие вязки в однотонном свитере.
Жилой комплекс “HOMECITY”
Жилой комплекс “HOMECITY”
© АМ Сергей Киселев и Партнеры
Жилой комплекс “HOMECITY”
Жилой комплекс “HOMECITY”
© АМ Сергей Киселев и Партнеры

К бульвару дома обращены не только 6-этажной частью, но и консолями, которые нависают над дорожками и образуют козырьки, выложенные плиткой в том числе и с нижней стороны.
Жилой комплекс “HOMECITY”
Жилой комплекс “HOMECITY”
© АМ Сергей Киселев и Партнеры

Проект ЖК, от эксизной концепции до авторского надзора, ведут архитекторы СКиП – так и надо, но в последннее время все реже так бывает, поэтому отметим прецедент.

К работе над проектом благоустройства внутреннего бульвара и дворов по совместному решению СКиП и заказчика привлекли компанию MLA+, с которой архитекторы дружественно сотрудничают не в первый раз и сейчас тоже обсуждали всё совместно. Опять же пример сотрудничества вместо конкурентной напряженности. Причем архитекторы голландской компании первоначально предложили концепцию «времен года»: смены впечатлений на разных частях комплекса, но заказчик настоял на единообразии и в итоге главной темой стали асимметричные пятна, пышные кроны клёнов, пучки злаковых растений. Использование белой гальки на детских площадках тоже стало идеей заказчика.
Жилой комплекс “HOMECITY”
Жилой комплекс “HOMECITY”
© АМ Сергей Киселев и Партнеры

Квартирография балансная и тяготеет к двух- и однокомнатным планировкам: первых больше половины, вторых больше трети. Но есть и трех, и четырехкомнатные квартиры.
Жилой комплекс “HOMECITY” © АМ Сергей Киселев и Партнеры
Жилой комплекс “HOMECITY”
© АМ Сергей Киселев и Партнеры
Жилой комплекс “HOMECITY” © АМ Сергей Киселев и Партнеры
Жилой комплекс “HOMECITY”
© АМ Сергей Киселев и Партнеры
Жилой комплекс “HOMECITY” © АМ Сергей Киселев и Партнеры
Жилой комплекс “HOMECITY”
© АМ Сергей Киселев и Партнеры
Жилой комплекс “HOMECITY” © АМ Сергей Киселев и Партнеры
Жилой комплекс “HOMECITY”
© АМ Сергей Киселев и Партнеры
Жилой комплекс “HOMECITY” © АМ Сергей Киселев и Партнеры
Жилой комплекс “HOMECITY”
© АМ Сергей Киселев и Партнеры
Жилой комплекс “HOMECITY” © АМ Сергей Киселев и Партнеры
Жилой комплекс “HOMECITY”
© АМ Сергей Киселев и Партнеры
Жилой комплекс “HOMECITY” © АМ Сергей Киселев и Партнеры
Жилой комплекс “HOMECITY”
© АМ Сергей Киселев и Партнеры
Жилой комплекс “HOMECITY” © АМ Сергей Киселев и Партнеры
Жилой комплекс “HOMECITY”
© АМ Сергей Киселев и Партнеры
Жилой комплекс “HOMECITY” © АМ Сергей Киселев и Партнеры
Жилой комплекс “HOMECITY”
© АМ Сергей Киселев и Партнеры
Жилой комплекс “HOMECITY” © АМ Сергей Киселев и Партнеры
Жилой комплекс “HOMECITY”
© АМ Сергей Киселев и Партнеры
Жилой комплекс “HOMECITY” © АМ Сергей Киселев и Партнеры
Жилой комплекс “HOMECITY”
© АМ Сергей Киселев и Партнеры
Жилой комплекс “HOMECITY” © АМ Сергей Киселев и Партнеры
Жилой комплекс “HOMECITY”
© АМ Сергей Киселев и Партнеры
Жилой комплекс “HOMECITY” © АМ Сергей Киселев и Партнеры
Жилой комплекс “HOMECITY”
© АМ Сергей Киселев и Партнеры

Одно из запланированных достоинств комплекса – качественная отделка общественных зон, лаконичная с преобладанием вертикальных «решеток» светлого дерева.
Жилой комплекс “HOMECITY” © АМ Сергей Киселев и Партнеры
Жилой комплекс “HOMECITY”
© АМ Сергей Киселев и Партнеры
Жилой комплекс “HOMECITY” © АМ Сергей Киселев и Партнеры
Жилой комплекс “HOMECITY”
© АМ Сергей Киселев и Партнеры
Жилой комплекс “HOMECITY” © АМ Сергей Киселев и Партнеры
Жилой комплекс “HOMECITY”
© АМ Сергей Киселев и Партнеры

Школа начальных классов на 350 мест и детский сад на 150 мест расположены на западном торце территории, они будут государственными и при проектировании необходимо было тщательно все согласовывать с департаментом образования, плотно «упаковывать» все решения в нормативы и достаточно ограниченную площадь. Поэтому планы прямоугольные, а не круглые и не разлапистые, как у самых прогрессивных школ. И между тем архитекторам удалось уместить в школьном здании все необходимые функции, а школьную библиотеку в верхнем этаже осветить естественным светом через зенитный фонарь.

Фасады школы, как и детского сада, сочетают фиброцемент светлого, почти белого оттенка со вставками цвета желтой охры для школы, и трех теплых оттенков: красного, желтого, оранжевого для детского сада. Акценты перекликаются с цветом вставок на фасадах жилых домов.

Школа – пусть небольшой, а «храм знаний», отмечена лоджией с портиком из четырех тонких круглых колонн, белых на фоне черного тона внутренней стены. Легкий портик с тонкой перемычкой вверху вместо аттика напоминает о поисках Ле Корбюзье и о семидесятых с их лаконически минималистичным взглядом на классические мотивы.
Жилой комплекс “HOMECITY”. План 2 этажа © АМ Сергей Киселев и Партнеры
Жилой комплекс “HOMECITY”. План 2 этажа
© АМ Сергей Киселев и Партнеры
Жилой комплекс “HOMECITY”. План 9 этажа © АМ Сергей Киселев и Партнеры
Жилой комплекс “HOMECITY”. План 9 этажа
© АМ Сергей Киселев и Партнеры
Жилой комплекс “HOMECITY”. Разрез © АМ Сергей Киселев и Партнеры
Жилой комплекс “HOMECITY”. Разрез
© АМ Сергей Киселев и Партнеры
Жилой комплекс “HOMECITY”. Разрез © АМ Сергей Киселев и Партнеры
Жилой комплекс “HOMECITY”. Разрез
© АМ Сергей Киселев и Партнеры

От МКАДа здесь 1,5 километра, но до недавно открывшейся станции метро «Румянцево» пешком минут 10-15. Местность вокруг более чем разнообразная: 17-этажки поодаль, а рядом с одной стороны «деревня» дачного типа за каменными заборами, с другой стороны Говоровский лес, продолжающий Тропаревский лесопарк за границей Москвы – сюда можно будет запросто выходить на прогулку, лес подходит прямо к восточной границе комплекса. К югу, как мы помним, офисы. Окружение получается, при всей своей пестроте, гармонично уравновешенным: лес, бизнес-парк, дачи. Шоссе, но до него где-то 900 метров, так что здесь намного тише, чем, к примеру, в Москве на оживленной трассе. Homecity здесь как в центре циклона – тихая гавань, замкнутая на свой внутренний бульвар, элемент правильного, комфортного города, образовавшийся в силу обстоятельств, а также по доброй воле заказчиков и архитекторов, – в сравнительно неожиданном месте, в начале Киевского шоссе.