Размещено на портале Архи.ру (www.archi.ru)

02.06.2020

Рациональное построение

Юлия Тарабарина
Объект:
Больница с родильным домом в Коммунарке
Адрес:
Россия, Москва. п. Сосенское, поселок Коммунарка, ул. Сосенский Стан, влд. 10/1
Административно-деловой центр Троицкого и Новомосковского административных округов Москвы
Адрес:
Россия, Москва.
Архитектор:
Владимир Плоткин
Мастерская:
ТПО «Резерв»
Авторский коллектив:
 В. Плоткин, Т. Квасова, Д. Чернов, И. Кузнецова, Е. Буланова, А. Калачева

Рассматриваем комплекс построек и интерьеры первой очереди здания, которое за последние месяцы стало очень известным – больницу в Коммунарке.

Проект здания новой больницы в Коммунарке выиграл конкурс, проведенный в 2016 году, и затем без существенных отклонений от общей планировочной концепции был реализован победителями – Владимиром Плоткиным и ТПО «Резерв». В июле 2019 он получил архитектурную премию мэра и архсовета Москвы, примерно тогда стало известно, что проект попал в шорт-лист WAF.

Клиника проектировалась и строилась как расширение московской ГКБ №40 – многопрофильная, «самая современная и высокотехнологичная», с новыми возможностями лечения онкобольных, инфарктов и инсультов, экстренными операционными.

Многопрофильный медицинский центр «Новомосковский» в Коммунарке
Многопрофильный медицинский центр «Новомосковский» в Коммунарке
Фотография © Илья Иванов / предоставлена ТПО «Резерв»

Больница планировалась прежде всего как место лечения жителей ТиНАО, Южного Бутова, Солнцева и Новопеределкина, районов, где, по словам мэра Москвы, в радиусе 10 км живет порядка 5 млн человек. Здание начали строить в январе 2017; через три года, 27 декабря 2019 торжественно открыли четыре корпуса первой очереди: палатный на 606 коек, главный – лечебно-диагностический, вспомогательный и паталогоанатомический с морфологической и генетической лабораториями. Во вторую очередь планируется завершить детский корпус, роддом и станцию скорой помощи в восточной части территории, их каркасы в основном уже возведены, но работа не закончена.
Многопрофильный медицинский центр «Новомосковский» в Коммунарке
Многопрофильный медицинский центр «Новомосковский» в Коммунарке
© ТПО «Резерв»

В марте 2020 больница, едва открывшись, раньше всех других в России начала принимать пациентов с подозрением на Covid-19 и вскоре стала практически символом борьбы с пандемией. В первой половине мая количество пациентов здесь колебалось в районе 500, в конце апреля к северу от медцентра начали строительство быстровозводимого коронавирусного центра, как сообщается, для долечивания пациентов, еще на 500 коек. Кто теперь не знает главврача Коммунарки Дениса Проценко. Да и фасады здания стали более чем узнаваемы, хотя и тонкости архитектурного решения, и планы многопрофильного лечения в разгар эпидемии отошли на второй план – будем надеяться, что все же временно.

Безусловно удачно, что хотя бы половина новой, хорошо оборудованной больницы открылась к началу пандемии, но пока хочется думать, что когда-нибудь жизнь вернется в обычное русло и больница будет работать не в экстренном режиме, а по запланированному здесь изначально множеству медицинских специальностей.

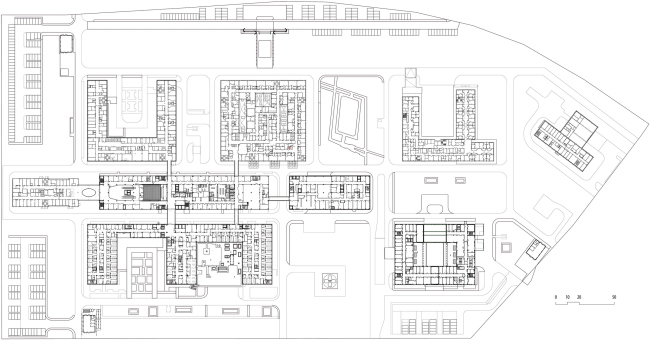
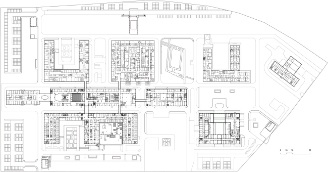
Итак, медицинский комплекс расположен в 4 км от МКАД по Калужскому шоссе, в центре территории, отведенной для Административно-делового центра (АДЦ) Коммунарка – центру управления «протуберанцем» территорий Новой Москвы. Его ближайший сосед – завершенное в 2017 году здание префектуры Троицкого и Новомосковского округов (ТиНАО) – также построено по проекту ТПО «Резерв», оно расположено ближе к шоссе и севернее. В остальном территория, которая с востока граничит со строящейся Коммунарской веткой метро, а в запада с построенной Сокольнической, пока не освоена и, фактически, представляет собой очищенную от растительности стройплощадку будущего.



Между тем генплан предполагал размещение вокруг жилья, распланированного на кварталы, тяготеющие к квадрату со стороной порядка 135 м; часть улиц между ними уже намечена. Участок больницы, вытянутый с севера на юг, занял площадь примерно семи таких квадратов, а ее планировка подхватила матрицу квартальной планировки, хотя и с поправкой в сторону чуть большей компактности и отступа от границ, где, по периметру, намечены открытые парковки.
Генплан. Многопрофильный медицинский центр «Новомосковский» в Коммунарке
Генплан. Многопрофильный медицинский центр «Новомосковский» в Коммунарке
© ТПО «Резерв»

Комплекс состоит из девяти корпусов, выстроенных в три линии. Две из них, по бокам, решены как раскрытые с одной стороны П-образные «рамки», между которыми образуется довольно много дворов и двориков разного типа, от зеленых до полностью замощенных. Идея – в том, чтобы создать разнообразные, но разделенные места для прогулок.

Другая идея чуть более абстрактна, но тоже прочитывается: хотя территории больниц всегда, наверное, будут обносить заборами, архитекторы трактовали ее не как замкнутую в себе «крепость», а, напротив, визуально раскрыли. Так и из окна можно будет смотреть не только на больничный двор, но и, по большей части, наружу.

Центральная линия – ось, или хребет, совпадает с линией улицы, подходящей с севера, от Калужского шоссе и со стороны префектуры. Она представляет собой вереницу трех узких и протяженных корпусов: недостроенного амбулаторного, лечебно-диагностического и вспомогательного. Первый предназначен для лечения без госпитализации, это, в сущности, поликлиника или же КДЦ, место, где больница больше всего общается с городом, – он выдвинут вперед, к самой границе территории; он будет встречать подъезжающих.

Выступающая вперед небольшая 7-этажная башня амбулаторного корпуса похожа на голову некоего существа, особенно если сравнить объемы по сторонам «хребта» с лапами или крыльями. Он не просто выдвинут вперед, но и преодолевает небольшой перепад высот, около метра: в раннем варианте его предлагалось решить в виде мостика, но затем корпус выдвинулся еще дальше.
Многопрофильный медицинский центр «Новомосковский» в Коммунарке
Многопрофильный медицинский центр «Новомосковский» в Коммунарке
© ТПО «Резерв»

Завершенный и работающий лечебный корпус – главное место работы врачей – следует по той же центральной линии прямо за амбулаторным. Его фасады в основном стеклянные, он вытянут в глубину, отделен от боковых корпусов проездами, но с четырьмя из них связан закрытыми навесными переходами в двух уровнях.
Многопрофильный медицинский центр «Новомосковский» в Коммунарке
Многопрофильный медицинский центр «Новомосковский» в Коммунарке
Фотография © Илья Иванов / предоставлена ТПО «Резерв»

Это существенно облегчает передвижение: лечебный корпус – ядро больницы, и путь в него, насколько возможно, сокращен.
Многопрофильный медицинский центр «Новомосковский» в Коммунарке. План 2 этажа
Многопрофильный медицинский центр «Новомосковский» в Коммунарке. План 2 этажа
© ТПО «Резерв»

Главный вход в лечебный корпус и вообще в больницу – также устроен с северного торца, прямо за КДЦ, через небольшой тамбур с круглой световой линзой над головой – в двухъярусный вестибюль-атриум. Его пространство почти совершенно белое; балконы, стойка ресепшн и скамейки в основании круглых колонн подчинены обтекаемым формам и подчеркнуты гибкими линиями белого света. Световые полосы также образуют декоративную сетку треугольников на центральном «столбе» – объеме, на лицевую поверхность которого нанесена схема навигации, и который скрывает в себе лифты. Интерьер, светящийся и текучий, может напомнить фойе концертного зала «Зарядье» – отдаленно, конечно, и с поправкой на иные масштаб и функцию.
Многопрофильный медицинский центр «Новомосковский» в Коммунарке © ТПО «Резерв»
Многопрофильный медицинский центр «Новомосковский» в Коммунарке
© ТПО «Резерв»
Многопрофильный медицинский центр «Новомосковский» в Коммунарке © ТПО «Резерв»
Многопрофильный медицинский центр «Новомосковский» в Коммунарке
© ТПО «Резерв»
Многопрофильный медицинский центр «Новомосковский» в Коммунарке © ТПО «Резерв»
Многопрофильный медицинский центр «Новомосковский» в Коммунарке
© ТПО «Резерв»

Два эскалатора ведут из атриума на второй этаж, ко входам к конференц-зал: в нем белый цвет уравновешен черным, изгибы уступают место граненым плоскостям. Панели на потолке, как и слоистая структура стен, визуально расширяют пространство. Уступы поверхностей стен, отделанные штукатуркой золотистого охристого оттенка, подсвечены отраженным светом – он подчеркивает пластику, высвечивает проходы, но, поскольку не слишком ярок, не отвлекает.
Многопрофильный медицинский центр «Новомосковский» в Коммунарке
Многопрофильный медицинский центр «Новомосковский» в Коммунарке
© ТПО «Резерв»

Построенный и действующий палатный корпус расположен западнее. Он больше других и в плане напоминает букву Ш – швеллер, вытянутый вдоль всего лечебного корпуса, с тремя палочками-крыльями по сторонам двух дворов. Между лечебным и палатным корпусом – две группы навесных переходов, кроме того, коммуникацию может обеспечить и общий ярус подземного пространства. Дворы между крыльями устроены по-разному: один, северный, полностью открыт, второй занят стилобатом с въездами в приемный блок скорой помощи – внутри он освещен широкими конусами фонарей верхнего света.
Многопрофильный медицинский центр «Новомосковский» в Коммунарке
Многопрофильный медицинский центр «Новомосковский» в Коммунарке
© ТПО «Резерв»

На кровле стилобата южного двора запланировано озеленение и возможность прогулок; на нее также ведет лаконичная черная лестница с эффектным скруглением на повороте, в строгой, белой и лаконичной структуре здания она становится заметным акцентом и воспринимается почти как арт-объект.
Многопрофильный медицинский центр «Новомосковский» в Коммунарке
Многопрофильный медицинский центр «Новомосковский» в Коммунарке
© ТПО «Резерв»

Собственно образ корпуса построен на тонкой, белой и ориентированной строго вертикально сетке простенков – она, прежде всего, обеспечивает общность со зданием префектуры ТиНАО, подчеркивая единство ансамбля двух зданий, «нанизанных» на общую ось и образующих, в сущности, ядро будущего административного центра.

Здание префектуры меньше, но определенно воспринимается как более значительное благодаря энергичной форме «запятой», которая обращена к больнице круглым цилиндрическим боком, и крупному, объединяющему по два этажа, масштабу сетки.
Административно-деловой центр Троицкого и Новомосковского административных округов Москвы.
Административно-деловой центр Троицкого и Новомосковского административных округов Москвы.
Фотография © Алексей Народицкий / предоставлена ТПО «Резерв»

Форма больничного корпуса проще и практичнее, а сетка ее фасадов, более «человечная» одноэтажная, оживлена солнечным желтым цветом простенков, классическим приемом, который может напомнить «Марсельскую единицу» Ле Корбюзье. Цветные простенки собраны в группы по 2, 4 и 6, распределены по фасадам асимметрично и в перспективе дают цветные пятна.
Многопрофильный медицинский центр «Новомосковский» в Коммунарке
Многопрофильный медицинский центр «Новомосковский» в Коммунарке
Фотография © Илья Иванов / предоставлена ТПО «Резерв»

Другое вкрапление цвета возникает от навигационных вставок: каждому корпусу присвоен свой оттенок, палатному корпусу номер 1, – сине-зеленый.
Многопрофильный медицинский центр «Новомосковский» в Коммунарке
Многопрофильный медицинский центр «Новомосковский» в Коммунарке
Фотография © Илья Иванов / предоставлена ТПО «Резерв»

Анфас же цвет почти не виден. Но сетку также оживляют паузы – полосы стекла без вертикальной разгранки, и их антиподы, белые прямоугольники, которые появляются вокруг входов и, в основном, на торцах стеклянных лент: как будто бы кто-то смахнул пальцем несколько простенков в сторону, и они собрались на краю. Все это образует на фасадах некую still life, игру сродни музыкальной или математической.
Многопрофильный медицинский центр «Новомосковский» в Коммунарке
Многопрофильный медицинский центр «Новомосковский» в Коммунарке
Фотография © Илья Иванов / предоставлена ТПО «Резерв»

Временами возникает более сложная тема: к примеру, внутренние торцевые стены дворов «расслаиваются» крупными зигзагами, которые маскируют и оформляют перепады ярусов – протяженная часть палатного корпуса дважды поднимается с севера на юг.

В зигзагах возникают небольшие террасы, на уровне 2 и 5 этажей, которые тоже, вероятно, дадут врачам и пациентам возможность подышать немного свежим воздухом. Так что, да, все просто, но не то чтобы совсем просто; в рамках системы возможно множество нюансов.
Многопрофильный медицинский центр «Новомосковский» в Коммунарке
Многопрофильный медицинский центр «Новомосковский» в Коммунарке
Фотография © Илья Иванов / предоставлена ТПО «Резерв»

Но все же система, заложенная в этих фасадах, требует большой точности и аккуратности. Поэтому выступ техэтажа полностью замаскирован стенкой аттика – именно из-за нее верхний ярус двухэтажный, что выглядит вполне ордерно. Но, главное, никаких лишних выступов совершенно не видно ниоткуда, кроме как сверху, и контур объема отточенно-закончен. Определенно, с коробкой техэтажа поверх впечатление было бы иным.
Многопрофильный медицинский центр «Новомосковский» в Коммунарке
Многопрофильный медицинский центр «Новомосковский» в Коммунарке
Фотография © Илья Иванов / предоставлена ТПО «Резерв»

Между тем больница – сложный конгломерат, напомним, здесь 9 корпусов и сданы только 4 из них. Она не могла стать полностью сетчатой, строгую структуру получил корпус, который находится на прямой оси видимости со зданием префектуры, остальные объемы решены иначе. Так, вспомогательный объем за лечебным в глубине территории – бордово-красный, что контрастно оттеняет белизну и стекло. Окна детской больницы и роддома получили широкие квадратные очертания, а силуэт центрального лечебного корпуса – ступенчатый, оживленный, что хорошо заметно рядом со строгим абрисом его западного соседа и подчеркнуто разбросанными по стеклянной поверхности, как будто подвешенными в воздухе, белыми вставками.
Многопрофильный медицинский центр «Новомосковский» в Коммунарке © ТПО «Резерв»
Многопрофильный медицинский центр «Новомосковский» в Коммунарке
© ТПО «Резерв»
Многопрофильный медицинский центр «Новомосковский» в Коммунарке © ТПО «Резерв»
Многопрофильный медицинский центр «Новомосковский» в Коммунарке
© ТПО «Резерв»
Абулаторный корпус, проект, 2015. Многопрофильный медицинский центр «Новомосковский» в Коммунарке © ТПО «Резерв»
Абулаторный корпус, проект, 2015. Многопрофильный медицинский центр «Новомосковский» в Коммунарке
© ТПО «Резерв»

Безусловно, больница такого уровня и степени сложности – город в городе, система с внутренними законами, и чем они разумнее, тем лучше. Больница не репрезентативное здание, более того, ее строят на муниципальные, пусть и столичные, средства, что делает экономию, так или иначе, неизбежной: в случае с медицинским зданием очевидно, что деньги лучше потратить не на дорогие фасады, а на оборудование. Так что здесь мы, определенно, имеем дело с решением, построенным на рациональном подходе – к организации движения при подъезде и внутри, к освещению и к чередованию объемов и дворов. Но рациональность проявляется в том числе и в пропорционировании: в легкой сетке, полном отсутствии визуального давления, «позитиве» желтых проблесков, сиянии высокого белого вестибюля. Сложно сказать, насколько заболевшему человеку важна архитектура. И все же – как хорошо, что здесь не сэкономили на пропорциях.