Размещено на портале Архи.ру (www.archi.ru)

08.08.2019

Ключевой элемент

Алёна Кузнецова
Объект:
ЖК «Садовые кварталы»: проект
Адрес:
Россия, Москва. ул. Усачева, вл. 11
Мастерская:
ОРТОСТ-ФАСАД
Авторский коллектив:
Руководитель авторского коллектива – С. Скуратов
Главный архитектор проекта –А. Панёв

1 квартал (1.2, 1.3, 1.4, 1.5): Н. Асадов, С. Безверхий, И. Голубев, И. Ильин, М. Кирьянова, Н. Овсянникова, П. Шалимов, И. Щепетков

2 квартал (2.1, 2.2, 2.3, 2.4): А. Алендеев, М. Кирьянова, Н. Овсянникова, Е. Тирских

3 квартал (3.1, 3.3, 3.4, 3.5, 3.6, 3.7, 3.8, 3.9): А. Алендеев, С. Безверхий, М. Кирьянова, Ю. Левина, Н. Овсянникова, Е. Тирских, А. Чурадаев

4 квартал (4.1, 4.6, 4.7, 4.8): А. Алендеев, А. Горобец, Е. Гуськова, Я. Дегтярева, М. Кирьянова, Ю. Ковалева, А. Коньков, Н. Овсянникова, Е. Тирских

Школа, Бизнес-центр: Архитектурное бюро Сергея Скуратова


Отдельные дома:
1 квартал: «Бюро 500», архитектор М. Куренной (корп. 1.1, 1.6).
2 квартал: ТПО «Резерв», архитектор В. Плоткин (корп. 2.5, 2.6).
«Остоженка», архитектор А. Скокан (корп. 2.2, 2.8).
3 квартал: АБ «СПиЧ», архитектор С. Чобан (корп. 3.2, 2.9).
4 квартал: «Проект Меганом», архитектор Ю. Григорян (корп. 4.2, 4.3, 4.4).
«А-Б», архитектор А. Савин (корп. 4.5).


На разных этапах работы принимали участие архитекторы: А. Барклянский, В. Обвинцев, Д. Чернышов,К. Харитонова, И. Ильин, А. Беленкова, Р. Гильмутдинов, И. Маринин, А. Дмитриев, Ю. Клевакин, Ю. Фролов, А. Хасанов, А. Егерев, А. Иванова

Специально для ЖК «Садовые кварталы» компания «ОртОст-Фасад» разработала материал, сочетающий силу стеклофибробетона и эстетику кирпича. Рассказываем о его особенностях и достоинствах на примере трех новых реализованных корпусов.

ЖК «Садовые кварталы», корпус 3.2
ЖК «Садовые кварталы», корпус 3.2
Изображение предоставлено: ОртОст-Фасад

Московские «Садовые кварталы» в Хамовниках – один из знаковых жилых комплексов столицы. «Многолетний, многотрудный и многослойный» – так его описывают на сайте проекта, посвященного российской архитектуре новейшего времени и вносят в список 27 лучших объектов современности.

История началась в 2006 году, когда для будущего жилого комплекса на месте завода «Каучук» Сергей Скуратов разработал единый дизайн-код, которому в дальнейшем следовали архитекторы семи ведущих бюро. Основной импульс всей концепции задал кирпич – не только как излюбленный материал Сергея Скуратова, но и как способ сохранить связь с историей места: в XVII веке здесь занимались обжигом, также на участке сохранилось фабричное здание Романа Клейна – его-то и взяли за отправную точку.
ЖК «Садовые кварталы», корпус 3.2
ЖК «Садовые кварталы», корпус 3.2
Изображение предоставлено: ОртОст-Фасад

К стройке приступили в 2010 году, постепенно задуманное Сергеем Скуратовым воплощается в жизнь. Всего в комплексе пять кварталов, которые выстраиваются вокруг общественного пространства с прудом. Недавно были сданы три корпуса из третьего квартала – того самого, где располагается здание Романа Клейна. Как и в предыдущих очередях, решающую роль в проекте сыграл фасад, а именно –панели из стеклофибробетона с интегрированной клинкерной плиткой, изготовленные компанией «ОртОст-Фасад».
ЖК «Садовые кварталы», корпус 3.7
ЖК «Садовые кварталы», корпус 3.7
Изображение предоставлено: ОртОст-Фасад

Согласно дизайн-коду, кирпич должен занимать не меньше 70% неостекленной поверхности фасадов. Если говорить о высотных зданиях – условие трудновыполнимое, учитывая вес традиционного кирпича. В начале пути пришлось отказаться от клинкера, изготовленного в Германии: образцы оказались слишком массивными, транспортировка – дорогой, монтаж – едва ли возможным.

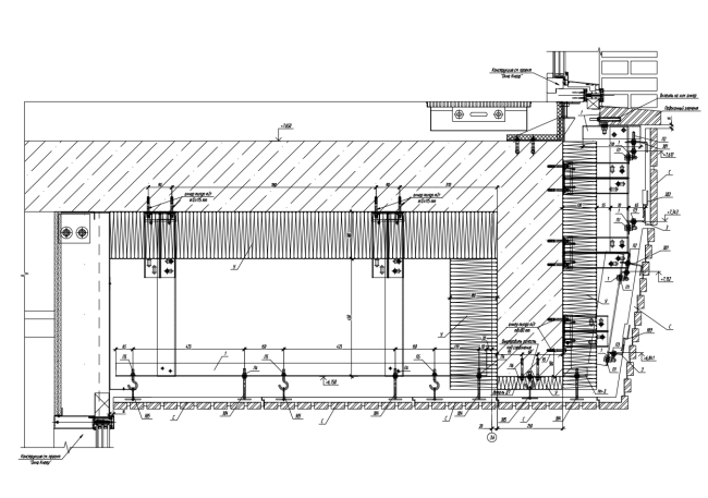
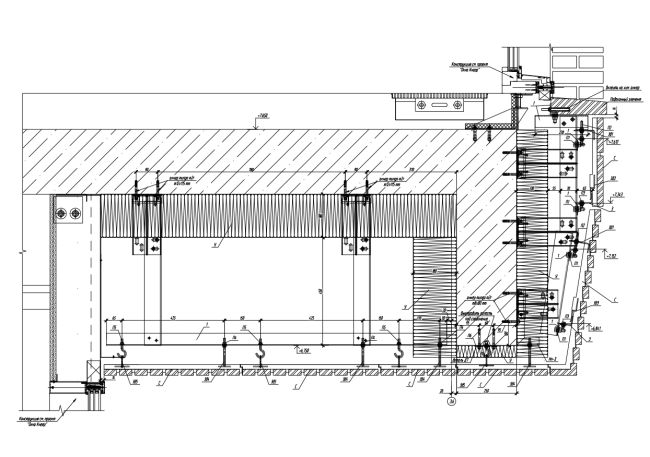
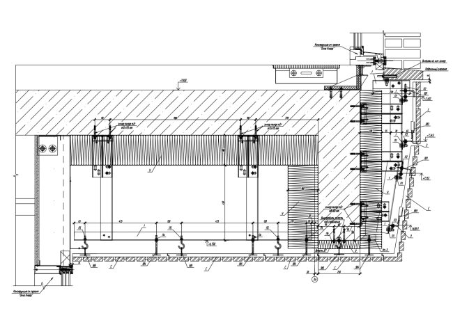
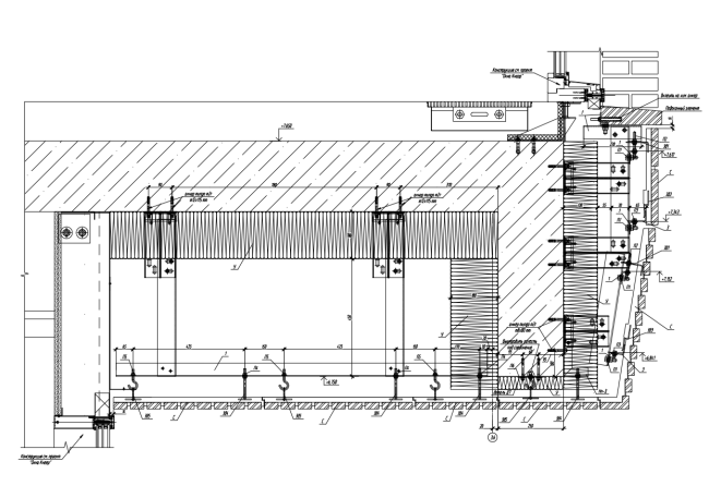
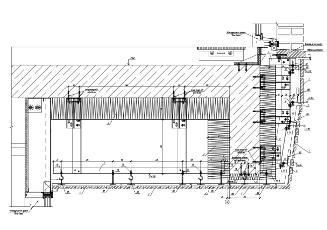
Оптимальное решение предложила компания «ОртОст-Фасад» – лидер по производству стеклофибробетона (далее – СФБ) в России. Для «Садовых кварталов» ее специалисты разработали особенный составной материал: в основание из легкого СФБ на металлическом каркасе интегрирована клинкерная плитка Hagemeister толщиной 2,5 см. Технология примерно следующая: при проектировании фасад делят на сегменты, для каждого изготавливают форму, в которую укладывают кирпич, а сверху напыляют стеклофибробетон. После высыхания деталь вынимают из формы и досушивают.
ЖК «Садовые кварталы», корпус 3.2
ЖК «Садовые кварталы», корпус 3.2
Изображение предоставлено: ОртОст-Фасад

Панели получились легкими, очень прочными, долговечными и, что важно, красивыми – после высокотемпературного обжига поверхность клинкера становится «рукотворной», с налетом старины, богатых оттенков. Все эти качества позволили свободно и быстро воплотить в реальность замыслы архитекторов, поскольку монтаж навесных панелей не потребовал специальной подъемной техники, материал оказался универсальным, справился даже со сложной геометрией и в итоге «сработал» на всех корпусах.
Навесные панели из стеклофибробетона с интегрированной клинкерной плиткой. ЖК «Садовые кварталы»
Навесные панели из стеклофибробетона с интегрированной клинкерной плиткой. ЖК «Садовые кварталы»
Изображение предоставлено: ОртОст-Фасад

Наиболее ярко пластичность материала демонстрирует корпус 3.2, спроектированный архитектурной мастерской SPEECH. Фасады сложены волнистой гармошкой, «меха» которой то расширяются, то сужаются, что создает ощущение вибрации даже на глухих незастекленных торцах, где особенно хорошо видно, как достоверно материал имитирует кирпич: стыки незаметны, оттенки разнообразны и складываются в случайно-неповторимый паттерн. Навесной фасад крепится к основным конструкциям фасадов, отступы от них достигают 80 см. Этот корпус достаточно высокий – 13 этажей, плиты «ОртОст-Фасад» покрывают здесь площадь 5500 м2.
ЖК «Садовые кварталы», корпус 3.2
ЖК «Садовые кварталы», корпус 3.2
Изображение предоставлено: ОртОст-Фасад
ЖК «Садовые кварталы», корпус 3.2
ЖК «Садовые кварталы», корпус 3.2
Изображение предоставлено: ОртОст-Фасад
ЖК «Садовые кварталы», корпус 3.2
ЖК «Садовые кварталы», корпус 3.2
Изображение предоставлено: ОртОст-Фасад

У корпуса 3.7, спроектированного архитектурным бюро Сергея Скуратова, «настроение» совсем другое. Это здание в два раза ниже, зато остекленных поверхностей намного меньше: с определенных ракурсов окна напоминают узкие бойницы, стены кажутся мощными, крепостными. Жесткая сетка простенков и межэтажных перекрытий утоплена в более плавных и обтекаемых объемах «козырьков».
ЖК «Садовые кварталы», корпус 3.7
ЖК «Садовые кварталы», корпус 3.7
Изображение предоставлено: ОртОст-Фасад
ЖК «Садовые кварталы», корпус 3.7
ЖК «Садовые кварталы», корпус 3.7
Изображение предоставлено: ОртОст-Фасад
ЖК «Садовые кварталы», корпус 3.7
ЖК «Садовые кварталы», корпус 3.7
Изображение предоставлено: ОртОст-Фасад

Корпус 3.9 – реконструированное здание Романа Клейна. От здания бывшего заводоуправления сохранена одна подлинная стена, выходящая на улицу Усачева, остальные фасады новые. Здесь также использовали панели «ОртОст-Фасад», чтобы облегчить конструктив фасада. Найденная технология позволила сохранить и особенность оригинального здания, стены которого были выложены кирпичом четырех оттенков.
ЖК «Садовые кварталы», корпус 3.9
ЖК «Садовые кварталы», корпус 3.9
Изображение предоставлено: ОртОст-Фасад
ЖК «Садовые кварталы», корпус 3.9
ЖК «Садовые кварталы», корпус 3.9
Изображение предоставлено: ОртОст-Фасад
***

Главная особенность стеклофибробетона заключается в том, что для армирования используется стекловолокно, которые не боятся коррозии. Материал получается прочный, гибкий, легкий, долговечный, не наносит вред окружающей среде, превосходит обычный бетон по множеству параметров. Из него можно изготавливать строительные элементы и декор любой формы и размера, имитировать различные материалы, ограничений в расцветке не существует – материал можно пигментировать или окрашивать в массе.