Размещено на портале Архи.ру (www.archi.ru)

24.09.2018

Дом под солнцем

Алёна Кузнецова
Объект:
ЖК «Ландыши» на ул. Островитянова
Адрес:
Россия, Москва. ул. Островитянова, д. 43
Архитектор:
Александр Асадов
Мастерская:
ГрандПроектСити
Авторский коллектив:
Руководители проекта: Сапричян К.В., Асадов А.Р.
Главный архитектор проекта: Рождественский А.В.
Архитекторы: Зарубина А.В., Гулканян И.О.

Комплекс апартаментов «Ландыши» спроектирован Кареном Сапричяном и Александром Асадовым, но затем реализацию передали в другие руки и проект потерял довольно много деталей, сохранив черты замысла в целом. Рассматриваем, что ушло и что осталось.

Гостиничный комплекс «Ландыши» на ул. Островитянова © ГрандПроектСити
Гостиничный комплекс «Ландыши» на ул. Островитянова © ГрандПроектСити

Комплекс апартаментов «Ландыши» расположен в треугольнике между станциями метро «Беляево», «Тропарево» и «Юго-Западная», в двух шагах от разноцветного центра детской гематологии, построенного бюро Асадова в 2011 году, и прямо за территорией университета Дружбы народов.

История строительства ЖК – довольно типичная. В 2013 году проект комплекса был разработан в мастерской «ГранПроектСити» Карена Сапричяна совместно с Александром Асадовым. Предполагалось, что заказчик будет строить гостиницу, однако после утверждения архитектурно-градостроительного решения проект передали стороннему бюро, а функцию изменили на «апартаменты длительного проживания»; сейчас комплекс фигурирует на рынке под названием ЖК «Ландыши» от ГК МИЦ, но по оценкам риелторов, не имеет никаких «перспектив перевода в жилой статус».
Гостиничный комплекс «Ландыши» на ул. Островитянова © ГрандПроектСити
Гостиничный комплекс «Ландыши» на ул. Островитянова © ГрандПроектСити

Результат, по словам Александра Асадова, получился «близким к замыслу, но неумение работать с деталью в сочетании с вольной заменой цветов и фактур, наглядно показывает губительную разницу между Ремеслом и Искусством Архитектора». Самая главная удача, по мнению архитектора, – сохранился человечный масштаб: изначальные семь этажей не выросли до высоты соседних зданий, и конфигурация объема в целом не изменилась. Карен Сапричян также называет одним из главных достоинств дома его этажность, отмечает интересный план и разнообразие фасадных приемов, которые застройщик все-таки реализовал.

Здание занимает прямоугольный участок площадью 1,3 га. В плане оно напоминает букву «Е»: длинный корпус тянется вдоль улицы Саморы Машела, три перпендикулярные секции выходят на более тихий внутридворовый проезд, образуя два приватных дворика. Похожая структура просматривается и в более позднем проекте Карена Сапричяна – «курортном» доме в Дубаи.
Схема планировочной организации земельного участка © ГрандПроектСити
Схема планировочной организации земельного участка © ГрандПроектСити

Рельеф участка опускается от улицы Саморы Машела в глубину квартала на 3,6 метра. Архитекторы воспользовались этой особенностью для организации дворов – в центре каждого появилась повышенная площадка, окруженная широкими пандусами пожарных проездов: ближе к улице она находится почти в том же уровне, что и выход из первого этажа, а у наружного контура приподнимается козырьком, образуя свободную от машин террасу с травой и детскими площадками. Под каждым козырьком помещается по 4 наземные парковки, что выглядит довольно любопытно и напоминает средиземноморские города; еще 58 мест распределено по периметру дома. Подземные парковки разместились в минус-первом этаже под жилыми корпусами.

Кроме того, вдоль внутреннего периметра дома перед апартаментами первых этажей устроены небольшие частные патио – в том же уровне, что и общие дворы посередине. Дворики-палисадники довольно большие, в некоторых случаях, перед квартирами площадью по 27-28 м, они заметно больше квартир. Углы цокольной части, облицованной коричневатым кирпичом, подчеркнуто скруглены, что во многом формирует восприятие дома со стороны двора.
Проект гостиничного комплекса ул. Островитянова © ГранПроектСити
Проект гостиничного комплекса ул. Островитянова © ГранПроектСити
Гостиничный комплекс на ул. Островитянова © ГранПроектСити
Гостиничный комплекс на ул. Островитянова © ГранПроектСити

Впрочем, в проекте предполагались разделяющие патио вертикали и защищающие их от солнца кровли-перголы, также как и коротко стриженая живая изгородь по контуру – от всего этого остались небольшие кирпичные стенки между соседними «участками» и металлические заборы «чтобы не упасть». Зелени перед первыми этажами не видно, хотя можно предположить, что она «на совести» жильцов или появится позднее.
Гостиничный комплекс «Ландыши» на ул. Островитянова © ГрандПроектСити
Гостиничный комплекс «Ландыши» на ул. Островитянова © ГрандПроектСити
Гостиничный комплекс «Ландыши» на ул. Островитянова © ГрандПроектСити
Гостиничный комплекс «Ландыши» на ул. Островитянова © ГрандПроектСити
Гостиничный комплекс «Ландыши» на ул. Островитянова © ГрандПроектСити
Гостиничный комплекс «Ландыши» на ул. Островитянова © ГрандПроектСити

Высота всех корпусов одинаковая, семь этажей, и в объемном отношении дом представляет собой очень цельный, даже лаконичный блок. Тем более что отступ террасы верхнего яруса при реализации уничтожили – ленту стекла выдвинули вперед, увеличив площадь апартаментов верхнего яруса, проще говоря пентхаусов, и теперь стекло вырастает прямо над кирпичной поверхностью стен наподобие тряпичной повязки на голове спортсмена. Ступенчатый силуэт исчез, со стороны улицы дом стал выше, тяжелее и сразу как-то ощутимо проще. Совершенно исчез модернистский белый козырек на северо-восточном углу, а ведь он был задуман как элегантный аксессуар, этакая «фишка», салютующая машинам, подъезжающим со стороны Ленинского проспекта и призванная сделать эту, почти недоступную для солнца часть здания, визуально легче. Теперь угол застроен – так, к слову, нередко поступали с модернистскими террасами в рыночные девяностые; зато верхние квартиры получили побольше полезной площади.
Гостиничный комплекс «Ландыши» на ул. Островитянова © ГрандПроектСити
Гостиничный комплекс «Ландыши» на ул. Островитянова © ГрандПроектСити
Гостиничный комплекс на ул. Островитянова © ГранПроектСити
Гостиничный комплекс на ул. Островитянова © ГранПроектСити

Зато сохранились глубокие вертикальные уступы входных зон, отделяющие крылья от продольного корпуса. Хотя верхняя часть вертикали центрального входа, опять же из-за расширения площадей пентхаусов, теперь кажется нарисованной «шаловливой рукой Остапа»: появились какие-то немотивированные разрывы и выступы, нанесенная дому рана сращена еле-еле. Но сохранился консольный вынос и стеклянный первый этаж уличного корпуса – здесь разместились три небольших офиса и ресторан.
Гостиничный комплекс «Ландыши» на ул. Островитянова © ГрандПроектСити
Гостиничный комплекс «Ландыши» на ул. Островитянова © ГрандПроектСити

В целом же предложенное фасадное решение призвано разнообразить восприятие дома, и оно – исключая некоторые детали, рассчитанные на чуткое восприятие, к примеру, узкие росчерки для разнообразия ритма или широкие оранжевые вставки для улучшения настроения во дворе – реализованы.

Все фасады покрыты треугольными эркерами, «разбавленными» уступами лоджий и выступами кондиционерных ящичков. Они «съедают» значительную часть стены, уменьшают ее массивность. Пожалуй, очень удачно, что лоджии удалось сохранить – дом, увиденный в разных ракурсах, всякий раз выглядит иначе и немного напоминает доисторическое животное, встопорщивщее ячейки-чешуйки. Узкая поверхность каждого эркера на внешних фасадах белая, и в ракурсах вертикальные росчерки отлично работают, поднимая настроение и дробя консервативную кирпичную поверхность. Впрочем, эркеры, помимо организации ритма и пластики, наделены и практическими функциями: их стеклянные плоскости поворачиваются к свету, что особенно очевидно на боковых фасадах, где они смотрят в южную сторону; белые штрихи отражают свет, немного компенсируют рефлексом отбрасываемую ими тень.
Гостиничный комплекс «Ландыши» на ул. Островитянова © ГрандПроектСити
Гостиничный комплекс «Ландыши» на ул. Островитянова © ГрандПроектСити
Гостиничный комплекс «Ландыши» на ул. Островитянова © ГрандПроектСити
Гостиничный комплекс «Ландыши» на ул. Островитянова © ГрандПроектСити
Гостиничный комплекс «Ландыши» на ул. Островитянова © ГрандПроектСити
Гостиничный комплекс «Ландыши» на ул. Островитянова © ГрандПроектСити

Что до ритма и пластики, то уличный фасад разделен на две монументальные полосы вертикалей – нижняя побольше, здесь выступы объединяют три этажа, верхняя поменьше, здесь визуально соединены два яруса. Ритм боковых стен мельче, здесь нет общественного первого этажа и яруса эркеров – три. Но они объединены с главным фасадом цветом темного кирпича стен, более плотного и «серьезного», городского, чем сероватый кирпич во дворах.

Кирпич, впрочем, в проекте был темный, но пестрый – как черные волосы с сединой, в итоге стал терракотово-коричневый, без «мелирования», что опять же утяжелило выходящий к улице северный, главный фасад. Зато, признаем, сполохи оранжевых горизонталей, оживляющие в целом строгий тон здания, реализованы. Подобный прием с цветными «лессировками» можно заметить и в доме на Самаринской улице.
Гостиничный комплекс «Ландыши» на ул. Островитянова © ГрандПроектСити
Гостиничный комплекс «Ландыши» на ул. Островитянова © ГрандПроектСити
Гостиничный комплекс на ул. Островитянова. Фасады © ГранПроектСити
Гостиничный комплекс на ул. Островитянова. Фасады © ГранПроектСити
Гостиничный комплекс на ул. Островитянова. Развертка © ГранПроектСити
Гостиничный комплекс на ул. Островитянова. Развертка © ГранПроектСити

Фасады во дворах, как всех нас учили мастера городских отелей и палаццо готики и ренессанса, должны быть легче, потому что они внутри, а не снаружи, и здесь данный принцип вполне реализован. Во дворах вновь возникает двухъярусный ритм, но эркеров больше, стен меньше, больше стекла и цвет легче – темно-коричневый остался лишь в цоколе, выше клинкерная плитка светлее.

Хотя в проекте было элегантнее: задумывалось чередование плитки темно- и светлосерой, а получилось бежево, народ ведь предпочитает оттенки телесного цвета, и оставшиеся полоски серого теперь выглядят как печные трубы. Но в общих чертах, опять же, эффект сохранен.

Ну и опять же. Горизонтальные оранжевые штрихи в проекте работали деликатнее, были разорваны сильнее; в реализации же они превратились в довольно энергичную полосу посередине между этажами, «убивающую» вертикальный рисунок – в проекте эркеры, встречаясь, пересекались, были немного надвинуты один на другой. Плюс ушла упомянутая выше тонкая вертикальная полоска, превращавшая ритм дворовых фасадов в подобие штрих-кода – словом, игра объема и графики ушла, потерялась по дороге, но общий эффект подвижной стены, пожалуй, остался.
Гостиничный комплекс «Ландыши» на ул. Островитянова © ГрандПроектСити
Гостиничный комплекс «Ландыши» на ул. Островитянова © ГрандПроектСити
Гостиничный комплекс на ул. Островитянова. Фрагмент фасада © ГранПроектСити
Гостиничный комплекс на ул. Островитянова. Фрагмент фасада © ГранПроектСити
Гостиничный комплекс на ул. Островитянова © ГранПроектСити
Гостиничный комплекс на ул. Островитянова © ГранПроектСити
Гостиничный комплекс «Ландыши» на ул. Островитянова © ГрандПроектСити
Гостиничный комплекс «Ландыши» на ул. Островитянова © ГрандПроектСити

В комплексе 327 апартаментов, от студий до четырехкомнатных площадью 120 м2. Поскольку первоначально ЖК проектировали как гостиницу, то система осталась коридорная с тремя входами, квартиры в основном на одну сторону, исключая пару сквозных, собственно четырехкомнатных, на каждом этаже в центре северного корпуса.
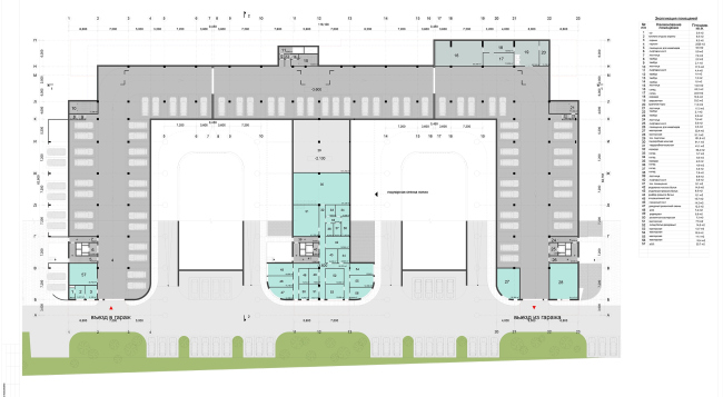
Гостиничный комплекс на ул. Островитянова. План 1 этажа © ГранПроектСити
Гостиничный комплекс на ул. Островитянова. План 1 этажа © ГранПроектСити
Гостиничный комплекс «Ландыши» на ул. Островитянова. План на отм. 4.20 © ГрандПроектСити
Гостиничный комплекс «Ландыши» на ул. Островитянова. План на отм. 4.20 © ГрандПроектСити
Гостиничный комплекс «Ландыши» на ул. Островитянова © ГрандПроектСити
Гостиничный комплекс «Ландыши» на ул. Островитянова © ГрандПроектСити
Гостиничный комплекс «Ландыши» на ул. Островитянова. План на отм. -3.60 © ГрандПроектСити
Гостиничный комплекс «Ландыши» на ул. Островитянова. План на отм. -3.60 © ГрандПроектСити

И все же, несмотря на искажения в деталях и компромиссный статус апартаментов, дом вовсе неплох и в своем окружении выглядит просто-таки как пример новой, правильной жизни – прежде всего из-за масштаба. Дело в том, что несмотря на престижность и отличную экологию района – тут не только высотная отметка 208 м, но и три лесопарка с шаговой доступности; тут со всех сторон университеты и институты: им. Пирогова, биохимии, дружбы народов – городской ткани здесь можно сказать что нет: то поля, то какие-то склады и извечным автосервисом, то чистые, белые, но высокие и панельные муравейники. В этом контексте ЖК «Ландыши» мгновенно притягивает взгляд – как дом «неотсюда», построенный на иных принципах, – может быть, даже как «зерно» иного отношения к городу. Хотя признаемся, учитывая факторы юго-запада и то, сколько высотного уже построено, вряд ли стоит рассчитывать, что «зерно» быстро прорастет и новый принцип все вокруг захватит. Но само по себе его появление – случай интересный.

Дом сдали в январе нынешнего года, постепенно он заполняется жильцами.