Размещено на портале Архи.ру (www.archi.ru)

05.06.2019

Театр-город

Юлия Тарабарина, Алёна Кузнецова
Объект:
Академия танца под руководством Бориса Эйфмана, 2 очередь
Адрес:
Россия, Санкт-Петербург. Введенская ул., 3, лит. А
Архитектор:
Никита Явейн
Иван Кожин
Антон Яр-Скрябин
Мастерская:
Студия 44
Авторский коллектив:
Архитекторы: Н. И. Явейн, А. П. Яр-Скрябин, Е. В. Косачева, В. Л. Кулаченков, А.В. Соловьев.
При участии Е. В. Федотовой, Д.А. Андреевой.
Конструкторы: Д. П. Кресов, Е. В. Силантьева, И. Б. Шустова, А. С. Кривоносов, С. А.Шведов, С. С. Богданов, А. В. Левшина, А. Ю. Короваев, М. И. Кердоль, А. В. Агашков

Вторая очередь Академии танца Бориса Эйфмана выстроена вокруг здания театра, а «крутится» ее пространство вокруг архитектурной сценографии городка-атриума. Получается матрешка: театр в городе, город в театре, и все это школа. Очень эффективный вариант использования пространства.

Академия танца под руководством Бориса Эйфмана, 2 очередь. Фойе
Академия танца под руководством Бориса Эйфмана, 2 очередь. Фойе
Фотография © Маргарита Явейн

Из российских бюро пока только «Студии 44» удается побеждать на конкурсах международного архитектурного фестиваля WAF; в 2015 году архитекторы получили эту престижную награду за Академию танца Бориса Эйфмана на улице Лизы Чайкиной в Петербурге. Сейчас «Студия 44» достраивает вторую очередь того же кампуса академии Танца.

Кампус расположен на Петроградской стороне, в квартале у перекрестка улицы Лизы Чайкиной и Большой Пушкарской, где не так уж много места для нового строительства. По его северо-западной границе, вдоль Большого проспекта Петроградской стороны, вытянулась вереница доходных домов плюс один «сталинский» дом, по Большой Пушкарской, 14. Сохранен особняк Юлии Добберт, пример деревянного модерна, рядом – ее же доходный дом, кирпичная псевдоготика. Первая очередь Академии танца, выстроенная в 2011-2013, поместилась почти полностью во дворе, лишь на улицу Лизы Чайкиной выглядывает реконструированный фрагмент – неоампирная экседра, воспоминание о синематографе начала XX века. Ее фон – стена с кирпичными QR-кодами, в которых зашифрованы высказывания о балете, торец протяженного, уходящего в глубину квартала, учебного здания, чей атриум – высокое эффектное ущелье, зовущее вперед и вверх, собрал много профессиональных наград. Правее, в самой середине двора, учебный корпус расширяется, к нему примыкает общежитие учеников.
Академия танца под руководством Бориса Эйфмана, 2 очередь Фотография © Александр Медведков
Академия танца под руководством Бориса Эйфмана, 2 очередь
Фотография © Александр Медведков
Академия танца под руководством Бориса Эйфмана, 2 очередь Фотография © Александр Медведков
Академия танца под руководством Бориса Эйфмана, 2 очередь
Фотография © Александр Медведков
Академия танца под руководством Бориса Эйфмана, 2 очередь. Проект  © Студия 44
Академия танца под руководством Бориса Эйфмана, 2 очередь. Проект
© Студия 44

Академия открылась в 2013, а уже в следующем году город передал ей еще одно здание на территории того же квартала – общеобразовательную школу № 91 на углу Введенской и Большой Пушкарской улицы. Старую школу «расселили» на Сытнинскую площадь, а «Студия-44» занялась проектом второй очереди комплекса, в рамках которого Академия должна получить обновленное здание для занятий общеобразовательной программы с современными классами и, вместо актового зала, большую сцену, пригодную для полноценных постановок, со зрительным залом на 400 человек – фактически, полноценный театр, что, признаем, логично для такого профессионального учебного заведения, как Академия Эйфмана.
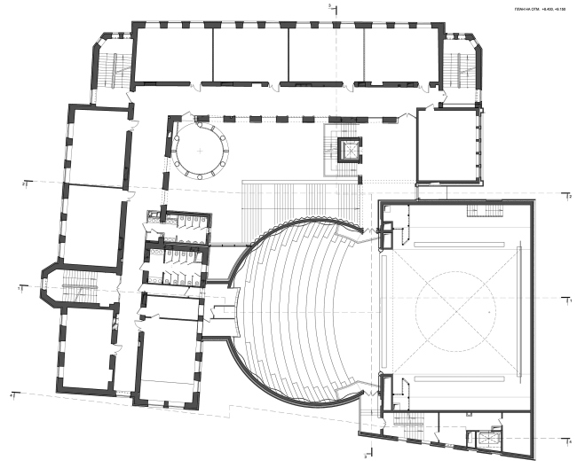
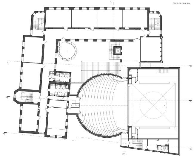
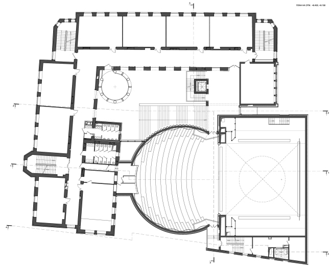
Академия танца под руководством Бориса Эйфмана, 2 очередь. Проект. План
Академия танца под руководством Бориса Эйфмана, 2 очередь. Проект. План
© Студия 44

В процессе проектирования объем театра, следуя пожеланиям основателя и бессменного руководителя, рос, подобно известной собачке – в конечном счете сцена получила совершенно «полноценные» размеры со всеми вытекающими техническими возможностями. Ее параллелепипед, вынесенный консолью над проходом во двор, почти сомкнулся с корпусом общежития, который, впрочем, также выступает навстречу консолью – два здания тянутся друг к другу, оставляя между торцами ущелье шириной около трех метров. Решение неудивительное для исторического города, где вечно мало места, и предсказуемое: напомним, что и при проектировании первой очереди места катастрофически не хватало и архитекторам пришлось применить немало смекалки, чтобы бесконфликтно уместить все требуемые функции и площади. На кровле сцены расположился репетиционный зал – безопорное мансардное пространство, перекрытое гнутыми деревоклееными балками, которые формируют округлый покатый силуэт.
Академия танца под руководством Бориса Эйфмана, 2 очередь. Репетиционный зал Фотография © Маргарита Явейн
Академия танца под руководством Бориса Эйфмана, 2 очередь. Репетиционный зал
Фотография © Маргарита Явейн
Академия танца под руководством Бориса Эйфмана, 2 очередь. Репетиционный зал Фотография © Маргарита Явейн
Академия танца под руководством Бориса Эйфмана, 2 очередь. Репетиционный зал
Фотография © Маргарита Явейн
Академия танца под руководством Бориса Эйфмана, 2 очередь. Репетиционный зал Фотография © Маргарита Явейн
Академия танца под руководством Бориса Эйфмана, 2 очередь. Репетиционный зал
Фотография © Маргарита Явейн
Академия танца под руководством Бориса Эйфмана, 2 очередь. Репетиционный зал Фотография © Маргарита Явейн
Академия танца под руководством Бориса Эйфмана, 2 очередь. Репетиционный зал
Фотография © Маргарита Явейн

Поверхность кровли покрыта ромбами титан-цинка RHEINZINK, образующими поблескивающую «шкуру», плавно «стекающую» вниз, на торец сцены. В определенном ракурсе со стороны Большой Пушкарской этот прием оформления возникшего здесь, в центре квартала, «городского ущелья», выглядит романтично и даже подхватывает ноты модерна, заданные соседними домами Юлии Добберт – южный бок сцены кажется спиной сказочного рериховского змея.
Академия танца под руководством Бориса Эйфмана, 2 очередь Фотография © Маргарита Явейн
Академия танца под руководством Бориса Эйфмана, 2 очередь
Фотография © Маргарита Явейн
Академия танца под руководством Бориса Эйфмана, 2 очередь Фотография © Маргарита Явейн
Академия танца под руководством Бориса Эйфмана, 2 очередь
Фотография © Маргарита Явейн
Академия танца под руководством Бориса Эйфмана, 2 очередь Фотография © Маргарита Явейн
Академия танца под руководством Бориса Эйфмана, 2 очередь
Фотография © Маргарита Явейн
Слева – фасад общежития учеников, справа – внешний торец сцены 2 очереди. Академия танца под руководством Бориса Эйфмана Фотография: Ю.Тарабарина, Архи.ру
Слева – фасад общежития учеников, справа – внешний торец сцены 2 очереди. Академия танца под руководством Бориса Эйфмана
Фотография: Ю.Тарабарина, Архи.ру
Академия танца под руководством Бориса Эйфмана, 2 очередь Фотография © Маргарита Явейн
Академия танца под руководством Бориса Эйфмана, 2 очередь
Фотография © Маргарита Явейн

Объем зрительного зала – чистый цилиндр-башня плотных пропорций, примыкает к сцене с северо-востока и надо сказать, всё здесь «вертится» именно вокруг него. Круглящийся бок обращен к жилым домам и внутренней пешеходной улочке; он облицован «фирменным» светло-бежевым кирпичом, подобранным в свое время под воссозданный фасад бывшего синематографа. Цилиндр лаконичен, как, скажем, башня Антониева монастыря в Новгороде и также становится притягательным стереометрическим акцентом, скульптурным сюрпризом для завернувшего случайно за угол. Угол же в этом месте продлили, добавив школе полезной площади; достроенная часть облицована кирпичом, наглядно отличаясь от серых штукатурных фасадов здания 1930-х.

Вторая половина цилиндрического объема выходит в атриум. Собственно, атриум – главный сюжет проекта и нового здания Академии. Накрытый скатной стеклянной кровлей на непривычно тонком деревянном каркасе, небольшой по площади и высокий, как питерский двор, он и объединяет, и разделяет разные части школы, служит одновременно крытым школьным двором и эффектным театральным – или скажем даже театрализованным – фойе. А дело вот в чем.

Атриум занял внутренний угол Г-образного здания школы – точнее, часть пространства двора к югу от цилиндра зрительного зала. Узкое вертикальное пространство ограничено круглым объемом зрительного зала, двумя стенами школы и лестничной клеткой, позволяющей, в частности, ученикам-актерам попасть из школы прямо на сцену. Но этого мало, это было бы скучно и тесно, и архитекторы идут по парадоксальному пути – затесняют пространство еще чуть больше, насыщая акцентами и смыслами, делая плотность материи в ее разных выражениях критической – и как следствие, насыщенной, нескучной.

Цилиндру зрительного зала в восточном углу вторит много более стройная башня школьной рекреации. Ее формируют круглые бетонные опоры, чередующиеся с узкими трапециевидными простенками из цельного белого мрамора. Проемы первого этажа застеклены полностью, выше – лишь на высоту 1,2 м. Стекло для безопасности, но оно позволяет ученикам с любого этажа свободно смотреть в атриум. Сама же башня сразу же ассоциируется с подчас столь же ажурными лестницами во дворах готических дворцов, возьмем к примеру палаццо Контарини дель Боволо. В пазухе между зрительным залом и стеной школы – облицованный кирпичом выступ c круглым окном, фирменной подписью «Студии 44»: «…во всех наших проектах есть такое окно», – поясняет Антон Яр-Скрябин.
Академия танца под руководством Бориса Эйфмана, 2 очередь. Фойе
Академия танца под руководством Бориса Эйфмана, 2 очередь. Фойе
Фотография © Маргарита Явейн

Напротив – вереница лестниц с часами, почти как в Хогвартсе; они тоже, как и круглая башня, будут застеклены и открыты в сторону атриума. Две стены школы, образующие фон, облицованы белым мрамором с акцентированным рисунком «руста» стыков, довольно сложным, в духе неогрек или петербургских 1930-х – более дорогой и скрупулезно прорисованный вариант исторических фасадов той же школы.
Академия танца под руководством Бориса Эйфмана, 2 очередь. Фойе
Академия танца под руководством Бориса Эйфмана, 2 очередь. Фойе
Фотография © Маргарита Явейн

Бок сцены покрыт острыми зигзагообразными складками насыщенно-бежевого, золотистого, но пористого и с прожилками, травертина. Эта разновидность камня так и называется – Gold.
Травертин Gold вблизи. Академия танца под руководством Бориса Эйфмана, 2 очередь
Травертин Gold вблизи. Академия танца под руководством Бориса Эйфмана, 2 очередь
Фотография: Ю.Тарабарина, Архи.ру

Результат похож, конечно же, на занавес, то ли шелковый, то ли бархатный; на большой плиссированный занавес, отгораживающий здание театра. Разумеется, его фрагменты «входят» в пространство лестницы, воплощая принцип взаимопроникновения объемов и фактур и давая возможность ощутить целостность цилиндрического объема зрительного зала. Получается, две стены атриума похожи на стены городских домов; лестница и башня-балкон более открыты и становятся точками раскрытия-созерцания; а стена-занавес отчетливо показывает, что мы уже в театре, вот только вопрос – в фойе перед шатром-шапито, или на сцене, и сейчас занавес откроется, а нам надо будет выступать, играть какого-нибудь «Ромео и Джульетту», благо балкон уже здесь.

С другой стороны, регулярность каменных складок не в меньшей степени напоминает шестеренку – тогда зал становится цилиндром-валом, осевой частью театрального механизма, вокруг которого все здесь вертится. И опять же: вообразим, что вращение гигантской machina началось, и вот весь наш атриум выехал на сцену, а вот – за ним туда же попали школьные кабинеты. Сравнение, конечно, образное, но современная архитектура любит изображать собой застывший механизм и этим, как правило, что-то говорит. К примеру – метафорически – что всё здесь вертится вокруг театральной жизни, и школа, и репетиции, и декорации, в том числе застывшие, архитектурные.
Академия танца под руководством Бориса Эйфмана, 2 очередь. Фойе
Академия танца под руководством Бориса Эйфмана, 2 очередь. Фойе
Фотография © Маргарита Явейн

У каждого ракурса свой сюжет и функция – это вариант статичной сценографии, несменяемой, но открытой для разнообразного наполнения и уплотненной по-театральному. В обычной ситуации это было бы избыточно, но здесь, рядом со сценой, уместно – атриум становится моделью городской площади (что особенно, как гвоздиком, закреплено часами на лестнице) – традиционного места уличных представлений и действ. Площади, которая могла бы подойти для почти любой, прежде всего классической итальянской постановки: здесь и окно, и стены с окнами, и вереница балконов, нанизанная на вертикальную ось башни-рекреации. Атриум стал своего рода проекцией базовых элементов театра и в этом смысле идеальным фойе. Которое, впрочем, благодаря множеству запрограммированных здесь эмоций, хорошо подходит и для школьного двора, предлагая детям впечатления. Близость его, сращенность со школой, возможно, позволит ученикам проникнуться жизнью на подмостках, ощущать себя ее частью постоянно. Тему поддерживают круглые лампы, похожие на стайку мыльных пузырей, и «туча» светлячков, взмывающих с нижних этажей к самому потолку.
Академия танца под руководством Бориса Эйфмана, 2 очередь. Фойе
Академия танца под руководством Бориса Эйфмана, 2 очередь. Фойе
Фотография © Маргарита Явейн

Эффектный замысел, согласно которому здесь среди «обычного» города посетители внезапно бы обнаруживали себя в театрализованном городе-декорации, был неожиданно нарушен вмешательством заказчика. Первоначально вход в сросшиеся между собой здания школы-театра планировался со двора: зрители, проходя с створ между школьным корпусом и деревянным особняком, попадали бы в небольшой двор, оттуда – сразу вниз, в подземный гардероб, затем выходили бы вверх по широкой лестнице в центре города-атриума, вырастающего прямо над ними; затем, по столь же широкой лестнице в партер. Но Борис Эйфман счел категорически необходимым, чтобы у театра был портик, идентифицирующий его как «храм искусств». Архитекторы сопротивлялись как могли, нарисовали около десяти вариантов, поскольку идея художественного руководителя Академии разместить портик асимметрично на фасаде школьного здания со стороны Введенской улицы – представляется им вредной и не обоснованной ни градостроительно, ни исходя из выстроенной логики внутреннего пространства. Дело закончилось тем, что портик вместо «строптивых» авторов здания нарисовал «все понимающий» подрядчик. Главному архитектору города пришлось это принять. Вот вам и сюжет «о роли заказчика в истории архитектуры». И Никита Явейн, и Антон Яр-Скрябин по прежнему испытывают шок от произошедшего. А зря. В здании много других решений, а портик – представим себе – могли приделать и десять лет спустя, чего только в истории не случается.

Между тем запланированный путь стал иным. Теперь зрителям спектаклей надо будет пройти сквозь небольшой вестибюль-«прихожую» школьного здания, которое на время спектаклей и прихода внешних гостей будет изолировано по соображениям нормативов безопасности. Что не слишком удобно для школы и искажает заложенную здесь первоначально, «сыгранную как по нотам», последовательность погружения в пространство театра; путь становится чересчур прихотливым: узкая «прихожая», атриум, лестница в гардероб (да еще и развернутая «спиной» ко входу, – поясняют архитекторы), опять атриум, партер. С одной стороны, вроде бы ничего страшного, с другой – первый, ну, или нулевой акт – знакомства с театром, в значительной степени растворится в суете передвижений. Для того, чтобы увидеть в атриуме сцену «итальянского» города с башней зрителям придется сделать дополнительное усилие, покрутить головой или отойти дальше к южной стене, чей вход теперь стал запасным. Впрочем что поделать, зрителям полезно крутить головой.
Академия танца под руководством Бориса Эйфмана, 2 очередь. Зона гардероба
Академия танца под руководством Бориса Эйфмана, 2 очередь. Зона гардероба
Фотография © Маргарита Явейн

Школа, расположенная в наследном здании 1930-х, устроена традиционно: первые два этажа для младших классов, третий и четвертый для старших. Классы хорошо оснащены и окрашены в светлые и мягкие тона, причем одна из стен в каждом помещении – иная по тону, что позволяет легко идентифицировать класс или кабинет. Коридоры, обращенные стеклянными ограждениями в атриум, оснащены противопожарными шторами, как и лестницы. Вопросам безопасности, в том числе противопожарной, здесь уделено много внимания: зрительный зал облицован камнем и негорючими панелями, что соответствует классу пожарной безопасности КМ0.
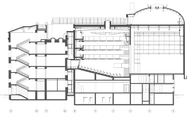
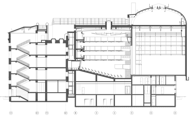
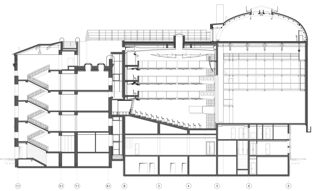
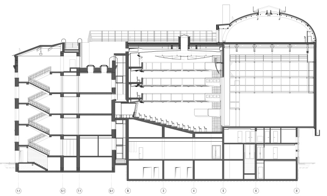
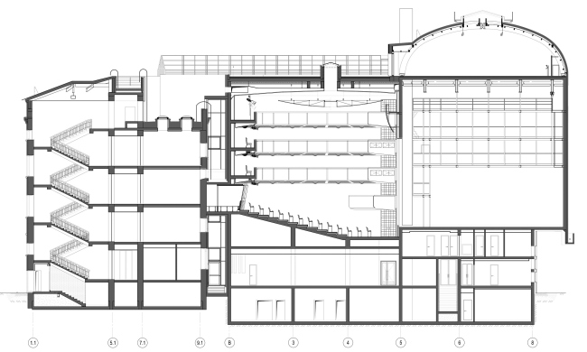
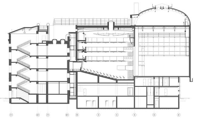
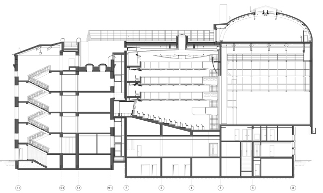
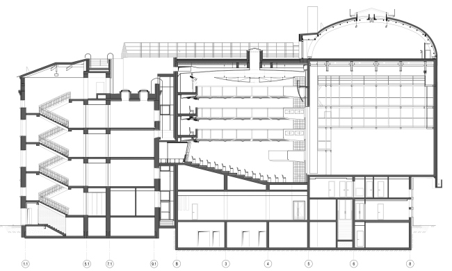
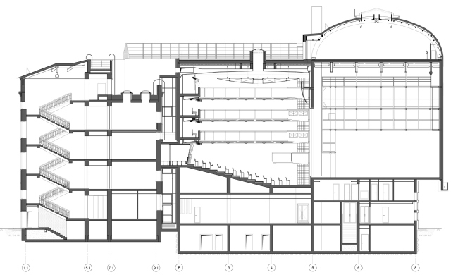
Академия танца под руководством Бориса Эйфмана, 2 очередь. Разрез
Академия танца под руководством Бориса Эйфмана, 2 очередь. Разрез
© Студия 44

Из других технических деталей – напомним, что сцена и зал росли в процессе проектирования и сцена доросла до предельных для данного участка габаритов, но в результате получила профессиональный размер и все необходимые возможности для постановки не только учебных, но и «полноценных» спектаклей. Под полом партера расположена камера статического давления, система вентиляции тише и меньше обычной, что позволило разместить под сценой полуэтаж с гримерными, разгрузочным цехом декораций и складом костюмов. Увеличив высоту сцены и изменив геометрию крыши, получили пространство для колосников. В зрительном зале, помимо партера, два зрительских яруса и один технический.
Академия танца под руководством Бориса Эйфмана, 2 очередь. Зал Фотография © Маргарита Явейн
Академия танца под руководством Бориса Эйфмана, 2 очередь. Зал
Фотография © Маргарита Явейн
Академия танца под руководством Бориса Эйфмана, 2 очередь. Зал Фотография © Маргарита Явейн
Академия танца под руководством Бориса Эйфмана, 2 очередь. Зал
Фотография © Маргарита Явейн
Академия танца под руководством Бориса Эйфмана, 2 очередь. Зал Фотография © Маргарита Явейн
Академия танца под руководством Бориса Эйфмана, 2 очередь. Зал
Фотография © Маргарита Явейн
Академия танца под руководством Бориса Эйфмана, 2 очередь. Проект  Фотография © Маргарита Явейн
Академия танца под руководством Бориса Эйфмана, 2 очередь. Проект
Фотография © Маргарита Явейн

Школа и театр завершили ансамбль Академии танца, теперь ее здания заняли квартал почти полностью, обеспечив цикл обучения всем необходимым и даже «выросшим на глазах» настоящим театром, ядром и целью занятий, необходимой для балета дисциплины и ежедневного самосовершенствования учеников. Здания не просто сомкнулись визуально, они еще и соединены подземным теплым переходом – так что из школы можно прийти в Академию на какой-нибудь большой открытый урок. Кроме того, разные способы работы с наследием: реставрация деревянного особняка, возрожденный фрагмент кинотеатра, обновление школьного здания – в рамках этого творческого квартала переплетены с уплотненной, инвариантной, где-то подчеркнуто лаконичной, где-то – ярко театрализованной современной архитектурой. Все вместе – тонкая и кропотливая работа с функцией, упакованной архитекторами, практически как улитка в раковине, то есть с постоянным обнаружением скрытых пространственных резервов, в тесных рамках исторического контекста. Результат же – «город в городе», комфортное убежище поклонников профессионального танца.