Размещено на портале Архи.ру (www.archi.ru)

18.10.2018

15 фактов о доме Наркомфина

Лара Копылова, Юлия Тарабарина
Объект:
Проект реставрации и приспособления объекта культурного наследия «Здание дома Наркомфина» (2015–2017)
Адрес:
Россия, Москва. Новинский бульвар, 25, к.1
Архитектор:
Алексей Гинзбург
Мастерская:
Гинзбург Архитектс

Реставрация дома Наркомфина идет полным ходом, в мае начались продажи квартир. А много ли известно о знаменитом памятнике архитектуры конструктивизма? Мы поговорили в Алексеем Гинзбургом, посчитали заблуждения и постарались их развеять, заодно вникнув в некоторые детали реставрации и исследования дома.

Дом Наркомфина, проект. Из книги М.Я. Гинзбурга «Жилище». М., 1934. С. 81
Дом Наркомфина, проект. Из книги М.Я. Гинзбурга «Жилище». М., 1934. С. 81

1. Его спасали 30 лет
Алексей Гинзбург – внук Моисея Гинзбурга, построившего дом Наркомфина. Его отец, Владимир Моисеевич, начал заниматься домом в 1980-е годы, Алексей подключился в 1986 году. Примерно тридцать лет ни стимулировать государство к заботе о ключевом памятнике русского авангарда, ни найти инвестора, заинтересованного в грамотном восстановлении дома, не удавалось, хотя проект был готов с 1990-х, впрочем, архитекторы его постоянно дорабатывали. Инвестор 2008–2014 года предлагал проект, согласно которому под домом строилась подземная парковка.
Дом Наркомфина, довоенная фотография. Предоставлено Гинзбург Архитектс
Дом Наркомфина, довоенная фотография. Предоставлено Гинзбург Архитектс
Дом Наркомфина перед началом реставрации. Предоставлено Гинзбург Архитектс
Дом Наркомфина перед началом реставрации. Предоставлено Гинзбург Архитектс
Состояние перед началом реставрации. Предоставлено Гинзбург Архитектс
Состояние перед началом реставрации. Предоставлено Гинзбург Архитектс

В конце 2015 появился новый владелец, компания «Лига прав» Гарегина Барсумяна, в 2017 к компании перешло 100% собственности, все жители были отселены. В 2016 начались детальные реставрационные исследования дома, причем выяснилось, что его железобетонные конструкции в хорошем состоянии. Собственно реставрационные работы, по словам представителей девелопера, начаты в январе 2018. Реставрацией дома занимается «Гинзбург Архитектс», ожидавшее этой возможности около тридцати лет. В доме постоянно водят экскурсии. Работает риелторский сайт, где специально подчеркивается ценность дома как памятника конструктивизма.
Проект реставрации и приспособления объекта культурного наследия «Здание дома-коммуны Наркомфина» (2015–2017) © Гинзбург Архитектс
Проект реставрации и приспособления объекта культурного наследия «Здание дома-коммуны Наркомфина» (2015–2017) © Гинзбург Архитектс

«В какой-то момент я понял, что экскурсии в доме стали проводиться не только на английском языке, но и на русском, что атмосфера в обществе поменялась, нашим соотечественникам стала, наконец, интересна история архитектуры авангарда. Видимо, этот интерес накопился в воздухе и повлиял на начало реставрации», – говорит Алексей Гинзбург.

Проект реставрации согласован с Департаментом культурного наследия. Сложностей в согласовании не было, потому что, как говорит Алексей Гинзбург, «требования, которые мы сами к себе предъявляем, более жесткие, чем общие нормативы». Впрочем дом Наркомфина пока остается памятником регионального значения – Алексей Гинзбург вполне обонованно считает его заслуживающим федерального статуса, также как и включения в число объектов, охраняемых ЮНЕСКО.
Проект реставрации и приспособления объекта культурного наследия «Здание дома-коммуны Наркомфина» (2015–2017) © Гинзбург Архитектс
Проект реставрации и приспособления объекта культурного наследия «Здание дома-коммуны Наркомфина» (2015–2017) © Гинзбург Архитектс
Проект реставрации и приспособления объекта культурного наследия «Здание дома-коммуны Наркомфина» (2015–2017) © Гинзбург Архитектс
Проект реставрации и приспособления объекта культурного наследия «Здание дома-коммуны Наркомфина» (2015–2017) © Гинзбург Архитектс

2. Дом-коммуна: неправда
Дом Наркомфина не дом-коммуна, – не устает повторять Алексей Гинзбург, – это коммунальный дом. Но даже если вызубрить эту тонкость, положа руку на сердце, много яснее не становится.

Чем же отличается дом-коммуна от коммунального дома?
Дом-коммуна предполагает полное обобществление быта – представители типологии это, прежде всего, студенческие общежития конца 1920-х годов (тогда на проект студенческого дома-коммуны был проведен конкурс). Один из самых показательных примеров – дом-коммуна архитектора Ивана Николаева на улице Орджоникидзе, общежитие студентов Текстильного института. Моисей Гинзбург критиковал практику домов-коммун: «...конвейер, по которому течет здесь нормированная жизнь, напоминает прусскую казарму. <...> Нет нужды доказывать абстрактную утопичность и ошибочную социальную сущность всех этих проектов. <...> Нельзя не заметить во всей этой программе механического процесса увеличения до астрономических размеров молекулярных элементов бытового уклада старой семьи» (М.Я. Гинзбург. Жилище. М., 1934. С. 138, 142).

Коммунальный дом полного обобществления быта не навязывает, а скорее предлагает его элементы как удобство. Название восходит к проекту «Коммунального дома А-1», который Гинзбург предложил на организованный им же конкурс журнала СА в 1927 году как опыт создания нового типа жилья, в котором заключен принцип сочетания вполне индивидуализированных жилых помещений с целым рядом обобществленных функций. (Современная архитектура, 1927, №4-5. Цит. по: С.О. Хан-Магомедов. Там же. С. 79).

Авторское название дома Наркомфина – опытный дом переходного типа, так он назван в книге Моисея Гинзбурга «Жилище». Почему опытный? В 1928 году Гинзбург, энергичный теоретик и практик, один из несомненных лидеров движения конструктивизма, живо интересовавшийся проблемами жилья, инициировал создание при Стройкоме РСФСР, тогдашнем министерстве строительства, «секции типизации» жилья, и стал ее председателем. Секция разрабатывала жилые ячейки и способы их сопряжения, стремясь к эффективности, стандартизации и индустриализации без потери вариативности. Из речи Моисея Гинзбурга на пленуме Стройкома: «Нужно проводить такую стандартизацию, которая позволила бы варьировать типы жилья, используя одни и те же стандартные элементы» (С.О. Хан-Магомедов. Моисей Гинзург. М., 1972. С.97). 

3. Доходный дом как образец: правда
За источник и точку отсчета был принят – внимание – доходный дом XIX века: «Анализ показал, что этот тип жилья при всем своем культурном убожестве в известной степени удовлетворял интересам средней и мелкой буржуазии и притом давал экономический эффект более высокий, чем например массовое жилищное строительство Москвы первых лет после революции», – пишет Моисей Гинзбург в книге «Жилище» (М., 1934. С.66).

В поисках эффективности взятый за прообраз доходный дом для начала лишился черной лестницы и комнаты для прислуги, а затем с квартирами – жилыми ячейками начали происходить интереснейшие трансформации, сделавшие их по большей части двухъярусными с разной высотой потолков: сравнительно невысокие, 2,3 м, спальни, санузлы и кухни – соседствовали с «жилой частью» высотой 3,6 м, что позволяло достичь минимальных, то есть наилучших, коэффициентов эффективности кубатуры жилого пространства; высота гостиных – 5,2 м. Эффективность также достигалась: уменьшением кухонь и предложением «кухонных ниш», причем во многих случаях заменяемых но более всего – коридором, который, с одной стороны, планировался светлым, а с другой – обслуживал два этажа. И рассчитывалась исходя из параметров, приходя к коэффициентам, сложенным в формулы и графики.

Секция Стройкома разработала шесть типов ячеек, пронумеровав их от A до F, а опытный переходный дом Министерства финансов, он же второй дом Совнаркома, – один из первых примеров применения расчетов на практике. Всего было построено шесть опытных домов.
Расчеты эффективности использования жилого объема и планировки ячейки типа F. Из книги М.Я. Гинзбурга «Жилище». М., 1934. С. 77
Расчеты эффективности использования жилого объема и планировки ячейки типа F. Из книги М.Я. Гинзбурга «Жилище». М., 1934. С. 77

Обобществления быта опытные дома не навязывали – скорее они должны был предлагать столовую, прачечную и детский сад как элементы комфорта и способ освобождения рабочего времени жителей, снимая с них часть бытовой нагрузки. Столовая была построена и функционировала в коммунальном корпусе, но в каждой квартире были кухни. Причем проект предполагал возможность выбора между обычной кухней и кухней-шкафом, предназначенной для того, чтобы разогревать еду и освобождающей место в квартире.

Так что распространенное выражение «дом-коммуна Наркомфина» не имеет смысла. К слову, Моисей Гинзбург терпеть не мог коммунальных квартир и стремился проектировать свои ячейки так, чтобы коммуналки в них были невозможны. Но нет ничего невозможного – после войны коммуналки здесь появились, тогда же все возможные пространства начали постепенно захватывать под жилье, перегораживать и застраивать: так появились квартиры в первом этаже и на балконе. 

4. Тесные квартиры высотой 2,3 м: неправда
Ну или не вполне правда. Главное идеей Моисея Гинзбурга было максимально эффективно использовать даже не полезную площадь, а объем жилого пространства. Поэтому там, где высота не требуется: в ванных и спальных ячейках – потолки, действительно, 2,3 м. Зато здесь же в гостиных – 4,9 м. К тому же гостиные очень светлые благодаря обилию стекла, на внешнюю стену приходится по два ленточных окна, верхнее и нижнее, свет из гостиных доходит и до спален. Ячейки типа F – полуторные, здесь высота гостиных 3,6 м.

В доме Наркомфина использовано два типа ячеек: F и K, которой в списке нет, но она близка ячейке типа D – для «семей, сохранивших более полно свой старый бытовой уклад». Внутри дома они сложились в подобие объемного тетриса, гарантирующего переплетение пространств и увлекательность отгадывания структуры (ради одного этого стоит сходить на экскурсию). 

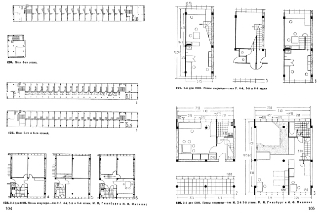
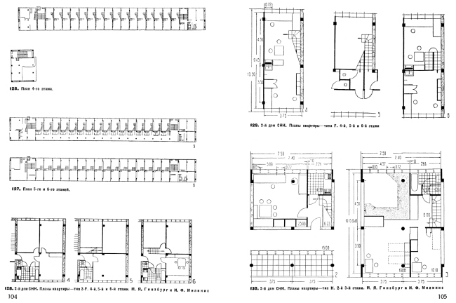
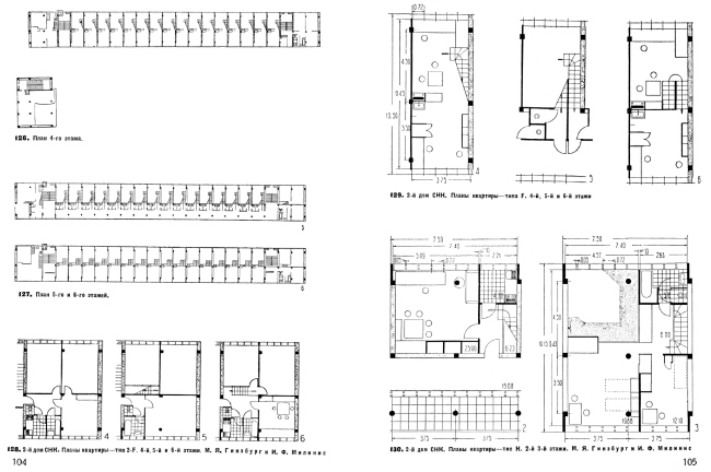
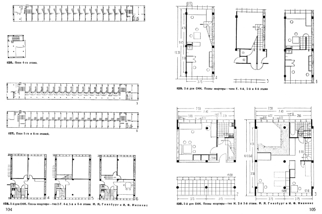
5. Два коридора на пять этажей: правда
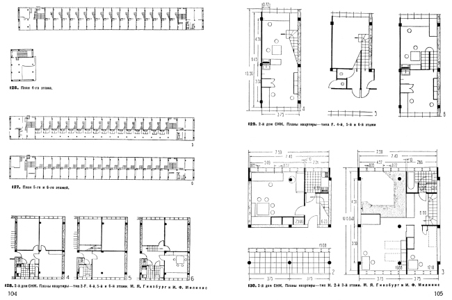
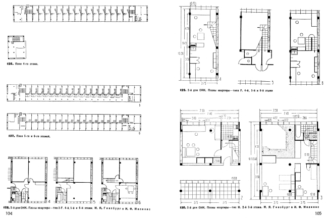
Главным результатом объемных и алгебраических поисков секции Стройкома стала сложная для обыденного понимания структура дома. Первый этаж «на ножках» нежилой, коридоры – на 2 и 5 этажах: со второго попадают также на третий, а с пятого на четвертый и шестой. Коридоры связаны двумя лестницами с северной и южной части; между лестницами и торцами дома размещены увеличенные квартиры, модификации ячеек K и F – K2 и F2.
Дом Наркомфина (2 дом СНК), планировки. Из книги М.Я. Гинзбурга «Жилище». М., 1934. С. 104-105
Дом Наркомфина (2 дом СНК), планировки. Из книги М.Я. Гинзбурга «Жилище». М., 1934. С. 104-105
Поздние пристройки и надстройки. Проект реставрации и приспособления объекта культурного наследия «Здание дома-коммуны Наркомфина» (2015–2017) © Гинзбург Архитектс
Поздние пристройки и надстройки. Проект реставрации и приспособления объекта культурного наследия «Здание дома-коммуны Наркомфина» (2015–2017) © Гинзбург Архитектс

6. Построен из камышита: неправда
Историю о том, что дом Наркомфина построен чуть ли не целиком из камышита, то есть из соломы, поэтому гниет и его восстановление проблематично, запустил лет 15 примерно назад Григорий Ревзин. Возможно, он не предполагал, что версия окажется столь популярной, но словечко «камышит» прилипло к дому накрепко.
Утеплитель из камышита. Предоставлено Гинзбург Архитектс
Утеплитель из камышита. Предоставлено Гинзбург Архитектс
Утеплитель из камышита. Предоставлено Гинзбург Архитектс
Утеплитель из камышита. Предоставлено Гинзбург Архитектс

На самом деле камышит – это разновидность утеплителя, с которым в 1920-е экспериментировали как советские конструктивисты, так и архитекторы Баухауса. В конечном счете эксперименты привели к появлению современных утеплителей типа минеральной ваты. Камышит, или соломит, состоит из спрессованных стеблей соломы или камыша. Сложить из него стены без укрепления каркасом невозможно. В доме Наркомфина и коммунальном корпусе камышит использован для утепления торцов бетонных балок, выходящих наружу, для удаления так называемых «мостиков холода»; частично – балки под потолком в квартирах. Камышитом же утеплены изнутри стены навесного перехода от дома к прачечной-общественному центру. И все. Это совсем немного. 

7. Бетонный каркас и шлакоблоки: правда
Инженер Сергей Прохоров потому, в частности, и считается соавтором дома, что не только его объемно-пространственное решение, но и конструктив стал результатом эксперимента.

Каркас дома железобетонный, стены сложены из пористых шлакоблоков-«камней» типа «Крестьянин», их изготавливали на стройплощадке, для чего на стройку привозили отходы металлургической промышленности (сегодня как изготовление материалов на стройке, так и использование отходов, считаются чертами экологического строительства, поскольку экономят массу энергии). Щелевидные полости внутри уменьшают вес блоков и улучшают, за счет воздушной прослойки, их теплоизоляционные свойства. Засыпка бетонной крошкой между блоками также улучшала теплоизоляционные свойства кладки.
Блоки «Крестьянин» для улучшения теплоизоляции пересыпали каменной крошкой. Предоставлено Гинзбург Архитектс
Блоки «Крестьянин» для улучшения теплоизоляции пересыпали каменной крошкой. Предоставлено Гинзбург Архитектс
Дом Наркомфина. Камень «Крестьянин». Предоставлено Гинзбург Архитектс
Дом Наркомфина. Камень «Крестьянин». Предоставлено Гинзбург Архитектс
Дом Наркомфина. Камень «Крестьянин». Предоставлено Гинзбург Архитектс
Дом Наркомфина. Камень «Крестьянин». Предоставлено Гинзбург Архитектс
Дом Наркомфина. Камень «Крестьянин». Историческая кладка. Изображение предоставлено Гинзбург Архитектс
Дом Наркомфина. Камень «Крестьянин». Историческая кладка. Изображение предоставлено Гинзбург Архитектс

Блоки 1920-х годов стали прообразом современного строительного «камня» – широко распространенного типа заполнения бетонных каркасов. Они настолько типичны, что архитекторам удалось найти на современном рынке блоки с теми же параметрами для восстановления утраченных частей стен.

А вот кирпич в доме Гинзбурга не использовался. Кирпичная кладка на торцах здания, обнаруженная краеведами, относится к ремонтам 1950-х годов и более позднего времени. Причина ремонтов – после войны засорилась и разрушилась проходящая здесь труба водостока, ее и починили кирпичом.
Дом Наркомфина. Камень «Крестьянин». Предоставлено Гинзбург Архитектс
Дом Наркомфина. Камень «Крестьянин». Предоставлено Гинзбург Архитектс

Блоки Прохорова были изобретены для дома Наркомфина. В полых блоках квадратного сечения были проведены трубы коммуникаций, как между квартирами, так и в плоскостях потолков – в некоторых случаях коммуникациям приходилось изгибаться, следуя сложному объемно-пространственному «тетрису» ячеек. Подобные пустотелые блоки в то же самое время начал использовать и Баухаус. Коммуникации в доме Наркомфина заменят, но принцип их прокладки сохраняет, а блоки Прохорова там, где они утрачены, восстановят.
Блоки инженера Прохорова. Проект реставрации и приспособления объекта культурного наследия «Здание дома-коммуны Наркомфина» (2015–2017) © Гинзбург Архитектс
Блоки инженера Прохорова. Проект реставрации и приспособления объекта культурного наследия «Здание дома-коммуны Наркомфина» (2015–2017) © Гинзбург Архитектс
Блоки Прохорова с остатками разрушенных коммуникаций внутри. Предоставлено Гинзбург Архитектс
Блоки Прохорова с остатками разрушенных коммуникаций внутри. Предоставлено Гинзбург Архитектс
«Вскрытые» блоки Прохорова. Предоставлено Гинзбург Архитектс
«Вскрытые» блоки Прохорова. Предоставлено Гинзбург Архитектс
Пример изгиба коммуникаций. Вид сверху вниз. Предоставлено Гинзбург Архитектс
Пример изгиба коммуникаций. Вид сверху вниз. Предоставлено Гинзбург Архитектс

8. Внутренние стены из соломы: неправда
Как уже было сказано, возвести стену из соломита или камышита без дополнительной обрешетки решетки нельзя, и камышитовых перегородок в доме не было.

Стены между комнатами были из фибролита: стружечных плит, напоминающих ДСП или ДВП второй половины XX века.

Полы в квартирах и на лестницах – наливные из ксилотита, искусственного камня из древесных опилок. По словам Алексея Гнзбурга, такой пол – теплый, почти деревянный, – архитекторы планируют воссоздать повсеместно там, где он утрачен. 

9. Причина ужасного вида – цветочные горшки на фасаде: правда
Восточный фасад с цветочницами стал отдельным элементом исследования. Обычно именно восточный фасад приводят как пример ужасного качества строительства конструктивистской архитектуры. Цветочницы, которые были установлены на окнах восточного фасада, имели отверстия для слива воды, которые в 1960-х заделали. С тех пор вода стояла в этих цветочницах, не удаляясь, и стала попадать в трещины. Вместо того чтобы освободить эти отверстия для нормального дренажа, были попытки штукатурку с фасадов сбить и сделать заново. На самом деле со штукатуркой все в порядке. Все дело в грамотной эксплуатации.

Вначале цветочницы планировали полностью заменить, но затем оказалось, что они очень глубоко встроены в стену и для замены потребуется разобрать большие участки стены. В результате цветочницы сохранены и отреставрированы.
Дом Наркомфина. Цветочница в процессе реставрации. Изображение предоставлено Гинзбург Архитектс
Дом Наркомфина. Цветочница в процессе реставрации. Изображение предоставлено Гинзбург Архитектс
Дом Наркомфина. Цветочница. Схема © Гинзбург Архитектс
Дом Наркомфина. Цветочница. Схема © Гинзбург Архитектс
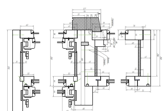
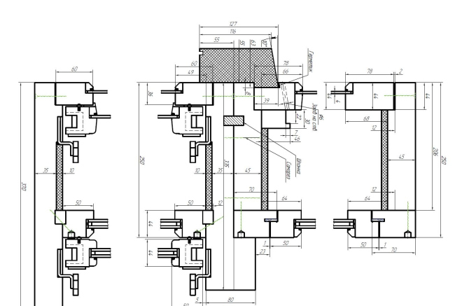
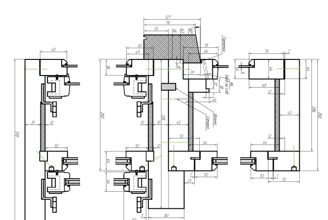
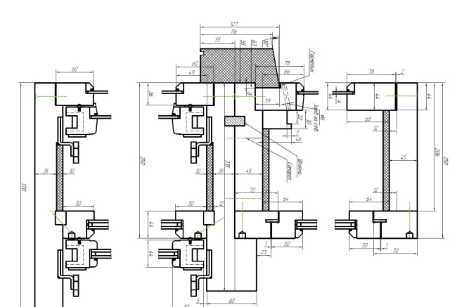
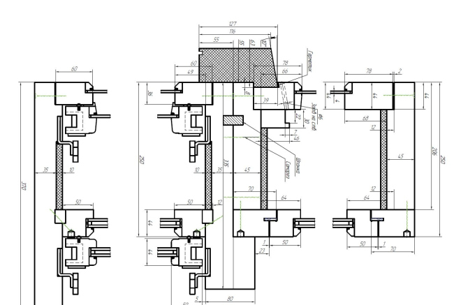
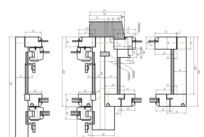
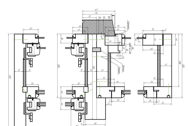
Дом Наркомфина. Окно. Чертеж © Гинзбург Архитектс
Дом Наркомфина. Окно. Чертеж © Гинзбург Архитектс
Дом Наркомфина. Цветочница. Схема © Гинзбург Архитектс
Дом Наркомфина. Цветочница. Схема © Гинзбург Архитектс
Дом Наркомфина. Западный фасад с окнами © Гинзбург Архитектс
Дом Наркомфина. Западный фасад с окнами © Гинзбург Архитектс
Дом Наркомфина. Восточный фасад с окнами © Гинзбург Архитектс
Дом Наркомфина. Восточный фасад с окнами © Гинзбург Архитектс
Дом Наркомфина. Цветочница до реставрации. Изображение предоставлено Гинзбург Архитектс
Дом Наркомфина. Цветочница до реставрации. Изображение предоставлено Гинзбург Архитектс

10. Подлинные окна утрачены: неправда
Еще одно know-how этого дома, закрепившееся впоследствии в архитектуре модернизма – окна со сдвижными рамами. Рамы деревянные, с тонкими выемками для пальцев, очень изящные в духе 1920-х, времени, когда еще сохранялось качество ремесленной продукции. Часть окон заменили в 1970-е, часть в последние годы – на стеклопакеты. Всю «столярку» планируется восстановить по подлинным образцам.
Дом Наркомфина. Окно. Современная фотография. Изображение предоставлено Гинзбург Архитектс
Дом Наркомфина. Окно. Современная фотография. Изображение предоставлено Гинзбург Архитектс
Дом Наркомфина. Окно. Деталь. Изображение предоставлено Гинзбург Архитектс
Дом Наркомфина. Окно. Деталь. Изображение предоставлено Гинзбург Архитектс
Дом Наркомфина. Окно. Историческое фото, интерьер. Изображение предоставлено Гинзбург Архитектс
Дом Наркомфина. Окно. Историческое фото, интерьер. Изображение предоставлено Гинзбург Архитектс
Дом Наркомфина. Отреставрированные окна. Изображение предоставлено Гинзбург Архитектс
Дом Наркомфина. Отреставрированные окна. Изображение предоставлено Гинзбург Архитектс
Дом Наркомфина. Окно. Деталь © Гинзбург Архитектс
Дом Наркомфина. Окно. Деталь © Гинзбург Архитектс
***
здесь заканчиваем игру в верю – не верю,
и вот еще несколько фактов
 

11. Первой отреставрировали перголу
Когда приступили к реконструкции кровли коммунального корпуса и сделали гидроизоляцию, идентичную исторической, обнаружили металлические перила с болтами. Сама по себе пергола сохранилась неплохо, но есть отдельные сильно поврежденные фрагменты. Поэтому приходилось вырезать их и заменять специально изготовленными новыми фрагментами так, чтобы шов аккуратно показывал, где новые части, где старые. Таким образом, металлические элементы кровли коммунального корпуса оказались первыми реставрированными частями здания.
Дом Наркомфина. Пергола после реставрации. Изображение предоставлено Гинзбург Архитектс
Дом Наркомфина. Пергола после реставрации. Изображение предоставлено Гинзбург Архитектс
Дом Наркомфина. Пергола до реставрации. Изгиб. Изображение предоставлено Гинзбург Архитектс
Дом Наркомфина. Пергола до реставрации. Изгиб. Изображение предоставлено Гинзбург Архитектс

12. На двух корпусах была зеленая кровля 
Преимущественно в виде цветников, их восстановят. Крыша была сконструирована в расчете на озеленение. Когда летом 2017 разобрали покрытие кровли коммунального корпуса, там обнаружилась сохранившаяся конструкция эксплуатируемой террасы. А на кровле жилого корпуса, рядом со знаменитым пентхаусом наркома Милютина, который тот устроил себе в вентиляционной шахте на основе ячейки типа К, после того как сняли доски, были найдены бордюры, некогда заполненные клумбами. Хотя фотографии клумб не известны, помогли чертежи, опубликованные в книге Моисея Гинзбурга «Жилище». Впрочем, в некоторых местах пришлось заново проектировать схему отвода воды.
Дом Наркомфина. Зеленая кровля. Изображение предоставлено Гинзбург Архитектс
Дом Наркомфина. Зеленая кровля. Изображение предоставлено Гинзбург Архитектс

13. Винтовую лестницу пришлось заменить 
От изящной винтовой металлической лестницы почти ничего не осталось. Лестница простояла 70 лет, но исчезла в последние годы, когда из дома уносили все подряд. Ее пришлось воспроизводить по чертежам.
Замененная винтовая лестница на кровлю, 2018. Предоставлено Гинзбург Архитектс
Замененная винтовая лестница на кровлю, 2018. Предоставлено Гинзбург Архитектс
Дом Наркомфина. Винтовая лестница на кровлю. Схема © Гинзбург Архитектс
Дом Наркомфина. Винтовая лестница на кровлю. Схема © Гинзбург Архитектс

14. Открытый первый этаж – идея Моисея Гинзбурга
Дом поставлен на «корбюзеанские ножки» раньше, чем их где-либо построил сам Корбюзье («пять принципов» опубликованы в 1927, дом построен в 1928-1930). Здесь сложно говорить о влиянии или его отсутствии: Гинзбург и Корбюзье переписывались, и знаменитый француз, приехав в Москву строить Центросоюз, посещал дом Наркомфина. Собственно Моисей Гинзбург считал первые этажи неудобными для жилья, а открытый первый этаж – здоровым решением, открывающим ток воздуха под домом. Он объяснял свое решение именно этими практическими мотивами, а не принципами Корбюзье.
Расчищенные «ноги» дома, 2018. Предоставлено Гинзбург Архитектс
Расчищенные «ноги» дома, 2018. Предоставлено Гинзбург Архитектс

15. Решено сохранить подлинный витраж 
Наполовину: внешний контур заменят копией. Большие площади остекления и на восточном, западном фасаде делают дом светлым. Но самый эффектный витраж был обращен на север и освещал коммунальный корпус. Он сохранился, очищен; сейчас решено, что внешний витраж заменят копией, а внутреннюю «нитку» оставят подлинной, заменив разрушенные части сохранными фрагментами внешних рам. С витражами работает Игорь Сафронов.
Дом Наркомфина. Витраж. Историческое фото. Изображение предоставлено Гинзбург Архитектс
Дом Наркомфина. Витраж. Историческое фото. Изображение предоставлено Гинзбург Архитектс
Дом Наркомфина. Витраж до реставрации. Деталь перемычка. Изображение предоставлено Гинзбург Архитектс
Дом Наркомфина. Витраж до реставрации. Деталь перемычка. Изображение предоставлено Гинзбург Архитектс
Дом Наркомфина. Витраж. Схема © Гинзбург Архитектс
Дом Наркомфина. Витраж. Схема © Гинзбург Архитектс
Дом Наркомфина. Витраж в процессе реставрации. Изображение предоставлено Гинзбург Архитектс
Дом Наркомфина. Витраж в процессе реставрации. Изображение предоставлено Гинзбург Архитектс