Размещено на портале Архи.ру (www.archi.ru)

14.05.2018

Парадный фасад

Елена Петухова
Объект:
ЖК Голден Сити
Адрес:
Россия, Санкт-Петербург. Невская Губа, участок 10
Комплексная общественно-жилая застройка на Васильевском острове (конкурсный проект), KCAP + Orange
Адрес:
Россия, Санкт-Петербург. Васильевский остров
Комплексная общественно-жилая застройка на Васильевском острове (конкурсный проект), Архитектурное бюро «А.Лен»
Адрес:
Россия, Санкт-Петербург.
Архитектор:
Рююрд Гитема
Патрик Майерс
Йерун Схиппер
Мастерская:
KCAP
Orange Architects
Архитектурное бюро «А.Лен»
Авторский коллектив:
Архитекторы: Андреева Р.В., Кочнев П.Н., Белят Е.А., Иванов В.В., Орешкина Е.С., Юмагулова Р.Р., Шалина М.А., Светозаров А.В., Гимнадзинов М.М., Тимонин Н., Храмова А.В., Успенская А.С., Ураксин Д.Ю.

Проект ЖК «Golden City» уникален во многом: и как пример последовательной реализации итогов конкурса, и как опыт совместной работы российской и голландской команд, и как эксперимент по формированию имиджевой застройки на основе квартальной типологии.

ЖК Golden City © KCAP + ORANGE + Архитектурное бюро «А.Лен»
ЖК Golden City © KCAP + ORANGE + Архитектурное бюро «А.Лен»

Пограничный режим
К качеству застройки вдоль набережных, речных или морских, предъявляются особо высокие требования. Причин тому немало и не все из них объективные. Архитектура, существующая на границе между землей и водой, принадлежа одновременно материальному миру и его «зазеркалью», благодаря умножению своей сущности в отражении, – весь этот литературно-романтический флер подспудно влияет на сознание зрителя и проектировщика. Конечно, есть и чисто прагматическая, градостроительная аргументация: за счет простора перед фронтом домов они оказывают влияние на значительно большую часть города, но это утверждение в равной мере справедливо и для современных проспектов, что отнюдь не останавливает архитекторов от экспериментов с силуэтом при проектировании застройки вдоль них. Не исключено, впрочем, что застройка вдоль набережных приобрела особый имиджевый статус благодаря немалому числу великолепных примеров: вспомните Венецию, Амстердам, Нью-Йорк и далее по списку. Даже Москве есть что предъявить, что уж говорить о Санкт-Петербурге. Питерские набережные, благодаря которым и создается легендарная «небесная линия» – сокровище города, и не случайно каждый петербуржец с особой трепетностью относится к их панорамам и с такой болью реагирует на каждое вторжение в их стройный и выверенный ряд.

К счастью, негативных примеров за последние годы было не так уж много. И не в последнюю очередь из-за ограниченности площадок вдоль рек, каналов и вдоль залива в черте города. Сейчас на градостроительной карте Санкт-Петербурга появилась новая площадка на границе воды и земли. Появилась буквально, поскольку имеет искусственное происхождение. Речь о намывных территориях на западной оконечности Васильевского острова, решение о создании которых правительство Петербурга приняло в 2006 году. На сегодняшний день над уровнем моря поднялись около 170 га из запланированных 476. На уже намытых территориях идет активное строительство, что неудивительно. Район расположен достаточно близко к центру Питера, с открытием Западного скоростного диаметра его транспортная доступность возросла, неподалеку строят новые станции метро.

Комплексная общественно-жилая застройка на Васильевском острове. Ситуационный план. Проект, 2015 © KCAP Architects & Partners + ORANGE Architects
Комплексная общественно-жилая застройка на Васильевском острове. Ситуационный план. Проект, 2015 © KCAP Architects & Partners + ORANGE Architects

Помимо нового комплекса пассажирского морского порта Санкт-Петербурга с круизно-паромным терминалом, построенным по проекту бюро «А.Лен», здесь планируется возведение почти 500 000 м2 жилья, большая часть которого относится к комфорт- и бизнес-классу. Именно оно и будет формировать новый «морской фасад» Санкт-Петербурга. Кроме того, строительство на намывных территориях – едва ли не уникальный для города шанс сформировать новый стандарт жилой застройки, современной, комфортной и хотя бы ориентировочно приближающейся к высоким эстетическим стандартам «северной столицы». Часть застройщиков и проектировщиков серьезно относится к этой задаче, стремясь найти достойное и гармоничное решение для презентационной застройки, призванной послужить предтечей того изумительного города, ради встречи с которым приезжающие в порт туристы проделали долгий путь.
ЖК Golden City. 7 квартал
ЖК Golden City. 7 квартал
© KCAP ORANGE Архитектурное бюро «А.Лен»

Удвоение преимуществ  
Подтверждением большого градостроительного и типологического значения застройки на намывных территориях стал международный конкурс на концепцию части новой городской земли, проведенный компанией GLORAX Development по инициативе правительства Петербурга. Организатором выступила компания «ТОПМАРК», а консультантами школа «МАРШ» и исследовательский центр «МАРШ Лаб».

Участие в конкурсе приняли несколько ведущих российских и иностранных бюро. Достаточно сказать, что во второй тур вышли «Остоженка», «Студия 44» и «А.Лен», а также Cino Zucсhi Architetti Srl. (Италия), KCAP Holding B.V. (Нидерланды) и Snøhetta AS (Норвегия), которые представили шесть разноплановых, но в равной мере ярких и перспективных концепций. Жюри присудило победу двум командам – российской компании «А.Лен» и голландской KCAP Holding B.V., выступавшей вместе с партнером – бюро Orange. Казалось, что вместо решения сложнейшей проблемы итоги конкурса только усугубили ее, переложив на девелопера груз ответственности за приведение двух пусть и построенных на сходных планировочных принципах, но все же отличных друг от друга проектов к единому знаменателю.

Комплексная общественно-жилая застройка на Васильевском острове. Проект, 2015 © KCAP Architects & Partners + ORANGE Architects
Комплексная общественно-жилая застройка на Васильевском острове. Проект, 2015 © KCAP Architects & Partners + ORANGE Architects

Проект KCAP+Orange подкупал свежестью и чистотой идеи, композицией из прямоугольных квартальных блоков, набранных из параллелепипедов разной высоты и упакованных в ортогональную фасадную структуру. Лаконичный набор оживляли несколько архитектурных и планировочных элементов, призванных придать голландской концепции аутентичность. Проложенные между кварталами каналы должны были апеллировать к образу «северной Венеции», а асимметричные завершения башен, напоминающие каркасы золоченых питерских шпилей, претендовали на роль новых лэндмарков в строгом пересчете «небесной линии». При всей эффектности в концепции были очевидны существенные расхождения с российскими нормами и реалиями проектной и строительной практики. Лишь участие в дальнейшей работе высокопрофессиональной отечественной команды с опытом реализации сопоставимых по масштабу проектов и работы с иностранными партнерами могло гарантировать столь же яркое и качественное воплощение идеи. Оптимальным кандидатом стало бюро «А.Лен», чей проект с четко структурированной квартальной застройкой и рядом планировочных и фасадных решений, сходных с голландским предложением, уверенно претендовал на победу в конкурсе. В итоге, по словам руководителя «А.Лен» Сергея Орешкина, «жюри приняло мудрое решение. Они выбрали близкие концепции и предложили девелоперу и авторам, российскому и западному, взять из каждой концепции и от каждой команды лучшее и создать единую гармоничную градостроительную и архитектурную систему».
ЖК Golden City © KCAP + ORANGE + Архитектурное бюро «А.Лен»
ЖК Golden City © KCAP + ORANGE + Архитектурное бюро «А.Лен»

Комплексная система
Участок ЖК «Golden City» непосредственно примыкает к П-образной бухте порта, фланкируя ее южный угол. Узкий участок, вытянутый на запад, разбит на три блока для кварталов №7, 8, и 9. Еще два квартала (№5 и 6) отходят под прямым углом в сторону последнего квартала №4, вынесенного за общий периметр и отделенного от остального комплекса перекрестком и небольшой площадью. На сегодняшний день подготовлена рабочая документация для углового квартала №6 и уже идет строительство его надземной части.

ЖК Golden City. 6 квартал. Ситуационный план © KCAP + ORANGE + Архитектурное бюро «А.Лен»
ЖК Golden City. 6 квартал. Ситуационный план © KCAP + ORANGE + Архитектурное бюро «А.Лен»

Периметральная застройка кварталов помогает защитить внутренние дворы от пронизывающих ветров, дующих со стороны моря начиная с октября. При этом архитекторы оставляют несколько разрывов в периметре, оформив их как арки, чтобы сохранить визуальную связь жилых корпусов с внешним миром и особенно с заливом. Для защиты пешеходов от осадков и ветров вдоль первых этажей запланированы крытые галереи, опирающиеся на V-образные колонны.

При определении размеров кварталов авторы отталкивались от исторических прототипов, взяв за основу стандартные размеры городской сетки в центральной части Санкт-Петербурга, а также опыт современного строительства в пригородах. Высота корпусов, образующих кварталы, варьируется от 20 метров (карниз Зимнего дворца) основной части застройки, до 50 и 100 метров в угловых башнях, создающих композиционные акценты и придающих силуэту комплекса живописность. Фасады корпусов облекает структурная решетка, образованная горизонтальными и вертикальными ребрами, отмечающими уровни этажей и регулярный шаг осей в 3,3 метра (при конструктивном пролете в 6,6 м). Особенностью архитектурной концепции застройки стали асимметричные шпили и навершия из металлических каркасных конструкций, окрашенных в золотой цвет. Эти «короны» или скорее уборы – интересный компромисс между актуальной и даже минималистичной стилистикой всего комплекса и стремлением акцентировать связь с исторически сложившимся образом Санкт-Петербурга.

ЖК Golden City. 7 квартал © KCAP + ORANGE + Архитектурное бюро «А.Лен»
ЖК Golden City. 7 квартал © KCAP + ORANGE + Архитектурное бюро «А.Лен»
ЖК Golden City. 6 квартал © KCAP + ORANGE + Архитектурное бюро «А.Лен»
ЖК Golden City. 6 квартал © KCAP + ORANGE + Архитектурное бюро «А.Лен»

Внутренние дворы закрыты для проезда частных автомобилей. Внешняя транспортная и пешеходная инфраструктура, разработанная компанией Gensler, призвана сделать перемещение по комплексу безопасным и комфортным.

Квартирография ЖК «Golden City» соответствует актуальным рыночным тенденциям. Из 588 квартир всего лишь 20% трехконатных площадью около 90 м2. Остальные – студии (10%) площадью 25 м2, однушки (20%) и двушки (40%). «Российские архитекторы лучше чувствуют потребности рынка, – говорит Сергей Орешкин, – и способны предложить решения, более эффективные с точки зрения эргономики. Условия в России жестче, и рынок гораздо более волатилен, чем европейский. К сожалению, покупательские возможности то расширяются, то сужаются. И сейчас мы находимся в очередной фазе его сужения – и относительно площадей квартир, и по технологии. Только из-за площадей квартир наш комплекс позиционируется как комфорт-класс. При этом уровень архитектурных, инженерных и конструктивных решений, проработка всего от ландшафта до фасадов, включая интерьеры всех общественных мест: вестибюлей, лифтовых холлов и так далее, соответствует самому высокому стандарту».
ЖК Golden City. 6 квартал. Генплан, эскиз
ЖК Golden City. 6 квартал. Генплан, эскиз
© KCAP, ORANGE, Архитектурное бюро «А.Лен»

Проверка практикой
За прошедшие с момента объявления результатов конкурса два года проект далеко продвинулся вперед. Идет строительство шестого квартала, остальные четыре находятся на этапе рабочего проектирования. Российская и голландские команды находятся в постоянном контакте, вместе находя ответы на возникающие вопросы. Проектировщики KCAP и Orange фокусируются на проработке архитектурного облика, стремясь сохранить ту чистоту и ясность решений, которые так понравились жюри. Голландцы работают методично, разделяя проект на этапы, предваряя каждый из них исследованием, и аргументируя принимаемые решения расчетами и аналитическими материалами.

ЖК Golden City. 7 квартал
ЖК Golden City. 7 квартал
© KCAP, ORANGE, Архитектурное бюро «А.Лен»

Большая часть решений из конкурсных концепций получила подтверждение при детальном анализе и проработке, но часть из них не прошла проверку на соответствие российским реалиями. Первое, от чего пришлось отказаться в начале совместной работы над проектом, – изменение конфигурации участка и увеличение его площади, которое голландцы использовали в конкурсной концепции для гармонизации застройки. Затем девелопер по экономическим соображениям принял решение отказаться от каналов. Это слишком дорогое удовольствие для жилого комплекса, который официально относится к категории «комфорт». В связи с уточнением трактовок положений Градкодекса возникли сложности с согласованием максимальных высотных отметок, в том числе золотых шпилей.
ЖК Golden City. 7 квартал
ЖК Golden City. 7 квартал
© KCAP, ORANGE, Архитектурное бюро «А.Лен»


«При развитии проекта и его конкретизации многие решения из голландской концепции пришлось поменять в пользу тех идей, которые с самого начала предлагало бюро «А.Лен», – рассказывает Сергей Орешкин. – И это естественно, поскольку мы лучше знаем нашу нормативную базу и учитывали ее, работая над конкурсным проектом. Кроме того у нас есть опыт работы на намывных территориях, и мы знаем, какие конструктивные и инженерные решения нужно закладывать в проект. Все сооружения здесь стоят на 30-метровых сваях, упирающихся в нижележащие твердые грунты. Все, что находится выше, нужно делать с учетом усадки намытой земли. Для того, кто знает – это не проблема, а кто не знает – это очень большой риск».
ЖК Golden City. 7 квартал
ЖК Golden City. 7 квартал
© KCAP ORANGE Архитектурное бюро «А.Лен»


Ради реализации ключевых элементов проекта нередко приходится корректировать и дорабатывать конструктивные и инженерные решения. Например, при разработке узлов V-образных колонн, поддерживающих крытые галереи вдоль цокольных этажей всех корпусов, пришлось пересмотреть предложения российских конструкторов в пользу более изящного и эстетичного решения, на котором настаивали архитекторы, причем в этом вопросе мнения российских и голландских коллег полностью совпали.
ЖК Golden City © KCAP + ORANGE + Архитектурное бюро «А.Лен»
ЖК Golden City © KCAP + ORANGE + Архитектурное бюро «А.Лен»


Также пришлось искать решение для ограждающих конструкций верхних этажей башен, из которых вырастают «золотые» ассиметричные «шпили» и структурные «короны». Диагональные элементы решеток, необходимые как для жесткости, так и с эстетической точки зрения, перерезали оконные проемы и российские разработчики должны были найти оптимальное решение для каждого узла и стыка, переводя красивую картинку в технологический чертеж.
ЖК Golden City © KCAP + ORANGE + Архитектурное бюро «А.Лен»
ЖК Golden City © KCAP + ORANGE + Архитектурное бюро «А.Лен»


Достаточно серьезные изменения пришлось внести в планировочные решения корпусов и квартир. И в этом плане команда «А.Лен» также играет ведущую роль. В отличие от европейских коллег российские архитекторы большое внимание уделяют ориентации квартир, уровню инсоляции, видам, открывающимся из окон, стремясь к сбалансированности распределения этих качеств между квартирами на этаже. Этот подход базируется на традициях советской проектной практики, но сохраняет актуальность и в современных условиях рыночной экономики, гарантируя отсутствие «неликвида».
ЖК Golden City. 7 квартал © KCAP + ORANGE + Архитектурное бюро «А.Лен»
ЖК Golden City. 7 квартал © KCAP + ORANGE + Архитектурное бюро «А.Лен»


Зато в плане архитектурных решений, ясности использования приема, отсутствия «суеты» в работе с фасадами голландские архитекторы, по мнению Сергея Орешкина, превосходят российских коллег: «У голландцев есть очень правильное ощущение чистоты архитектурных линий. Сложно сказать, что является тому причиной: развитость рынка или специфика образования, но они очень хорошо понимают, что лишняя суета, лишняя пара дополнительных деталей или фронтонов – не архитектура. Это касается и дизайн-кода фасада, и силуэта здания. Они убирают все лишнее. Тогда как у нас нередко можно увидеть, как автор пытается скрыть за нагромождением разных приемов и переусложненностью форм свою неспособность добиться архитектурной гармонии».

Команда совместно подбирает строительные и отделочные материалы, поставщиков и подрядчиков. Предложения голландских проектировщиков не всегда можно реализовать в России – не все материалы присутствуют на рынке и не всегда можно быть уверенным в качестве имеющихся, так что практические знания «А.Лен» помогают заменить решения концепции на надежные и визуально близкие.
ЖК Golden City © KCAP + ORANGE + Архитектурное бюро «А.Лен»
ЖК Golden City © KCAP + ORANGE + Архитектурное бюро «А.Лен»


На самом деле это, конечно, уже другой проект. Различия значительны и на уровне градостроительных решений, и в плане объемно-пространственной композиции. Что впрочем неизбежно в процессе адаптации конкурсного проекта к реальности. Удивительно то, что интернациональной команде удалось сохранить облик и характер концепции, превратив ее в настоящую, жизнеспособную архитектуру, не потеряв в качестве и стремлении создать новый «морской фасад» Санкт-Петербурга, – той цели, которую все участники проекта поставили перед собой два года назад.

ЖК Golden City. 7 квартал
ЖК Golden City. 7 квартал
© KCAP ORANGE Архитектурное бюро «А.Лен»
ЖК Golden City. 7 квартал
ЖК Golden City. 7 квартал
© KCAP ORANGE Архитектурное бюро «А.Лен»
ЖК Golden City. 7 квартал © KCAP + ORANGE + Архитектурное бюро «А.Лен»
ЖК Golden City. 7 квартал © KCAP + ORANGE + Архитектурное бюро «А.Лен»
ЖК Golden City. 7 квартал
ЖК Golden City. 7 квартал
© KCAP, ORANGE, Архитектурное бюро «А.Лен»
ЖК Golden City. 6 квартал. Корпус 2. Фасад в осях 1-23 © KCAP + ORANGE + Архитектурное бюро «А.Лен»
ЖК Golden City. 6 квартал. Корпус 2. Фасад в осях 1-23 © KCAP + ORANGE + Архитектурное бюро «А.Лен»
ЖК Golden City. 6 квартал. Разрез 2-2 © KCAP + ORANGE + Архитектурное бюро «А.Лен»
ЖК Golden City. 6 квартал. Разрез 2-2 © KCAP + ORANGE + Архитектурное бюро «А.Лен»
ЖК Golden City. 6 квартал. 1 корпус, подземный этаж © KCAP + ORANGE + Архитектурное бюро «А.Лен»
ЖК Golden City. 6 квартал. 1 корпус, подземный этаж © KCAP + ORANGE + Архитектурное бюро «А.Лен»
ЖК Golden City. 6 квартал. 1 корпус, 1 
этаж © KCAP + ORANGE + Архитектурное бюро «А.Лен»
ЖК Golden City. 6 квартал. 1 корпус, 1 этаж © KCAP + ORANGE + Архитектурное бюро «А.Лен»
ЖК Golden City. 6 квартал. 1 корпус, типовой этаж © KCAP + ORANGE + Архитектурное бюро «А.Лен»
ЖК Golden City. 6 квартал. 1 корпус, типовой этаж © KCAP + ORANGE + Архитектурное бюро «А.Лен»
ЖК Golden City. 6 квартал. 2 корпус, типовой этаж © KCAP + ORANGE + Архитектурное бюро «А.Лен»
ЖК Golden City. 6 квартал. 2 корпус, типовой этаж © KCAP + ORANGE + Архитектурное бюро «А.Лен»
ЖК Golden City. 6 квартал. 1 корпус, типовой план башни © KCAP + ORANGE + Архитектурное бюро «А.Лен»
ЖК Golden City. 6 квартал. 1 корпус, типовой план башни © KCAP + ORANGE + Архитектурное бюро «А.Лен»
ЖК Golden City. 6 квартал. 2 корпус. Типовой план башен © KCAP + ORANGE + Архитектурное бюро «А.Лен»
ЖК Golden City. 6 квартал. 2 корпус. Типовой план башен © KCAP + ORANGE + Архитектурное бюро «А.Лен»
ЖК Golden City. 7 квартал. Ситуационный план © KCAP + ORANGE + Архитектурное бюро «А.Лен»
ЖК Golden City. 7 квартал. Ситуационный план © KCAP + ORANGE + Архитектурное бюро «А.Лен»
ЖК Golden City. 7 квартал. План благоустройства
ЖК Golden City. 7 квартал. План благоустройства
© KCAP, ORANGE, Архитектурное бюро «А.Лен»
ЖК Golden City. 7 квартал. Развертка по проектируемой улице №13
ЖК Golden City. 7 квартал. Развертка по проектируемой улице №13
© KCAP, ORANGE, Архитектурное бюро «А.Лен»
ЖК Golden City. 7 квартал. Разрез 2-2 © KCAP + ORANGE + Архитектурное бюро «А.Лен»
ЖК Golden City. 7 квартал. Разрез 2-2 © KCAP + ORANGE + Архитектурное бюро «А.Лен»
ЖК Golden City. 6 квартал. Разрез 1-1 © KCAP + ORANGE + Архитектурное бюро «А.Лен»
ЖК Golden City. 6 квартал. Разрез 1-1 © KCAP + ORANGE + Архитектурное бюро «А.Лен»
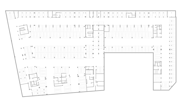
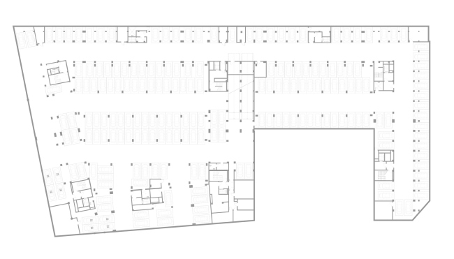
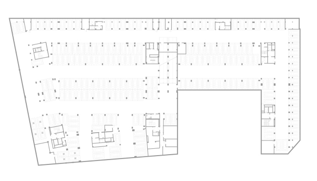
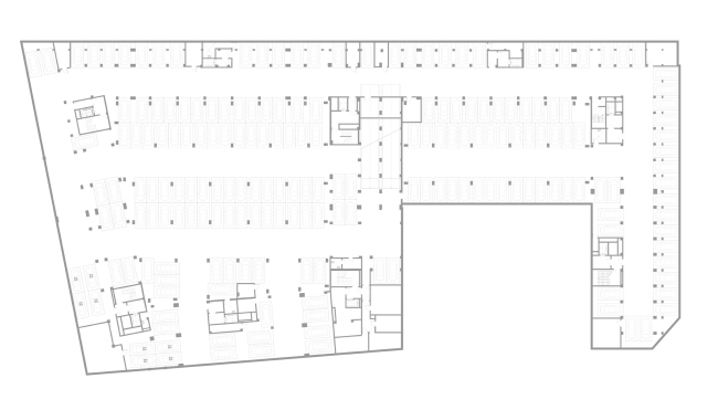
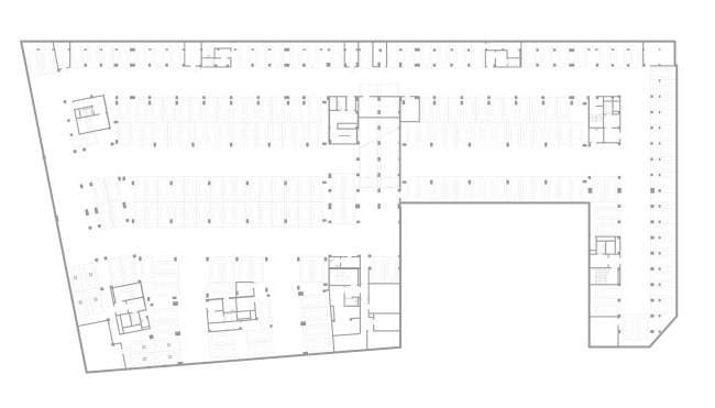
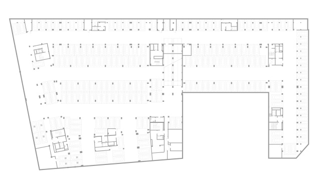
ЖК Golden City. 7 квартал. План паркинга © KCAP + ORANGE + Архитектурное бюро «А.Лен»
ЖК Golden City. 7 квартал. План паркинга © KCAP + ORANGE + Архитектурное бюро «А.Лен»
ЖК Golden City. 7 квартал. План типового этажа
ЖК Golden City. 7 квартал. План типового этажа
© KCAP, ORANGE, Архитектурное бюро «А.Лен»
ЖК Golden City. 7 квартал. План типового этажа башни © KCAP + ORANGE + Архитектурное бюро «А.Лен»
ЖК Golden City. 7 квартал. План типового этажа башни © KCAP + ORANGE + Архитектурное бюро «А.Лен»
ЖК Golden City. 7 квартал. Фасад в осях 41′-1′
ЖК Golden City. 7 квартал. Фасад в осях 41′-1′
© KCAP, ORANGE, Архитектурное бюро «А.Лен»
ЖК Golden City. 7 квартал. Фасад в осях Ц-А
ЖК Golden City. 7 квартал. Фасад в осях Ц-А
© KCAP, ORANGE, Архитектурное бюро «А.Лен»