Размещено на портале Архи.ру (www.archi.ru)

20.03.2018

Долгожданная интервенция

Елена Петухова
Объект:
ЖК «Эгодом»
Адрес:
Россия, Москва. Новоалексеевская улица, 22А
Архитектор:
Сергей Скуратов
Мастерская:
АО «Фирма «КИРИЛЛ»
РОКВУЛ
Сергей Скуратов ARCHITECTS
Авторский коллектив:
С.А. Скуратов (руководитель авторского коллектива), Н.А. Демидов (главный архитектор проекта), Н.А. Гай, Д.М. Голышенкова, И.Ю. Ильин, В.А. Обвинцев, при участии: А. Алендеев, С. Безверхий, О. Васюкова, А. Чалов 

В своей новой постройке Сергей Скуратов развивает тему баланса статики и динамики, продолжает эксперименты с кирпичными фасадами, апробирует новые элементы жилой архитектуры, но главное – решает накопившиеся градостроительные проблемы крупного фрагмента городской застройки.

ЖК «Эгодом»
ЖК «Эгодом»
© Михаил Розанов

 
Не вдохновляющее место
В Москве немало мест, попав в которые непросто поверить, что находишься в городе, насыщенном памятниками архитектуры и культуры. Эти районы типичны, хаотичны и безрадостны. Чаще всего «потерянные» места застроены вперемешку панельно-типовым жильем, каким-то давно недееспособным промом и еще целой коллекцией типологических раритетов, которые по неясной причине занимают площадь, чья стоимость приближается к уровню самых дорогих мегаполисов мира. Они сосредоточены в широком поясе между Третьим транспортным кольцом и МЦК. Ориентироваться там лучше с помощью навигатора, пути требуются кратчайшие, а улицы нередко имеют не только название, но и номер.

Эти районы не были популярными девелоперскими полигонами ни в начале 2000-х, когда хватало мест и попрестижней, и во 2010-е, когда кризис перераспределил приоритеты в пользу подмосковных полей. Сейчас объективная нехватка мест для строительства, дополненная городской градостроительной политикой и запуском МЦК, дала зеленый свет проектам по переформатированию «потерянных районов» в нечто более современное, эффективное и комфортное.
ЖК «Эгодом» © Сергей Скуратов ARCHITECTS
ЖК «Эгодом» © Сергей Скуратов ARCHITECTS

Один из таких районов, переживающих сейчас радикальную трансформацию, расположен между проспектом Мира и путями Ярославского направления, сразу за которыми – парк Сокольники. Парадная застройка вдоль проспекта быстро сменяется разномастными жилыми кварталами, втиснутыми между большими и не очень резервациями бывших промышленных зон. На их месте сейчас активно возводятся многофункциональные комплексы, к примеру, по проекту SPEECH активно строят ЖК «Серебряный фонтан», неподалеку ADM завершает ЖК «1147».
ЖК «Эгодом». ВИзуализация окружающей застройки расположением исторических объектов © Сергей Скуратов ARCHITECTS
ЖК «Эгодом». ВИзуализация окружающей застройки расположением исторических объектов © Сергей Скуратов ARCHITECTS

Здесь же, на перекрестке Новоалексеевской и Маломосковской улиц, сразу двух 1-х Рижских переулков и улицы Павла Корчанина, образующих, за неимением более подходящего слова, небольшую площадь, в 2012 году девелоперская компания «Турман» пригласила Сергея Скуратова спроектировать жилой комплекс (см. рассказ 2012 года о его проекте).

«Перед началом работы над концепцией, я ездил на площадку несколько раз, – вспоминает архитектор. – И каждый раз боролся с мыслью: «а может, не будем ничего делать?», – настолько хаотичной, отталкивающей была окружающая застройка. Было непонятно, можно ли ее как-то упорядочить, сделать хоть сколько-нибудь композиционно и стилистически осмысленной. Мы должны были придумать решение, которое смогло бы «вытянуть» весь район из градостроительного болота, как барон Мюнхгаузен вытянул себя и своего коня из трясины за собственную косичку. И мы решили, что сделаем это. Мы привнесем в эту застывшую словно бы в коме среду какую-то остроту, акцент, который заставит ее ожить».

Концепция доминирования
На месте будущего жилого комплекса располагались автозаправка, ветхие постройки автобусного парка и слесарные мастерские. Исключение составляли несколько жилых одно- и многоподьездных панельных домов и высокая панельная же башня института ГИПРОСТРОЙМОСТ, к которому примыкало бывшее здание Дома культуры, а ныне Евангелическая церковь.
ЖК «Эгодом». Развёртки по основные осям © Сергей Скуратов ARCHITECTS
ЖК «Эгодом». Развёртки по основные осям © Сергей Скуратов ARCHITECTS
ЖК «Эгодом». Генплан с обозначением снесенных строений © Сергей Скуратов ARCHITECTS
ЖК «Эгодом». Генплан с обозначением снесенных строений © Сергей Скуратов ARCHITECTS

Единственные сокровища района – несколько уцелевших кирпичных зданий «псевдорусского стиля» конца XIX века – сиротский приют братьев Бахрушиных и Алексеевская насосная станция, большая часть территории которой сейчас застраивается корпусами ЖК «Серебряный фонтан». Харизмы старых кирпичных зданий с характерными белыми деталями на красно-коричневых фасадах едва хватает, чтобы противостоять доминирующей панельной и оцинкованной серости, разраставшейся здесь год за годом. Но именно их присутствие вдохновило команду Сергея Скуратова на активное использование кирпича как радикального средства борьбы со средовой инертностью и хаосом.

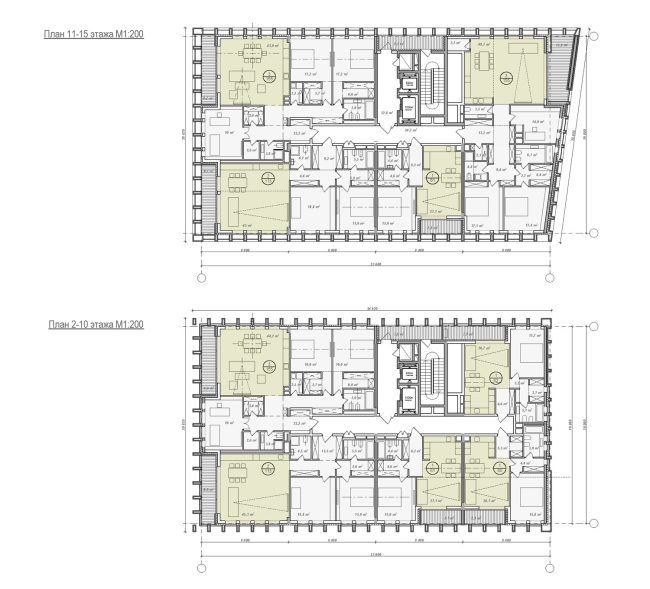
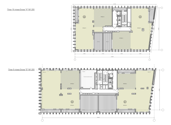
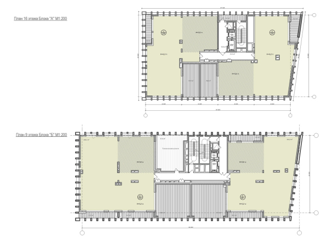
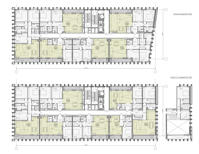
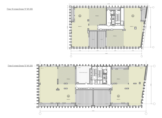
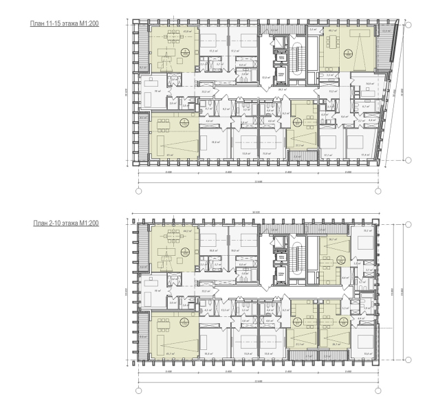
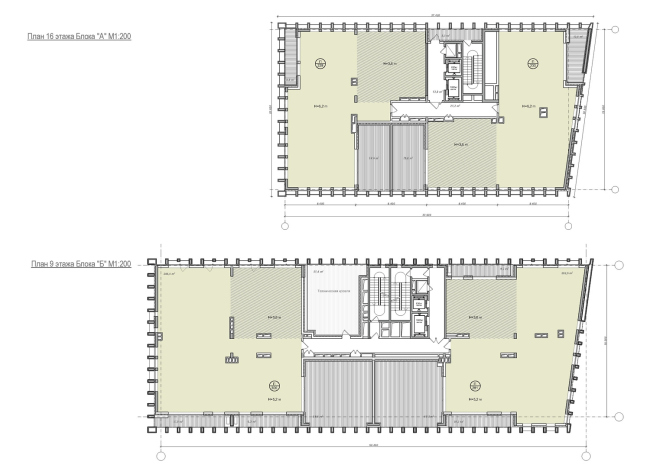
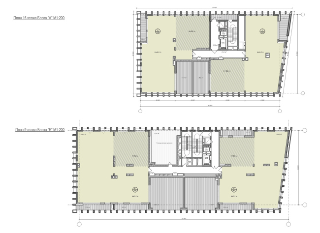
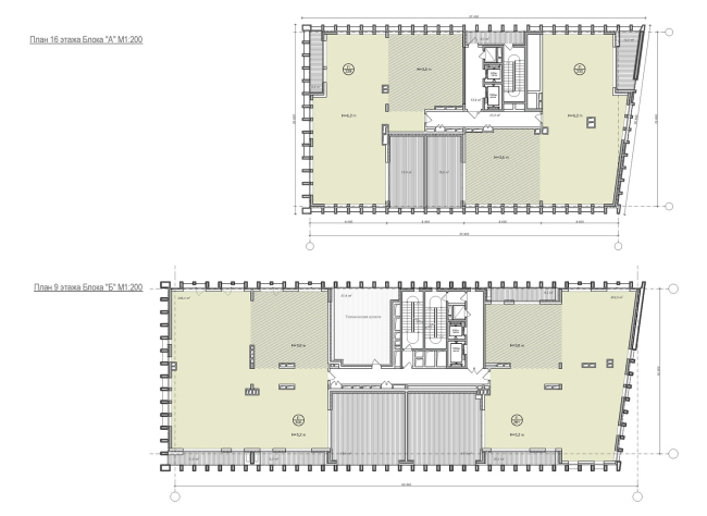
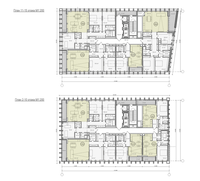
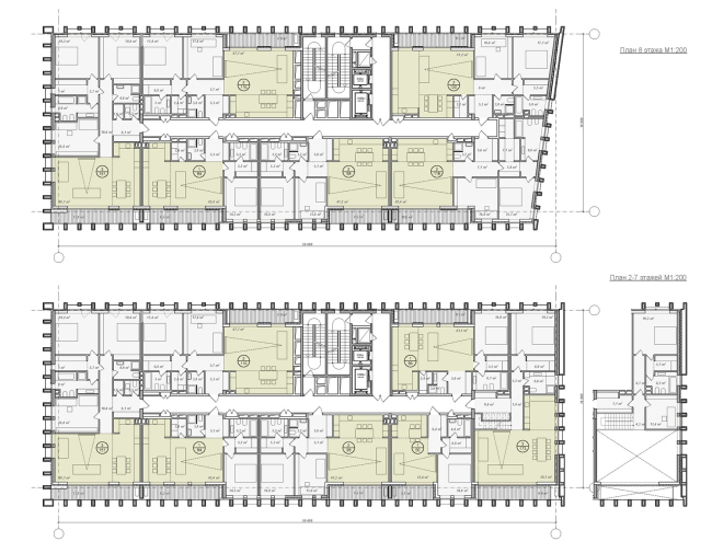
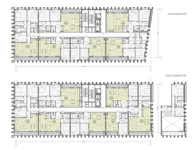
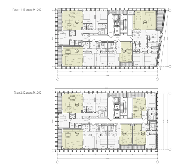
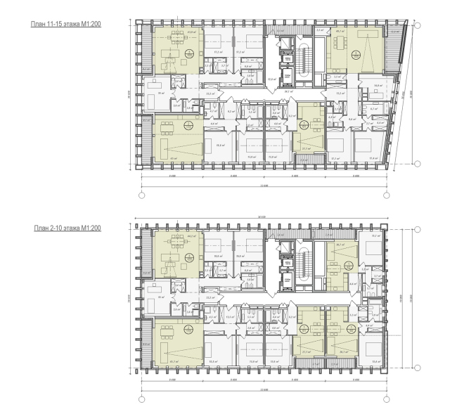
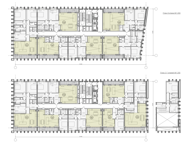
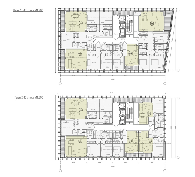
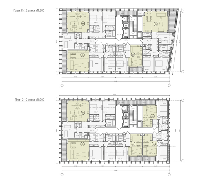
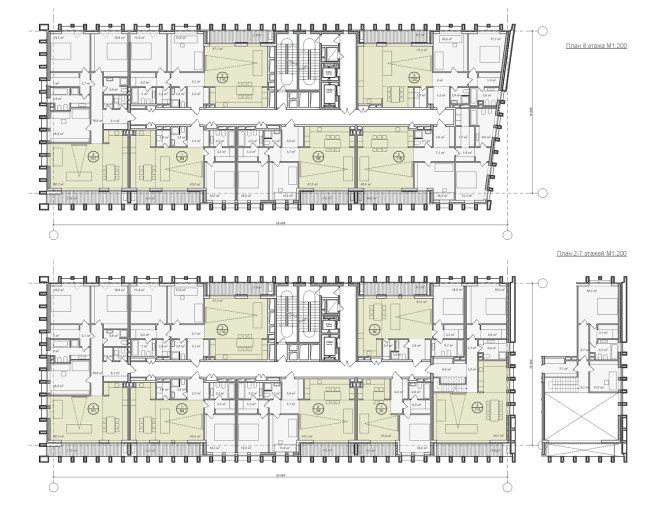
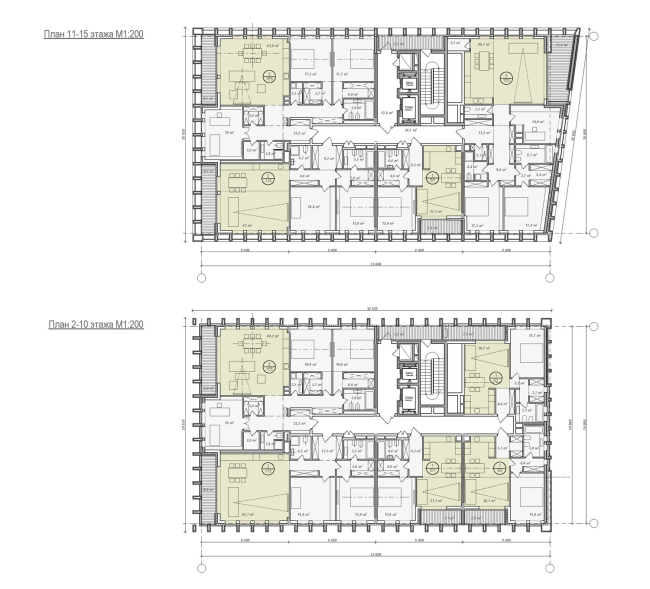
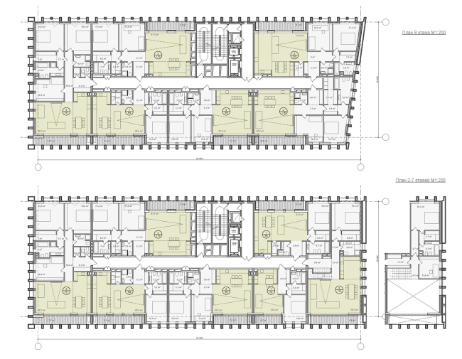
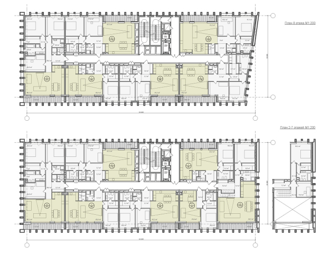
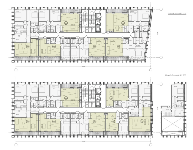
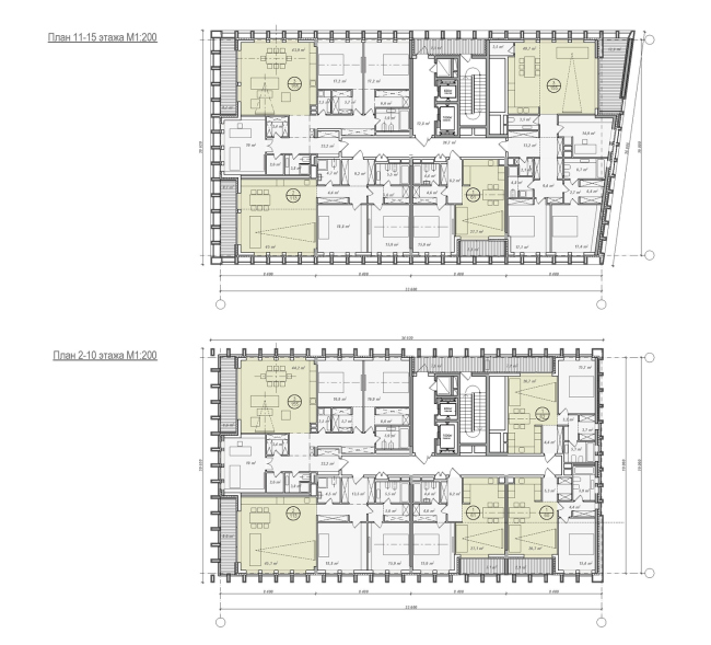
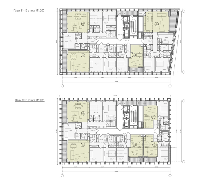
Помимо материального акцента комплексу было необходимо не менее яркое пространственное решение. Основные параметры будущего комплекса были определены заранее: здесь должны были вырасти два корпуса высотой 64 и 37 метров (17 и 8 этажей). Основной композиционный вопрос заключался в том, как при помощи двух объемов, уступающих по высоте соседям – прежде всего зданию института – собрать и организовать пространство вокруг перекрестка.
ЖК «Эгодом» © Сергей Скуратов ARCHITECTS
ЖК «Эгодом» © Сергей Скуратов ARCHITECTS

Из многочисленных систем координат, собранных на площади, напоминающей по форме косую звезду, авторы выбрали, как наиболее акцентированную, ось улицы Павла Корчагина, и ориентировали свой комплекс параллельно ей и зданию института, оставляя незастроенной треугольную площадку – свободное пространство перед главным фасадом высокого корпуса. Схожие лакуны были оставлены и перед другими выходящими на площадь зданиями. Благодаря разнесенности в пространстве взаимозависимость нового комплекса и институтской башни ощущается скорее подсознательно, чем как часть выстроенной системы координат. Ансамбль не складывается – слишком уж разномастные и неравноценные элементы сосуществуют здесь. Но благодаря ясной композиции, внушительному объему, мощной колористике и напряженной внутренней драматургии – Egodom выступает в роли недостающего упорядочивающего и объединяющего все вокруг элемента.
ЖК «Эгодом»
ЖК «Эгодом»
© Михаил Розанов

Парная композиция корпусов построена по классической схеме – дополнения и противопоставления. По словам Сергея Скуратова, «здесь использован ясный архитектурный прием: два объема, горизонтальный и вертикальный, работают как ведущий и ведомый, между ними завязывается пространственный диалог. Возникающего напряжения достаточно для того, чтобы гарантировать комплексу роль градостроительного акцента, организующего городское пространство вокруг себя и придающего площади новое качество».

Пластическое решение каждого корпуса точно соответствует его роли в парной композиции. Первый корпус, высокий, доминирующий, помимо габаритов отличается подчеркнутой динамикой и эмоциональностью. Рассечка на половине высоты нарушает монотонность ровного параллелепипеда, вырастающего из сложносочиненной структуры на уровне первого этажа, входящей в систему внутреннего двора комплекса. Витражный пояс, слегка утопленный внутрь «кирпичного тела», воспринимается как воздушная прослойка, над которой верхняя часть корпуса парит, как будто поддерживаемая магнитной подушкой. И словно под влиянием магнитных токов вторая половина корпуса слегка поворачивается вокруг своей оси, выставляя в сторону злополучной площади скошенный угол. Этого легкого, лишь намеченного отклонения от параллельности оказывается достаточно, чтобы придать динамику всей композиции.
ЖК «Эгодом»
ЖК «Эгодом»
© Михаил Розанов

Второй корпус довольствуется второстепенной ролью – сдержанная пластика перекликается с «большим братом», но не во всем повторяет его приемы. К примеру, если у первого объема треугольный свес верхнего блока выступает наружу, создавая эффектную светотеневую подрезку на главном фасаде, то у второго трехэтажная часть верхушки, напротив, утоплена, что может быть расценено как способ минимизировать конфликт с внешней средой и сделать силуэт более живописным.
ЖК «Эгодом»
ЖК «Эгодом»
© Михаил Розанов

Кирпично-стеклянная оболочка
Фасадное решение комплекса лишь на первый взгляд кажется простым. Характерный для многих построек Сергея Скуратова материал – кирпич ручной формовки насыщенного красновато-коричневого цвета, с его живописностью, материальностью и теплотой – в сочетании с лаконичными объемами Egodom-а дает мощный импульс, усиливающий находки объемно-пространственной композиции – и в тоже время подчеркивает уважительное отношение к расположенным по соседству историческим кирпичным зданиям, демонстрируя преемственность заданной ими традиции.
ЖК «Эгодом»
ЖК «Эгодом»
© Михаил Розанов

«Мы хотели найти баланс между статикой и динамикой структуры фасада, – говорит Сергей Скуратов. – Хотели сделать вещь, которая волнует. С одной стороны, эпатирует, провоцирует окружающее пространство, а с другой – создает эффект солидной стабильности, внушающей доверие мощи. В результате дом стал импозантным, но не напыщенным; упорядоченным, но живым».
ЖК «Эгодом»
ЖК «Эгодом»
© Михаил Розанов

На кирпичных фасадах развивается тонкое и местами ироничное противостояние статики и динамики, пространства и плоскости. Архитекторы задают определенные правила фасадной игры и тут же нарушают их, но настолько деликатно, что лишь сконцентрировавшись и сверяясь с чертежами удается понять, что, а главное, почему было в начале декларировано, а потом изменено.

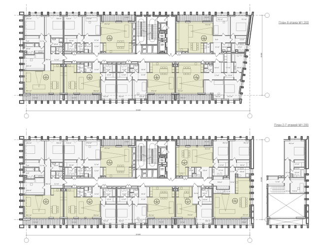
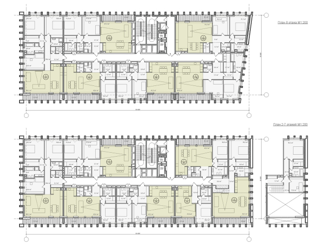
Торцевые и боковые фасады решены по-разному. Вторые представляют собой четкую структуру из вертикальных колонн и горизонтальных перемычек, облицованных кирпичом, за которыми блестит стеклянный витраж, отражающий то серое, словно старое серебро, то по-московски бледно-голубое небо. Интересный момент: на боковых фасадах низкого корпуса и на нижней части высокого корпуса вертикальные стойки, ряд за рядом, идут со сдвижкой на полшага. Из-за довольно узкого промежутка между стойками глаз далеко не сразу распознает этот геометрический подвох, благодаря чему подсознательно фасад кажется более пластичным и живым. Немалую роль в достижении этого оптического эффекта играют узкие лоджии, расположенные за кирпичными стойками. Их глубина исчезает, уступая место мини-эркерам, придвинутым вплотную к «решетке».
ЖК «Эгодом»
ЖК «Эгодом»
© Михаил Розанов

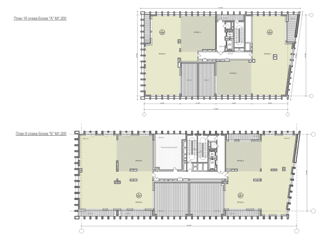
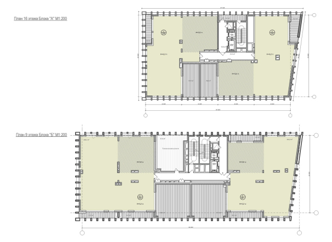
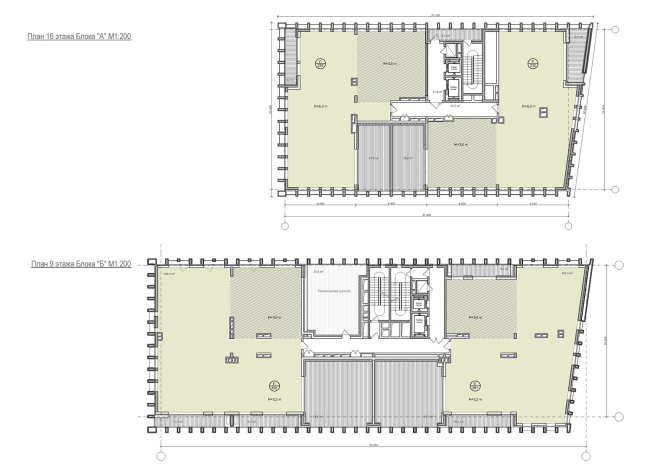
Высота горизонтальных рядов также варьируется: от двухэтажной в нижней части комплекса до одноэтажной в верхней с переходом на увеличенную в 2,5 раза высоту аттикового этажа, скрывающего за тонкой кирпичной «решеткой» престижные пентхаусы и просторные, глубокие террасы, которые в будущем могут быть остеклены или оставлены как есть, если хозяева захотят наслаждаться не только открывающимися видами, но и свежим воздухом.
ЖК «Эгодом». Терраса пентхауса. 3-D визуализация © Сергей Скуратов ARCHITECTS
ЖК «Эгодом». Терраса пентхауса. 3-D визуализация © Сергей Скуратов ARCHITECTS
ЖК «Эгодом» © Сергей Скуратов ARCHITECTS
ЖК «Эгодом» © Сергей Скуратов ARCHITECTS

На торцевых фасадах, выполняющих роль «форпостов» композиции, метрический ритм сложнее. Лишь узкая вертикаль центральной части выполнена аналогично боковым фасадам – в виде кирпичной структуры перед витражным задником. По бокам от них в шахматном порядке чередуются ровные плоскости кладки и участки глухой «решетки».
ЖК «Эгодом»
ЖК «Эгодом»
© Михаил Розанов

Московское солнце не может порадовать горожан активной игрой светотени, но все, что из него можно выжать, используя ограниченный набор приемов работы со структурными «решетками», витражами, цветом и текстурой кирпичной кладки, архитекторы представляют на фасадах Egodom-а.
ЖК «Эгодом»
ЖК «Эгодом»
© Михаил Розанов
ЖК «Эгодом»
ЖК «Эгодом»
© Михаил Розанов
ЖК «Эгодом»
ЖК «Эгодом»
© Михаил Розанов
ЖК «Эгодом»
ЖК «Эгодом»
© Михаил Розанов

Внутренний мир
Два разновысоких корпуса расположены на участке параллельно друг другу со сдвижкой ровно в ширину «башни», избегая взгляда «окно-в-окно». На уровне первого этажа здания соединены кирпичной оградой, защищающей двор комплекса от нежелательного контакта с окружающей средой и ее обитателями. Стойки кирпичной ограды должны были повторять ритм кирпичных импостов на фасаде, но по экономическим соображениям шаг колонн был увеличен вдвое, что усложнило задуманное сопоставление; впрочем, оно прочитывается.

Дополнительную преграду создает перепад уровней – пространство внутреннего двора опущено на три метра. Это решение, уже успешно апробированное командой Сергея Скуратова в «Садовых кварталах», позволяет добиться приватности двора и в то же время структурировать его. Углубленный двор разделен на несколько террас, некоторые из которых, находящиеся в общем доступе обитателей комплекса, соединены лестницами и переходами, а некоторые – предназначенные для прогулок детсадовских групп из расположенного в одном из корпусов ДОУ, обособлены. По мнению архитекторов, такой вариант намного предпочтительнее двора, поднятого на крышу стилобата, где люди не чувствуют себя защищенно.
ЖК «Эгодом». Внутренний двор. 3-D визуализация © Сергей Скуратов ARCHITECTS
ЖК «Эгодом». Внутренний двор. 3-D визуализация © Сергей Скуратов ARCHITECTS
ЖК «Эгодом». Внутренний двор. 3-D визуализация © Сергей Скуратов ARCHITECTS
ЖК «Эгодом». Внутренний двор. 3-D визуализация © Сергей Скуратов ARCHITECTS

Еще одним важным аргументом в пользу утопленного двора стало желание архитекторов сделать двусветные вестибюли высотой девять метров. Такое пространство на входе в жилой дом создает совершенно иную по качеству атмосферу и сразу же повышает статусность комплекса. На входном минус первом уровне также расположены кафе и несколько помещений для аренды.
ЖК «Эгодом» © Сергей Скуратов ARCHITECTS
ЖК «Эгодом» © Сергей Скуратов ARCHITECTS
ЖК «Эгодом» © Сергей Скуратов ARCHITECTS
ЖК «Эгодом» © Сергей Скуратов ARCHITECTS
ЖК «Эгодом». Интерьер лобби. 3-D визуализация © Сергей Скуратов ARCHITECTS
ЖК «Эгодом». Интерьер лобби. 3-D визуализация © Сергей Скуратов ARCHITECTS

Под всем участком размещена двухуровневая подземная парковка, въезд в которую – со стороны Новоалексеевской улицы через большую кирпичную арку, одну из самых фотогеничных деталей комплекса в сочетании с открывающимся за ней видом на кирпично-стеклянные корпуса, словно на секунду застывшие в каком-то своем медленном танце, недвусмысленно говорящую каждому гостю: «вы въезжаете в мир, созданный архитектором Сергеем Скуратовым».
ЖК «Эгодом». Фото © Елена Петухова
ЖК «Эгодом». Фото © Елена Петухова

Уместная смелость
На сайте жилого комплекса Egodom опубликована цитата Сергея Скуратова, в которой он сожалеет о том, что в московской архитектуре очень мало смелой и одновременно уместной современной архитектуры. На первый взгляд эти качества не могут органично дополнить друг друга. Смелой может и должна быть акцентная, авторская архитектура, архитектура-жест, претендующая на доминирование в городской среде. Уместность – свойство, которого обычно ждут от фоновой или средовой архитектуры, сознательно ориентированной на максимально деликатное вхождение в уже существующую застройку. Как можно сочетать эти качества в одном архитектурном объекте? Это все равно что стремиться к актуальной традиционности или многогранной простоте. Неудивительно, что зданий с таким сочетанием качеств не много. Странно, что они вообще есть. И среди них ожидаемо фигурируют произведения автора парадоксальной цитаты. Казалось бы, архитектура Сергея Скуратова – всегда авторский жест, узнаваемый, яркий, современный, нередко провокационный. И между тем его архитектура абсолютно уместна. Возьмите «Даниловский форт»: смелость «живой» пластичной формы и при этом удивительная адекватность, соответствие окружающей застройке вдоль набережной. Аналогичная ситуация с «Баркли-Плаза» на Пречистенской набережной, Art-House или с домом на улице Бурденко.

Новый дом на Новоалексеевской улице имеет полное право занять место в этом ряду. В нем вновь найден баланс радикальности и корректности, акцентности (иконичности) и уместности, индивидуальности и ансамблевости.

Для самого Сергея Скуратова эти контрастные сочетания – органичная часть его работы и неотъемлемые свойства его произведений. Стремление к их комбинированию настолько привычно, что даже не воспринимается как какой-то особенный, специальный прием или метод. Не удивительно, что любые попытки «поверить алгеброй гармонию» Сергей Скуратов категорически пресекает: «Не нужно пытаться в каждом нашем проекте или постройке увидеть жесткую методологию. Ее нет. Есть композиционные принципы, субъективные пристрастия, есть, скажем так, авторский почерк, который переходит из проекта в проект и составляет сердцевину моей творческой личности, делает мои проекты узнаваемыми. Их отличает, поскольку я именно к этому и стремлюсь, некая цельность, даже простота, но ровно в таком количестве, чтобы не стать скучными или неживыми».
 
ЖК «Эгодом». Главный фасад © Сергей Скуратов ARCHITECTS
ЖК «Эгодом». Главный фасад © Сергей Скуратов ARCHITECTS
ЖК «Эгодом». Боковой фасад © Сергей Скуратов ARCHITECTS
ЖК «Эгодом». Боковой фасад © Сергей Скуратов ARCHITECTS
ЖК «Эгодом». дани фасад © Сергей Скуратов ARCHITECTS
ЖК «Эгодом». дани фасад © Сергей Скуратов ARCHITECTS
ЖК «Эгодом». Боковой фасад © Сергей Скуратов ARCHITECTS
ЖК «Эгодом». Боковой фасад © Сергей Скуратов ARCHITECTS
ЖК «Эгодом» © Сергей Скуратов ARCHITECTS
ЖК «Эгодом» © Сергей Скуратов ARCHITECTS
ЖК «Эгодом» © Сергей Скуратов ARCHITECTS
ЖК «Эгодом» © Сергей Скуратов ARCHITECTS
ЖК «Эгодом» © Сергей Скуратов ARCHITECTS
ЖК «Эгодом» © Сергей Скуратов ARCHITECTS
ЖК «Эгодом» © Сергей Скуратов ARCHITECTS
ЖК «Эгодом» © Сергей Скуратов ARCHITECTS
ЖК «Эгодом» © Сергей Скуратов ARCHITECTS
ЖК «Эгодом» © Сергей Скуратов ARCHITECTS