Размещено на портале Архи.ру (www.archi.ru)

21.02.2018

Продолжение начатого

Юлия Тарабарина
Объект:
Гостинично-деловой комплекс на Рублево-Успенском шоссе
Адрес:
Россия, Московская обл.,, Барвихинское с.п., 1-й км Рублево-Успенского шоссе
Архитектор:
Игорь Шварцман
Мастерская:
АМ Сергей Киселев и Партнеры
Авторский коллектив:
А.А. Хомякова, В.Х. Джантимирова, Е.С. Клюева, О.Д. Плужникова, И.З. Шварцман

Проект офисно-гостиничного комплекса на первом километре Рублево-Успенского шоссе развивает давние идеи и откликается на архитектуру зданий, уже построенных здесь архитекторами СКиП ранее.

Гостинично-деловой комплекс на Рублево-Успенском шоссе. Фотовстройка. Вид с Рублевского шоссе © АМ Сергей Киселев и Партнеры
Гостинично-деловой комплекс на Рублево-Успенском шоссе. Фотовстройка. Вид с Рублевского шоссе © АМ Сергей Киселев и Партнеры

С участком в начале Рублево-Успенского шоссе архитекторы СКиП работают в общей сложности больше десяти лет. В его южной части в 2015 году завершено строительство офисного центра Pallau RBпроектирование которого началось еще до кризиса, в 2007. Северная часть территории пока пустует; для нее предназначен рассматриваемый проект, который недавно был утвержден администрацией области.

Место, несмотря на близость главной московской автострады, довольно тихое: от дорог его отделяют два автоцентра, до МКАДа 170 метров, к северной границе участка подступает коттеджный поселок «Рублево-10», с запада – Ромашковский лес. Поэтому в северной половине участка с самого начала планировалось построить помимо офисов еще и гостиницу. В конечном счете территорию поделили на две части: ближе к МКАД разместились два офисных корпуса А и Б, ближе к лесу – гостиничные корпуса В и Г; каждая пара зданий связана стилобатом. Под всей территорией разместился один ярус подземной парковки. Две пары объемов, расставленных веером с севера на юг, разделяет треугольник благоустроенного пространства с небольшим пешеходным бульваром. Строить вначале, в составе первой очереди, планируют гостиничный комплекс; офисы и благоустройство отнесены ко второй очереди и появятся не сразу.
Гостинично-деловой комплекс на Рублево-Успенском шоссе. Аксонометрия © АМ Сергей Киселев и Партнеры
Гостинично-деловой комплекс на Рублево-Успенском шоссе. Аксонометрия © АМ Сергей Киселев и Партнеры
Гостинично-деловой комплекс на Рублево-Успенском шоссе. Ситуационный план ©  АМ Сергей Киселев и Партнеры
Гостинично-деловой комплекс на Рублево-Успенском шоссе. Ситуационный план © АМ Сергей Киселев и Партнеры
Гостинично-деловой комплекс на Рублево-Успенском шоссе. Генплан © АМ Сергей Киселев и Партнеры
Гостинично-деловой комплекс на Рублево-Успенском шоссе. Генплан © АМ Сергей Киселев и Партнеры
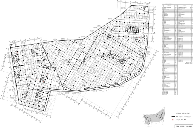
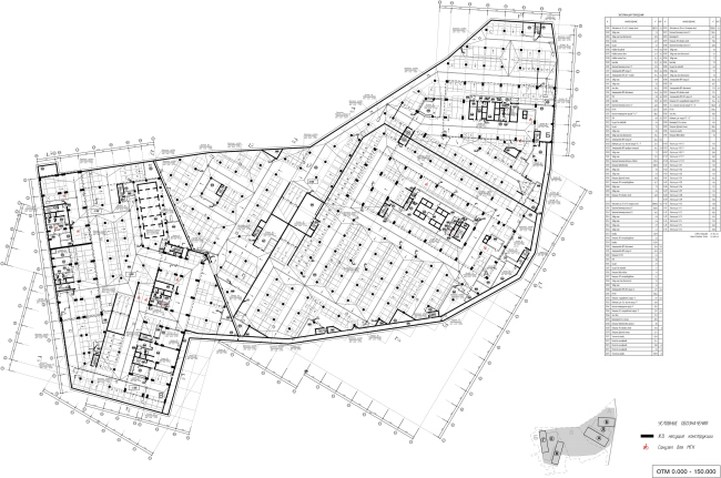
Гостинично-деловой комплекс на Рублево-Успенском шоссе. План 1 этажа © АМ Сергей Киселев и Партнеры
Гостинично-деловой комплекс на Рублево-Успенском шоссе. План 1 этажа © АМ Сергей Киселев и Партнеры

Два офисных здания образуют визуальный переход и вторят существующим корпусам Pallau, наследуя от них не только деловую функцию, но и обилие стекла, и наклоны плоскостей, в том числе кровель – снаружи вглубь, так, как будто бы все пластины немного вздергивают нос перед формальной границей столицы – кольцевой трассой МКАДа. При взгляде с юго-востока офисные корпуса выстраиваются в дискретный ритмический ряд, чередуя блеск стекла и желтоватый тон фасадов. Впрочем, если фасадные панели Pallau – металлические, и их светлый легкий блеск восходит к первоначальному замыслу стеклянного объема в «золотой» оболочке, то в новых корпусах планируется использовать юрский камень: цвет и фактура будут разными, хотя издали они все же должны, по-видимому, казаться похожими.

Стеклянная оболочка также решена до некоторой степени «наоборот»: в новых зданиях не продольные, а торцевые фасады задуманы стеклянными. Их пиксельный рисунок, темный внизу и светлый вверху, обеспечен простым приемом: вместо того, чтобы манипулировать разнообразными оттенками затемнения, делающего пространство внутри мрачноватым, архитекторы предложили часть стекол с одинаковым коэффициентом UF-защиты перевернуть на 180º – защита осталась одинаковой, а угол отражения солнечных лучей стал разным, что должно обеспечить мягкое пиксельное «растворение» стеклянных плоскостей, плавный переход к небу. Прием экономный и изящный.
Гостинично-деловой комплекс на Рублево-Успенском шоссе. Фотовстройка. Вид со МКАДа © АМ Сергей Киселев и Партнеры
Гостинично-деловой комплекс на Рублево-Успенском шоссе. Фотовстройка. Вид со МКАДа © АМ Сергей Киселев и Партнеры

Благодаря скосам кровель – в общей сложности они поднимаются на 5 метров – удалось не только замаскировать техэтажи, но и предусмотреть западную часть кровель в качестве эксплуатируемых – площадок для офисных праздников. Вид на лесные окрестности отсюда должен быть замечательным, – уверена ГАП проекта Анастасия Хомякова. От МКАДа эксплуатируемые части крыш прикрыты выступами техэтажей.
Гостинично-деловой комплекс на Рублево-Успенском шоссе. Участок А, корпуса А, Б (офисные) © АМ Сергей Киселев и Партнеры
Гостинично-деловой комплекс на Рублево-Успенском шоссе. Участок А, корпуса А, Б (офисные) © АМ Сергей Киселев и Партнеры
Гостинично-деловой комплекс на Рублево-Успенском шоссе. Участок А. Корпуса А, Б (офисные). Фасад © АМ Сергей Киселев и Партнеры
Гостинично-деловой комплекс на Рублево-Успенском шоссе. Участок А. Корпуса А, Б (офисные). Фасад © АМ Сергей Киселев и Партнеры

Три других фасада подчинены крупной рельефной решетке, объединяющей от трех до пяти этажей по высоте, причем на внутреннем торце решетка регулярная, горизонтали постоянны, лишь вертикали с каждым шагом вверх становятся чаще и тоньше. А на боковых фасадах горизонтали смещены: получается похоже на мегапаззл-пятнашки или на схематизированный результат сдвига геологических пластов. Глубина ребер также увеличивается книзу, усиливая то ли геологические, то ли готические ассоциации.
Гостинично-деловой комплекс на Рублево-Успенском шоссе © АМ Сергей Киселев и Партнеры
Гостинично-деловой комплекс на Рублево-Успенском шоссе © АМ Сергей Киселев и Партнеры

Два здания гостиниц в западной части территории выглядят более консервативно. Фасады первого из них, того, что ближе к центру участка, решены в темном кирпиче, причем предполагается полнотелый кирпич ручной формовки с эффектом гризайли, создаваемым полосками более светлого кирпича вдоль собранных в вертикальные группы окон, формирующих видимость освещенных солнцем откосов – для улучшения настроения и для того, чтобы подчеркнуть объем окон. Здесь также, хотя и в меньшей степени, чем в офисных фасадах, заметна игра с горизонталями: межэтажные перемычки то уже, то шире, и образуют подобие легкой волны. Перемычки в группах окон – из темно-коричневого кирпича, частые углубления балконов-лоджий забраны темными же решетками, все вместе работает на глубину фасадов «цвета шоколада». Высокие, 5-метровые, как сейчас принято, первые этажи отданы кафе, обращенным в сторону благоустроенного сквера.
Гостинично-деловой комплекс на Рублево-Успенском шоссе. Компьютерная модель © АМ Сергей Киселев и Партнеры
Гостинично-деловой комплекс на Рублево-Успенском шоссе. Компьютерная модель © АМ Сергей Киселев и Партнеры
Гостинично-деловой комплекс на Рублево-Успенском шоссе. Компьютерная модель, фрагмент корпуса В © АМ Сергей Киселев и Партнеры
Гостинично-деловой комплекс на Рублево-Успенском шоссе. Компьютерная модель, фрагмент корпуса В © АМ Сергей Киселев и Партнеры
Гостинично-деловой комплекс на Рублево-Успенском шоссе. Компьютерная модель © АМ Сергей Киселев и Партнеры
Гостинично-деловой комплекс на Рублево-Успенском шоссе. Компьютерная модель © АМ Сергей Киселев и Партнеры
Гостинично-деловой комплекс на Рублево-Успенском шоссе. Компьютерная модель © АМ Сергей Киселев и Партнеры
Гостинично-деловой комплекс на Рублево-Успенском шоссе. Компьютерная модель © АМ Сергей Киселев и Партнеры

Второй дом, тот, что вдоль леса, отличается светлой гаммой кирпича, тяготеющей к цвету белого камня. Кирпич здесь, также как в первом корпусе, ручной формовки, со смятой неровной «белоглиняной» фактурой – оказалось не так просто найти подходящую фабрику. Ни вертикаль, ни горизонталь здесь не преобладают, они скорее смешиваются: рельефные полоски напоминают конструктивистские кварталы, темные вставки между окнами кажутся заимствованными от соседнего дома «по-братски». Получившийся гибрид подобен увеличенному фрагменту кружева – все это довольно уютно, дачно, как пятна света на деревянной террасе. Впрочем не будем забывать, что теплота сепиевой гризайли призвана компенсировать масштаб: в каждом здании по 17 этажей, 60 м чистого роста – хотя их и не двадцать пять; для замкадовского пространства нашего времени масштаб относительно небольшой, почти советский.
Гостинично-деловой комплекс на Рублево-Успенском шоссе. Фрагмент корпуса Г (гостиничного) © АМ Сергей Киселев и Партнеры
Гостинично-деловой комплекс на Рублево-Успенском шоссе. Фрагмент корпуса Г (гостиничного) © АМ Сергей Киселев и Партнеры
Гостинично-деловой комплекс на Рублево-Успенском шоссе. Западный фасад © АМ Сергей Киселев и Партнеры
Гостинично-деловой комплекс на Рублево-Успенском шоссе. Западный фасад © АМ Сергей Киселев и Партнеры
Гостинично-деловой комплекс на Рублево-Успенском шоссе. Северный фасад © АМ Сергей Киселев и Партнеры
Гостинично-деловой комплекс на Рублево-Успенском шоссе. Северный фасад © АМ Сергей Киселев и Партнеры
Гостинично-деловой комплекс на Рублево-Успенском шоссе. Южный фасад © АМ Сергей Киселев и Партнеры
Гостинично-деловой комплекс на Рублево-Успенском шоссе. Южный фасад © АМ Сергей Киселев и Партнеры
Гостинично-деловой комплекс на Рублево-Успенском шоссе. Схема развертки по Рублевскому шоссе © АМ Сергей Киселев и Партнеры
Гостинично-деловой комплекс на Рублево-Успенском шоссе. Схема развертки по Рублевскому шоссе © АМ Сергей Киселев и Партнеры
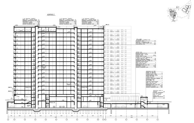
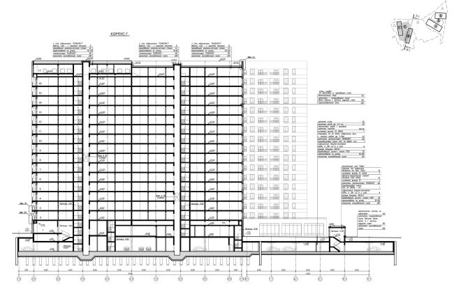
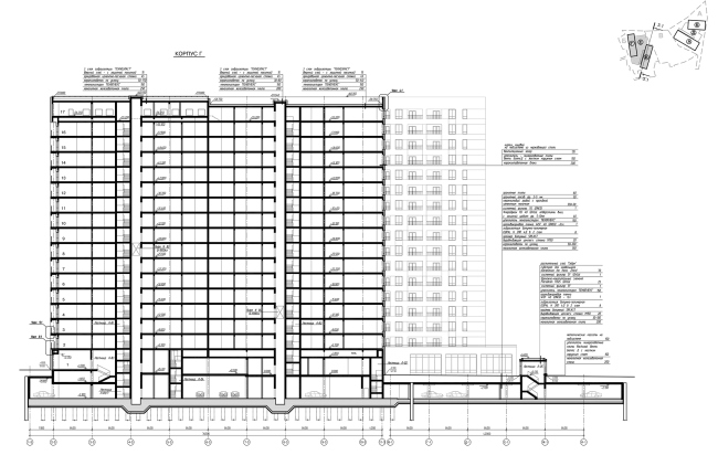
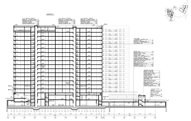
Гостинично-деловой комплекс на Рублево-Успенском шоссе. Корпуса В, Г (гостиничные). Разрез 3.1-3.1 © АМ Сергей Киселев и Партнеры
Гостинично-деловой комплекс на Рублево-Успенском шоссе. Корпуса В, Г (гостиничные). Разрез 3.1-3.1 © АМ Сергей Киселев и Партнеры

Два гостиничных корпуса связаны между собой, как мы помним, стилобатом, той же 5-метровой высоты, что и первые общественно-коммерческие этажи. В нем должен разместиться финтес-центр со спа, на благоустроенной кровле – прогулочная зона.

Комплекс интересен как продолжение давней работы архитекторов СКиП. В этом случае собственная постройка, в свое время, признаем, ощутимо изменившаяся в процессе проектирования, хотя ей и удалось сохранить основной замысел – становится для авторов важнейшим, родственным контекстом, требует отклика, возможно, даже резонанса, усиления или раскрытия темы. Здесь заметно и готицизированное заострение в офисных корпусах, открытых двумя окулярами к трассе – и, в то же время, плавный переход к другой теме, домашней, фактурной, связанной, скажем так, с приметами дня сегодняшнего, определенной и требованиями функции, и возможно, актуальностью «манхэттенской» высотно-кирпичной образности. Три блока зданий, первый из которых уже построен, так или иначе складываются в некую цепочку, вырастают, переворачиваются, меняют материал, но остаются частями одной и той же истории.
Гостинично-деловой комплекс на Рублево-Успенском шоссе. Корпуса В, Г (гостиничные). План 2 этажа © АМ Сергей Киселев и Партнеры
Гостинично-деловой комплекс на Рублево-Успенском шоссе. Корпуса В, Г (гостиничные). План 2 этажа © АМ Сергей Киселев и Партнеры
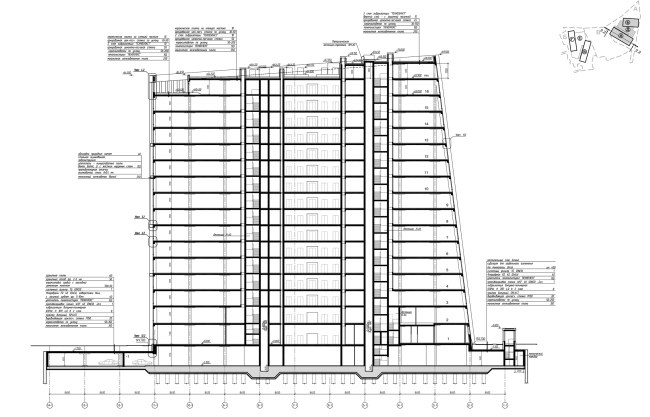
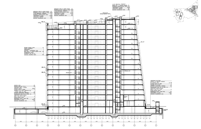
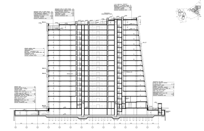
Гостинично-деловой комплекс на Рублево-Успенском шоссе. Корпуса А, Б (офисные). Разрез 2.2-2.2 © АМ Сергей Киселев и Партнеры
Гостинично-деловой комплекс на Рублево-Успенском шоссе. Корпуса А, Б (офисные). Разрез 2.2-2.2 © АМ Сергей Киселев и Партнеры
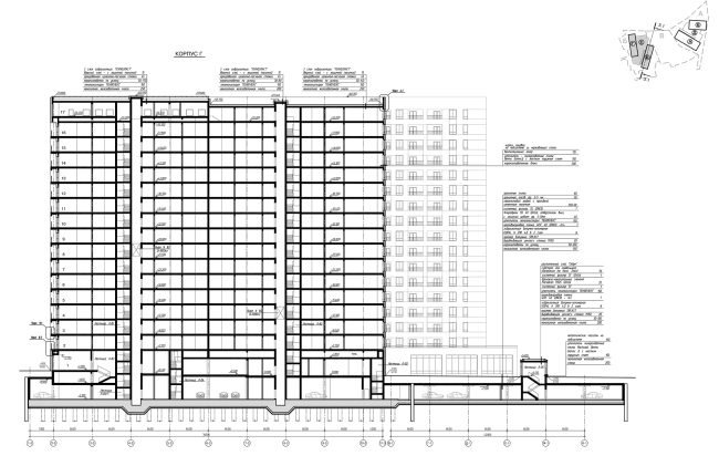
Гостинично-деловой комплекс на Рублево-Успенском шоссе. Корпуса А, Б (офисные), разрез 1.2-1.2 © АМ Сергей Киселев и Партнеры
Гостинично-деловой комплекс на Рублево-Успенском шоссе. Корпуса А, Б (офисные), разрез 1.2-1.2 © АМ Сергей Киселев и Партнеры
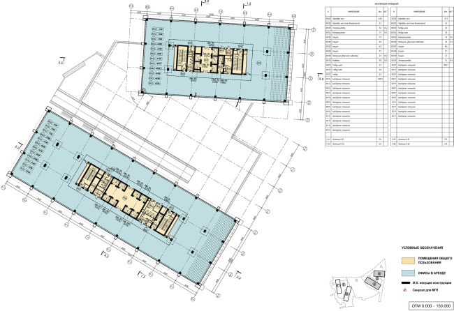
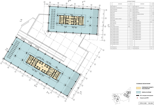
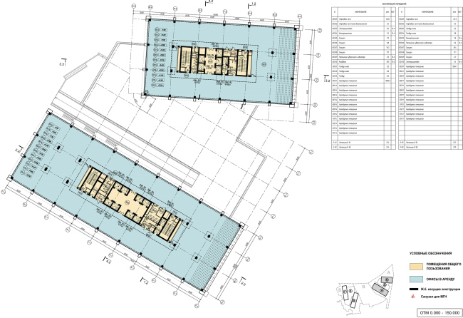
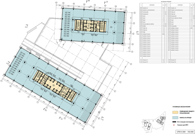
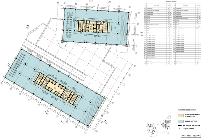
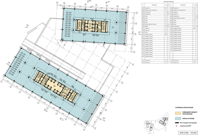
Гостинично-деловой комплекс на Рублево-Успенском шоссе. Корпуса А, Б (офисные). План 2 этажа  © АМ Сергей Киселев и Партнеры
Гостинично-деловой комплекс на Рублево-Успенском шоссе. Корпуса А, Б (офисные). План 2 этажа © АМ Сергей Киселев и Партнеры
Гостинично-деловой комплекс на Рублево-Успенском шоссе. Корпуса А, Б (офисные), планы 3-14 этажей © АМ Сергей Киселев и Партнеры
Гостинично-деловой комплекс на Рублево-Успенском шоссе. Корпуса А, Б (офисные), планы 3-14 этажей © АМ Сергей Киселев и Партнеры
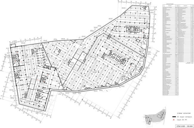
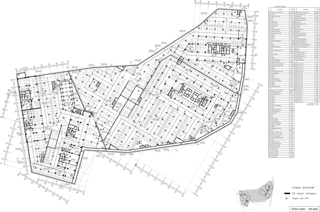
Гостинично-деловой комплекс на Рублево-Успенском шоссе. План подвала на отм. -5.100 © АМ Сергей Киселев и Партнеры
Гостинично-деловой комплекс на Рублево-Успенском шоссе. План подвала на отм. -5.100 © АМ Сергей Киселев и Партнеры