Размещено на портале Архи.ру (www.archi.ru)

13.02.2018

Крылатый образ Перми

Елена Петухова
Объект:
Аэропорт Большое Савино в Перми
Адрес:
Россия, Пермь. Большое Савино
Мастерская:
Argentum Innovation Group (AIG)
Cladding Solutions
АБ ASADOV
UNK
ГК «Спектрум»
Архитектурная мастерская «Шамарин и Ко»
Авторский коллектив:
А.Р. Асадов, А.А. Асадов, К. Шепета, Т. Лебедева, И. Шевченко
 

В новом терминале аэропорта Перми бюро Асадова не только добилось баланса между технологичностью, безопасностью, комфортом и имиджевой составляющей, но и предложило новый символ для всего Прикамья.

Аэропорт Большое Савино в Перми
Аэропорт Большое Савино в Перми
© Андрей Асадов

Возрождение внутренних линий
Статистика свидетельствует, что россияне стали больше путешествовать внутри страны. В этой ситуации у компаний, управляющих инфраструктурой аэропортов, наконец, появилась возможность инвестировать в нее средства. Хотя ее было бы правильнее назвать «необходимостью», поскольку подавляющее большинство аэропортов все еще существует в архаичном формате советских «стекляшек». В течение последних 15 лет лишь московские и питерские аэропорты были реконструированы с участием ведущих российских и иностранных архитекторов и с результатом разной степени актуальности и выразительности. К разряду экспериментов можно отнести Терминал D в «Шереметьево-2» спроектированный командой Дмитрия Пшеничникова с явным предпочтением бионических форм. Более спокойное решение терминала «Внуково» от «Метрогипротранс» принесло ему признание в профессиональных кругах и премию «Хрустальный Дедал». Некоторые, наиболее значимые объекты проводились через конкурсную систему. Так, Николас Гримшо в 2007 году выиграл конкурс на реконструкцию аэропорта «Пулково». В 2016 году стало известно, что победу в конкурсе на интерьеры нового, строящегося терминала B аэропорта «Шереметьево-2» одержало бюро RMJM. Темпы и география реконструкций аэропортов существенно возросли после объявления списка городов, которые будут принимать у себя матчи чемпионата мира по футболу 2018 года. Это событие стало катализатором обновления городских инфраструктурных объектов, и, в первую очередь терминалов аэропортов, выполняющих роль «лица города», обязанного представить его в наиболее выигрышном свете и продемонстрировать местные достопримечательности. Благодаря ЧМ'18 обновились аэропорты в Самаре и Нижнем Новгороде, на очереди Саратов и Ростов-на-Дону. Параллельно реконструируются аэропорты и в других российских городах, имеющих высокий туристический потенциал, к примеру в Симферополе и Перми.
Аэропорт Большое Савино в Перми
Аэропорт Большое Савино в Перми
© Андрей Асадов
Аэропорт Большое Савино в Перми
Аэропорт Большое Савино в Перми
© Андрей Асадов

Пермская сага
История реконструкции аэропорта «Большое Савино» в Перми достаточно драматична. В ней нашлось место и для публичных скандалов, и заморозки проекта из-за смены региональных властей, и борьбе за контракт между ведущими российскими холдингами. Результаты нескольких архитектурных конкурсов то утверждались, то отменялись. В общей сложности между решением о реконструкции бывшего военного аэродрома и окончанием строительства на его месте современного аэропорта прошло больше 15 лет.

Предсказать, какой проект выйдет в финал и получит шанс быть реализованным, было невозможно. Все решило счастливое стечение обстоятельств, благодаря которому инвестор проекта – компания «Новапорт» остановила свой выбор на концепции, предложенной архитектурным бюро Асадова и компанией «Спектрум». В ней архитекторы смогли соединить уже апробированную в Саратове и хорошо себя зарекомендовавшую в России функционально-планировочную и логистическую схему, разработанную немецкими специалистами по проектированию аэропортов WP ARC, и яркий архитектурно-художественный образ, в котором угадывается широкий диапазон ассоциаций с различными культурными и историческими достопримечательностями Перми.
Аэропорт Большое Савино в Перми. Ситуационный план
Аэропорт Большое Савино в Перми. Ситуационный план
© Архитектурное бюро Асадова

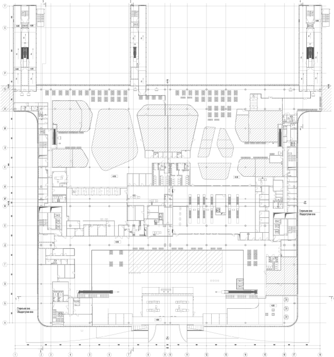
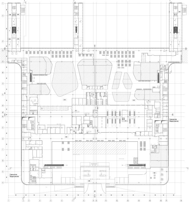
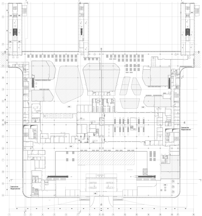
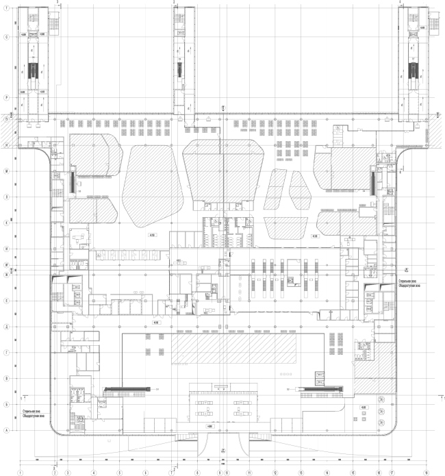
Схема терминала проста и логична. Основное здание представляет собой квадрат со стороной чуть меньше 140 метров. Со стороны летного поля к нему пристраивается галерея с расширением и перпендикулярными блоками, к которым стыкуются посадочные трапы. Внутри основного объема с немецкой точностью скомпонованы все основные функциональные блоки служб аэропорта, от стоек регистрации до магазинов и кафе, от таможни до ряда багажных транспортеров. Конструктивная схема здания также достаточно стандартна – монолитный каркас с шагом 9х9 метров, в отдельных зонах переходящий либо на удвоенный шаг, либо заменяемый на большепролетные конструкции, если нужно, например, перекрыть огромный двусветной зал в зоне вылета.
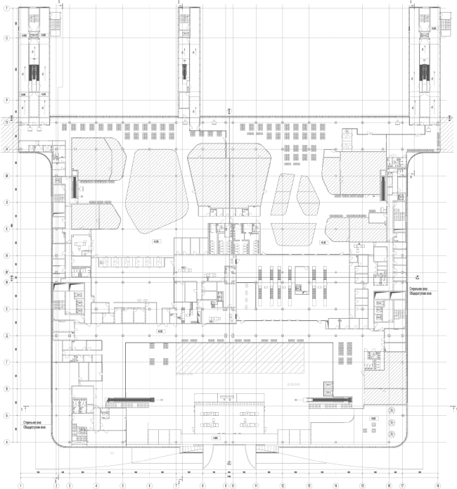
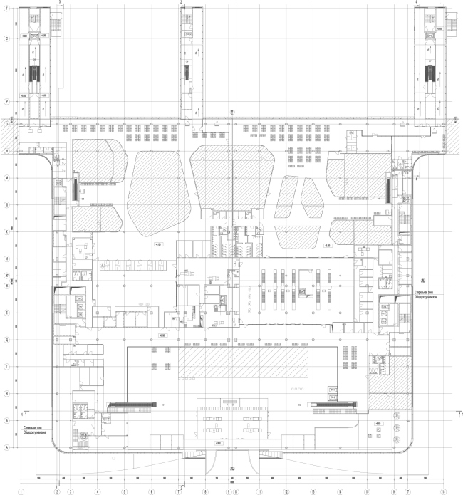
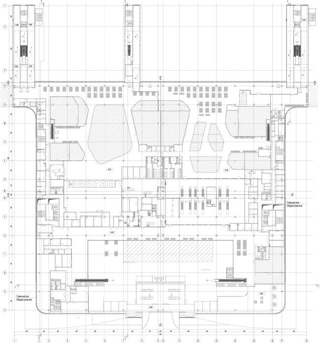
Аэропорт Большое Савино в Перми. План 1 этажа
Аэропорт Большое Савино в Перми. План 1 этажа
© Архитектурное бюро Асадова
Аэропорт Большое Савино в Перми. План 2 этажа
Аэропорт Большое Савино в Перми. План 2 этажа
© Архитектурное бюро Асадова
Аэропорт Большое Савино в Перми. Разрез
Аэропорт Большое Савино в Перми. Разрез
© Архитектурное бюро Асадова
Аэропорт Большое Савино в Перми. Разрез
Аэропорт Большое Савино в Перми. Разрез
© Архитектурное бюро Асадова

Архитектурная задача заключалась в поиске объемно-пространственного решения, способного придать этой «машине» для обслуживания пассажиров и самолетов индивидуальный и эффектный облик. Прилагающийся к этому образу огромный комплекс технических и инжиниринговых проблем редко принимают во внимание. А жаль. Именно решение этих задач и отличает высококлассных проектировщиков. До недавнего времени в этой роли выступали преимущественно иностранные специалисты, но сейчас ситуация начинает меняться. Во всяком случае, на проекте терминала в Перми собралась команда, имеющая опыт разработки и реализации аналогичных проектов. Помимо бюро Асадова в команду проекта вошли: генпроектировшик компания «Спектрум», пермский архитектор Сергей Шамарин, занимавшийся генпланом и вопросами, связанными с архитектурными деталями концепции терминала, а также бюро UNK project, выигравшее конкурс на дизайн интерьеров терминала, и многие другие компании, благодаря которым Пермь получила новый супер-современный терминал с авторской архитектурой и уникальным образом.​
Аэропорт Большое Савино в Перми
Аэропорт Большое Савино в Перми
© Андрей Асадов

Формы и образы
Архитектурное бюро Асадова стремиться вкладывать в свои проекты сверхидею, которая переводит на понятный и привлекательный для заказчика и общественности язык характерные для бюро экспрессивные объемно-пространственные и оригинальные технологические решения. Александр Асадов комментирует идею, которая оказалась решающим аргументом в пользу предложенного проекта, так: «Когда-то мы проектировали мост для Киева и придумали, что он должен стать своего рода ангелом-хранителем для всего города, но проект так и остался на бумаге. А здесь в Перми, у нас, наконец, появился шанс создать ангела-хранителя с еще большим размахом крыльев, распростертыми по бокам огромной буквы «П». Словно сам город обрел крылья. И этот образ неразрывно связан со знаменитой коллекцией деревянной резной скульптуры, которая хранится в пермской художественной галерее. Там есть удивительный херувим, который и вдохновил нас на развитие крылатой темы, органично продолжающей идею с белым порталом, напоминающим букву «П».
Деревянная резная скульптура херувима. Художник Никон Кирьянов. 1906 г.
Деревянная резная скульптура херувима. Художник Никон Кирьянов. 1906 г.
Аэропорт Большое Савино в Перми, 2013-2017
Аэропорт Большое Савино в Перми, 2013-2017
© АБ Асадова

Образное «деревянное крыло» на самом деле представляет собой огромную конструкцию, облицованную металлическими панелями золотистого цвета, нависающую над витражным периметром основного объема терминала. Впечатление распростертых крыльев создается за счет пластической игры криволинейных и прямых плоскостей. Конструкция то изгибается, нависая плавной дугой над входным порталом, то образует острые, словно срезанные гигантским лезвием, грани по углам здания, выступающие больше чем на 10 метров. За счет контраста между материальностью насыщенного по цвету и фактуре металла и прозрачностью витражей под ним создается ощущение, что вся конструкция парит над периметром здания, своим золотым сиянием защищая и охраняя все, что происходит под ней.
Аэропорт Большое Савино в Перми
Аэропорт Большое Савино в Перми
© Андрей Асадов
Аэропорт Большое Савино в Перми. Фасад
Аэропорт Большое Савино в Перми. Фасад
© Архитектурное бюро Асадова
Аэропорт Большое Савино в Перми. Интерьер
Аэропорт Большое Савино в Перми. Интерьер
© Андрей Асадов
Аэропорт Большое Савино в Перми. Фасад ©
Аэропорт Большое Савино в Перми. Фасад ©
Архитектурное бюро Асадова

По словам Андрея Асадова, поиск материалов и технологий для создания «крыла» потребовал от архитекторов немало усилий, но они того стоили: «Поверхность конструкции воспринимается как золотистое дерево. Особенно вечером, с декоративной подсветкой. Мы долго подбирали оттенок металла и способ создания фактуры, чтобы добиться этого эффекта. Мы разработали индивидуальную комбинацию из П-образного профиля, который незаметным способом крепился на изогнутый металлический лист. Таким образом получалась объемная шершавая передняя сторона. А на боковых вылетах конструкции мы использовали гладкие листы, чтобы создать впечатление идеально ровного среза. С точки зрения качества исполнения и производимого эффекта эта конструкция стала для меня хорошим примером возможностей российских производителей. Подрядная компания «Альфа-Строй» из Екатеринбурга очень ответственно подошла к делу, скрупулезно реализовала наше решение».
Аэропорт Большое Савино в Перми. Конструктивные узлы крепления оболочки «крыла»
Аэропорт Большое Савино в Перми. Конструктивные узлы крепления оболочки «крыла»
© Архитектурное бюро Асадова

Главный и боковые фасады терминала выполнены преимущественно из стекла. На витражи нанесены декоративные изображения, характерные для пермского звериного стиля (так называются бронзовые артефакты III–XII в. н.э.), а также стилизованные изображения окаменелостей и ископаемых, относящихся к так называемому «пермскому периоду» – последнему геологическому периоду палеозойской эры. Эти мотивы для оформления терминала предложил архитектор Сергей Шамарин, чтобы придать больший колорит новому зданию и представить гостям города самые яркие образы, ассоциирующиеся с историей и наследием всего Прикамья.
Аэропорт Большое Савино в Перми
Аэропорт Большое Савино в Перми
© Андрей Асадов

На боковых фасадах, с внешней стороны, в качестве дополнительных декоративных элементов используются горизонтальные импосты в виде прямоугольных ламелей. Они закрывают витражи в тех местах, где расположены вспомогательные и технические помещения, которым не требуются большие площади остекления. А там, где расположены кабинеты, они разорваны стеклянными лентами окон.
Аэропорт Большое Савино в Перми
Аэропорт Большое Савино в Перми
© Андрей Асадов

В расчете на обзор нового аэропорта с борта подлетающих и улетающих самолетов, архитекторы оформили кровлю как пятый фасад, включив в него ту же комбинацию отделочных материалов и введя, в качестве акцента, криволинейные фонари, продолжающие пластическую игру металлических и стеклянных плоскостей, начатую на главном фасаде. Эти фонари и естественный свет, который проникает через них, задают тон и характер всему внутреннему пространству терминала.
Аэропорт Большое Савино в Перми
Аэропорт Большое Савино в Перми
© Архитектурное бюро Асадова
Аэропорт Большое Савино в Перми
Аэропорт Большое Савино в Перми
© Архитектурное бюро Асадова

Внутренняя геология
Авторское архитектурное решение терминала задало высокую планку качества и художественной выразительности, которому должен был соответствовать и интерьерный дизайн. Для поиска лучшей концепции и команды разработчиков инвестор проекта провел конкурс, в котором победило бюро UNK project, предложившее интересное развитие архитектурной темы в оформлении общественных пространств терминала. Юлия Тряскина, партнер UNK project, так описывает найденное решение: «Для нас образ, который использовали Асадовы в архитектуре терминала, ассоциировался не с крылом или волной, а с осенним листом, упавшем с дерева и слегка скрученным от мороза. На этом образе мы построили наше конкурсное предложение, которое родилось буквально на одном дыхании, легко и естественно. Например, мы использовали силуэты растений для оформления декоративного фриза, идущего под крышей вдоль поперечной стены, отделяющей двусветное пространство главного зала от зоны вылета на втором ярусе. В то же время изображения на панно напоминают отпечатки ископаемых растений, которые часто обнаруживают палеонтологи. У аэропорта появился запоминающийся образ. Кто-то знает про пермский период, кто-то – нет. Но если скажешь знакомому «встречаемся под листом» – он поймет тебя. В интерьере должны быть такие знаки, не столько красивые, сколько цепляющие. В наших интерьерах мы всегда выделяем главное, то, что запомнится, а все остальное подтягиваем к этому».
Аэропорт Большое Савино в Перми. Интерьер
Аэропорт Большое Савино в Перми. Интерьер
© Андрей Асадов
Аэропорт Большое Савино в Перми, 2016-2017. Интерьер
Аэропорт Большое Савино в Перми, 2016-2017. Интерьер
© АБ Асадова

Геологическую тему продолжают серые полосы на боковых стенах и парапетах антресольного этажа. Неровные изломанные линии нескольких серо-бежевых оттенков напоминают слои разных геологических пластов на раскопках. Но в целом интерьер терминала развивает скорее хайтековскую, нежели археологическо-геологическую тематику. Лаконичная колористическая гамма с доминирующим белым цветом, конструктивные элементы простых форм без намека на декор, графичность и ритмичная четкость подвесных потолочных систем с акцентированными световыми приборами – все это гармонично дополняет общее архитектурное решение, не вступая в конфликт с доминирующим элементом интерьера – огромным дугообразным световым фонарем, пересекающим зал и обнажающим сложносочиненную сеть из тонких стальных подконструкций, поддерживающих оболочку «крыла».
Аэропорт Большое Савино в Перми. Интерьер
Аэропорт Большое Савино в Перми. Интерьер
© Андрей Асадов
Аэропорт Большое Савино в Перми. Интерьер
Аэропорт Большое Савино в Перми. Интерьер
© Андрей Асадов

До этого проекта у бюро UNK project не было опыта работы в аэропортах, но законченные незадолго до этого интерьеры «Детского мира» подготовили команду к наиболее сложной части проекта – поиску баланса между эстетикой, экономикой и безопасностью. «Аэропорт – это, прежде всего, функция, где должно быть комфортно, уютно и понятно, куда идти. В большей части помещений, люди, как правило, не замечают дизайна. Эмоциональная, визуально-активная составляющая проекта сосредотачивается лишь в трех местах: общем зале и в зоне ожидания вылета. В остальных местах во главу угла ставилась безопасность пассажиров, в первую очередь, пожарная», – так характеризует специфику работы в аэропорту Юлия Тряскина.
Аэропорт Большое Савино в Перми. Интерьер
Аэропорт Большое Савино в Перми. Интерьер
© Андрей Асадов
Аэропорт Большое Савино в Перми. Интерьер
Аэропорт Большое Савино в Перми. Интерьер
© Андрей Асадов

Архитекторы при разработке интерьеров могли использовать очень ограниченный перечень материалов, подходящих под необходимый класс огнестойкости (К0) и при этом укладывавшихся в заданный бюджет. Каждое решение и узел проверяли на соответствие требованиям безопасности, оно также должно было быть функциональным, легким в обслуживании и, при необходимости, легко заменяемым или восстанавливаемым. Так что в приоритете были не столько художественные задачи, сколько условия эксплуатации и удобство пассажиров, контроль за соблюдением которых осуществлял генеральный проектировщик – компания «Спектрум».

Командная работа
Залог успеха крупных инфраструктурных проектов – слаженная работа всех участников, решающих творческие, технические и административные проблемы. В данном случае функции генпроектировщика были доверены компании «Спектрум», с которой у бюро Асадова сложился успешный тандем еще на проекте саратовского аэропорта. Сергей Фролов, директор по управлению проектами «Спектрум» считает, что «задача генерального проектировщика – сбалансировать интересы всех участников проекта и найти компромиссные технические решения, сохраняющие исходную архитектурную идею при соблюдении интересов оператора аэропорта и ограничениях строительства. При этом нельзя забывать об обеспечении комфорта пассажиров, необходимом уровне безопасности, технологиях и логистической схеме, обеспечивающей требуемый пассажиропоток и при достаточном объеме пригодных для аренды площадей. Реализовывать такой подход «Спектруму» помогают управленческие стандарты и широко применяемые современные инструменты поддержки проектирования – информационное моделирование (BIM) и облачные технологии, создающие единую информационную среду для всех участников проекта».

Помимо собственно терминала в состав проекта вошла концепция развития прилегающей территории, включавшая традиционные для аэропортов отель и многоэтажную парковку. Эти объекты пока не реализованы, но вся инфраструктура рассчитывалась с их учетом. Также был разработан проект благоустройства площади перед терминалом, в котором также, как и в архитектуре аэропорта, обыграны местные особенности. «Вместо банальной парковки или чисто функциональной площади перед терминалом мы решили сделать экскурс в специфику края для гостей нашего города, – рассказывает архитектор Сергей Шамарин. – Наш регион называется Прикамье и река Кама – это основа, костяк города. Чтобы подчеркнуть значимость воды, мы предложили сделать посередине площади плоский бассейн или сухой фонтан, который будет функционировать в летнее время. Внутри фонтана мы запланировали арт-объекты в виде огромных светящихся кубов, на которых могут быть запечатлены какие-то символические изображения из истории Перми».

Кроме отеля, паркинга и фонтана, в рамках реконструкции предстоит закончить один из ключевых элементов инфраструктуры аэропорта – покрытие перрона за терминалом, который позволяет самолетам подъезжать непосредственно к зданию, чтобы пассажиры могли подниматься на борт, не выходя на улицу. Эта часть строительства должна финансироваться из регионального бюджета и, согласно планам, все работы будут закончены в 2019 году. Именно тогда жители и гости Перми смогут в полной мере оценить удобство и совершенство нового комплекса, созданного усилиями большой интернациональной команды.