Размещено на портале Архи.ру (www.archi.ru)

12.12.2017

Ажурный опыт

Алла Павликова, Юлия Тарабарина
Объект:
ЖК на ул. Михайлова
Адрес:
Россия, Москва. ул. Михайлова, вл.31
Мастерская:
Архитектурное Бюро GREN.

Проект ЖК на улице Михайлова умело использует достоинства окружения к пользе будущих обитателей, развивая многие актуальные тренды: деталировка фасадов тщательна, общественные пространства продуманы как с точки зрения горожанина, так и для жильцов дома.

ЖК на улице Михайлова
ЖК на улице Михайлова
© GREN.

Жилой комплекс строится на юго-востоке Москвы, на участке 2,4 га – в 700 метрах от границы лесопарка усадьбы Кусково. Впрочем, дворец-музей и его Большой пруд находятся в противоположной части парка, так что дом не нарушит историческую панораму. Ближайшее окружение ЖК – утопающие в зелени пятиэтажки, в том числе кирпичные сталинские, с вкраплениями микрорайонной застройки более высокой этажности. До метро «Рязанский проспект» – 20 минут пешком, до ж/д платформы «Плющево» – 10. В ближайшем будущем в 15 минутах ходьбы планируется открыть новую станцию метро – «Окскую улицу».
ЖК на улице Михайлова. Схема ситуационного плана
ЖК на улице Михайлова. Схема ситуационного плана
© GREN.

Задача спроектировать крупный жилой комплекс на относительно небольшом участке с инсоляционными ограничениями была непростой, – рассказывает главный архитектор ГК «Олимпроект» Екатерина Грень. Заказчик хотел видеть яркую архитектурную концепцию, не конфликтующую с окружением, учитывающую современные тенденции жилого строительства. По словам Екатерины Грень, архитекторам в процессе сложной работы удалось найти решение, которое смогло удовлетворить и заказчика, и будущих жильцов, и жителей соседних домов.

Комплекс состоит из восьми жилых секций высотой от 12 до 19 этажей. Они формируют полузамкнутый двор, раскрытый к северо-востоку в сторону парка. Фронт улицы Михайлова образуют три 12-этажных секции – здесь вдоль всего фасада на первом этаже планируется общественное пространство с кафе, магазинами и открытым променадом вдоль улицы перед ними. Типология городских магазинов в целом знакома ближайшей округе: они имеются на первых этажах сталинских пятиэтажек и стилобатах более поздних 9-этажных домов, однако новый ЖК должен привить в районе более новый, современный тип насыщенного общественного пространства первых этажей.
ЖК на ул. Михайлова
ЖК на ул. Михайлова
© GREN.

В глубину участка вытянулись два 19-этажных корпуса. Восточный корпус соединен с корпусом вдоль улицы Михайлова широким перешейком-гипостелем. Его озелененная кровля станет небольшим дополнительным сквером, а опоры будут облицованы черным полированным гранитом. Напротив, в западном корпусе, есть другой вход во двор: компактный узкий проход, функционально дублирующий восточные «пропилеи» – это важно, поскольку, как сейчас принято, все входы в жилые секции расположены во дворе, так что вход во двор – это и вход в дом.
ЖК на улице Михайлова. Входная группа и въезд в подземный паркинг
ЖК на улице Михайлова. Входная группа и въезд в подземный паркинг
© GREN.

Станция метро «Рязанский проспект», также как и «Окская улица», расположена к востоку от дома на улице Михайлова – так что восточный фасад запланирован в некотором роде «парадным», и поскольку именно с этой стороны будет двигаться основной поток людей из метро, здесь расположился главный вход во двор. По той же причине внешний фронт восточного корпуса так же, как и первые этажи по улице Михайлова, отдан кафе и магазинам. Это – «городской фасад», обращенный в сторону оживленного Рязанского проспекта.

Впрочем, другое достоинство участка – при неплохой транспортной доступности он не зажат между трассами улиц. Ближайший сосед с «парадной» восточной стороны – заросшее кустарниками типовое здание поликлиники; до узкой и тихой 1-й Институтской улицы – 65 м. С противоположной, восточной стороны до Луховицкой улицы еще дальше – 180 м; здесь ближайший сосед дома – трехэтажное здание бывшей медсанчасти. С этой стороны вся территория до улицы входит в сферу влияния ЖК и здесь задумана переходная зона – своего рода тихий двор, через который можно будет дойти, не переходя никаких трасс, до футбольного поля, детской площадки и библиотеки. Здесь же расположится гостевая наземная парковка ЖК с травянисто-решетчатым покрытием. С этой стороны в двух первых этажах северо-восточного корпуса разместится встроенный детский сад на 124 места площадью более 2000 м2.
ЖК на улице Михайлова. Схема планировочной  организации земельного участка, совмещенная со схемой транспортной организации территории
ЖК на улице Михайлова. Схема планировочной организации земельного участка, совмещенная со схемой транспортной организации территории
© GREN.
ЖК на ул. Михайлова. Схема плана 1 и 2 этажа ДОУ
ЖК на ул. Михайлова. Схема плана 1 и 2 этажа ДОУ
© GREN.
ЖК на ул. Михайлова. Схема разреза 1-1
ЖК на ул. Михайлова. Схема разреза 1-1
© GREN.
ЖК на ул. Михайлова. Схема разреза 2-2
ЖК на ул. Михайлова. Схема разреза 2-2
© GREN.

Приватный двор, закрытый для частных машин, расположен на кровле подземной парковки и благоустроен. Продуманное зонирование позволило совместить игровые площадки с развитым ландшафтом, обилием зелени, достаточным количеством скамеек и даже с сиреневым садом, который весной способен сделать любую часть города волшебной. Неглубокая полоска воды – миниатюрная искусственная речка – формирует в основной части двора подобие короткого бульвара, помогает нетривиально разделить между собой зоны и насыщает пространство эмоциями. В углу, там где встречаются южный и западный корпус, «речка» заканчивается – здесь образуется небольшая площадь – уже без зелени, но со скульптурой. Въезды в подземный паркинг расположены не внутри двора, а снаружи и на достаточном расстоянии от окон, так что выхлопы не будут отравлять двор.
ЖК на улице Михайлова
ЖК на улице Михайлова
© GREN.
ЖК на улице Михайлова
ЖК на улице Михайлова
© GREN.
ЖК на улице Михайлова. Двор
ЖК на улице Михайлова. Двор
© GREN.

«Помимо градостроительных вопросов и поиска объемно-пространственного решения нам было необходимо стилистически вписать комплекс в существующее окружение, – говорит Екатерина Грень. – В результате возник строгий и респектабельный образ жилья, сдержанный в пластике объемов и изысканный в отделке фасадов».

Действительно, масштабной объемно-пластической игры жанр жилого комплекса не предполагает по определению, и архитекторы сосредоточились на фактуре, цвете и деталях, комбинируя два типа фасадной «материи»: белый стеклофибробетон и кремовый клинкер. Клинкер отведен для объемов меньшего роста, 12-этажных; по высоте они, таким образом, перекликаются с масштабом соседних панельных домов, а по материалу – с кирпичом сталинских пятиэтажек. Клинкером облицованы три секции по улице Михайлова и визуально продолжающие их пластины, «врезанные» в тело более высоких дворовых корпусов. «Белая» материя отдана более высоким объемам и подчинена горизонтали, ряды окон тяготеют к лентам; впрочем, это компенсируется латентной классикой укрупненных и лаконичных желобков-«каннелюр» в простенках.
ЖК на ул. Михайлова
ЖК на ул. Михайлова
© GREN.
ЖК на ул. Михайлова
ЖК на ул. Михайлова
© GREN.

Важная для комплекса тема двух материй дополнена и объединена ажурными вкраплениями орнаментальных панелей, которые присутствуют в обоих цветах, образуя углубленный «внутренний» слой фасадов наравне со стеклом окон и вставками темного керамогранита. Тему подхватывают выступающие вперед кованые металлические балконы – решетки для кондиционеров, издали похожие на французские балконы. Они выступают глубже, чем то необходимо только для кондиционеров: фасады наделены вполне заметной глубиной поверхности, тщательно прорисованной и вылепленной. На балконах могут даже разместиться небольшие цветники, – считают авторы проекта.

Все квартиры имеют лоджии, а в 3-комнатных квартирах их по две. Всего здесь предусмотрено 685 квартир класса комфорт. Продавать их планируется «с перегородками под чистовую отделку», то есть без ремонта. Среди популярных новшеств – санузлы с окнами; в некоторых квартирах кухни объединены с гостиными; в подземной части предусмотрены кладовые для жильцов. Входы в секции расположены в «нулевом» уровне, так что не понадобились ни ступеньки, ни пандусы – они не загромождают двор и их не нужно «преодолевать» при входе.
ЖК на ул. Михайлова. Фрагмент фасада
ЖК на ул. Михайлова. Фрагмент фасада
© GREN.
ЖК на ул. Михайлова
ЖК на ул. Михайлова
© GREN.

Таким образом в ЖК воплощены многие из актуальных «примет времени»: внимание к деталям и стремление осмыслить контекст; благоустроенный двор без машин; развитое общественное пространство в первых этажах, продуманные пешеходные маршруты, умелое использование достоинств окружения.

Можно отметить и некоторые вещи, которых здесь нет. Мода на яркие пиксельные фасады вспыхнула, и, к счастью, быстро прошла; с совершенно другой стороны, архитекторы нашли и способы борьбы с «градусниками» лоджий в комфорт-классе. Оказалось, достаточно углубить лоджии в пространство квартир, трактовав снаружи как окна – это позволяет свободнее работать с пластикой фасада. Образ же в данном случае балансирует на грани респектабельного ар-деко: отсюда металл, ажурные вставки, вертикальный модуль и каннелюры – и современной декорированной архитектуры. Возможно, мы сейчас присутствуем при рождении определенной ветви московского ар-деко XXI века: версии этого стиля в городе ищут уже лет 20, было множество неудачных попыток. Новая же версия достаточно современна, сдержанна и в то же время отвечает запросам рынка, желающего получить крупный, но «достойно выглядящий» дом. Надо признать, архитектура жилых городских домов похожим образом развивалась и в XIX веке: архитекторы в меру своих умений отвечали на запросы растущего рынка; тогда, к началу XX века, все приемы были отточены почти до идеала. Сейчас мы наблюдаем тот же процесс, но в ином масштабе, созвучном меркам быстрорастущего мегаполиса.

Ввести ЖК в эксплуатацию застройщик обещает во втором квартале 2019; на участке идет активное строительство.
ЖК на ул. Михайлова
ЖК на ул. Михайлова
© GREN.
ЖК на ул. Михайлова. Схема плана типового этажа со 13 по 19,  секции 3
ЖК на ул. Михайлова. Схема плана типового этажа со 13 по 19, секции 3
© GREN.
ЖК на ул. Михайлова. Схема плана типового этажа со 2 по 12,  секции 3
ЖК на ул. Михайлова. Схема плана типового этажа со 2 по 12, секции 3
© GREN.
ЖК на ул. Михайлова. Схема разверток
ЖК на ул. Михайлова. Схема разверток
© GREN.
ЖК на ул. Михайлова. Схема фасада в осях 1-26
ЖК на ул. Михайлова. Схема фасада в осях 1-26
© GREN.
ЖК на ул. Михайлова. Схема фасада в осях С1-А
ЖК на ул. Михайлова. Схема фасада в осях С1-А
© GREN.
ЖК на ул. Михайлова. Схема фасада в осях А/2-Пб
ЖК на ул. Михайлова. Схема фасада в осях А/2-Пб
© GREN.
ЖК на ул. Михайлова.  Схема фасада в осях 1-26
ЖК на ул. Михайлова. Схема фасада в осях 1-26
© GREN.
ЖК на ул. Михайлова. Схема фасада в осях С1-А
ЖК на ул. Михайлова. Схема фасада в осях С1-А
© GREN.
ЖК на ул. Михайлова. Схема фасада в осях 4-б-1
ЖК на ул. Михайлова. Схема фасада в осях 4-б-1
© GREN.
ЖК на ул. Михайлова. Схема плана 1 этажа
ЖК на ул. Михайлова. Схема плана 1 этажа
© GREN.
ЖК на ул. Михайлова. Схема плана типового этажа секции 1
ЖК на ул. Михайлова. Схема плана типового этажа секции 1
© GREN.
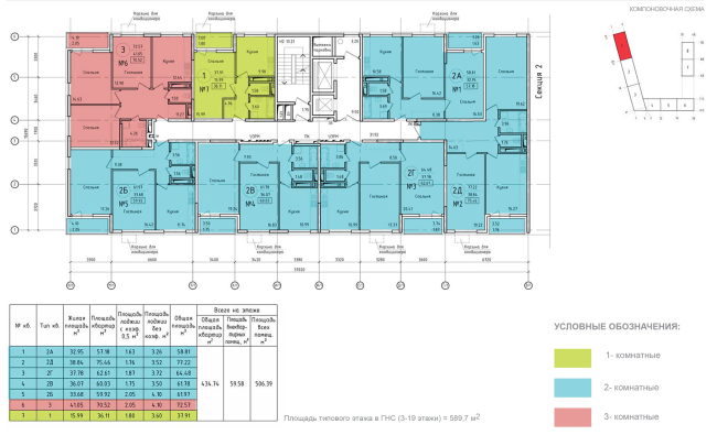
ЖК на ул. Михайлова. Схема плана типового этажа секции 2
ЖК на ул. Михайлова. Схема плана типового этажа секции 2
© GREN.
ЖК на ул. Михайлова. Схема плана типового этажа секции 4
ЖК на ул. Михайлова. Схема плана типового этажа секции 4
© GREN.
ЖК на ул. Михайлова. Схема плана типового этажа секции 5
ЖК на ул. Михайлова. Схема плана типового этажа секции 5
© GREN.
ЖК на ул. Михайлова. Схема плана типового этажа секции 6
ЖК на ул. Михайлова. Схема плана типового этажа секции 6
© GREN.
ЖК на ул. Михайлова. Схема плана типового этажа секции 7,8
ЖК на ул. Михайлова. Схема плана типового этажа секции 7,8
© GREN.