RSS
Спортивный центр и центр искусств Старшей школы Хунлин в Шэньчжэне
Фотография © Chao Zhang / предоставлена O-Office Architects

Спортивный центр и центр искусств Старшей школы Хунлин


/ Sports and Arts Centre of Hongling High School

информация:

O-office Architects / Китай
Спортивный центр и центр искусств Старшей школы Хунлин в Шэньчжэне
Фотография © Chao Zhang / предоставлена O-Office Architects

Архи.ру об этом объекте:

10.04.2026

Анна Старостина. Здание-губка

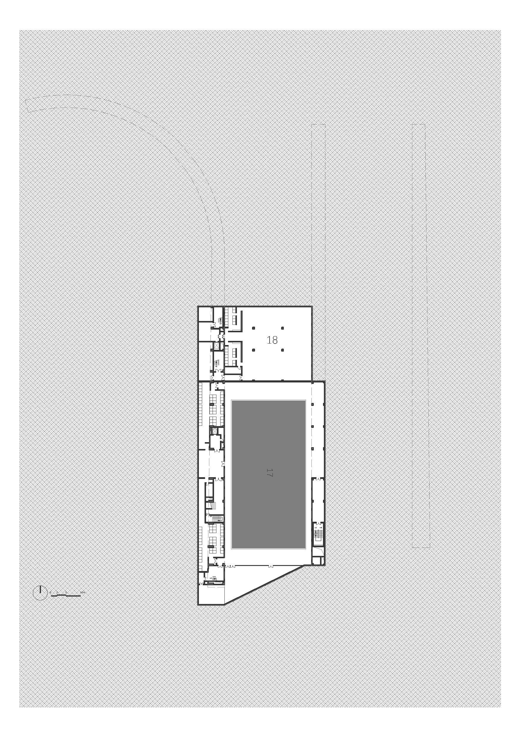
Проектируя модульные спортивный центр и центр искусств Старшей школы Хундин в Шэньчжэне, архитекторы O-Office устанавливали связь с окружающей природой и создавали внутренние связи.

читать дальше
Спортивный центр и центр искусств Старшей школы Хунлин в Шэньчжэне
Фотография © Wu Siming / предоставлена O-Office Architects
Спортивный центр и центр искусств Старшей школы Хунлин в Шэньчжэне
Фотография © Chao Zhang / предоставлена O-Office Architects
Спортивный центр и центр искусств Старшей школы Хунлин в Шэньчжэне
Фотография © Wu Siming / предоставлена O-Office Architects
Спортивный центр и центр искусств Старшей школы Хунлин в Шэньчжэне
Фотография © Wu Siming / предоставлена O-Office Architects
Спортивный центр и центр искусств Старшей школы Хунлин в Шэньчжэне
Фотография © Chao Zhang / предоставлена O-Office Architects
Спортивный центр и центр искусств Старшей школы Хунлин в Шэньчжэне
Фотография © Chao Zhang / предоставлена O-Office Architects
Спортивный центр и центр искусств Старшей школы Хунлин в Шэньчжэне
Фотография © Wu Siming / предоставлена O-Office Architects
Спортивный центр и центр искусств Старшей школы Хунлин в Шэньчжэне
Фотография © Wu Siming / предоставлена O-Office Architects
Спортивный центр и центр искусств Старшей школы Хунлин в Шэньчжэне
Фотография © Chao Zhang / предоставлена O-Office Architects
Спортивный центр и центр искусств Старшей школы Хунлин в Шэньчжэне
Фотография © Chao Zhang / предоставлена O-Office Architects
Спортивный центр и центр искусств Старшей школы Хунлин в Шэньчжэне
Фотография © Wu Siming / предоставлена O-Office Architects
Спортивный центр и центр искусств Старшей школы Хунлин в Шэньчжэне
Фотография © Wu Siming / предоставлена O-Office Architects
Спортивный центр и центр искусств Старшей школы Хунлин в Шэньчжэне
Фотография © Chao Zhang / предоставлена O-Office Architects
Спортивный центр и центр искусств Старшей школы Хунлин в Шэньчжэне
Фотография © Chao Zhang / предоставлена O-Office Architects
Спортивный центр и центр искусств Старшей школы Хунлин в Шэньчжэне
Фотография © Wu Siming / предоставлена O-Office Architects
Спортивный центр и центр искусств Старшей школы Хунлин в Шэньчжэне
Фотография © Chao Zhang / предоставлена O-Office Architects
Спортивный центр и центр искусств Старшей школы Хунлин в Шэньчжэне
Фотография © Wu Siming / предоставлена O-Office Architects
Спортивный центр и центр искусств Старшей школы Хунлин в Шэньчжэне
Фотография © Wu Siming / предоставлена O-Office Architects
Спортивный центр и центр искусств Старшей школы Хунлин в Шэньчжэне
Фотография © Wu Siming / предоставлена O-Office Architects
Спортивный центр и центр искусств Старшей школы Хунлин в Шэньчжэне
Фотография © Wu Siming / предоставлена O-Office Architects
Спортивный центр и центр искусств Старшей школы Хунлин в Шэньчжэне
Фотография © Chao Zhang / предоставлена O-Office Architects
Спортивный центр и центр искусств Старшей школы Хунлин в Шэньчжэне
Фотография © Chao Zhang / предоставлена O-Office Architects
Спортивный центр и центр искусств Старшей школы Хунлин в Шэньчжэне
Фотография © Wu Siming / предоставлена O-Office Architects
Спортивный центр и центр искусств Старшей школы Хунлин в Шэньчжэне
Фотография © Chao Zhang / предоставлена O-Office Architects
Спортивный центр и центр искусств Старшей школы Хунлин в Шэньчжэне
Фотография © Chao Zhang / предоставлена O-Office Architects
Спортивный центр и центр искусств Старшей школы Хунлин в Шэньчжэне
Фотография © Chao Zhang / предоставлена O-Office Architects
Спортивный центр и центр искусств Старшей школы Хунлин в Шэньчжэне
Фотография © Chao Zhang / предоставлена O-Office Architects
Спортивный центр и центр искусств Старшей школы Хунлин в Шэньчжэне
Фотография © Wu Siming / предоставлена O-Office Architects
Спортивный центр и центр искусств Старшей школы Хунлин в Шэньчжэне
Фотография © Chao Zhang / предоставлена O-Office Architects
Спортивный центр и центр искусств Старшей школы Хунлин в Шэньчжэне
© O-Office Architects
Спортивный центр и центр искусств Старшей школы Хунлин в Шэньчжэне
© O-Office Architects
Спортивный центр и центр искусств Старшей школы Хунлин в Шэньчжэне
© O-Office Architects
Спортивный центр и центр искусств Старшей школы Хунлин в Шэньчжэне
© O-Office Architects
Спортивный центр и центр искусств Старшей школы Хунлин в Шэньчжэне
© O-Office Architects
Спортивный центр и центр искусств Старшей школы Хунлин в Шэньчжэне
© O-Office Architects
Спортивный центр и центр искусств Старшей школы Хунлин в Шэньчжэне
© O-Office Architects
Спортивный центр и центр искусств Старшей школы Хунлин в Шэньчжэне
© O-Office Architects
Спортивный центр и центр искусств Старшей школы Хунлин в Шэньчжэне
© O-Office Architects
Спортивный центр и центр искусств Старшей школы Хунлин в Шэньчжэне
© O-Office Architects
Спортивный центр и центр искусств Старшей школы Хунлин в Шэньчжэне
© O-Office Architects
Спортивный центр и центр искусств Старшей школы Хунлин в Шэньчжэне
© O-Office Architects
Спортивный центр и центр искусств Старшей школы Хунлин в Шэньчжэне
© O-Office Architects
Спортивный центр и центр искусств Старшей школы Хунлин в Шэньчжэне
© O-Office Architects
Спортивный центр и центр искусств Старшей школы Хунлин в Шэньчжэне
© O-Office Architects
Спортивный центр и центр искусств Старшей школы Хунлин в Шэньчжэне
© O-Office Architects
Спортивный центр и центр искусств Старшей школы Хунлин в Шэньчжэне
© O-Office Architects
Спортивный центр и центр искусств Старшей школы Хунлин в Шэньчжэне
© O-Office Architects
Спортивный центр и центр искусств Старшей школы Хунлин в Шэньчжэне
© O-Office Architects
Спортивный центр и центр искусств Старшей школы Хунлин в Шэньчжэне
© O-Office Architects
Спортивный центр и центр искусств Старшей школы Хунлин в Шэньчжэне
© O-Office Architects
Спортивный центр и центр искусств Старшей школы Хунлин в Шэньчжэне
© O-Office Architects
Спортивный центр и центр искусств Старшей школы Хунлин в Шэньчжэне
© O-Office Architects
Спортивный центр и центр искусств Старшей школы Хунлин в Шэньчжэне
© O-Office Architects
Спортивный центр и центр искусств Старшей школы Хунлин в Шэньчжэне
© O-Office Architects

Избранные архитекторы:

  • Алвару Сиза
  • Джон Поусон
  • Норман Фостер
  • Ричард Майер
  • Дэвид Чипперфильд
  • Питер Айзенман
  • Бернар Чуми
  • Уильям Олсоп
  • Сантьяго Калатрава

Проект из каталога (случайный выбор)

Prada Transformer
Рем Колхас, Элен ван Лон, 2009
Prada Transformer

Избранные постройки:

  • Стадион «Уэмбли»
  • ZIL Gateway Tower
  • Стеклянный павильон Музея искусств Толидо
  • 24-часовой музей
  • Корпус Одри Джонс Бек Музея изобразительных искусств
  • Павильон Испании на ЭКСПО-2010
  • Музей Ред Локейшн
  • Центральная библиотека Де-Мойна
  • Парк Хай-Лайн

Зарубежные новости