RSS
Частный дом на Кипре
Фотография ©Илья Иванов/ предоставлена VOX Architects

Частный дом на Кипре


/ Private house in Cyprus

информация:

  • статус
    реализовано
  • даты
    2020 / — 2023
  • место
    Кипр
  • функция
    Жилой / дом
  • общая площадь
    945 м2
  • авторский коллектив
    Руководители проекта: Борис Воскобойников, Мария Ахременкова

    Проектная группа: Екатерина Чернышова, Екатерина Епифанова, Евгений Незамайкин, Ольга Тельпиз, Андрей Косков, Артем Выборнов
  • партнеры, заказчики, смежники
    Заказчик: частное лицо
Борис Воскобойников
Мария Ахременкова
VOX architects
Частный дом на Кипре
Фотография ©Илья Иванов/ предоставлена VOX Architects
Частный дом на Кипре
Фотография ©Илья Иванов/ предоставлена VOX Architects

описание:

По Средиземному морю хочется путешествовать на большом белом корабле, чтобы окна во всю стену, а палуба была широкой. Корабль должен быть собственный, чтобы устанавливать на нем свои порядки. В трюме должно быть машинное отделение, винная комната, небольшой автопарк... серебристый Porsche, любимые велосипеды. Конечно, – открытый бассейн, тепаньяки, гриль и камин на нижней палубе. Можно часами пребывать в белом кресле, пить шампанское и созерцать линию, соединяющую море и небо. Иногда нужно следовать желанию подняться наверх в спальню, принять ванну, выйти на флайбридж, и обозреть сверху морские дали и сад с пальмами и старой оливой, которой лет 150. Поскольку палубы три, нужен лифт. На сандеке разместим солнечные батареи, чтобы можно было зарядить телефон... Про сауну, хаммам, кинотеатр, спортзал, кабинет и шесть кают говорить излишне, это само – собой… 
Вечереет, на Средиземноморье рано темнеет… зажигается камин и торшеры Artemide… немного совиньон блан или шардоне в холодном бокале. Если хорошо подумать…, грот, стаксель, форштевень, лайфрафт и двигатели FPT IVECO ни к чему. Зачем куда-то двигаться, когда и здесь прекрасно? Да и детям нужно в школу… поэтому корабль крепко пришвартован на холме и мысленно дрейфует в сторону Гибралтара.

Белый дом на побережье это – особенное мироощущение. Спроектировать и построить такой дом, для архитектора – и мечта и, в XX-XXI веке – непрерывная традиция. Ее начали Richard Meier, Alvaro Siza, Alberto Campo Baeza. И успешно продолжают Fran Silvestre, Shinichi Ogawa, Teotimo Rodriguez Hermoso, John Pawson… Для создания такого проекта нужно обладать исключительно позитивным мышлением, как архитектору, так и заказчику. Волшебный ансамбль оттенков синего, голубого и освещенного солнцем белого, в сочетании с глубокими контрастными тенями, создает удивительный поток энергии, заряжающий живущих в доме и счастливых гостей. Рельеф достаточно хорошо выражен, дом встроен внутрь холма, параллельно береговой линии и обращен на Юг. Мощный вынос карниза защищает балкон и интерьеры дома от жаркого полуденного солнца и скрывает расположенные на кровле солнечные батареи, каминные трубы и завершения вент.каналов. Зимой, напротив, нежаркое солнце беспрепятственно проникает внутрь и обеспечивает хорошую инсоляцию и дополнительный обогрев. На Восток обращены две спальни с узким вертикальным окном. На Запад и Север – кабинет для вечерней работы. С Севера между домом и подпорной стеной холма – тайный сад с небольшим водопадом, скрытый от солнца и посторонних глаз. В интерьерах все просто. Сантехника Laufen, свет Flos, мебель Lago и B&B, доска на полу Dinesen. Все тщательно продумано и готово к длительному автономному плаванию.

Частный дом на Кипре
Фотография ©Илья Иванов/ предоставлена VOX Architects
Частный дом на Кипре
Фотография ©Илья Иванов/ предоставлена VOX Architects
Частный дом на Кипре
Фотография ©Илья Иванов/ предоставлена VOX Architects
Частный дом на Кипре
Фотография ©Илья Иванов/ предоставлена VOX Architects
Частный дом на Кипре
Фотография ©Илья Иванов/ предоставлена VOX Architects
Частный дом на Кипре
Фотография ©Илья Иванов/ предоставлена VOX Architects
Частный дом на Кипре
Фотография ©Илья Иванов/ предоставлена VOX Architects
Частный дом на Кипре
Фотография ©Илья Иванов/ предоставлена VOX Architects
Частный дом на Кипре
Фотография ©Илья Иванов/ предоставлена VOX Architects
Частный дом на Кипре
Фотография ©Илья Иванов/ предоставлена VOX Architects
Частный дом на Кипре
Фотография ©Илья Иванов/ предоставлена VOX Architects
Частный дом на Кипре
Фотография ©Илья Иванов/ предоставлена VOX Architects
Частный дом на Кипре
Фотография ©Илья Иванов/ предоставлена VOX Architects
Частный дом на Кипре
Фотография ©Илья Иванов/ предоставлена VOX Architects
Частный дом на Кипре
Фотография ©Илья Иванов/ предоставлена VOX Architects
Частный дом на Кипре
Фотография ©Илья Иванов/ предоставлена VOX Architects
Частный дом на Кипре
Фотография ©Илья Иванов/ предоставлена VOX Architects
Частный дом на Кипре
Фотография ©Илья Иванов/ предоставлена VOX Architects
Частный дом на Кипре
Фотография ©Илья Иванов/ предоставлена VOX Architects
Частный дом на Кипре
Фотография ©Илья Иванов/ предоставлена VOX Architects
Частный дом на Кипре
Фотография ©Илья Иванов/ предоставлена VOX Architects
Частный дом на Кипре
Фотография ©Илья Иванов/ предоставлена VOX Architects
Частный дом на Кипре
Фотография ©Илья Иванов/ предоставлена VOX Architects
Частный дом на Кипре
Фотография ©Илья Иванов/ предоставлена VOX Architects
Частный дом на Кипре
Фотография ©Илья Иванов/ предоставлена VOX Architects
Частный дом на Кипре
Фотография ©Илья Иванов/ предоставлена VOX Architects
Частный дом на Кипре
Фотография ©Илья Иванов/ предоставлена VOX Architects
Частный дом на Кипре
Фотография ©Илья Иванов/ предоставлена VOX Architects
Частный дом на Кипре
Фотография ©Илья Иванов/ предоставлена VOX Architects
Частный дом на Кипре
Фотография ©Илья Иванов/ предоставлена VOX Architects
Частный дом на Кипре
Фотография ©Илья Иванов/ предоставлена VOX Architects
Частный дом на Кипре
Фотография ©Илья Иванов/ предоставлена VOX Architects
Частный дом на Кипре
Фотография ©Илья Иванов/ предоставлена VOX Architects
Частный дом на Кипре
Фотография ©Илья Иванов/ предоставлена VOX Architects
Частный дом на Кипре
Фотография ©Илья Иванов/ предоставлена VOX Architects
Частный дом на Кипре
Фотография ©Илья Иванов/ предоставлена VOX Architects
Частный дом на Кипре
Фотография ©Илья Иванов/ предоставлена VOX Architects
Частный дом на Кипре
Фотография ©Илья Иванов/ предоставлена VOX Architects
Частный дом на Кипре
Фотография ©Илья Иванов/ предоставлена VOX Architects
Частный дом на Кипре
Фотография ©Илья Иванов/ предоставлена VOX Architects
Частный дом на Кипре
Фотография ©Илья Иванов/ предоставлена VOX Architects
Частный дом на Кипре
Фотография ©Илья Иванов/ предоставлена VOX Architects
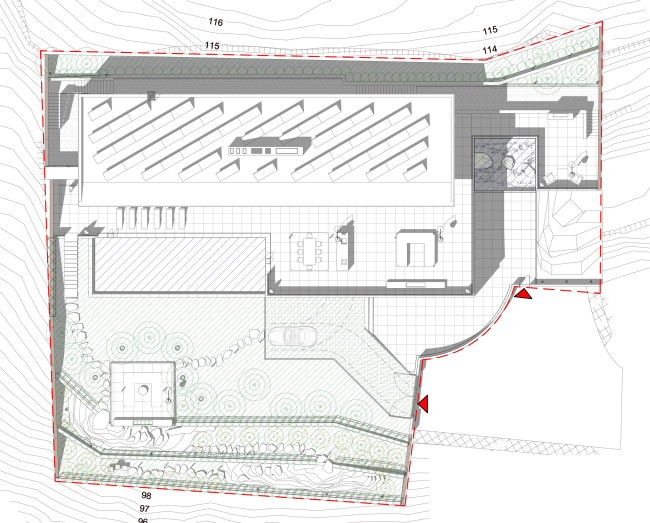
Частный дом на Кипре. Генплан
©VOX Architects
Частный дом на Кипре. Аксонометрия
©VOX Architects

Избранные архитекторы:

  • Дэвид Аджайе
  • Сантьяго Калатрава
  • Бернар Чуми
  • Норман Фостер
  • Дэвид Чипперфильд
  • Уильям Олсоп
  • Даниэль Либескинд
  • Ричард Роджерс
  • Петер Цумтор

Проект из каталога (случайный выбор)

Избранные постройки:

  • Шахматный клуб
  • Проект Presence in Hormuz 02 – апартаменты Majara
  • Корпус Рейд Школы искусств Глазго
  • Комплекс Dongdaemun Design Park and Plaza
  • Здание DZ Bank
  • Стадион Allianz Arena
  • Часовня брата Клауса
  • Экоцентр The Spheres в штаб-квартире компании Amazon
  • Музей Тенгли

Зарубежные новости