RSS
Отель Fairmont Golden Prague
Фотография © BoysPlayNice

Отель Fairmont Golden Prague


/ Fairmont Golden Prague Hotel

информация:

TaK Architects
TaK Architects / Чехия
Отель Fairmont Golden Prague
Фотография © BoysPlayNice

Архи.ру об этом объекте:

30.01.2026

Анна Старостина. Бруталистский гезамткунстверк

TaK Architects реконструировали отель InterContinental, построенный в центре Праги в 1960-е, добавив новые функции и развив идею синтеза искусств.

читать дальше
Отель Fairmont Golden Prague
Фотография © BoysPlayNice
Отель Fairmont Golden Prague
Фотография © BoysPlayNice
Отель Fairmont Golden Prague
Фотография © BoysPlayNice
Отель Fairmont Golden Prague
Фотография © BoysPlayNice
Отель Fairmont Golden Prague
Фотография © BoysPlayNice
Отель Fairmont Golden Prague
Фотография © BoysPlayNice
Отель Fairmont Golden Prague
Фотография © BoysPlayNice
Отель Fairmont Golden Prague
Фотография © BoysPlayNice
Отель Fairmont Golden Prague
Фотография © BoysPlayNice
Отель Fairmont Golden Prague
Фотография © BoysPlayNice
Отель Fairmont Golden Prague
Фотография © BoysPlayNice
Отель Fairmont Golden Prague
Фотография © BoysPlayNice
Отель Fairmont Golden Prague
Фотография © BoysPlayNice
Отель Fairmont Golden Prague
Фотография © BoysPlayNice
Отель Fairmont Golden Prague
Фотография © BoysPlayNice
Отель Fairmont Golden Prague
Фотография © BoysPlayNice
Отель Fairmont Golden Prague
Фотография © BoysPlayNice
Отель Fairmont Golden Prague
Фотография © BoysPlayNice
Отель Fairmont Golden Prague
Фотография © BoysPlayNice
Отель Fairmont Golden Prague
Фотография © BoysPlayNice
Отель Fairmont Golden Prague
Фотография © BoysPlayNice
Отель Fairmont Golden Prague
Фотография © BoysPlayNice
Отель Fairmont Golden Prague
Фотография © BoysPlayNice
Отель Fairmont Golden Prague
Фотография © BoysPlayNice
Отель Fairmont Golden Prague
Фотография © BoysPlayNice
Отель Fairmont Golden Prague
Фотография © BoysPlayNice
Отель Fairmont Golden Prague
Фотография © BoysPlayNice
Отель Fairmont Golden Prague
Фотография © BoysPlayNice
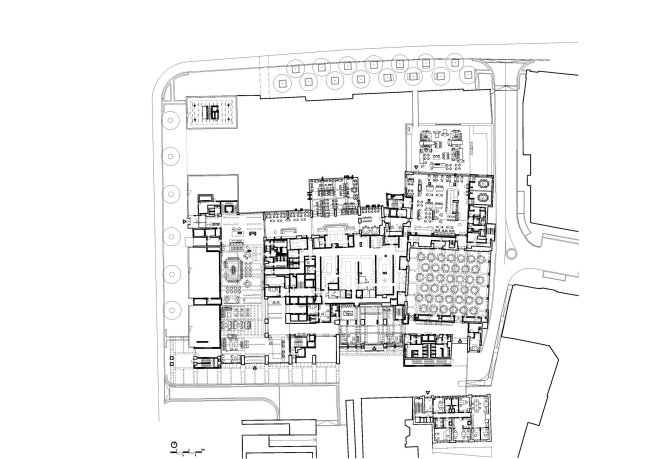
Отель Fairmont Golden Prague
© TaK Architects
Отель Fairmont Golden Prague
© TaK Architects
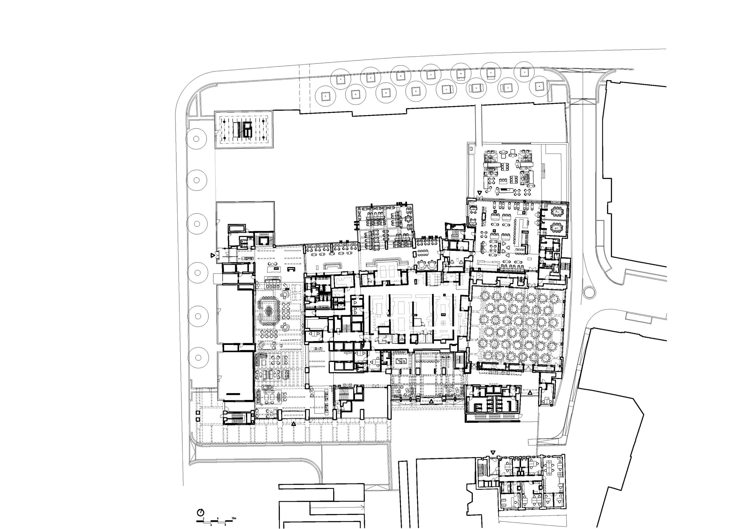
Отель Fairmont Golden Prague
© TaK Architects
Отель Fairmont Golden Prague
© TaK Architects
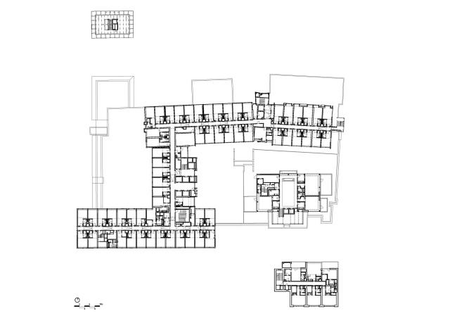
Отель Fairmont Golden Prague
© TaK Architects
Отель Fairmont Golden Prague
© TaK Architects
Отель Fairmont Golden Prague
© TaK Architects
Отель Fairmont Golden Prague
© TaK Architects
Отель Fairmont Golden Prague
© TaK Architects
Отель Fairmont Golden Prague
© TaK Architects

Избранные архитекторы:

  • Жан Нувель
  • Алехандро Аравена
  • Алвару Сиза
  • Тадао Андо
  • Кристиан де Портзампарк
  • Дэвид Аджайе
  • Ренцо Пьяно
  • Фрэнк Гери
  • Хельмут Ян

Проект из каталога (случайный выбор)

Интерьеры отеля Dolder Grand Hotel
Норман Фостер, 2000 – 2008
Интерьеры отеля Dolder Grand Hotel

Избранные постройки:

  • Центральный вокзал Берлина
  • Павильон Притцкера
  • Башня Rothschild Tower
  • Проект Thames Hub
  • Магазин свечей Retti
  • Реконструкция комплекса Национальной библиотеки Франции на улице Ришелье
  • Оперный театр залива Кардифф
  • Лунная база Европейского космического агентства
  • Королевский колледж искусств – кампус Баттерси

Зарубежные новости