RSS
Кампус университета Уэстлейк в Ханчжоу
Фотография © Tian Fangfang / предоставлена HENN

Университет Уэстлейк


/ Westlake University

информация:

HENN / Германия
Кампус университета Уэстлейк в Ханчжоу
Фотография © Tian Fangfang / предоставлена HENN

Архи.ру об этом объекте:

28.11.2025

Анна Старостина. Круги учености

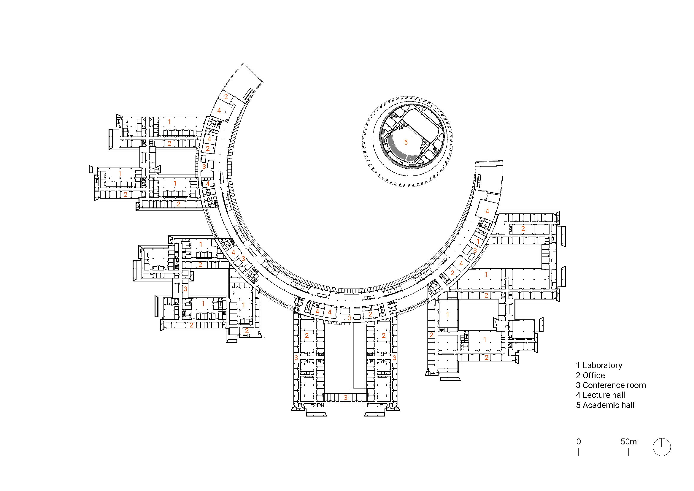
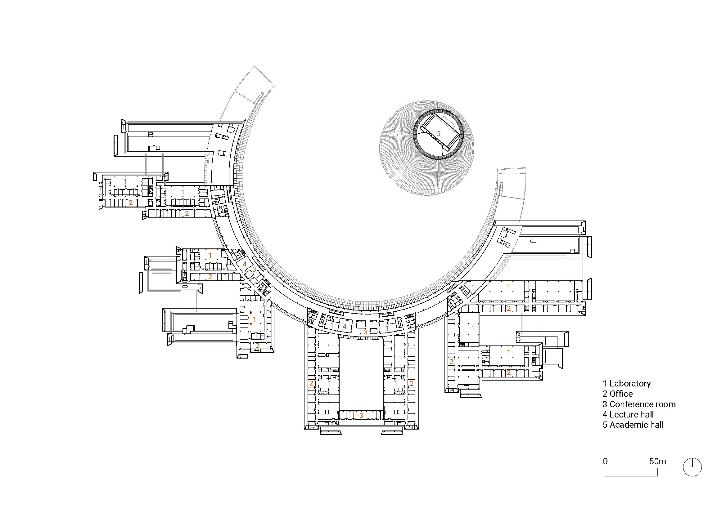
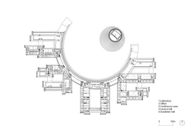
В Ханчжоу завершена последняя очередь строительства нового Университета Уэстлейк. Бюро HENN организовало его кампус вокруг круглого в плане ядра.

читать дальше
Кампус университета Уэстлейк в Ханчжоу
Фотография © Tian Fangfang / предоставлена HENN
Кампус университета Уэстлейк в Ханчжоу
Фотография © Tian Fangfang / предоставлена HENN
Кампус университета Уэстлейк в Ханчжоу – спортивный центр
Фотография © Tian Fangfang / предоставлена HENN
Кампус университета Уэстлейк в Ханчжоу – библиотека
Фотография © Tian Fangfang / предоставлена HENN
Кампус университета Уэстлейк в Ханчжоу
Фотография © Tian Fangfang / предоставлена HENN
Кампус университета Уэстлейк в Ханчжоу
Фотография © Tian Fangfang / предоставлена HENN
Кампус университета Уэстлейк в Ханчжоу
Фотография © Tian Fangfang / предоставлена HENN
Кампус университета Уэстлейк в Ханчжоу
Фотография © Tian Fangfang / предоставлена HENN
Кампус университета Уэстлейк в Ханчжоу
Фотография © Tian Fangfang / предоставлена HENN
Кампус университета Уэстлейк в Ханчжоу – столовая
Фотография © Tian Fangfang / предоставлена HENN
Кампус университета Уэстлейк в Ханчжоу
Фотография © Tian Fangfang / предоставлена HENN
Кампус университета Уэстлейк в Ханчжоу
Фотография © Tian Fangfang / предоставлена HENN
Кампус университета Уэстлейк в Ханчжоу
Фотография © Tian Fangfang / предоставлена HENN
Кампус университета Уэстлейк в Ханчжоу
Фотография © Tian Fangfang / предоставлена HENN
Кампус университета Уэстлейк в Ханчжоу
Фотография © Tian Fangfang / предоставлена HENN
Кампус университета Уэстлейк в Ханчжоу – библиотека студенческого центра
Фотография © Tian Fangfang / предоставлена HENN
Кампус университета Уэстлейк в Ханчжоу – администратичный корпус
Фотография © Tian Fangfang / предоставлена HENN
Кампус университета Уэстлейк в Ханчжоу – студенческий центр
Фотография © Tian Fangfang / предоставлена HENN
Кампус университета Уэстлейк в Ханчжоу
© HENN
Кампус университета Уэстлейк в Ханчжоу
© HENN
Кампус университета Уэстлейк в Ханчжоу
© HENN
Кампус университета Уэстлейк в Ханчжоу
© HENN
Кампус университета Уэстлейк в Ханчжоу
© HENN
Кампус университета Уэстлейк в Ханчжоу
© HENN
Кампус университета Уэстлейк в Ханчжоу
© HENN
Кампус университета Уэстлейк в Ханчжоу
© HENN
Кампус университета Уэстлейк в Ханчжоу
© HENN
Кампус университета Уэстлейк в Ханчжоу
© HENN
Кампус университета Уэстлейк в Ханчжоу
© HENN
Кампус университета Уэстлейк в Ханчжоу
© HENN
Кампус университета Уэстлейк в Ханчжоу
© HENN

Избранные архитекторы:

  • Уильям Олсоп
  • Одиль Декк
  • Николас Гримшо
  • Рем Колхас
  • Арата Исодзаки
  • Тоёо Ито
  • Эдуарду Соту де Мора
  • Даниэль Либескинд
  • Дэвид Аджайе

Проект из каталога (случайный выбор)

Избранные постройки:

  • Архитектурно-градостроительная концепция строительства МФК на территории западной части Нагатинской поймы
  • Штаб-квартира компании Bloomberg
  • Базельский музей культур
  • Фонд Ланген в комплексе Музейного острова Хомбройх
  • Многофункциональный центр The Orange Cube
  • Мемориальный музей Холокоста Яд ва-Шем
  • Комплекс
  • Центр Помпиду
  • Американский центр (Французская синематека)

Зарубежные новости