RSS
Дата-центр для ИИ Spark 761
Фото © Arch-Exist Photography

Дата-центр для ИИ Spark 761


/ Spark 761 – AI data centre

информация:

llLab / Китай
Дата-центр для ИИ Spark 761
Фото © Fernando Guerra | FG+SG

Архи.ру об этом объекте:

14.10.2025

Нина Фролова. «Вычислительная» архитектура

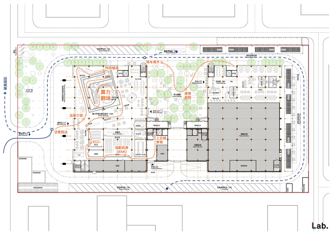
Муниципальный дата-центр для ИИ в Пекине по проекту архитекторов llLab реализован как открытая городу демонстрационное и образовательное пространство.

читать дальше
Дата-центр для ИИ Spark 761
Фото © Arch-Exist Photography
Дата-центр для ИИ Spark 761
Фото © Fernando Guerra | FG+SG
Дата-центр для ИИ Spark 761
Фото © Fernando Guerra | FG+SG
Дата-центр для ИИ Spark 761
Фото © Arch-Exist Photography
Дата-центр для ИИ Spark 761
Фото © Arch-Exist Photography
Дата-центр для ИИ Spark 761
Фото © Fernando Guerra | FG+SG
Дата-центр для ИИ Spark 761
Фото © Tian Fangfang
Дата-центр для ИИ Spark 761
Фото © Fernando Guerra | FG+SG
Дата-центр для ИИ Spark 761
Фото © Arch-Exist Photography
Дата-центр для ИИ Spark 761
Фото © Arch-Exist Photography
Дата-центр для ИИ Spark 761
Фото © Tian Fangfang
Дата-центр для ИИ Spark 761
Фото © Arch-Exist Photography
Дата-центр для ИИ Spark 761
Фото © Arch-Exist Photography
Дата-центр для ИИ Spark 761
Фото © Arch-Exist Photography
Дата-центр для ИИ Spark 761
Фото © Fernando Guerra | FG+SG
Дата-центр для ИИ Spark 761
Фото © Fernando Guerra | FG+SG
Дата-центр для ИИ Spark 761
Фото © Arch-Exist Photography
Дата-центр для ИИ Spark 761
Фото © Arch-Exist Photography
Дата-центр для ИИ Spark 761
Фото © Arch-Exist Photography
Дата-центр для ИИ Spark 761
Фото © Arch-Exist Photography
Дата-центр для ИИ Spark 761
Фото © Fernando Guerra | FG+SG
Дата-центр для ИИ Spark 761
Фото © Fernando Guerra | FG+SG
Дата-центр для ИИ Spark 761
Фото © Fernando Guerra | FG+SG
Дата-центр для ИИ Spark 761
Фото © Fernando Guerra | FG+SG
Дата-центр для ИИ Spark 761
Фото © Fernando Guerra | FG+SG
Дата-центр для ИИ Spark 761
Фото © Arch-Exist Photography
Дата-центр для ИИ Spark 761
Фото © Arch-Exist Photography
Дата-центр для ИИ Spark 761
Фото © Fernando Guerra | FG+SG
Дата-центр для ИИ Spark 761
Фото © Fernando Guerra | FG+SG
Дата-центр для ИИ Spark 761
© llLab
Дата-центр для ИИ Spark 761
Фото © Fernando Guerra | FG+SG
Дата-центр для ИИ Spark 761
Фото © Fernando Guerra | FG+SG
Дата-центр для ИИ Spark 761
Фото © Fernando Guerra | FG+SG
Дата-центр для ИИ Spark 761
Фото © Fernando Guerra | FG+SG
Дата-центр для ИИ Spark 761
Фото © Arch-Exist Photography
Дата-центр для ИИ Spark 761
© llLab
Дата-центр для ИИ Spark 761
© llLab
Дата-центр для ИИ Spark 761
© llLab
Дата-центр для ИИ Spark 761
© llLab
Дата-центр для ИИ Spark 761
© llLab
Дата-центр для ИИ Spark 761
© llLab
Дата-центр для ИИ Spark 761
© llLab
Дата-центр для ИИ Spark 761
© llLab
Дата-центр для ИИ Spark 761
© llLab
Дата-центр для ИИ Spark 761
© llLab
Дата-центр для ИИ Spark 761
© llLab
Дата-центр для ИИ Spark 761
© llLab
Дата-центр для ИИ Spark 761
© llLab
Дата-центр для ИИ Spark 761
© llLab
Дата-центр для ИИ Spark 761
© llLab
Дата-центр для ИИ Spark 761
© llLab
Дата-центр для ИИ Spark 761
© llLab
Дата-центр для ИИ Spark 761
© llLab
Дата-центр для ИИ Spark 761
© llLab

Избранные архитекторы:

  • Ричард Майер
  • Дэвид Чипперфильд
  • Бернар Чуми
  • Заха Хадид
  • Жан Нувель
  • Дэвид Аджайе
  • Хельмут Ян
  • Даниэль Либескинд
  • Кэнго Кума

Проект из каталога (случайный выбор)

Уэст Дьяоютай Тауэр
Бернар Чуми, 2006
Уэст Дьяоютай Тауэр

Избранные постройки:

  • Жилой комплекс Bosco Verticale
  • Посольство Швейцарии в России
  • Винодельня Ysios
  • Международный аэропорт Аль-Мактум – расширение
  • Проект «Олимп»
  • Мост Мийо
  • Культурный центр Фонда Ставроса Ниархоса
  • Жилой комплекс Lighthouse
  • Тюремный дворик. Сад арестантского корпуса Спасо-Евфимиева монастыря

Зарубежные новости

Симулятор «зеленой» жизни
05.03.2026

Симулятор «зеленой» жизни

Томас Хезервик
От пещеры до звезды
04.03.2026

От пещеры до звезды

Станислав Субботин
Дарья Кириллова
Горный страж
03.03.2026

Горный страж

Артем Агекян