Концепция реконструкции церкви cвятого Иоанна Лествичника
© Мастерская «Прохрам»
Концепция реконструкции церкви cвятого Иоанна Лествичника
информация:

Дмитрий Остроумов /
Dmitry Ostroumov / Россия
Мастерская «Прохрам» /
Prohram Studio / РоссияКонцепция реконструкции церкви cвятого Иоанна Лествичника
© Мастерская «Прохрам»
Концепция реконструкции церкви cвятого Иоанна Лествичника
© Мастерская «Прохрам»
описание:
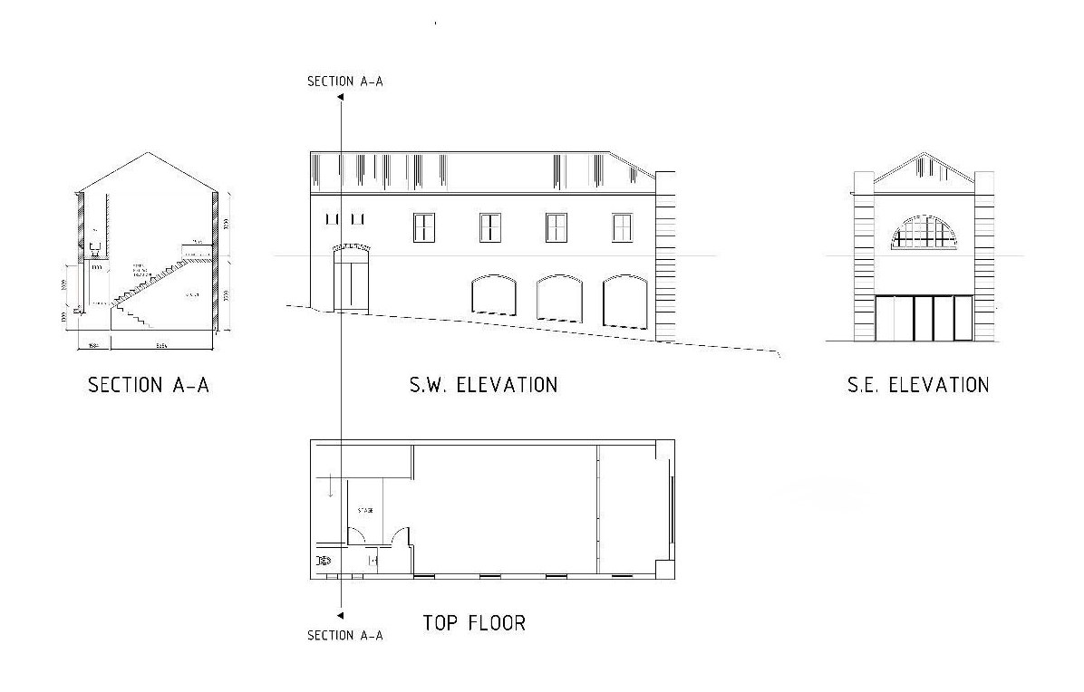
Предпроектные разработки включают концепцию реконструкции церкви святого Иоанна Лествичника (Бри-стрит, 136, Кейптаун), переданной Русской Православной Церкви.
Здание начала XIX века, расположенное в охранной зоне культурного наследия, окружено застройкой с запада и севера.
Проект предусматривает переосмысление объема, расширение храмового пространства, обновление входной группы и кровли. Архитектурные решения сочетают русский модерн с элементами местной культуры.
Церковь включает два уровня: трапезную-кофейню с кухней на первом этаже и храмовую зону на втором. План первого этажа сохраняется, добавляется крыльцо с навесом.
Проектом предусмотрены витражи на южном фасаде, цилиндрический свод с подпружными арками, несущими колокольню и купольный барабан. Свод – имитационный, из легкого материала.
Кровля реконструируется с увеличением объема, добавлением купола и колокольни с крестом, оформленным в африканской христианской стилистике. Внутри – кладовая и лестница на ярус звона.
Глухой барабан с шлемовидным куполом опирается на восьмерик над алтарем. Фасады украшаются мозаикой, каменными барельефами и иконографией. В эскизе использован барельеф А. Комелина.