RSS
Гостиница Hyatt Place в Руане
Фото © CELESTE DRONE

Гостиница Hyatt Place в Руане


/ Hyatt Place Hotel in Rouen

информация:

CBA architectes / Франция
Гостиница Hyatt Place в Руане
Фото © CELESTE DRONE

Архи.ру об этом объекте:

06.03.2025

Нина Фролова. Архитектура в рельефе

Трансформация исторического здания педагогического института в отель и офисы по проекту CBA architectes дала городу Руан новую смотровую площадку.

читать дальше
Гостиница Hyatt Place в Руане
Фото © Julien Falsimagne
Гостиница Hyatt Place в Руане
Фото © Julien Falsimagne
Гостиница Hyatt Place в Руане
Фото © Julien Falsimagne
Гостиница Hyatt Place в Руане
Фото © Julien Falsimagne
Гостиница Hyatt Place в Руане
Фото © Julien Falsimagne
Гостиница Hyatt Place в Руане
Фото © Julien Tragin
Гостиница Hyatt Place в Руане
Фото © Julien Tragin
Гостиница Hyatt Place в Руане
Фото © Julien Falsimagne
Гостиница Hyatt Place в Руане
Фото © Julien Falsimagne
Гостиница Hyatt Place в Руане
Фото © Julien Falsimagne
Гостиница Hyatt Place в Руане
Фото © Julien Falsimagne
Гостиница Hyatt Place в Руане
Фото © Julien Falsimagne
Гостиница Hyatt Place в Руане
Фото © François Guillemin
Гостиница Hyatt Place в Руане
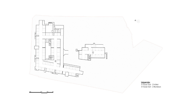
© Matmut
Гостиница Hyatt Place в Руане
© Matmut
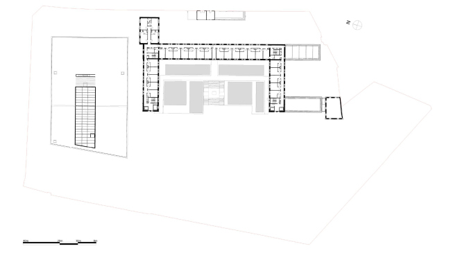
Гостиница Hyatt Place в Руане
© Matmut
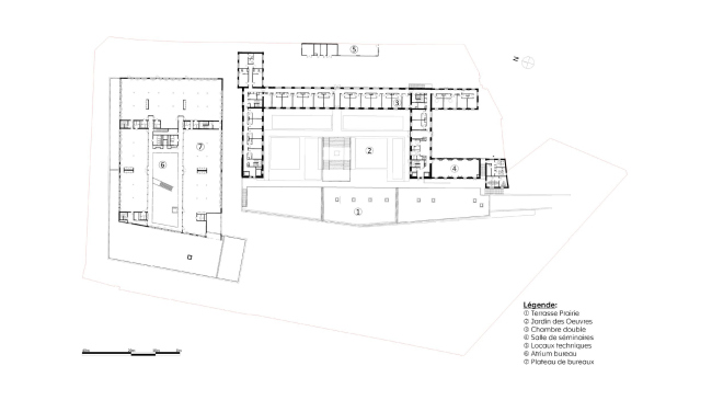
Гостиница Hyatt Place в Руане
© Matmut
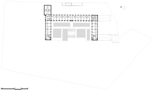
Гостиница Hyatt Place в Руане
© Matmut
Гостиница Hyatt Place в Руане
© Matmut
Гостиница Hyatt Place в Руане
© Matmut
Гостиница Hyatt Place в Руане
© Matmut
Гостиница Hyatt Place в Руане
© Matmut
Гостиница Hyatt Place в Руане
© Matmut
Гостиница Hyatt Place в Руане
© Matmut

Избранные архитекторы:

  • Питер Айзенман
  • Уильям Олсоп
  • Дэвид Аджайе
  • Ричард Роджерс
  • Алехандро Аравена
  • Хельмут Ян
  • Алвару Сиза
  • Рафаэль Монео
  • Фрэнк Гери

Проект из каталога (случайный выбор)

Музей искусств Вейсмана
Фрэнк Гери, – 1993
Музей искусств Вейсмана

Избранные постройки:

  • Фонд Ланген в комплексе Музейного острова Хомбройх
  • Лицей Жоржа Фреша – школа гостиничного менеджмента
  • Паркинг Коллинс-Парк
  • Музей искусств Хай
  • Новый конгресс-центр района EUR – «Облако»
  • Sandcrawler – штаб-квартира Lucasfilm Singapore
  • Штеделевский музей – реконструкция
  • Павильон Португалии на ЭКСПО 1998
  • Зарядье – застройка на месте гостиницы «Россия». Конкурсный проект

Зарубежные новости