RSS
Учебный центр Гронингенского университета
Фото © Sebastian van Damme

Учебный центр Гронингенского университета (Центр имени Анды Керкховен)


/ Education Centre at the University of Groningen (Anda Kerkhoven Centre)

информация:

KAAN Architecten
KAAN Architecten / Нидерланды
Учебный центр Гронингенского университета
Фото © Marcel Ijzerman

Архи.ру об этом объекте:

23.10.2024

Нина Фролова. Архитектура комфорта

Учебный центр Гронингенского университета по проекту KAAN Architecten задуман как серия пространств для занятий, отдыха и общения студентов с вниманием к их физическому здоровью и психологическому комфорту.

читать дальше
Учебный центр Гронингенского университета
Фото © Sebastian van Damme
Учебный центр Гронингенского университета
Фото © Sebastian van Damme
Учебный центр Гронингенского университета
Фото © Sebastian van Damme
Учебный центр Гронингенского университета
Фото © Marcel Ijzerman
Учебный центр Гронингенского университета
Фото © Sebastian van Damme
Учебный центр Гронингенского университета
Фото © Sebastian van Damme
Учебный центр Гронингенского университета
Фото © Sebastian van Damme
Учебный центр Гронингенского университета
Фото © Marcel Ijzerman
Учебный центр Гронингенского университета
Фото © Marcel Ijzerman
Учебный центр Гронингенского университета
Фото © Marcel Ijzerman
Учебный центр Гронингенского университета
Фото © Sebastian van Damme
Учебный центр Гронингенского университета
Фото © Sebastian van Damme
Учебный центр Гронингенского университета
Фото © Sebastian van Damme
Учебный центр Гронингенского университета
Фото © Sebastian van Damme
Учебный центр Гронингенского университета
Фото © Sebastian van Damme
Учебный центр Гронингенского университета
Фото © Sebastian van Damme
Учебный центр Гронингенского университета
Фото © Sebastian van Damme
Учебный центр Гронингенского университета
Фото © Sebastian van Damme
Учебный центр Гронингенского университета
Фото © Sebastian van Damme
Учебный центр Гронингенского университета
Фото © Sebastian van Damme
Учебный центр Гронингенского университета
Фото © Sebastian van Damme
Учебный центр Гронингенского университета
Фото © Sebastian van Damme
Учебный центр Гронингенского университета
Фото © Sebastian van Damme
Учебный центр Гронингенского университета
Фото © Sebastian van Damme
Учебный центр Гронингенского университета
Фото © Sebastian van Damme
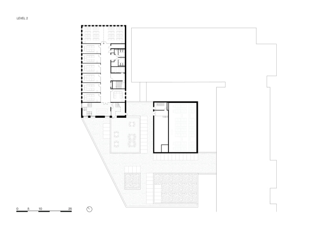
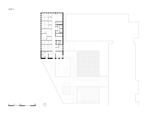
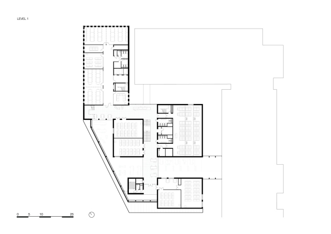
Учебный центр Гронингенского университета
© KAAN Architecten
Учебный центр Гронингенского университета
© KAAN Architecten
Учебный центр Гронингенского университета
© KAAN Architecten
Учебный центр Гронингенского университета
© KAAN Architecten
Учебный центр Гронингенского университета
© KAAN Architecten
Учебный центр Гронингенского университета
© KAAN Architecten
Учебный центр Гронингенского университета
© KAAN Architecten
Учебный центр Гронингенского университета
© KAAN Architecten
Учебный центр Гронингенского университета
© KAAN Architecten
Учебный центр Гронингенского университета
© KAAN Architecten
Учебный центр Гронингенского университета
© KAAN Architecten

Избранные архитекторы:

  • Ренцо Пьяно
  • Тадао Андо
  • Массимилиано Фуксас
  • Петер Цумтор
  • Стивен Холл
  • Кэнго Кума
  • Джон Поусон
  • Алехандро Аравена
  • Ричард Майер

Проект из каталога (случайный выбор)

Дворец мира и согласия
Норман Фостер, – 2006
Дворец мира и согласия

Избранные постройки:

  • Башня Wuhan Greenland Center
  • Музей собрания Фридера Бурды
  • Музей Петтера Дасса
  • Телевизионная и смотровая башня Canton Tower
  • Музей Абтайберг
  • Завод и штаб-квартира компании Vacheron Constantin
  • Башня 56 Leonard Street
  • Мемориал сожженным ведьмам в Финнмарке – мемориал Стейлнесет
  • Клуб

Зарубежные новости