RSS
ALFA BANK
Фотография © Ксения Варавко / предоставлена ZROBIM architects

ALFA BANK

информация:

ZROBIM architects
ZROBIM architects / Беларусь
ALFA BANK
Фотография © Ксения Варавко / предоставлена ZROBIM architects

Архи.ру об этом объекте:

15.10.2024

Сейфы и дюны

Один из минских офисов Alfa Bank располагается в здании бизнес-центра на берегу водохранилища Дрозды. Работая с интерьером, бюро ZROBIM architects откликнулось на пейзаж за окном и соединило айдентику банковского учреждения с природными мотивами.

читать дальше
ALFA BANK
Фотография © Ксения Варавко / предоставлена ZROBIM architects

описание:

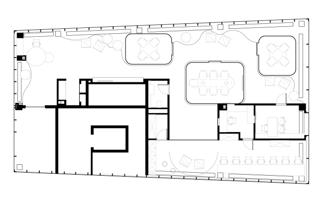
В этом проекте главным условием, доминантой и идееобразующим фактором была локация: офисное здание располагается вдоль живописного водохранилища. Поэтому и планировочная структура, и материалы отделки, и дизайнерские решения отталкивались от обилия панорамных окон и открывающегося из них вида.

Мы постарались максимально перенести пейзаж за окном во внутреннее пространство, начав сразу от панорамных окон, вдоль которых мы расположили криволинейную песчаную структуру с песчаными дюнами, создав отсылку к побережью и пляжу. Природность прослеживается и в айдентике, которая очень нюансно отражена в дизайне: каменная буква А на входе в офис, дизайнерские дверные ручки, отсылающие к сейфу, зарядные станции, интегрированные в мебель – все эти детали нативно пронизывают весь интерьер, транслируя философию банка.

Планировочное решение офиса представляет собой симбиоз коридорной структуры и open space, так как у нас, с одной стороны, четко выделены кабинеты, переговорные и зоны отдыха, а с другой стороны, они все являются частью общего пространства, которое очень мягко и интуитивно зонировано.

ALFA BANK
Фотография © Ксения Варавко / предоставлена ZROBIM architects
ALFA BANK
Фотография © Ксения Варавко / предоставлена ZROBIM architects
ALFA BANK
Фотография © Ксения Варавко / предоставлена ZROBIM architects
ALFA BANK
Фотография © Ксения Варавко / предоставлена ZROBIM architects
ALFA BANK
Фотография © Ксения Варавко / предоставлена ZROBIM architects
ALFA BANK
Фотография © Ксения Варавко / предоставлена ZROBIM architects
ALFA BANK
Фотография © Ксения Варавко / предоставлена ZROBIM architects
ALFA BANK
Фотография © Ксения Варавко / предоставлена ZROBIM architects
ALFA BANK
Фотография © Ксения Варавко / предоставлена ZROBIM architects
ALFA BANK
Фотография © Ксения Варавко / предоставлена ZROBIM architects
ALFA BANK
Фотография © Ксения Варавко / предоставлена ZROBIM architects
ALFA BANK
Фотография © Ксения Варавко / предоставлена ZROBIM architects
ALFA BANK
Фотография © Ксения Варавко / предоставлена ZROBIM architects
ALFA BANK
Фотография © Ксения Варавко / предоставлена ZROBIM architects
ALFA BANK
Фотография © Ксения Варавко / предоставлена ZROBIM architects
ALFA BANK
Фотография © Ксения Варавко / предоставлена ZROBIM architects
ALFA BANK
Фотография © Ксения Варавко / предоставлена ZROBIM architects
ALFA BANK
Фотография © Ксения Варавко / предоставлена ZROBIM architects
ALFA BANK
© ZROBIM architects

Избранные архитекторы:

  • Рафаэль Монео
  • Том Мейн
  • Сантьяго Калатрава
  • Хельмут Ян
  • Джон Поусон
  • Алехандро Аравена
  • Питер Айзенман
  • Кэнго Кума
  • Рафаэль Виньоли

Проект из каталога (случайный выбор)

Музей современного искусства
Ханс Холляйн, 1982 – 1991
Музей современного искусства

Избранные постройки:

  • Библиотека Idea Store на Уайтчэпл-роуд
  • Музей искусств Вейсмана
  • Центр McCormick Tribune Иллинойского института технологии
  • Посольство США в Великобритании
  • Музей М9
  • Центр современного искусства Гульбенкяна (CAM)
  • Carré d’Art – музей современного искусства
  • Штаб-квартира компании Tencent (Шэньчжэнь)
  • Гостиница 7132 – небоскреб

Зарубежные новости