RSS
Отель «Сижан»
Фото © Luo Canhui / Vector Architects

Отель «Сижан»


/ Xirang Hotel

информация:

Vector Architects
Vector Architects / Китай
Отель «Сижан»
Фото © Luo Canhui / Vector Architects

Архи.ру об этом объекте:

06.05.2025

Нина Фролова. Бронза, соль, стеклоблоки

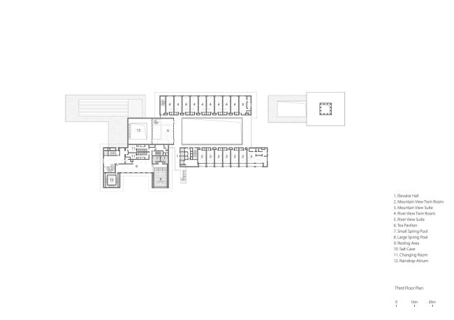
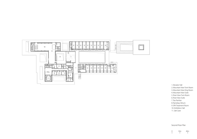
Отель «Сижан» по проекту Vector Architects на востоке Китая спланирован вокруг девяти внутренних дворов, каждый из которых получил свою трактовку.

читать дальше
Отель «Сижан»
Фото © Luo Canhui / Vector Architects
Отель «Сижан»
Фото © Luo Canhui / Vector Architects
Отель «Сижан»
Фото © Luo Canhui / Vector Architects
Отель «Сижан»
Фото © DONG / Vector Architects
Отель «Сижан»
Фото © Luo Canhui / Vector Architects
Отель «Сижан»
Фото © Luo Canhui / Vector Architects
Отель «Сижан»
Фото © Luo Canhui / Vector Architects
Отель «Сижан»
Фото © Luo Canhui / Vector Architects
Отель «Сижан»
Фото © Luo Canhui / Vector Architects
Отель «Сижан»
Фото © DONG / Vector Architects
Отель «Сижан»
Фото © Luo Canhui / Vector Architects
Отель «Сижан»
Фото © DONG / Vector Architects
Отель «Сижан»
Фото © DONG / Vector Architects
Отель «Сижан»
Фото © DONG / Vector Architects
Отель «Сижан»
Фото © Luo Canhui / Vector Architects
Отель «Сижан»
Фото © DONG / Vector Architects
Отель «Сижан»
Фото © Luo Canhui / Vector Architects
Отель «Сижан»
Фото © Luo Canhui / Vector Architects
Отель «Сижан»
Фото © DONG / Vector Architects
Отель «Сижан»
Фото © Luo Canhui / Vector Architects
Отель «Сижан»
Фото © Luo Canhui / Vector Architects
Отель «Сижан»
Фото © Luo Canhui / Vector Architects
Отель «Сижан»
Фото © Luo Canhui / Vector Architects
Отель «Сижан»
Фото © Luo Canhui / Vector Architects
Отель «Сижан»
Фото © Luo Canhui / Vector Architects
Отель «Сижан»
Фото © DONG / Vector Architects
Отель «Сижан»
Фото © Luo Canhui / Vector Architects
Отель «Сижан»
Фото © Luo Canhui / Vector Architects
Отель «Сижан»
Фото © Luo Canhui / Vector Architects
Отель «Сижан»
Фото © Luo Canhui / Vector Architects
Отель «Сижан»
Фото © Luo Canhui / Vector Architects
Отель «Сижан»
© Vector Architects
Отель «Сижан»
© Vector Architects
Отель «Сижан»
© Vector Architects
Отель «Сижан»
© Vector Architects
Отель «Сижан»
© Vector Architects
Отель «Сижан»
© Vector Architects
Отель «Сижан»
© Vector Architects
Отель «Сижан»
© Vector Architects
Отель «Сижан»
Фото © Vector Architects

Избранные архитекторы:

  • Фрэнк Гери
  • Алехандро Аравена
  • Петер Цумтор
  • Николас Гримшо
  • Тоёо Ито
  • Ренцо Пьяно
  • Стивен Холл
  • Заха Хадид
  • Сантьяго Калатрава

Проект из каталога (случайный выбор)

Избранные постройки:

  • Реконструкция Палаццо деи-Диаманти
  • Магазин Dior Omotesando
  • Учебный центр Rolex Федеральной политехнической школы Лозанны
  • Жилой комплекс Schlesisches Tor
  • Музеи искусств Гарвардского университета – реконструкция
  • Магазин Prada Epicenter Нью-Йорк
  • FABRICA – центр исследования коммуникации Benetton
  • Башня Chicago Spire
  • Жилой комплекс Metal Shutter Houses

Зарубежные новости