Published on Archi.ru (https://archi.ru)

27.06.2022

The Takeoff of a Multifunctional Approach

Alyona Kuznetsova
Architect:
Andrey Asadov
Alexander Asadov
Studio:
ASADOV architects

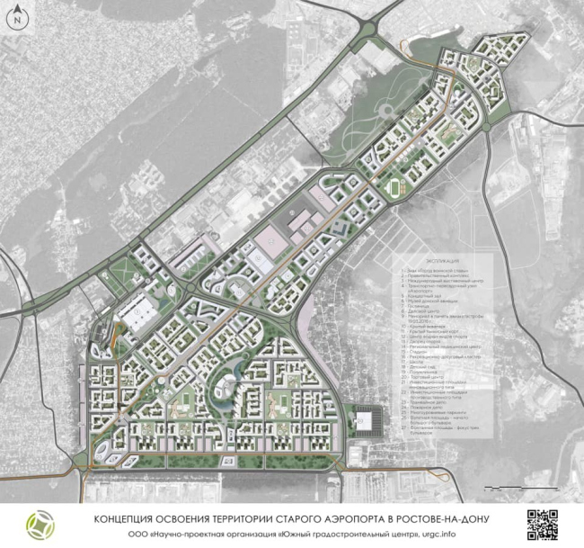
ASADOV architects presented a concept of developing the old airport in Rostov-on-Don. A four kilometer long boulevard stretching in the stead of the former runway and the block housing, multiplied by a wide range of business and public functions, possibly including the governmental one, will allow this area to claim the role of a new attraction point with a high level of self-sufficiency.

The idea of renovating the territory of Rostov-on-Don’s old airport was in the air for more than ten years – since the day that the city received the right to host the games of the World Soccer Championship 2018. Already then it was clear that once the modern Platov airport would be put into operation, the territory of the old airport, situated significantly closer to the developed part of the city – it is 6.4 kilometers away from the Government Building but a whopping 35 kilometers away from Platov – will become a good greenfield venue for new construction and all-rounded development. Its area is about 360 hectares, which is comparable to Moscow’s Skolkovo.

One of the first concepts for developing the territory was prepared by the French architect Anthony Bechu, then the work was joined by Aleksey Polyansky, while the “South Town Planning Center”, headed by Sergey Trukhachev, initiated an alternative project and presented it to the public.

The concept of development of the territory of the old airport in Rostov-on-Don
The concept of development of the territory of the old airport in Rostov-on-Don
Copyright: © “NGO Southern Urban Development Center”


In addition, recommendations for the strategy of development and construction density were given by ÄÎÌ.ðô, and the “construction set” for the mid-rise blocks, close in scale to a historical city, was taken from the arsenal of one of the Russian construction companies that successfully tested it in other regions. 

All these projects and concepts were studied and considered, and the proposals that they had in them were taken into account by ASADOV architects who started working on their own proposal for the territory of the old Rostov-on-Don airport in 2021. One must note that ASADOV architects do have a relevant expertise in this area – specifically, the architects not only designed the new Saratov airport but also worked on the concept of subsequent development of the territory of the old airport in the same city.

Aerocity. The concept of development of the territory of the old airport in Rostov-on-Don
Aerocity. The concept of development of the territory of the old airport in Rostov-on-Don
Copyright: © ASADOV architects


Aerocity. The concept of development of the territory of the old airport in Rostov-on-Don
Aerocity. The concept of development of the territory of the old airport in Rostov-on-Don
Copyright: © ASADOV architects


A Multi-City

The main feature of the new district, inherited from the preceding concepts and supported by the city administration is that it must by no means become a “sleeping belt” neighborhood. The public buildings and offices – of remarkably different character, up to the government center, where, so far hypothetically, the city administration could reside – occupy almost as much space as the housing stock. The “Aerocity” district is meant to become the new center of attraction, and the driver of developing the multi-centric character of the city.

 
Igor Dalaksakuashvili, Chief Architect of the Rostov region
The concept of the old airport is being formed not as just another Liventsovka 3.0 residential area, but as a new social and business center for the Rostov agglomeration. Yes, it will have a residential function, but this area is not only for those who will live in it. That is why the planned volume of housing stock on the territory of the old airport is at least one and a half times less than in the new residential areas.


 
Alexey Polyansky, Chairman of the Board of the Union of Architects of the Rostov Region
This area, of course, has never been considered as an exclusively residential area. Rather, it must become a new social and administrative center of the city, which could take over part of the functions of the central part of the city, thus relieving it. This area must also carry some new functions that would strengthen the position of Rostov as the capital of the Southern Federal District.


To a certain extent, the placement of public and business functions was prompted by the specifics of this area: its wider part is situated south, closer to the developed areas, while higher up towards northeast lies an elongated triangle. In the middle, the north border is adjoined by an industrial park that requires 300m of protection area – meaning, you cannot build housing stock here, but you can indeed build administrative and public buildings. Hence, the maximum of multifunctionality is concentrated in the middle part of the territory, forming a “waist” of sorts. In the north end, there is a triangle of the congress and exhibition center.

Aerocity. The concept of development of the territory of the old airport in Rostov-on-Don
Aerocity. The concept of development of the territory of the old airport in Rostov-on-Don
Copyright: © ASADOV architects


Multifunctional cultural, sports and business part. Aerocity. Multifunctional cultural and business part. The concept of building the territory of the old airport in Rostov-on-Don
Multifunctional cultural, sports and business part. Aerocity. Multifunctional cultural and business part. The concept of building the territory of the old airport in Rostov-on-Don
Copyright: © ASADOV architects


Meanwhile, this solution, definitely correct, in addition to the reasons of technical nature and the goodwill of the city administration, has two other interesting features. One – the area is not just filled with offices in addition to housing, but really, in the good way, can function as a small city within itself – which totally falls in both with the rule of modern urban planning and with the original conditions: the giant scale of the territory, its near-complete freedom of any preceding development, and the lucky position next to the “nearest satellite”, the highly developed part of Rostov.

In addition to the governmental center, the tax agency and office buildings, the multifunctional “waist” also has in it: a technology park / innovation center, a sports, a medical, a cultural center, and even an archive cluster. The center of the wide southern, mostly residential, part will be a cultural cluster with a choreographic school and an anchor in the form of a concert hall – a kind of response to the convention and exhibition center located in the north.

Aerocity. The concept of development of the territory of the old airport in Rostov-on-Don. The functional plan.
Aerocity. The concept of development of the territory of the old airport in Rostov-on-Don. The functional plan.
Copyright: © ASADOV architects


The southern part, predominantly residential, will be centered around a cultural cluster with a choreographic school and the “anchor” of the concert hall – something like a response to the northern convention and exhibition center.

The European Quarters

Meanwhile, in addition to the diversity of the program, which was, after all, was specified in the brief, the ASADOV architects tried to distribute the land sites as much as possible in such a way as to avoid mono-functionality – specifically, they tried to “inject” the residential function, mostly hotels, into the central business part.

Aerocity. The concept of development of the territory of the old airport in Rostov-on-Don. The ratio of the housing and bisiness/public functions
Aerocity. The concept of development of the territory of the old airport in Rostov-on-Don. The ratio of the housing and bisiness/public functions
Copyright: © ASADOV architects


The same task is solved the concert and exhibition halls placed more to the south, and, of course, fitness centers, schools and medical facilities, as well as the rent-out outside contours of the ground floors of the residential blocks, most of which are concentrated in the wide south area, and are meant to be built first because it is also necessary to provide economic support for the project through the sale of housing.

 
Andrey Asadov, ASADOV architects
There is a clear residential and public area on the territory, but it was important for us to mix the functions, introducing elements of the social structure into the housing, and vice versa. Separate sports and cultural facilities are evenly integrated into the residential blocks, and infrastructure was also placed in the first floors of houses, by analogy with the Moscow renovation program – this automatically enlivens the streets and makes them feel habitable. For renovation, by the way, when we made a competitive project, together with economists we calculated the optimal ratio of residential and non-residential functions in the city. The optimal proportion turned out to be 80 percent of housing and 20 percent of infrastructure. This 20 percent is enough for all able-bodied residents of the grounds to have jobs – in the service sector, in coworking spots or small office spaces. In the Rostov project, at the expense of all public facilities, this ratio is higher – 60 to 40 – which will provide additional jobs to adjacent areas and automatically relieve the city center.


Yet another feature of the designed construction, mostly residential, is the city-block typology and small numbers of floors ranging from 6 to 10, interspersed with high-rise accents. Nearby, along the Berberovskaya Street, stands Veresaevo housing complex 20 stories high – while the new Aerocity district is offering an alternative from the field of new urbanism and modern trends: relatively small closed-perimeter blocks, car-free yards, and sections of different colors and different heights for better facade diversity. Such an approach is close to the ASADOV architects – but it was also set by the standards issued by Strelka and ÄÎÌ.ðô, as well as the developer’s “construction” set that was offered to the architects for their work. “As a matter of fact, one of our tasks was adapting the ÄÎÌ.ðô construction standards to the unique conditions of this specific site – Andrey Asadov shares – And the task was far from easy due to the large number of various restrictions; a painstaking work on detailing was required. But it was fun as well.”

View from the south, on the 1st plan – the residential complex “Veresaevo”. Aerocity. The concept of building the territory of the old airport in Rostov-on-Don
View from the south, on the 1st plan – the residential complex “Veresaevo”. Aerocity. The concept of building the territory of the old airport in Rostov-on-Don
Copyright: © ASADOV architects


Aerocity. The concept of development of the territory of the old airport in Rostov-on-Don
Aerocity. The concept of development of the territory of the old airport in Rostov-on-Don
Copyright: © ASADOV architects


The new houses are intended to house almost 57 thousand people. The social infrastructure will include seven kindergartens, six schools, a few outpatient facilities and an ambulance station.

The linear park: from “agora” to the park (and temple)

All the concepts for developing the territory of Rostov-on-Don’s old airport are ultimately united by one common solution – the idea of turning the former runway into a pedestrian area, the main axis that will tie in the string of public spaces and residential blocks. There are several reasons for that, chief of them being that dismantling a runway is a very expensive thing to do – it was kept even at Moscow’s Khodynka.

Aerocity. The concept of development of the territory of the old airport in Rostov-on-Don
Aerocity. The concept of development of the territory of the old airport in Rostov-on-Don
Copyright: © ASADOV architects


In addition, any new area needs, of course, a public axis – a spatial “backbone” capable of tying in the entire territory. In the project, the main boulevard is about 4 kilometers long; it starts in the northeast part from the convention center and leads in a perfectly straight line southwest, towards the “pivot” of the road junction that connects the territory to the developed part of the city. Three kilometers out of these four are heavy concrete slabs, dismantling which would be extremely problematic, but if you keep them as is, they will turn the public axis into a “concrete desert”. To avoid this, the architects proposed to treat the runway as an operated roof, and liven it up – not the entire length but at least some fragments – in accordance with the “green roof” principle. On the concrete field, the architects placed green islands, pavilions, and landscaping elements. Above the ring of the southern junction, there is a duplicate pedestrian ring with ramps running in different directions, which is meant to improve the connection with the city.

Aerocity. The concept of development of the territory of the old airport in Rostov-on-Don
Aerocity. The concept of development of the territory of the old airport in Rostov-on-Don
Copyright: © ASADOV architects


In the wider – and predominantly residential – part, the boulevard is adjoined by a park. The architects compare it to the Central Park in New York: it is rectangular, and there will be a pond in the middle. The park was also there in the “alternative” project by Sergey Trukhachev, but it was carried more to the south. Now this park is a large-scale widening of the boulevard, the nucleus of the territory, and the vestibule of the concert hall, which is located on the southern end of the green rectangle. Its northern side stops against the Temple of Xenia of St. Petersburg; there will be yet another temple of a smaller size standing next to the automotive/pedestrian junction, and a chapel in the northern part of the grounds. Hence, the architects jokingly call the axis boulevard “a road from agora (whose role is played by the congress center) to the temple.

Aerocity. The concept of development of the territory of the old airport in Rostov-on-Don
Aerocity. The concept of development of the territory of the old airport in Rostov-on-Don
Copyright: © ASADOV architects


Aerocity. The concept of development of the territory of the old airport in Rostov-on-Don
Aerocity. The concept of development of the territory of the old airport in Rostov-on-Don
Copyright: © ASADOV architects


The “affluents” of the green boulevard penetrate into the depth of the quarters, entwining the entire district in a network of leisure and recreational spaces. The boulevard is crossed by seven traversal drives, and yet another parallel drive duplicates it along its entire length.

The concept developed by ASADOV architects was approved by the governor council; on its basis, RNIIPI Gradistroitelstva developed the project for making a master plan of territory, which will shortly be showcased at public hearings. Then individual development of every stage will ensue. It is expected that the construction will begin already in 2023, the building of housing complexes, engineering infrastructure, and social facilities will be synchronized.