Размещено на портале Архи.ру (www.archi.ru)

01.04.2024

Три измерения города

Юлия Тарабарина
Объект:
ЖК Depo в Минске
Адрес:
Беларусь, Минск. пр. Независимости — пр. Машерова — ул. Красная — ул.Киселева
Архитектор:
Сергей Скуратов
Мастерская:
Сергей Скуратов ARCHITECTS
Авторский коллектив:
Руководитель авторского коллектива: С. Скуратов.
Конкурс, ГАП: К. Маркус, архитекторы: Я. Акимов, И. Голубев, К. Голубева, И. Ляшенко, С. Морозов, И. Скибневский, А. Смирнов, С. Субботин, С. Чекмарев.
Концепция, ГАП: К. Маркус, А. Чалов, архитекторы: М. Арутюнян, Е. Гайдуков, И. Ляшенко, А. Незнамов, Ф. Торгашёв, В. Циндренко, Н. Шумейко, Р. Яценко.

Начали рассматривать проект Сергея Скуратова, ЖК Depo в Минске на площади Победы, и увлеклись. В нем, как минимум, несколько измерений: историческое – в какой-то момент девелопер отказался от дальнейшего участия SSA, но концепция утверждена и реализация продолжается, в основном, согласно предложенным идеям. Пространственно-градостроительное – архитекторы и спорят с городом, и подыгрывают ему, вычитывают нюансы, находят оси. И тактильное – у построенных домов тоже есть свои любопытные особенности. Так что и у текста две части: о том, что сделано, и о том, что придумано.

Минск – город проспектов, и проспект Независимости среди них самый парадный. Чем-то похож на Тверскую: широкий, сначала очень помпезный, потом – просто послевоенный классицизм с национальными мотивами. За рекой Свислочь на линию проспекта нанизана площадь Победы, овальная в плане, до 1961 года она называлась Круглой. Сейчас это центр города с классической архитектурой вдоль проспекта и бонусом – с парками у реки. Очень хорошее место. К северу от площади за образующими ее домами проспекта с 1926 года, то есть еще с довоенного времени, существовало трамвайное депо. 

В 2006 году депо закрыли, а с 2017 года компания А-100 начала превращать его территорию в самый премиальный квартал Минска – Depo. Как сказано на презентационном сайте, «ничего даже близкого по задумке в Беларуси еще не делали». Проведенный в 2018 году конкурс на архитектурно-градостроительную концепцию территории выиграл Сергей Скуратов. 

После победы в конкурсе Скуратов сделал, одну за другой, две архитектурные концепции всего комплекса, в 2019 и 2020 годах. Исходная версия была переработана, но основные идеи сохранились. Затем, в 2021–2023, SSA сделали рабочую документацию и реализовали три первых дома 1(6) очереди. Сейчас идет строительство двух домов 2(7) очереди.

Вот ролики трех итераций работы,
начиная с конкурсного проекта 2018 года: 



Промежуточный вариант концепции 2019 года
(для просмотра включите VPN)



Итоговая концепция 2020 года: 


Однако после 2022 года реализация продолжается, хотя и по уже утвержденной концепции Сергея Скуратова; бюро в работе над проектом, к сожалению, больше не участвует. По словам архитектора, расставание с заказчиком вызвано изменившейся политической и экономической ситуацией; авторы оставили девелоперу список важных для реализации вещей и обсудили вероятные изменения.

Иными словами, сейчас мы наблюдаем проект в начальной стадии реализации. Но слышали о нем довольно много хорошего, так что, наконец, съездили в Минск и разобрались, насколько возможно, в ситуации на сегодняшний момент.

ЖК Depo в Минске, 3 корпуса по улице Киселева, 6 очередь (1 очередь строительства) © Сергей Скуратов ARCHITECTS
ЖК Depo в Минске, 3 корпуса по улице Киселева, 6 очередь (1 очередь строительства)
© Сергей Скуратов ARCHITECTS
ЖК Depo в Минске, архитектурная концепция, 2020 © Сергей Скуратов ARCHITECTS
ЖК Depo в Минске, архитектурная концепция, 2020
© Сергей Скуратов ARCHITECTS

И сразу скажу вот что: Сергей Скуратов начиная с «Садовых кварталов», набил руку – в общем-то, стал настоящим мастером проектирования крупных комплексов, объективно говоря, новых районов со сложной объемно-пространственной организацией. Включенных в город на уровне современных градостроительных предпочтений, нередко встроенных в контур исторических кварталов, фактурных, деликатных к памяти места и однако современных.

Все такие проекты – как правило большие, сложные и долгие; неудивительно, что в процессе развития на них воздействует историческая неизбежность разной степени неотвратимости. Некоторые не пошли в работу, другие – даже «Садовые кварталы» – были более или менее трансформированы, чтобы не сказать искажены. Так что и оценивать тут надо, во-первых, характер замысла, а во-вторых, объем его сохранности. 

Так вот, в Минске объем сохранности замысла, по-прежнему, довольно высокий. Согласно недавнему, февральскому рассказу представителей А-100, планируется реализовать и городскую площадь с искусственным прудом, посреди которого частично восстановят для кафе разобранную автомойку (sic!) депо, и пешеходную улицу, и многоуровневое устройство пространства, и высотность, и скошенные коньки кровель, установить арт-объект в память о депо и  сохранить другие, небольшие, но напоминающие об истории места элементы, такие как, к примеру, рельсы.
Бетонная мостовая со старыми рельсами и новым, брендированным люком. ЖК Depo в Минске, 3 реализованных на начало 2024 года корпуса Фотография: Юлия Тарабарина, Архи.ру
Бетонная мостовая со старыми рельсами и новым, брендированным люком. ЖК Depo в Минске, 3 реализованных на начало 2024 года корпуса
Фотография: Юлия Тарабарина, Архи.ру
Фрагмент кирпичной кладки. ЖК Depo в Минске, 3 реализованных на начало 2024 года корпуса Фотография: Юлия Тарабарина, Архи.ру
Фрагмент кирпичной кладки. ЖК Depo в Минске, 3 реализованных на начало 2024 года корпуса
Фотография: Юлия Тарабарина, Архи.ру

Если будет реализован пруд, малая высотность и многоуровневая структура нового городского пространства внутри площади – это уже будет очень много. Но, поскольку изменения в проекте все же произошли, я бы рассмотрела его в две итерации: построенную часть и всю концепцию в целом. 
Первые дома
Начнем с осязаемого – с впечатлений, которые производят новые, уже реализованные дома. Их три, и они одинаковые, поставлены в ряд за «сталинским» фронтом во второй линии вдоль улицы Киселева.

Надо сказать, что «сталинская» застройка, которая образует в данном случае и контекст, и историческую рамку, во многих городах похожа: штукатурка, крупные классические детали, теплые, в основном бежевые оттенки – на фасадах домов, очерчивающих по контуру большие, подчас очень большие дворы. Внутри же как правило  – совершеннейшая деревня: неряшливые детские площадки, временные торговые точки, машины, мусорная растительность, сушатся ковры... Все это обычно и ждешь увидеть за уличным фасадом. 

А здесь все наоборот. За больше уютными, чем парадными штукатурными домами и столбиками ворот открывается стройный и пластичный ряд круглящихся углов, выстроенных в шахматном порядке окон, рельефной «штриховки» кирпича, блестящего моллированного стекла. Не говоря уже об аккуратных растениях. 
ЖК Depo в Минске, 3 корпуса по улице Киселева, 6 очередь (1 очередь строительства) © Сергей Скуратов ARCHITECTS
ЖК Depo в Минске, 3 корпуса по улице Киселева, 6 очередь (1 очередь строительства)
© Сергей Скуратов ARCHITECTS
ЖК Depo в Минске, 3 корпуса по улице Киселева, 6 очередь (1 очередь строительства) © Сергей Скуратов ARCHITECTS
ЖК Depo в Минске, 3 корпуса по улице Киселева, 6 очередь (1 очередь строительства)
© Сергей Скуратов ARCHITECTS

Не удивляешься тому, что новые дома поставлены под углом 45° к старому контуру – как будто подчеркивая, что они – принципиально другие, несмотря на явное созвучие оттенка цвета и высотности и ритмические переклички с тыльными фасадами застройки 70-летней давности. 

Но это – другой мир. Заметно новее и дороже, хотя и прячется «за спиной» старого. 
ЖК Depo в Минске, 3 корпуса по улице Киселева, 6 очередь (1 очередь строительства)
ЖК Depo в Минске, 3 корпуса по улице Киселева, 6 очередь (1 очередь строительства)
© Сергей Скуратов ARCHITECTS

Так что первое впечатление при входе во двор к первым реализованным корпусам можно описать как обнаружение некоей hidden gem. И оно парадоксальным образом родственно ощущению, которое может появиться у туриста в городе Минске, и даже совсем поблизости: так на другой стороне проспекта во дворе среди замшелых гаражей отыскиваешь чисто выбеленный костел Святой Троицы. Находишь один город среди другого, и это – принципиально важное впечатление.

Только если говорить о костеле, то там Минск XIX века прорастает, или выживает, внутри преобладающего «сталинского», а в случае с Depo – в контурах послевоенной застройки на наших глазах формируется зародыш нового современного города. 

При всей современности он подчинен высотным и прочим ограничениям,  контекстуально реагирует на историческое прошлое и на соседние здания. Так, кирпич как материал для фасадов Сергей Скуратов выбрал не только потому, что он как архитектор очень любит кирпич, хотя это тоже правда, но еще и как память о промышленном прошлом депо. Корпуса из красного кирпича поместил в центральную часть, потому что она ближе к середине территории бывшей промзоны, а светлый кирпич предложил использовать на зданиях, которые тяготеют к внешнему контуру – потому что они откликаются на соседство светло-бежевых «сталинских» домов, поддерживают их цветовую тональность. 

Таковы и первые построенные дома комплекса. При солнце оттенок их кирпича, слегка варьирующийся от серого до золотистого, «попадает» близко родственен цвету соседних старых домов. И в то же время этот кирпич – совершенно другой: и тонкий, и фактурный, и образует линейно-штриховой рельеф. Больше всего он напоминает текстуру скуратовского же дома Медный 3.14
ЖК Depo в Минске, 3 корпуса по улице Киселева, 6 очередь (1 очередь строительства)
ЖК Depo в Минске, 3 корпуса по улице Киселева, 6 очередь (1 очередь строительства)
© Сергей Скуратов ARCHITECTS

Окна не очень-то утоплены в толщу стены, зато за стеклом лоджий – тот же кирпич, что делает фасад многослойным. 
ЖК Depo в Минске, 3 корпуса по улице Киселева, 6 очередь (1 очередь строительства) © Сергей Скуратов ARCHITECTS
ЖК Depo в Минске, 3 корпуса по улице Киселева, 6 очередь (1 очередь строительства)
© Сергей Скуратов ARCHITECTS
ЖК Depo в Минске, 3 корпуса по улице Киселева, 6 очередь (1 очередь строительства) © Сергей Скуратов ARCHITECTS
ЖК Depo в Минске, 3 корпуса по улице Киселева, 6 очередь (1 очередь строительства)
© Сергей Скуратов ARCHITECTS

Тема раскрывается, когда мы видим северные фасады домов. Они целиком витражные и прикрыты сеткой чуть отстающих от стекла бетонных ламелей, белых вертикальных и черных горизонтальных. Мотивация понятна: с северной стороны надо ловить свет, так что квартиры получают стеклянные стены, а заодно виды в сторону центральной части комплекса. А с образной точки зрения получается, что стену как будто отсекли ножом, обнажив некую внутреннюю материю, проницаемую , тонкокостную, но устойчивую. 
ЖК Depo в Минске, 3 корпуса по улице Киселева, 6 очередь (1 очередь строительства) © Сергей Скуратов ARCHITECTS
ЖК Depo в Минске, 3 корпуса по улице Киселева, 6 очередь (1 очередь строительства)
© Сергей Скуратов ARCHITECTS
ЖК Depo в Минске, 3 корпуса по улице Киселева, 6 очередь (1 очередь строительства) © Сергей Скуратов ARCHITECTS
ЖК Depo в Минске, 3 корпуса по улице Киселева, 6 очередь (1 очередь строительства)
© Сергей Скуратов ARCHITECTS

Идею «среза» подхватывают рамки входных порталов: они не монолитны, а рассечены тонкими щелями над головой входящего и желобками, которые им вторят, по сторонам, практически сложены из раздельных полос или, наоборот, рассечены чем-то тонким. Тоже своего рода штриховка, подчеркивающая эффект расслоения, нивелирующая массивность, она делает мотив чуть менее застывшим и чуть более легким, как будто «необязательным». Кроме того в створы между полосками удобно было встроить и технические приспособления.  
ЖК Depo в Минске, 3 корпуса по улице Киселева, 6 очередь (1 очередь строительства) © Сергей Скуратов ARCHITECTS
ЖК Depo в Минске, 3 корпуса по улице Киселева, 6 очередь (1 очередь строительства)
© Сергей Скуратов ARCHITECTS
ЖК Depo в Минске, 3 корпуса по улице Киселева, 6 очередь (1 очередь строительства) © Сергей Скуратов ARCHITECTS
ЖК Depo в Минске, 3 корпуса по улице Киселева, 6 очередь (1 очередь строительства)
© Сергей Скуратов ARCHITECTS

Между тем если посмотреть на северные фасады в ракурсе – очевидно их происхождение от модернистских ламелей и ребер. 
ЖК Depo в Минске, 3 корпуса по улице Киселева, 6 очередь (1 очередь строительства) © Сергей Скуратов ARCHITECTS
ЖК Depo в Минске, 3 корпуса по улице Киселева, 6 очередь (1 очередь строительства)
© Сергей Скуратов ARCHITECTS
ЖК Depo в Минске, 3 корпуса по улице Киселева, 6 очередь (1 очередь строительства) © Сергей Скуратов ARCHITECTS
ЖК Depo в Минске, 3 корпуса по улице Киселева, 6 очередь (1 очередь строительства)
© Сергей Скуратов ARCHITECTS

Возвращаясь к «кирпичной коже» надо сказать, что южный фасад хотя и образует единый массив с боковыми и даже «перетекает» в них благодаря углам, – однако отличается. Он классически симметричен, масса кирпича преобладает, а шахматный ритм окон до брутального уверенен: все это перекликается со «сталинскими» соседями, но на ноте, опосредованной стримлайном, стилистикой оттепельных радиоприемников. Впрочем сейчас скругленные углы – это актуальный оттенок ретро.  

Боковые стены, плавно принимая эстафету, меняются: окна сразу за поворотом получают широкие ровные откосы-срезы, всегда с одной стороны, шахматная расстановка теряет жесткость, а к северному краю стена сгущается в преддверии сплошного стекла.

По словам архитекторов, решение боковых фасадов рассчитано на косой свет. 
 
  
ЖК Depo в Минске, 3 корпуса по улице Киселева, 6 очередь (1 очередь строительства) © Сергей Скуратов ARCHITECTS
ЖК Depo в Минске, 3 корпуса по улице Киселева, 6 очередь (1 очередь строительства)
© Сергей Скуратов ARCHITECTS
ЖК Depo в Минске, 3 корпуса по улице Киселева, 6 очередь (1 очередь строительства) © Сергей Скуратов ARCHITECTS
ЖК Depo в Минске, 3 корпуса по улице Киселева, 6 очередь (1 очередь строительства)
© Сергей Скуратов ARCHITECTS
ЖК Depo в Минске, 3 корпуса по улице Киселева, 6 очередь (1 очередь строительства) © Сергей Скуратов ARCHITECTS
ЖК Depo в Минске, 3 корпуса по улице Киселева, 6 очередь (1 очередь строительства)
© Сергей Скуратов ARCHITECTS
ЖК Depo в Минске, 3 корпуса по улице Киселева, 6 очередь (1 очередь строительства) © Сергей Скуратов ARCHITECTS
ЖК Depo в Минске, 3 корпуса по улице Киселева, 6 очередь (1 очередь строительства)
© Сергей Скуратов ARCHITECTS
ЖК Depo в Минске, 3 корпуса по улице Киселева, 6 очередь (1 очередь строительства) © Сергей Скуратов ARCHITECTS
ЖК Depo в Минске, 3 корпуса по улице Киселева, 6 очередь (1 очередь строительства)
© Сергей Скуратов ARCHITECTS
ЖК Depo в Минске, 3 корпуса по улице Киселева, 6 очередь (1 очередь строительства) © Сергей Скуратов ARCHITECTS
ЖК Depo в Минске, 3 корпуса по улице Киселева, 6 очередь (1 очередь строительства)
© Сергей Скуратов ARCHITECTS
ЖК Depo в Минске, 3 корпуса по улице Киселева, 6 очередь (1 очередь строительства) © Сергей Скуратов ARCHITECTS
ЖК Depo в Минске, 3 корпуса по улице Киселева, 6 очередь (1 очередь строительства)
© Сергей Скуратов ARCHITECTS
ЖК Depo в Минске, 3 корпуса по улице Киселева, 6 очередь (1 очередь строительства) © Сергей Скуратов ARCHITECTS
ЖК Depo в Минске, 3 корпуса по улице Киселева, 6 очередь (1 очередь строительства)
© Сергей Скуратов ARCHITECTS
ЖК Depo в Минске, 3 корпуса по улице Киселева, 6 очередь (1 очередь строительства) © Сергей Скуратов ARCHITECTS
ЖК Depo в Минске, 3 корпуса по улице Киселева, 6 очередь (1 очередь строительства)
© Сергей Скуратов ARCHITECTS
ЖК Depo в Минске, 3 корпуса по улице Киселева, 6 очередь (1 очередь строительства) © Сергей Скуратов ARCHITECTS
ЖК Depo в Минске, 3 корпуса по улице Киселева, 6 очередь (1 очередь строительства)
© Сергей Скуратов ARCHITECTS
ЖК Depo в Минске, 3 корпуса по улице Киселева, 6 очередь (1 очередь строительства) © Сергей Скуратов ARCHITECTS
ЖК Depo в Минске, 3 корпуса по улице Киселева, 6 очередь (1 очередь строительства)
© Сергей Скуратов ARCHITECTS
ЖК Depo в Минске, 3 корпуса по улице Киселева, 6 очередь (1 очередь строительства) © Сергей Скуратов ARCHITECTS
ЖК Depo в Минске, 3 корпуса по улице Киселева, 6 очередь (1 очередь строительства)
© Сергей Скуратов ARCHITECTS
ЖК Depo в Минске, 3 корпуса по улице Киселева, 6 очередь (1 очередь строительства) © Сергей Скуратов ARCHITECTS
ЖК Depo в Минске, 3 корпуса по улице Киселева, 6 очередь (1 очередь строительства)
© Сергей Скуратов ARCHITECTS
ЖК Depo в Минске, 3 корпуса по улице Киселева, 6 очередь (1 очередь строительства) © Сергей Скуратов ARCHITECTS
ЖК Depo в Минске, 3 корпуса по улице Киселева, 6 очередь (1 очередь строительства)
© Сергей Скуратов ARCHITECTS
ЖК Depo в Минске, 3 корпуса по улице Киселева, 6 очередь (1 очередь строительства) © Сергей Скуратов ARCHITECTS
ЖК Depo в Минске, 3 корпуса по улице Киселева, 6 очередь (1 очередь строительства)
© Сергей Скуратов ARCHITECTS
ЖК Depo в Минске, 3 корпуса по улице Киселева, 6 очередь (1 очередь строительства) © Сергей Скуратов ARCHITECTS
ЖК Depo в Минске, 3 корпуса по улице Киселева, 6 очередь (1 очередь строительства)
© Сергей Скуратов ARCHITECTS
ЖК Depo в Минске, 3 корпуса по улице Киселева, 6 очередь (1 очередь строительства) © Сергей Скуратов ARCHITECTS
ЖК Depo в Минске, 3 корпуса по улице Киселева, 6 очередь (1 очередь строительства)
© Сергей Скуратов ARCHITECTS
ЖК Depo в Минске, 3 корпуса по улице Киселева, 6 очередь (1 очередь строительства) © Сергей Скуратов ARCHITECTS
ЖК Depo в Минске, 3 корпуса по улице Киселева, 6 очередь (1 очередь строительства)
© Сергей Скуратов ARCHITECTS

 
Между тем Сергей Скуратов подчеркивает: реализованные дома ему симпатичны, но суть проекта – не в них. 
 
Сергей Скуратов, Сергей Скуратов ARCHITECTS
Каждый отдельный дом здесь – сравнительно «скромный», он часть целого. В проекте порядка 7 га, 21 жилой корпус, больше 30 секций. В таком большом комплексе отдельные дома не должны претендовать на яркое высказывание, – важнее общая композиция.

Суть проекта – в предложенных градостроительных решениях, организации пространства, ​принципах построения – в том, как все это должно работать вместе.

Так что важнее рассмотреть общий замысел. Он заключен в двух концепциях: конкурсной 2018 года и доработанной, 2019 года. 
Параллели и меридианы
Вместо того, чтобы выбирать между планировкой, которая вторит существующей и той, которая выстраивает себя вопреки сложившейся сетке, Сергей Скуратов объединяет два метода. Благо площадь территории – 7 га – это позволяет. 

Все очерчивающие участок улицы проходят разными не правильными углами, тяготеющими к 45°, – но SSA основную часть зданий ориентируют ровно по сторонам света, что удобно для инсоляции. Именно поэтому три дома, которые мы рассматривали выше, построенные в южной части рядом с проспектом Независимости, оказались под углом к «сталинской» застройке, вытянутой по красной линии – они подчиняются логике и морфологии новой городской ткани. 
ЖК Depo в Минске, промежуточная архитектурная концепция, 2019 © Сергей Скуратов ARCHITECTS
ЖК Depo в Минске, промежуточная архитектурная концепция, 2019
© Сергей Скуратов ARCHITECTS
ЖК Depo в Минске, промежуточная архитектурная концепция, 2019 © Сергей Скуратов ARCHITECTS
ЖК Depo в Минске, промежуточная архитектурная концепция, 2019
© Сергей Скуратов ARCHITECTS

Но новые корпуса, которые соседствуют с улицами, выстроены, в основном, по красным линиям и формируют уличный фронт, которого в значительной части контура территории исторически не существовало – говоря точнее, его роль брал на себя забор трамвайного депо. 
Ориентация застройки по сторонам света. ЖК Depo в Минске, промежуточная архитектурная концепция, 2019 © Сергей Скуратов ARCHITECTS
Ориентация застройки по сторонам света. ЖК Depo в Минске, промежуточная архитектурная концепция, 2019
© Сергей Скуратов ARCHITECTS
Ориентация застройки вдоль прилегающих улиц. ЖК Depo в Минске, промежуточная  архитектурная концепция, 2019 © Сергей Скуратов ARCHITECTS
Ориентация застройки вдоль прилегающих улиц. ЖК Depo в Минске, промежуточная архитектурная концепция, 2019
© Сергей Скуратов ARCHITECTS
ЖК Depo в Минске, архитектурная концепция, 2020
ЖК Depo в Минске, архитектурная концепция, 2020
© Сергей Скуратов ARCHITECTS

Так что формат застройки – смешанный.

Можно было расчертить все меридиональными строчками домов, вытянутых по оси север-юг, не обращая внимания на линии улиц, или играя с ними в ракурсы, как делали в 1970-е; можно было, наоборот, следовать исторической морфологии городской ткани, разметив все рамками кварталов, вторящих направлениям улиц и во внутреннем построении, так сказать, выстроить новую часть города, подчиняясь исходным данным и консервативному типу планировки, как было принято делать последние 15–20 лет. И как это, к слову, было нарисовано в Проекте детального планирования, белорусском аналоге российского ППТ. 

Скуратов действует смелее, но и более гибко. Не гонится только за инсоляцией и «строчками», а смешивает меридиональные дома с широтными. Так образуется крест, сведенный к центральной общественной площади с прудом. Почти как в «Садовых кварталах», только там к пруду сходятся именно что кварталы, а здесь кварталов нет, ни одной рамки, ни полной, ни половинки, ни угла. 
ЖК Depo в Минске, архитектурная концепция, 2020
ЖК Depo в Минске, архитектурная концепция, 2020
© Сергей Скуратов

Даже фронт улиц тут сформирован дисперсно, с разрывами. 

То есть крайностей тут нет, но планировка далеко не самая обычная. Тем не менее для принятых решений архитекторы находят «привязку» контексте: тип застройки «дисперсный с прозорами», который в Минске, в том числе и на проспекте Независимости, встречается достаточно часто. 
Морфотипы застройки, существующие в Минске. Жилой комплекс в Минске: конкурсная концепция, 2018
Морфотипы застройки, существующие в Минске. Жилой комплекс в Минске: конкурсная концепция, 2018
© Сергей Скуратов ARCHITECTS

Интерпретация «минского» морфотипа застройки – не единственное контекстуальное решение.

Не менее важно предложенное продолжение проспекта Машерова пешеходной улицей. Проспект часть внутреннего кольца Минска, его можно сравнить с московским Бульварным или Садовым. В этом месте трасса отклоняется к северу; исторически это, вероятнее всего было сделано для того, чтобы обогнуть территорию бывшего депо. Сейчас задача противоположная – создать внутри городское общественное пространство. 

Архитекторы подчеркивают: магазинов в первых этажах внешнего контура не достаточно, они не развивают пространство внутри района. И – «заводят» пешеходный поток с проспекта по прямой. Заодно обнаруживают в ближайшем окружении небольшую башенку – на здании бывшего радиозавода, тоже 1950-х годов постройки. Между домами площади Победы и этим акцентом, совсем небольшим, возникает визуальная и смысловая ось, – своего рода нить, которой авторы «семантически» связывают между собой здания 1950-х и на которую, в конечном счете, нанизывают весь новый квартал.  

Ось – пешеходная улица, – вполне логично приходит не только к башенке, но и к повороту улицы Красной. Заодно обнаруживается угол: пешеходная линия к меридиану подходит под ровно 45°, что добавляет проекту регулярности. 
Визуальная и смысловая ось. ЖК Depo в Минске, промежуточная архитектурная концепция, 2019 © Сергей Скуратов ARCHITECTS
Визуальная и смысловая ось. ЖК Depo в Минске, промежуточная архитектурная концепция, 2019
© Сергей Скуратов ARCHITECTS
Ориентация застройки вдоль планировочной оси. ЖК Depo в Минске, промежуточная архитектурная концепция, 2019 © Сергей Скуратов ARCHITECTS
Ориентация застройки вдоль планировочной оси. ЖК Depo в Минске, промежуточная архитектурная концепция, 2019
© Сергей Скуратов ARCHITECTS

Однако башенка – цель артистичная, но не очень значительная. Есть другая. К северу от улицы Красной на территории бывшего радиозавода, а сейчас ПТО «Горизонт», согласно генплану Минска планируется реконструкция, строительство и создание большого общественно-культурного центра. Так что пешеходная улица ЖК Depo будет вести в его сторону. 

Но на этом драматургия не заканчивается. 

Перепад высот на участке – 13 метров от Красной до проспекта Незалежности. И Скуратов использует его своим любимым способом: зонирует пространство по вертикали. Приватные дворы для жителей выше, общественные ниже уровнем. Сам по себе этот подход для современной архитектуры скорее привычен, сейчас часто появляются приватные дворы на кровле стилобатов. Но отличие Depo в том, что прием встроен в городской ландшафт. Приватные дворы с холмами геопластики окажутся на уровне города, а улица с кафе и магазинами вдоль нее – спускается вниз. Начинается она с треугольного офисного здания справа, его скругленный «нос» образован тем самым углом 45°, а слева кирпичным зданием бывшей полицейской части 1911 года постройки. 
ЖК Depo в Минске, архитектурная концепция, 2020 © Сергей Скуратов ARCHITECTS
ЖК Depo в Минске, архитектурная концепция, 2020
© Сергей Скуратов ARCHITECTS
ЖК Depo в Минске, архитектурная концепция, 2020 © Сергей Скуратов ARCHITECTS
ЖК Depo в Минске, архитектурная концепция, 2020
© Сергей Скуратов ARCHITECTS

Над улицей переброшены два пешеходных мостика, соединяющих приватные дворы вверху, а в стилобате правой, северной части – в отсеченном улицей остром треугольнике, – авторы предложили поместить фитнес, с двух сторон окруженный магазинами, так как этот треугольник – наиболее «тонкая» часть между двумя общественными улицами, проспектом и новой пешеходной. 
ЖК Depo в Минске, архитектурная концепция, 2020 © Сергей Скуратов ARCHITECTS
ЖК Depo в Минске, архитектурная концепция, 2020
© Сергей Скуратов ARCHITECTS
ЖК Depo в Минске, архитектурная концепция, 2020 © Сергей Скуратов ARCHITECTS
ЖК Depo в Минске, архитектурная концепция, 2020
© Сергей Скуратов ARCHITECTS
ЖК Depo в Минске, архитектурная концепция, 2020 © Сергей Скуратов ARCHITECTS
ЖК Depo в Минске, архитектурная концепция, 2020
© Сергей Скуратов ARCHITECTS
ЖК Depo в Минске, архитектурная концепция, 2020 © Сергей Скуратов ARCHITECTS
ЖК Depo в Минске, архитектурная концепция, 2020
© Сергей Скуратов ARCHITECTS
ЖК Depo в Минске, архитектурная концепция, 2020 © Сергей Скуратов ARCHITECTS
ЖК Depo в Минске, архитектурная концепция, 2020
© Сергей Скуратов ARCHITECTS
ЖК Depo в Минске, архитектурная концепция, 2020 © Сергей Скуратов ARCHITECTS
ЖК Depo в Минске, архитектурная концепция, 2020
© Сергей Скуратов ARCHITECTS
ЖК Depo в Минске, архитектурная концепция, 2020 © Сергей Скуратов ARCHITECTS
ЖК Depo в Минске, архитектурная концепция, 2020
© Сергей Скуратов ARCHITECTS
ЖК Depo в Минске, архитектурная концепция, 2020 © Сергей Скуратов ARCHITECTS
ЖК Depo в Минске, архитектурная концепция, 2020
© Сергей Скуратов ARCHITECTS
ЖК Depo в Минске, архитектурная концепция, 2020 © Сергей Скуратов ARCHITECTS
ЖК Depo в Минске, архитектурная концепция, 2020
© Сергей Скуратов ARCHITECTS
ЖК Depo в Минске, архитектурная концепция, 2020 © Сергей Скуратов ARCHITECTS
ЖК Depo в Минске, архитектурная концепция, 2020
© Сергей Скуратов ARCHITECTS

Заканчивается улица лестницей 5-метровой высоты, по которой можно подняться в город, и амфитеатром. Под землей здесь – многофункциональное пространство, прямоугольник которого уходит к северо-западу под улицу Красную.

А над лестницей Сергей Скуратов предлагал установить над лестницей арт-объект, в концепции это был заржавленный трамвай, но не «настоящий», а скульптура из кортена, который Скуратов любит не меньше, чем кирпич: трамвай должен был распадаться, деконструироваться «в полете», причем была идея предложить работу над трамваем Алексею Козырю. 
ЖК Depo в Минске, архитектурная концепция, 2020
ЖК Depo в Минске, архитектурная концепция, 2020
© Сергей Скуратов ARCHITECTS
ЖК Depo в Минске, архитектурная концепция, 2020
ЖК Depo в Минске, архитектурная концепция, 2020
© Сергей Скуратов ARCHITECTS
ЖК Depo в Минске, архитектурная концепция, 2020
ЖК Depo в Минске, архитектурная концепция, 2020
© Сергей Скуратов ARCHITECTS

Сейчас место арт-объекта девелопер планирует сохранить, над ним будут работать белорусские художники. 

Наконец, апофеозом общественного пространства должен стать пруд на расширении пешеходной улицы – общественной площади комплекса. Как уже говорилось, дома, ориентированные по странам света, сходятся к нему крестообразно, создавая обрамление в виде «любопытных лиц» – взглядов витражных торцов. 
ЖК Depo в Минске, архитектурная концепция, 2020
ЖК Depo в Минске, архитектурная концепция, 2020
© Сергей Скуратов ARCHITECTS
ЖК Depo в Минске, архитектурная концепция, 2020
ЖК Depo в Минске, архитектурная концепция, 2020
© Сергей Скуратов ARCHITECTS

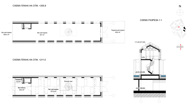
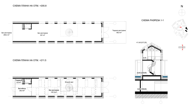
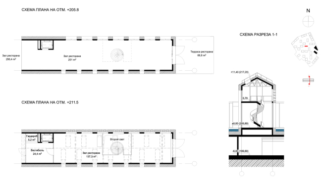
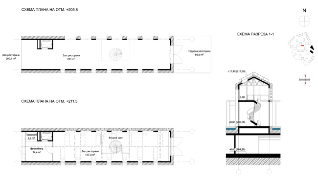
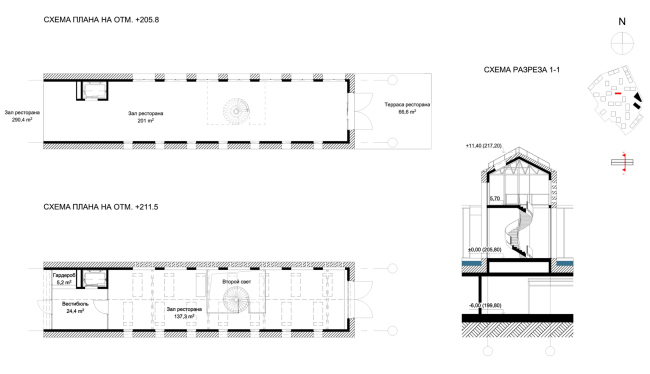
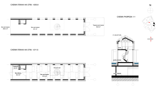
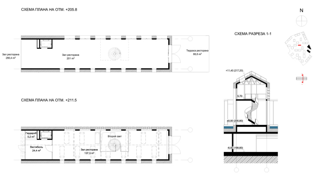
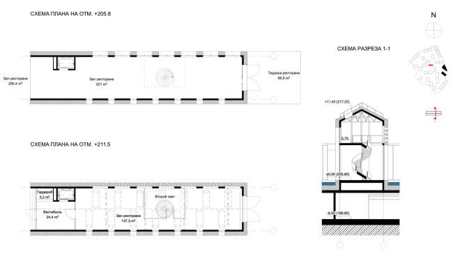
Над прудом планируется поставить здание бара / галереи / ресторана – маленький общественный центр. Его архитекторы предложили собрать из фрагментов автомойки депо, тоже для сохранения памяти места. Но интереснее даже то, что оно тонкое, длинное и совсем небольшое, двухэтажное – этакая «точка», стягивающая к себе все пространство, создающая вокруг себя паузу пруда и площади. Словом, это то самое «малое», которое оказывается значимо как «большое». А следовательно, хороший пространственный парадокс. 
ЖК Depo в Минске, архитектурная концепция, 2020 © Сергей Скуратов ARCHITECTS
ЖК Depo в Минске, архитектурная концепция, 2020
© Сергей Скуратов ARCHITECTS
ЖК Depo в Минске, архитектурная концепция, 2020 © Сергей Скуратов ARCHITECTS
ЖК Depo в Минске, архитектурная концепция, 2020
© Сергей Скуратов ARCHITECTS

Внутри ресторана-«мойки» – два этажа соединяет винтовая лестница. 
ЖК Depo в Минске, архитектурная концепция, 2020
ЖК Depo в Минске, архитектурная концепция, 2020
© Сергей Скуратов ARCHITECTS

Любопытно, что работа с контекстом не заканчивается ни на обрисованном контуре места, ни на автомойке, ни на найденной оси. Кроме того, Сергей Скуратов предложил сохранить два фрагмента существующей зелени: в начале пешеходной улицы и между «сталинскими» домами улицы Киселева. 
ЖК Depo в Минске, архитектурная концепция, 2019
ЖК Depo в Минске, архитектурная концепция, 2019
© Сергей Скуратов ARCHITECTS

Плюс новые деревья в холмах геопластики, плюс палисадники перед квартирами первых этажей, этакие зеленые мини-балконы, приподнятые над землей на 60 сантиметров, с контуром из зеленой изгороди. 

Не менее любопытно, что в конкурсной концепции вертикальное зонирование пространства было другим. 

Там общественный променад был расположен не ниже, а выше приватных дворов,  то есть был приподнятой прогулочной эспланадой, соединял для города проспект Машерова и улицу Киселева без лестниц, на одном уровне. 
Жилой комплекс в Минске: конкурсная концепция, 2018
Жилой комплекс в Минске: конкурсная концепция, 2018
© Сергей Скуратов ARCHITECTS
Жилой комплекс в Минске: конкурсная концепция, 2018 © Сергей Скуратов ARCHITECTS
Жилой комплекс в Минске: конкурсная концепция, 2018
© Сергей Скуратов ARCHITECTS
Жилой комплекс в Минске: конкурсная концепция, 2018 © Сергей Скуратов ARCHITECTS
Жилой комплекс в Минске: конкурсная концепция, 2018
© Сергей Скуратов ARCHITECTS

В нем и белорусских орнаментов было больше: в мощении и на фасаде. В итоговом проекте остались только в мощении – и «растворяются», градиентом теряя жесткость, как это любит Сергей Скуратов. 

Словом, минский проект из тех, в которые надо вдумываться и вглядываться, чтобы понять. Четыре года работы, четыре варианта с изменениями, уточнениями. В альбомах по 150–250 страниц, и постоянно открываются какие-то новые повороты замысла. Который соответствует авторскому почерку на разных уровнях: от планировки «в трех измерениях», с особенным вниманием к вертикальному зонированию, что всегда очень влияет на восприятие городского пространства, и заканчивая мелочами, такими как сохранение деревьев или фрагментов здания автомойки (!), асимметричными откосами окон и объемной решеткой фасадов, диагональными коньками кровель или фактурной кладкой кирпича.

Вот только кирпич, как мне сказали в Минске, теперь уже планируется заменить на керамогранит. Однако основные пространственно-планировочные идеи проекта сохраняются. Что же, будем наблюдать. 
 
 
Эскизы. Жилой комплекс в Минске: конкурсная концепция, 2018 © Сергей Скуратов
Эскизы. Жилой комплекс в Минске: конкурсная концепция, 2018
© Сергей Скуратов
ЖК Depo в Минске, архитектурная концепция, 2020 © Сергей Скуратов ARCHITECTS
ЖК Depo в Минске, архитектурная концепция, 2020
© Сергей Скуратов ARCHITECTS
ЖК Depo в Минске, архитектурная концепция, 2020 © Сергей Скуратов ARCHITECTS
ЖК Depo в Минске, архитектурная концепция, 2020
© Сергей Скуратов ARCHITECTS
ЖК Depo в Минске, архитектурная концепция, 2020 © Сергей Скуратов
ЖК Depo в Минске, архитектурная концепция, 2020
© Сергей Скуратов
ЖК Depo в Минске, архитектурная концепция, 2020 © Сергей Скуратов ARCHITECTS
ЖК Depo в Минске, архитектурная концепция, 2020
© Сергей Скуратов ARCHITECTS
ЖК Depo в Минске, архитектурная концепция, 2020 © Сергей Скуратов ARCHITECTS
ЖК Depo в Минске, архитектурная концепция, 2020
© Сергей Скуратов ARCHITECTS
ЖК Depo в Минске, архитектурная концепция, 2020 © Сергей Скуратов ARCHITECTS
ЖК Depo в Минске, архитектурная концепция, 2020
© Сергей Скуратов ARCHITECTS
ЖК Depo в Минске, архитектурная концепция, 2020 © Сергей Скуратов ARCHITECTS
ЖК Depo в Минске, архитектурная концепция, 2020
© Сергей Скуратов ARCHITECTS
ЖК Depo в Минске, архитектурная концепция, 2020 © Сергей Скуратов ARCHITECTS
ЖК Depo в Минске, архитектурная концепция, 2020
© Сергей Скуратов ARCHITECTS
ЖК Depo в Минске, архитектурная концепция, 2020 © Сергей Скуратов ARCHITECTS
ЖК Depo в Минске, архитектурная концепция, 2020
© Сергей Скуратов ARCHITECTS
ЖК Depo в Минске, архитектурная концепция, 2020 © Сергей Скуратов ARCHITECTS
ЖК Depo в Минске, архитектурная концепция, 2020
© Сергей Скуратов ARCHITECTS
ЖК Depo в Минске, архитектурная концепция, 2020 © Сергей Скуратов ARCHITECTS
ЖК Depo в Минске, архитектурная концепция, 2020
© Сергей Скуратов ARCHITECTS
ЖК Depo в Минске, архитектурная концепция, 2020 © Сергей Скуратов ARCHITECTS
ЖК Depo в Минске, архитектурная концепция, 2020
© Сергей Скуратов ARCHITECTS
ЖК Depo в Минске, архитектурная концепция, 2020 © Сергей Скуратов ARCHITECTS
ЖК Depo в Минске, архитектурная концепция, 2020
© Сергей Скуратов ARCHITECTS
ЖК Depo в Минске, архитектурная концепция, 2020 © Сергей Скуратов ARCHITECTS
ЖК Depo в Минске, архитектурная концепция, 2020
© Сергей Скуратов ARCHITECTS
ЖК Depo в Минске, архитектурная концепция, 2020 © Сергей Скуратов ARCHITECTS
ЖК Depo в Минске, архитектурная концепция, 2020
© Сергей Скуратов ARCHITECTS
ЖК Depo в Минске, архитектурная концепция, 2020 © Сергей Скуратов ARCHITECTS
ЖК Depo в Минске, архитектурная концепция, 2020
© Сергей Скуратов ARCHITECTS
ЖК Depo в Минске, архитектурная концепция, 2020 © Сергей Скуратов ARCHITECTS
ЖК Depo в Минске, архитектурная концепция, 2020
© Сергей Скуратов ARCHITECTS
ЖК Depo в Минске, архитектурная концепция, 2020 © Сергей Скуратов ARCHITECTS
ЖК Depo в Минске, архитектурная концепция, 2020
© Сергей Скуратов ARCHITECTS
ЖК Depo в Минске, архитектурная концепция, 2020
ЖК Depo в Минске, архитектурная концепция, 2020
© Сергей Скуратов ARCHITECTS
Жилой комплекс в Минске: конкурсная концепция, 2018
Жилой комплекс в Минске: конкурсная концепция, 2018
© Сергей Скуратов ARCHITECTS