Размещено на портале Архи.ру (www.archi.ru)

10.03.2023

Теллурические ясли

Анна Старостина
Объект:
Детские ясли при Дворце Альма
Адрес:
Франция, None, Париж.
Мастерская:
Régis Roudil architectes

Бюро Régis Roudil architectes встроило в исторический комплекс Дворца Альма в Париже вытянутый объем детских ясель. В качестве основных строительных материалов архитекторы несколько неожиданно выбрали дерево и… землю.

Дворец Альма занимает едва ли не самый престижный участок в 7-м округе Парижа, прямо на набережной Сены. С востока к его территории примыкает православный духовно-просветительский центр с Троицким собором Жана-Мишеля Вильмотта (2016), а с запада – Музей на набережной Бранли Жана Нувеля (2006) и следом за ним Эйфелева башня. Внушительный дворцовый комплекс был выстроен в 1864 году по проекту архитектора Жака-Мартена Тета в качестве конюшен для Наполеона III. В последнее время неоампирный дворец находится в распоряжении администрация президента Французской республики, которая и выступила заказчиком нового здания детского сада на его территории.

Детские ясли при Дворце Альма в Париже
Детские ясли при Дворце Альма в Париже
Фотография © 11h45 – Florent Michel /предоставлена Régis Roudil architectes
Детские ясли при Дворце Альма в Париже
Детские ясли при Дворце Альма в Париже
Фотография © 11h45 – Florent Michel /предоставлена Régis Roudil architectes
Детские ясли при Дворце Альма в Париже
Детские ясли при Дворце Альма в Париже
Фотография © 11h45 – Florent Michel /предоставлена Régis Roudil architectes

Чтобы не нарушить строгую осевую композицию с тремя внутренними дворами, бюро Régis Roudil architectes разместило свой приземистый объем в юго-западной части комплекса. От глаз прохожих он надежно спрятан за массивной каменной оградой и никак не взаимодействует с городом. Несмотря на активную общественно-политическую жизнь вокруг, внутри царит покой, тишина и умиротворение. Вытянутая, протяженная постройка специально отодвинута от внешней ограды, чтобы обеспечить патрулирование периметра, и развернута основным фасадом в небольшой сад, связанный в свою очередь с соседним парком Музея на набережной Бранли, спроектированным знаменитым Жилем Клеманом.
Детские ясли при Дворце Альма в Париже
Детские ясли при Дворце Альма в Париже
Фотография © 11h45 – Florent Michel /предоставлена Régis Roudil architectes
Детские ясли при Дворце Альма в Париже Фотография © 11h45 – Florent Michel /предоставлена Régis Roudil architectes
Детские ясли при Дворце Альма в Париже
Фотография © 11h45 – Florent Michel /предоставлена Régis Roudil architectes
Детские ясли при Дворце Альма в Париже Фотография © 11h45 – Florent Michel /предоставлена Régis Roudil architectes
Детские ясли при Дворце Альма в Париже
Фотография © 11h45 – Florent Michel /предоставлена Régis Roudil architectes
Детские ясли при Дворце Альма в Париже Фотография © 11h45 – Florent Michel /предоставлена Régis Roudil architectes
Детские ясли при Дворце Альма в Париже
Фотография © 11h45 – Florent Michel /предоставлена Régis Roudil architectes
Детские ясли при Дворце Альма в Париже Фотография © 11h45 – Florent Michel /предоставлена Régis Roudil architectes
Детские ясли при Дворце Альма в Париже
Фотография © 11h45 – Florent Michel /предоставлена Régis Roudil architectes
Детские ясли при Дворце Альма в Париже Фотография © 11h45 – Florent Michel /предоставлена Régis Roudil architectes
Детские ясли при Дворце Альма в Париже
Фотография © 11h45 – Florent Michel /предоставлена Régis Roudil architectes

В общей сложности ясли могут принять 24 младенца. Торжественным каменным фасадам дворца с довольно сдержанной пластикой архитекторы противопоставили простые и непафоcные материалы, а именно дерево и прессованную необработанную землю, подчеркнув таким образом связь с зеленым окружением, связь с почвой. Сами архитекторы говорят о теллурическом значении своего объекта и считают, что если достоинства и экологическая безопасность дерева всем хорошо известны, то возможности землебитного строительства пока еще не оценены по достоинству. Тем не менее именно этот простой, качественный и доступный материал позволяет, по их мнению, действительно беречь ресурсы и устанавливает в полной мере «устойчивые» отношения с окружающим миром.
Детские ясли при Дворце Альма в Париже
Детские ясли при Дворце Альма в Париже
Фотография © 11h45 – Florent Michel /предоставлена Régis Roudil architectes
Детские ясли при Дворце Альма в Париже Фотография © 11h45 – Florent Michel /предоставлена Régis Roudil architectes
Детские ясли при Дворце Альма в Париже
Фотография © 11h45 – Florent Michel /предоставлена Régis Roudil architectes
Детские ясли при Дворце Альма в Париже Фотография © 11h45 – Florent Michel /предоставлена Régis Roudil architectes
Детские ясли при Дворце Альма в Париже
Фотография © 11h45 – Florent Michel /предоставлена Régis Roudil architectes
Детские ясли при Дворце Альма в Париже Фотография © 11h45 – Florent Michel /предоставлена Régis Roudil architectes
Детские ясли при Дворце Альма в Париже
Фотография © 11h45 – Florent Michel /предоставлена Régis Roudil architectes
Детские ясли при Дворце Альма в Париже Фотография © 11h45 – Florent Michel /предоставлена Régis Roudil architectes
Детские ясли при Дворце Альма в Париже
Фотография © 11h45 – Florent Michel /предоставлена Régis Roudil architectes
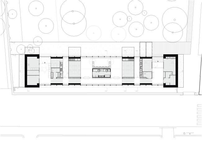
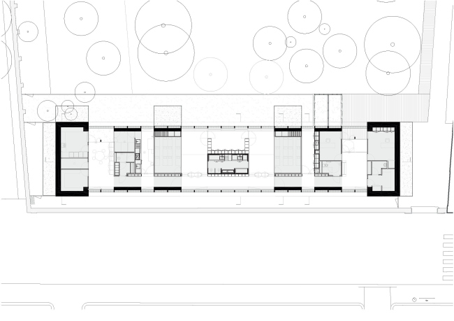
Детские ясли при Дворце Альма в Париже
Детские ясли при Дворце Альма в Париже
© Régis Roudil architectes
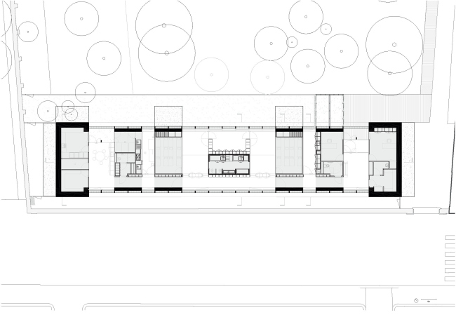
Детские ясли при Дворце Альма в Париже
Детские ясли при Дворце Альма в Париже
© Régis Roudil architectes
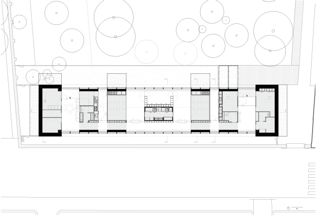
Детские ясли при Дворце Альма в Париже
Детские ясли при Дворце Альма в Париже
© Régis Roudil architectes
Детские ясли при Дворце Альма в Париже
Детские ясли при Дворце Альма в Париже
© Régis Roudil architectes
Детские ясли при Дворце Альма в Париже
Детские ясли при Дворце Альма в Париже
© Régis Roudil architectes
Детские ясли при Дворце Альма в Париже © Régis Roudil architectes
Детские ясли при Дворце Альма в Париже
© Régis Roudil architectes
Детские ясли при Дворце Альма в Париже © Régis Roudil architectes
Детские ясли при Дворце Альма в Париже
© Régis Roudil architectes
Детские ясли при Дворце Альма в Париже © Régis Roudil architectes
Детские ясли при Дворце Альма в Париже
© Régis Roudil architectes