Размещено на портале Архи.ру (www.archi.ru)

10.03.2023

Стримлайн для «городских каньонов»

Алёна Кузнецова
Объект:
ЖК «Митрофаньевская»
Адрес:
Россия, Санкт-Петербург. Парфеновская улица, участок ж.д. «Варшавский вокзал - М. Митрофаньевская ул., участок 4,
ЖК «Парфеновская, 1»
Адрес:
Россия, Санкт-Петербург. Парфеновская улица, участок 1
Архитектор:
Степан Липгарт
Мастерская:
Липгарт Архитектс
Авторский коллектив:
Руководитель авторского коллектива: С.В. Липгарт
Архитекторы: Е.В. Зотова, И.В. Федоров 

Степан Липгарт спроектировал два дома для небольших участков в интенсивно застраиваемых новым жильем окрестностях Варшавского вокзала. Расположенные не рядом, но поблизости, различны, но подобны: тема одна, а трактовка разная. Рассматриваем и сравниваем оба проекта.

За последние десять лет территория за Обводным каналом между Московским проспектом и Митрофаньевским шоссе преображалась с такой завидной интенсивностью, словно бы она приняла решение «начать жизнь с чистого листа»: тут энергично перевернули «страницу промышленного прошлого», началась глава крупных жилых кварталов.

Девелоперы обратили внимание на эту часть «серого пояса» в начале 2010-х: тогда начали расчищать территорию бывшего завода «Петмол», а также «веер» Варшавского вокзала – комплекс подъездных путей и хозяйственных построек. Сам вокзал был закрыт еще в начале XXI века, долгое время служил торговым центром, а недавний ребрендинг превратил его в крупнейший фудмолл с железнодорожным антуражем. Вот здесь можно посмотреть, что составляло очарование места, за которое какое-то время боролись градозащитники: лаконичные базиликальные корпуса из крупного тяжелого кирпича с клеймами, поросшие травой и мхом поворотные механизмы, деревянные двери. Кое-что отстоять удалось, теперь вызывающе ветхие депо и водонапорные башни ожидают своего плана приспособления в плотном окружении новых домов, промзон под застройку и подходящих к завершению строек.

Впрочем, интенсивная стройка закончится, а место удобное – рядом и центр города, и вода Обводного канала, и метро, и городские магистрали. Так что даже узкие небольшие участки, лакуны, оставшиеся невостребованными после квартально-гнездовой застройки бывших промышленных «полей», – пользуются интересом. Что вполне по-питерски: немотивированных пустот не оставлять. 

С двумя такими участками, относительно небольшими, протяженными и расположенными не то чтобы рядом, но поблизости друг от друга, и поработал Степан Липгарт, предложив дома разные, но перекликающиеся между собой. 

Межгалактические пространства
Первый дом располагается рядом с почтовым пакгаузом, который представляет собой протяженное здание-дебаркадер. Форма участка, учитывая все исторические обстоятельства, причудлива и напоминает пилу: относительно широкая «ручка» располагается со стороны Альбуминной улицы, а «лезвие» уходит за пакгауз. Название улицы, к слову, – напоминание об альбуминном заводе при скотопригонном дворе и бойне, который работал здесь в конце XIX века.  

  
ЖК «Парфеновская, 1». Генплан
ЖК «Парфеновская, 1». Генплан
© Липгарт Архитектс

Вдоль пакгауза авторы располагают открытые парковочные места, а двухсекционный дом встраивают в общую композицию жилого комплекса «Галактика», превращая его в звено общей цепочки. С востока от него, со стороны Измайловского бульвара, располагается пластина «Галактики», за которой скрываются две жемчужины района: круглое вагоноремонтное депо и бизнес-центр, построенный по проекту Артема Никифорова. Западный фасад выходит на будущий линейный парк и еще один корпус «Галактики», который он до некоторой степени отзеркаливает.   
ЖК «Парфеновская, 1». Вид с северо-запада
ЖК «Парфеновская, 1». Вид с северо-запада
© Липгарт Архитектс

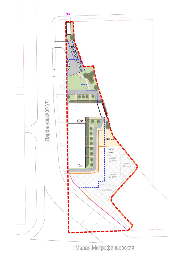
Второй участок располагается южнее, на углу Парфеновской и Малой Митрофаньевской улиц. Его форма несколько проще, но все же ощутимо многоугольна, кроме того значительную часть пространства «съедают» площадки встроенного детского сада, а часть территории зарезервирована под будущую улицу и строить на ней нельзя, так что участок еще несколько меньше, чем кажется. Через дорогу – все та же «Галактика» со школой и вагоноремонтным депо, который должен стать торговым центром, с севера – жилой комплекс «Арт-Квартал». Из-за соседства с трамвайным парком из окон даже нижних этажей будут хорошие виды: на краснокирпичные фабрики, конторский корпус хлебозавода Юргенсона, а главное – на территорию Новодевичьего монастыря, расположенного за Московским проспектом.

 

При нынешнем окружении расположение дома – «островное», что однако не мешает ему следовать логике формирования фронта Парфеновской улицы. Этот дом тоже двухсекционный, но вторая секция поставлена ортогонально, образуя Г-образный» план. Первые два этажа занимает встроенный детский сад. 
ЖК «Митрофаньевская». Генплан
ЖК «Митрофаньевская». Генплан
© Липгарт Архитектс
ЖК «Митрофаньевская». Вид с юго-запада
ЖК «Митрофаньевская». Вид с юго-запада
© Липгарт Архитектс
Выступ и выемка
Главный прием, который Степан Липгарт использует для обоих домов – чередование ребер и уступов, был предложен в 1922 году Элиэля Саариненом, а затем подхвачен и развит авторами ар-деко. 

В данном случае за основу взят 40-метровый объем – «глыба», из ее массы архитектор «вынимает лишнее», облегчая объем от нижних этажей к верхним. Основа, «тело» дома при этом сохраняется, снимаются лишь внешние «слои», в результате чего пластически он напоминает каньон, породу которого годами точили вода и ветер. «Телескопичность» усилена за счет контрастных по цвету и фактуре материалов. Геометричным формам сопутствует детализация: фактурная плитка или кирпич, скругленные углы, решетки французских балконов, поднятые на всю высоту дома пилоны, каннелированные пояски.  

Выступы и выемки появляются не случайно, а только в тех местах, где предполагается хороший вид – на центр города, воду, Варшавский вокзал или Новодевичий монастырь. Все это придает дому качество круговой скульптуры – каскады выступов делают фасады со всех сторон разными, ракурсы меняют восприятие дома, появляется непривычно сложный для типологии силуэт. Порталы входных групп тоже решены щедро, в духе ар-деко Степана Липгарта это – двухсветные, стройные углубленные лоджии, со стеклом на всю высоту и откосами: то срезанными, граненными – то скругленными по циркулю таким образом, что выступу с одной стороны вторит выемка с другой, как будто перед нами расступилась стена – «Сим-Сим»; удивительно, что и каскады вырезов на каком-то не очень уловимом уровне подхватывают тему, то ли они часть скалы, то ли имеют отношение к восточной сказке. Так или иначе, входы не перегружены, но импозантны благодаря пропорциям, и перекликаются с вырезами объемов над ними. 

Впрочем, дома получились не только схожими – срифмованными в ряде приемов, но и совсем разными по настроению, прежде всего за счет отделочных материалов. 
ЖК «Парфеновская, 1». Вид с юго-запада
ЖК «Парфеновская, 1». Вид с юго-запада
© Липгарт Архитектс
ЖК «Митрофаньевская». Общий вид с северо-запада
(со стороны Парфеновской улицы)
ЖК «Митрофаньевская». Общий вид с северо-запада (со стороны Парфеновской улицы)
© Липгарт Архитектс
Изразцовые ярусы
В облицовке дома на Парфеновской используется светлая штукатурка, а в местах «выемок» – объемная керамическая плитка изумрудного цвета, которая заставляет вспоминать изразцовые камины. Похожая, кажется, использована на станции метро «Лесная».  

«Выемки» располагаются только на двух фасадах. В торце, обращенном к почтовому пакгаузу, белым негативом на изумрудном фоне проявлен силуэт ступенчатой башни. У нее есть вертикальная ось, относительно которой одна из половин развернута на 90 градусов. Такой прием делает стену весомее и усложняет отношения застекленных и глухих частей, создает больше пластических «событий». 
ЖК «Парфеновская, 1». Вид с северо-востока
ЖК «Парфеновская, 1». Вид с северо-востока
© Липгарт Архитектс

Второй «испещренный» фасад смотрит в сторону БЦ «Депо №1» и путей Балтийского вокзала, но фактически – все же на равный по высоте дом «Галактики». Проработка именно этой стороны объясняется тем, что ее будут видеть гуляющие по Линейному парку. Здесь уступы формируют четыре «башни», которые разделяют поднятые на всю высоту дома пилоны: есть в них что-то от водосточных труб, даже канавки напоминают места стыков желобов. Ярусы башен подчеркнуты широкими каннелированными «фризами». Жесткую и проявленную сетку фасада заполняют окна с французскими балконами, стрельчатые решетки которых дополнены бордюрами объемной плитки. Углы выемок и ребра «башен» скруглены в духе «стримлайна», что еще больше отделяет их от тела дома. Многоквартирный, длинный и высокий дом? Да. Но видел ли вообще Петербург комфорт-класс с такой степенью детализации и присутствия архитектуры? Другая сторона дома, впрочем, как сторона медали – более однообразна, но радует спокойными пропорциями и ясным ритмом.
ЖК «Парфеновская, 1».Панорамный вид с юго-запада © Липгарт Архитектс
ЖК «Парфеновская, 1».Панорамный вид с юго-запада
© Липгарт Архитектс
ЖК «Парфеновская, 1». Фрагмент восточного фасада © Липгарт Архитектс
ЖК «Парфеновская, 1». Фрагмент восточного фасада
© Липгарт Архитектс
ЖК «Парфеновская, 1». Фотомонтаж. Вид с юго-восточной стороны © Липгарт Архитектс
ЖК «Парфеновская, 1». Фотомонтаж. Вид с юго-восточной стороны
© Липгарт Архитектс
ЖК «Парфеновская, 1». Фотомонтаж. Вид с северо-запада © Липгарт Архитектс
ЖК «Парфеновская, 1». Фотомонтаж. Вид с северо-запада
© Липгарт Архитектс

Отдельно стоит сказать о входных группах и уровне первых этажей, где встречаются все выбранные фактуры, материалы и пластические приемы. Портал входа заглублен, но при этом поднят до уровня второго этажа, а созданная выступом и выемкой «волна» затягивает приходящего внутрь. Здесь человеку предоставлен богатый сенсорный опыт: матовость штукатурки, глянец глазурованной плитки, игра света на ее рельефе, металлический холод и колкость решеток балконов, смена плавных линий острыми углами. Дом хочется потрогать рукой – такая тактильная притягательность, это, как мы знаем, хороший признак. 
ЖК «Парфеновская, 1».Вид на входную группу
ЖК «Парфеновская, 1».Вид на входную группу
© Липгарт Архитектс
Стимпанк-Петербург
Если предыдущий дом материалами и колористическим решением следует скорее за «Галактикой», то второй – полностью на стороне кирпичного прошлого территории. К этому располагает его относительная независимость от решений ППТ, а также визуальное соседство с вагоноремонтным депо и комплексом построек Петроградского механического хлебозавода. 
ЖК «Митрофаньевская». Вид с юго-востока (со стороны двора)
ЖК «Митрофаньевская». Вид с юго-востока (со стороны двора)
© Липгарт Архитектс

В торцах дома более акцентированы выемки, а не выступы: здесь образовались целые «разломы», а общее движение обратное – от прорыва к обрушению. Впрочем, возможно, что это оптическая иллюзия: кто к чему расположен, то и видит, как на известном кубе Неккера. Мне больше нравится видеть, что здесь Степан Липгарт обратился к эстетике руин Варшавского вокзала, а серая плитка – это следы паровозной копоти. Дом как будто оседает: у него нет широкой базы, этажность ярусов увеличивается. Один из торцов дома – классический брандмауэр, абрис которого напоминает фабричную башню.  
ЖК «Митрофаньевская». Вид с северо-востока
ЖК «Митрофаньевская». Вид с северо-востока
© Липгарт Архитектс

Этот дом более заостренный: вместо скругления – дополнительные грани, фризы подчеркивает объемная кладка, выдвигающая углы кирпича. Любопытная деталь на уровне первого этажа: ниспадающие тонкой треугольной бахромой рельефные кирпичные полосы, напоминающие то ли о вольной трактовке любимого приема Сецессиона, то ли вариант декора ЖК Alter на Магнитогорской улице.   
ЖК «Митрофаньевская». Вид на входную группу
ЖК «Митрофаньевская». Вид на входную группу
© Липгарт Архитектс
ЖК «Митрофаньевская». Панорамный вид с юго-запада © Липгарт Архитектс
ЖК «Митрофаньевская». Панорамный вид с юго-запада
© Липгарт Архитектс
ЖК «Митрофаньевская». Фотомонтаж. Вид с юго-западной стороны © Липгарт Архитектс
ЖК «Митрофаньевская». Фотомонтаж. Вид с юго-западной стороны
© Липгарт Архитектс
ЖК «Митрофаньевская». Фотомонтаж. Вид с северо-западной стороны © Липгарт Архитектс
ЖК «Митрофаньевская». Фотомонтаж. Вид с северо-западной стороны
© Липгарт Архитектс

***

В данный момент уже известно, что дома не будут построены, однако проекты создают интересный прецедент. Учитывая контекст, ограничения и тип жилья, Степан Липгарт вместо излюбленной им стилистики 1930-х выбирает несколько иную версию ар-деко, более сдержанную по части деталей, но работающую на уровне нюансов: как будто «разрезает» простой объем, но не резким сечением тесака, а каким-то сложным инструментом, то ли из арсенала скульптора, то ли предназначенным для линогравюры, то скругленным, то ребристым. Сдержанно-цветная плитка, проступающая на разрезе, как будто указывает нам на то, что дом-то, на самом деле, внутри сделан из какого-то иного, более ценного материала. Как будто шел по пляжу, разбил известняковый валун, и нашел внутри маленькую аметистовую щетку. Вроде бы и мелочь, а приятно. 
ЖК «Парфеновская, 1». План подвального этажа на отметке -4.100 © Липгарт Архитектс
ЖК «Парфеновская, 1». План подвального этажа на отметке -4.100
© Липгарт Архитектс
ЖК «Парфеновская, 1». План 1 этажа © Липгарт Архитектс
ЖК «Парфеновская, 1». План 1 этажа
© Липгарт Архитектс
ЖК «Парфеновская, 1».Секция А. План 12 этажа © Липгарт Архитектс
ЖК «Парфеновская, 1».Секция А. План 12 этажа
© Липгарт Архитектс
ЖК «Парфеновская, 1». Секция А. План типового этажа © Липгарт Архитектс
ЖК «Парфеновская, 1». Секция А. План типового этажа
© Липгарт Архитектс
ЖК «Парфеновская, 1». Секция Б. План типового этажа © Липгарт Архитектс
ЖК «Парфеновская, 1». Секция Б. План типового этажа
© Липгарт Архитектс
ЖК «Парфеновская, 1». Секция Б. План 12 этажа © Липгарт Архитектс
ЖК «Парфеновская, 1». Секция Б. План 12 этажа
© Липгарт Архитектс
ЖК «Парфеновская, 1». Разрез © Липгарт Архитектс
ЖК «Парфеновская, 1». Разрез
© Липгарт Архитектс
ЖК «Митрофаньевская». Схема подвала с подземным паркингом на отметке -4.100 © Липгарт Архитектс
ЖК «Митрофаньевская». Схема подвала с подземным паркингом на отметке -4.100
© Липгарт Архитектс
ЖК «Митрофаньевская». План 1 этажа © Липгарт Архитектс
ЖК «Митрофаньевская». План 1 этажа
© Липгарт Архитектс
ЖК «Митрофаньевская». Секция А. План типового этажа © Липгарт Архитектс
ЖК «Митрофаньевская». Секция А. План типового этажа
© Липгарт Архитектс
ЖК «Митрофаньевская». Секция А. План 8 этажа © Липгарт Архитектс
ЖК «Митрофаньевская». Секция А. План 8 этажа
© Липгарт Архитектс
ЖК «Митрофаньевская». Секция Б. План типового этажа © Липгарт Архитектс
ЖК «Митрофаньевская». Секция Б. План типового этажа
© Липгарт Архитектс
ЖК «Митрофаньевская». Секция Б. План 8 этажа © Липгарт Архитектс
ЖК «Митрофаньевская». Секция Б. План 8 этажа
© Липгарт Архитектс
ЖК «Митрофаньевская». Разрез © Липгарт Архитектс
ЖК «Митрофаньевская». Разрез
© Липгарт Архитектс