Размещено на портале Архи.ру (www.archi.ru)

02.11.2022

Мультитон

Юлия Тарабарина
Объект:
Офис группы компаний «Актион Девелопмент»
Адрес:
Россия, Москва. 1-й Земельный переулок, 1
БЦ в 1-м Земельном переулке, 1
Адрес:
Россия, Москва. ЦАО, район Пресненский, 1-й Земельный переулок, вл. 7/2, стр. 1-2
Архитектор:
Анастасия Абашева
Полина Воеводина
Сергей Труханов
Мастерская:
Т+Т Architects
Авторский коллектив:
Руководитель авторского коллектива – Юлий Борисов, архитекторы: Михаил Иванченко, Данило Вукосавлевич, Павел Култышев, Анастасия Давыдова, Лоренцо Маттана, Марат Мухамедов. Инженеры: Александр Цукерман, Владислав Серебряков, Павел Ашихмин, Роман Лопуха, Олег Расторгуев
Интерьеры: Егор Коновалов, Николай МИловидов, Спартак Чинеников, Анна Юреско, Иван Стебунов

Новый интерьер офиса «Актион» можно понять как попытку создать идеальный «дом» для компании, не просто удобный, но транслирующий ценности современного делового девелопмента. Он откликается на контекст и выстроен на контрасте, он свеж, но уютен, располагает и к динамике, и к релаксу – но все это сочетается довольно гармонично, вероятно, потому, что для каждой темы авторы нашли свое место.

Год назад мы рассказывали о здании бизнес-центра в 1-м Земельном переулке: треугольный объем с белой решеткой фасада и встроенными в него кадками с диким виноградом – украшение района Ваганьково. 

БЦ в 1-м Земельном переулке, 1
БЦ в 1-м Земельном переулке, 1
Фотография © Дмитрий Чебаненко / предоставлено: UNK

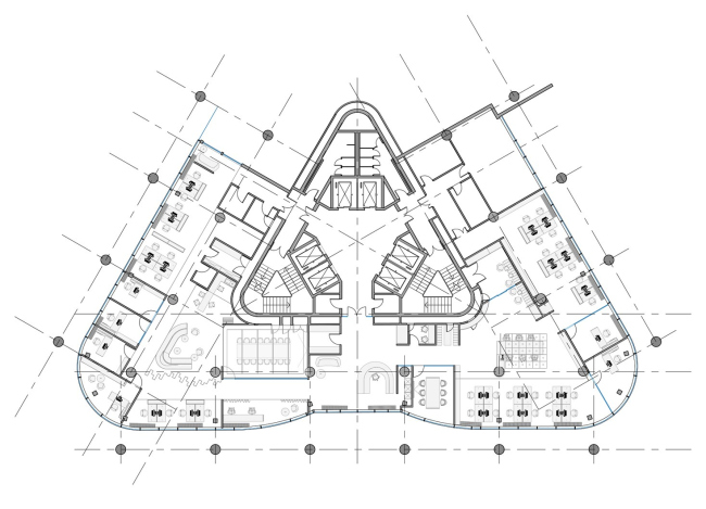
Интерьер собственного офиса девелоперской компании «Актион Девелопмент», которая реализовала бизнес-центр в Земельном переулке и управляет им, спроектировали T+T Architects Сергея Труханова. Его реализация только что завершена. Офис расположен на 3 этаже и занимает его целиком: все три входа-выхода из треугольного лестнично-лифтового холла – коммуникационного ядра здания, – на третьем этаже ведут в этот офис. 
Офис группы компаний «Актион Девелопмент» в БЦ в 1-м Земельном переулке
Офис группы компаний «Актион Девелопмент» в БЦ в 1-м Земельном переулке
© T+T Architects

Рабочие и представительские площади занимают примерно 2/3 этажа – два скругленных угла здания. Углы просторны и свет проходит их насквозь. Так что именно здесь появились два смысловых и пространственных ядра. Вокруг них группируются – или из них разрастаются – две части штаб-квартиры, причем в одной, посвященной работе с медиа и данными, преобладает зеленый цвет: холодноватый, спокойный, близкий к изумрудному, но более сдержанный и велюровый. А в другой «половине», рассчитанной на общение и включающей кофепоинт, общественную «гостиную» и самую большую переговорную – акцент сделан на винно-красном. Даже одна из колонн, тонкая, дополнительная, расположенная в скруглении, выкрашена в красный цвет. 
Офис группы компаний «Актион Девелопмент» в БЦ в 1-м Земельном переулке Фотография © Илья Иванов / предоставлена T+T architects
Офис группы компаний «Актион Девелопмент» в БЦ в 1-м Земельном переулке
Фотография © Илья Иванов / предоставлена T+T architects
Офис группы компаний «Актион Девелопмент» в БЦ в 1-м Земельном переулке Фотография © Илья Иванов / предоставлена T+T architects
Офис группы компаний «Актион Девелопмент» в БЦ в 1-м Земельном переулке
Фотография © Илья Иванов / предоставлена T+T architects
Офис группы компаний «Актион Девелопмент» в БЦ в 1-м Земельном переулке Фотография © Илья Иванов / предоставлена T+T architects
Офис группы компаний «Актион Девелопмент» в БЦ в 1-м Земельном переулке
Фотография © Илья Иванов / предоставлена T+T architects
Офис группы компаний «Актион Девелопмент» в БЦ в 1-м Земельном переулке Фотография © Илья Иванов / предоставлена T+T architects
Офис группы компаний «Актион Девелопмент» в БЦ в 1-м Земельном переулке
Фотография © Илья Иванов / предоставлена T+T architects
Офис группы компаний «Актион Девелопмент» в БЦ в 1-м Земельном переулке
Офис группы компаний «Актион Девелопмент» в БЦ в 1-м Земельном переулке
© T+T Architects
Офис группы компаний «Актион Девелопмент» в БЦ в 1-м Земельном переулке
Офис группы компаний «Актион Девелопмент» в БЦ в 1-м Земельном переулке
© T+T Architects

Распределение оттенков и «цветовая игра», конечно, не абсолютны: на красном прорастает живая растительность, в зеленой зоне встроена переговорная с красными стульями и подвесным потолком. Зеленые стулья мигрируют в «красное» пространство и красные стулья – в «зеленое». Да и в целом цвета служат скорее для ориентации, вовсе не предполагают полного погружения.
Офис группы компаний «Актион Девелопмент» в БЦ в 1-м Земельном переулке Фотография © Илья Иванов / предоставлена T+T architects
Офис группы компаний «Актион Девелопмент» в БЦ в 1-м Земельном переулке
Фотография © Илья Иванов / предоставлена T+T architects
Офис группы компаний «Актион Девелопмент» в БЦ в 1-м Земельном переулке Фотография © Илья Иванов / предоставлена T+T architects
Офис группы компаний «Актион Девелопмент» в БЦ в 1-м Земельном переулке
Фотография © Илья Иванов / предоставлена T+T architects
Офис группы компаний «Актион Девелопмент» в БЦ в 1-м Земельном переулке Фотография © Илья Иванов / предоставлена T+T architects
Офис группы компаний «Актион Девелопмент» в БЦ в 1-м Земельном переулке
Фотография © Илья Иванов / предоставлена T+T architects
Офис группы компаний «Актион Девелопмент» в БЦ в 1-м Земельном переулке Фотография © Илья Иванов / предоставлена T+T architects
Офис группы компаний «Актион Девелопмент» в БЦ в 1-м Земельном переулке
Фотография © Илья Иванов / предоставлена T+T architects
Офис группы компаний «Актион Девелопмент» в БЦ в 1-м Земельном переулке Фотография © Илья Иванов / предоставлена T+T architects
Офис группы компаний «Актион Девелопмент» в БЦ в 1-м Земельном переулке
Фотография © Илья Иванов / предоставлена T+T architects

Своего рода «примирение» двух тональностей происходит в точке главного входа, подковообразной стойки ресепшна, расположенной почти по центру восточной стены, над главным входом в здание. Стойка белая, фрагмент потолка над ней белый, стена рядом, пол и диванчик серые – но основание, сама подкова с поверхностью из искусственного камня, подсвечено, и цвет меняется: белый–красный–зеленый–синий, – а в какой-то момент возникают переливы. 
Офис группы компаний «Актион Девелопмент» в БЦ в 1-м Земельном переулке
Офис группы компаний «Актион Девелопмент» в БЦ в 1-м Земельном переулке
Фотография © Илья Иванов / предоставлена T+T architects

Переливы подсветки призваны, конечно, развлечь и восхитить вошедшего: развлечь динамикой смены, восхитить технологичностью. Пятна цвета на входе в офис как будто кажутся отблеском мульфильмов из главного лобби самого здания.

В то же время цвето-световая инсталляция «примиряет» между собой и два преобладающих оттенка интерьера: красный справа от входа, зеленый слева... И вот, пожалуйста, загорается синий. 
Офис группы компаний «Актион Девелопмент» в БЦ в 1-м Земельном переулке
Офис группы компаний «Актион Девелопмент» в БЦ в 1-м Земельном переулке
Фотография © Илья Иванов / предоставлена T+T architects

Так что интерьер, балансируя на грани «девелоперской» серьезности и современного разнообразия и гибкой трансформируемости, использующий натуральные материалы, живую зелень и, по-максимуму, – световой фронт стеклянных стен, – становится примером актуального подхода к офисному пространству и, в общем-то, профессионализма и качества. Они здесь определенно есть. 
Офис группы компаний «Актион Девелопмент» в БЦ в 1-м Земельном переулке Фотография © Илья Иванов / предоставлена T+T architects
Офис группы компаний «Актион Девелопмент» в БЦ в 1-м Земельном переулке
Фотография © Илья Иванов / предоставлена T+T architects
Офис группы компаний «Актион Девелопмент» в БЦ в 1-м Земельном переулке Фотография © Илья Иванов / предоставлена T+T architects
Офис группы компаний «Актион Девелопмент» в БЦ в 1-м Земельном переулке
Фотография © Илья Иванов / предоставлена T+T architects
Офис группы компаний «Актион Девелопмент» в БЦ в 1-м Земельном переулке Фотография © Илья Иванов / предоставлена T+T architects
Офис группы компаний «Актион Девелопмент» в БЦ в 1-м Земельном переулке
Фотография © Илья Иванов / предоставлена T+T architects
Офис группы компаний «Актион Девелопмент» в БЦ в 1-м Земельном переулке Фотография © Илья Иванов / предоставлена T+T architects
Офис группы компаний «Актион Девелопмент» в БЦ в 1-м Земельном переулке
Фотография © Илья Иванов / предоставлена T+T architects
Офис группы компаний «Актион Девелопмент» в БЦ в 1-м Земельном переулке Фотография © Илья Иванов / предоставлена T+T architects
Офис группы компаний «Актион Девелопмент» в БЦ в 1-м Земельном переулке
Фотография © Илья Иванов / предоставлена T+T architects

На гибкость работает: сочетание кабинетов и мест open space, наличие диванов и прочих мест, где можно поработать неформально, не за столом.
Офис группы компаний «Актион Девелопмент» в БЦ в 1-м Земельном переулке
Офис группы компаний «Актион Девелопмент» в БЦ в 1-м Земельном переулке
Фотография © Илья Иванов / предоставлена T+T architects

Главный драйвер гибкости – «круговая мягкая зона» в центре южного сектора. Ее, по словам авторов, можно объединять и с большой переговорной, – в некоторых случаях здесь могут собираться все сотрудники компании. 
Слева аксонометрия большой переговорной, справа – общественной зоны, расположенной рядом с ней. Офис группы компаний «Актион Девелопмент» в БЦ в 1-м Земельном переулке
Слева аксонометрия большой переговорной, справа – общественной зоны, расположенной рядом с ней. Офис группы компаний «Актион Девелопмент» в БЦ в 1-м Земельном переулке
© T+T Architects

Помимо такого рода правильных, но в целом для хорошего интерьерщика уже базовых, вещей – здесь можно отметить несколько специфических приемов, которые придают интерьеру собственное лицо, если не сказать «привкус». А может быть даже привносят легкий контекстуальный оттенок. 

Возьмем к примеру большую переговорную в южной части. Ее потолок с матовыми фонарями белого света решен как подобие шедовых фонарей. Во-первых, это довольно оригинально и привлекает внимание – попросту как необычная форма. Но, во-вторых, кто знает – тот может вспомнить о соседстве ремонтных корпусов метрополитена, они построены в 1950-е, занимают большую территорию к востоку от БЦ в 1-м Земельном, – и перекрыты если не шедовыми фонарями, то промышленными «клеристориями», очень на них похожими. Так или иначе, а потолок переговорной тонко, но не прямо напоминает нам о том, что БЦ по-прежнему окружен неплохим историческим промом. Задает романтическую ноту, но никоим образом на ней не настаивает. 
Офис группы компаний «Актион Девелопмент» в БЦ в 1-м Земельном переулке Фотография © Илья Иванов / предоставлена T+T architects
Офис группы компаний «Актион Девелопмент» в БЦ в 1-м Земельном переулке
Фотография © Илья Иванов / предоставлена T+T architects
Офис группы компаний «Актион Девелопмент» в БЦ в 1-м Земельном переулке Фотография © Илья Иванов / предоставлена T+T architects
Офис группы компаний «Актион Девелопмент» в БЦ в 1-м Земельном переулке
Фотография © Илья Иванов / предоставлена T+T architects
Офис группы компаний «Актион Девелопмент» в БЦ в 1-м Земельном переулке Фотография © Илья Иванов / предоставлена T+T architects
Офис группы компаний «Актион Девелопмент» в БЦ в 1-м Земельном переулке
Фотография © Илья Иванов / предоставлена T+T architects

Несложно заметить также – вдогонку к созвучию цветовых переливов ресепшна на входе в офис и мультимейдных сфер на входе в здание – что красный и сине-зеленый цвета распределены «по странам света», теплый оттенок в южной, прохладный в северной части интерьера. А также что сами оттенки не то чтобы прямо, но перекликаются с цветом металла в лифтовом холле, где, напомним, стены покрыты волнистым титаном с бордовой, темно-зеленой и темно-синей поверхностью.
БЦ в 1-м Земельном переулке, 1
БЦ в 1-м Земельном переулке, 1
Фотография © Алексей Гордиенко

Авторы не забывают, где они находятся, выстраивают на разных уровнях связи со зданием и даже (если поверить в шедовые фонари) его окружением. Да и растения внутри перекликаются с теми, что на балконах фасадов. 

Некоторую долю цельности и даже стройности интерьеру сообщают деревянные панели с вертикальным ритмом: в разных местах они имеют разный оттенок, от естественного древесного желтоватого и белого до серо-зеленого, – а рисунок один, так что мы ощущаем и единство, и разнообразие. 
Офис группы компаний «Актион Девелопмент» в БЦ в 1-м Земельном переулке Фотография © Илья Иванов / предоставлена T+T architects
Офис группы компаний «Актион Девелопмент» в БЦ в 1-м Земельном переулке
Фотография © Илья Иванов / предоставлена T+T architects
Офис группы компаний «Актион Девелопмент» в БЦ в 1-м Земельном переулке Фотография © Илья Иванов / предоставлена T+T architects
Офис группы компаний «Актион Девелопмент» в БЦ в 1-м Земельном переулке
Фотография © Илья Иванов / предоставлена T+T architects

Свежести добавляют черные потолки и бетонные колонны. Но те и другие сбалансированы решениями, скажем так, «комфортного спектра». В наше время всеми признано, что потолки с открытой поверхностью и коммуникациями создают «воздух» над головой, повышают высоту помещений, задают неформальную ноту на уровне эмоций. Между тем «обычные» подшивные белые офисные потолки сами по себе довольно уютны. Так что авторы совмещают то и другое: создают из белых потолков «острова» и «берега», аккуратно обводя их вокруг черных «впадин». Используют достоинства того и другого. 
Офис группы компаний «Актион Девелопмент» в БЦ в 1-м Земельном переулке Фотография © Илья Иванов / предоставлена T+T architects
Офис группы компаний «Актион Девелопмент» в БЦ в 1-м Земельном переулке
Фотография © Илья Иванов / предоставлена T+T architects
Офис группы компаний «Актион Девелопмент» в БЦ в 1-м Земельном переулке Фотография © Илья Иванов / предоставлена T+T architects
Офис группы компаний «Актион Девелопмент» в БЦ в 1-м Земельном переулке
Фотография © Илья Иванов / предоставлена T+T architects

Колонны каркаса здания архитекторы расчистили до бетонной поверхности и покрыли лаком, чтобы показать подлинный бетон. Не зализанный «архитектурный», а конструктивный, настоящий, со всеми потеками и кавернами. Колонны, определенно, выступают в качестве скульптур – в чем им немало помогает круглая форма. То оттеняют собой кофепоинт, то прячутся за множеством цветочных кашпо, то находят себе место в стеклянном кожухе, то попросту «пребывают» в пространстве.
Офис группы компаний «Актион Девелопмент» в БЦ в 1-м Земельном переулке
Офис группы компаний «Актион Девелопмент» в БЦ в 1-м Земельном переулке
Фотография © Илья Иванов / предоставлена T+T architects

Наверное, не будет преувеличением заключить, что этот интерьер держится на деликатном контрасте, на совмещении противоположных цветов: красного и зеленого, белого и черного; фактур: блестящих и мягких велюровых, аккуратно расчерченных и подчеркнуто несовершенных, естественных; идей – от «литературных» до пластических. Но при таком обилии «всего» не возникает ни ощущения перегруженности, ни резких перепадов – то ли из-за естественного света, сдержанности оттенков и пространственных пауз, то ли благодаря срежиссированности сочетаний, однако кажется, что этот интерьер бодрит, но не утомляет. Ровно то, что нужно для продуктивной работы, особенно в такой непростой и ответственной сфере, как девелопмент, специализирующийся на деловой недвижимости. 
Кухня слева и диванный уголок справа. Офис группы компаний «Актион Девелопмент» в БЦ в 1-м Земельном переулке © T+T Architects
Кухня слева и диванный уголок справа. Офис группы компаний «Актион Девелопмент» в БЦ в 1-м Земельном переулке
© T+T Architects
Офис группы компаний «Актион Девелопмент» в БЦ в 1-м Земельном переулке © T+T Architects
Офис группы компаний «Актион Девелопмент» в БЦ в 1-м Земельном переулке
© T+T Architects
Переговорная с красным потолком в зеленой зоне (слева) и стойка ресепшн (справа). Офис группы компаний «Актион Девелопмент» в БЦ в 1-м Земельном переулке © T+T Architects
Переговорная с красным потолком в зеленой зоне (слева) и стойка ресепшн (справа). Офис группы компаний «Актион Девелопмент» в БЦ в 1-м Земельном переулке
© T+T Architects