Размещено на портале Архи.ру (www.archi.ru)

06.06.2022

Материальное и неосязаемое в одном музее

Нина Фролова
Объект:
Музей китайской традиционной культуры
Адрес:
Китай, None, Пекин.
Мастерская:
gmp

В Пекине построен Музей китайской традиционной культуры по проекту бюро gmp.

Новый музей расположен на территории Олимпийского комплекса, недалеко от стадиона Herzog & de Meuron: он стал одним из запланированных здесь новых культурных объектов.
 

Музей китайской традиционной культуры
Музей китайской традиционной культуры
Фото © CreatAR Images

Для гамбургских архитекторов gmp это второй крупный музей в Пекине – первым был реконструированный Национальный музей на площади Тяньаньмэнь. Новый музей играет меньшую роль, но все же важен как всекитайское собрание произведений декоративно-прикладного искусства и художественных ремесел. Однако этим его наполнение не исчерпывается: у него есть и менее осязаемая половина, посвященная нематериальному наследию, в частности музыке и танцу. Соединить эти два раздела архитекторам удалось не без труда: демонстрируются такие экспонаты совершенно по-разному.
 
Музей китайской традиционной культуры
Музей китайской традиционной культуры
Фото © CreatAR Images
Музей китайской традиционной культуры
Музей китайской традиционной культуры
Фото © CreatAR Images

Огромное здание (200х75х50 м) обязано своими габаритами дизайн-коду для культурных учреждений по берегам реки Яншань, к которому gmp отношения не имели. Однако они постарались сделать этот масштабный объем достаточно дробным и динамичным. Облицованный гранитом подиум несет остекленную среднюю часть, а над ней начинается основной объем, забранный орнаментальным экраном. Он защищает интерьер от солнечных лучей, напоминая о традиционных узорчатых решетках, а также о предметах декоративного искусства.
 
Музей китайской традиционной культуры
Музей китайской традиционной культуры
Фото © CreatAR Images
Музей китайской традиционной культуры
Музей китайской традиционной культуры
Фото © CreatAR Images

Орнаментальный экран создан из фиброармированного пластика, изготовленного методом пультрузии и окрашенного в медный цвет. Здесь применен базовый модуль в 3х2,2 м, из которого затем были составлены блоки во всю высоту (22 м): равномерное распределение узора позволило избежать разделения на главную и второстепенные части здания. Зазор между экраном и скрытым за ним остекленным фасадом составляет почти 1,5 м.
 
Музей китайской традиционной культуры
Музей китайской традиционной культуры
Фото © CreatAR Images
Музей китайской традиционной культуры
Музей китайской традиционной культуры
Фото © CreatAR Images

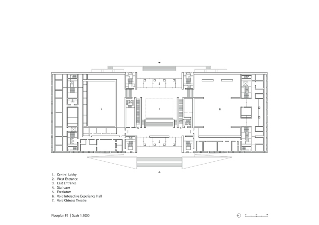
По периметру здания поверху подиума устроена терраса, которую затеняет 6-метровый вынос основной части постройки. Внутрь ведут два главных входа: там посетителей встречает вестибюль, аудитория на 400 мест и зал временных интерактивных выставок. Атриум во всю высоту музея организует выставочные пространства: туда можно попасть из огибающих его галерей.
 
Музей китайской традиционной культуры
Музей китайской традиционной культуры
Фото © CreatAR Images
Музей китайской традиционной культуры
Музей китайской традиционной культуры
Фото © CreatAR Images
Музей китайской традиционной культуры
Музей китайской традиционной культуры
Фото © CreatAR Images
Музей китайской традиционной культуры
Музей китайской традиционной культуры
Фото © CreatAR Images
Музей китайской традиционной культуры
Музей китайской традиционной культуры
Фото © CreatAR Images
Музей китайской традиционной культуры
Музей китайской традиционной культуры
Фото © CreatAR Images
Музей китайской традиционной культуры
Музей китайской традиционной культуры
Фото © CreatAR Images
Музей китайской традиционной культуры
Музей китайской традиционной культуры
© gmp
Музей китайской традиционной культуры
Музей китайской традиционной культуры
© gmp
Музей китайской традиционной культуры
Музей китайской традиционной культуры
© gmp
Музей китайской традиционной культуры
Музей китайской традиционной культуры
© gmp
Музей китайской традиционной культуры
Музей китайской традиционной культуры
© gmp
Музей китайской традиционной культуры
Музей китайской традиционной культуры
© gmp
Музей китайской традиционной культуры
Музей китайской традиционной культуры
© gmp
Музей китайской традиционной культуры
Музей китайской традиционной культуры
© gmp
Музей китайской традиционной культуры
Музей китайской традиционной культуры
© gmp
Музей китайской традиционной культуры
Музей китайской традиционной культуры
© gmp
Музей китайской традиционной культуры
Музей китайской традиционной культуры
© gmp
Музей китайской традиционной культуры
Музей китайской традиционной культуры
© gmp