Размещено на портале Архи.ру (www.archi.ru)

30.08.2022

Три в одном

Алёна Кузнецова
Объект:
ЖК «Новый Невский»
Адрес:
Россия, Санкт-Петербург. Тележная ул., д. 32
Мастерская:
Евгений Герасимов и партнеры
Авторский коллектив:
Руководитель проекта: Е.Л. Герасимов 
ГАП: С.Д. Меркушева 
Руководитель архитектурной группы: Е.А. Горюнова  
Архитекторы : А.Ю. Яковлева, О.С. Леушина, Е.И. Янанец, Д.С. Щапов, А.Г. Гвоздик, И.Ю. Савченко, О.Я. Ольшанская 
Главный конструктор: М. Я. Резниченко 
Конструкторы:  Т.С. Харинская, М.П. Илиадорова, Д. О. Григорьев, К. А. Власова, С.П. Ненашев, Е.С. Яковлева, Н.В. Алексеева, М.Л. Ингер, Т.Л. Лебедева, Т.В. Белова , В.Ю. Антонов, А.С. Денисов 
Генплан: Е.Н. Кузнецова, А.С. Титова, И.А. Харинская 

Дом на Тележной улице, построенный по проекту мастерской «Евгений Герасимов и партнеры» всего в паре шагов от Невского проспекта, визуально делится на три самостоятельных объекта. Так архитекторы сохраняют масштаб исторической улицы и преодолевают недостатки вытянутого участка.

Дом «Новый Невский» расположился буквально в двух шагах от главного проспекта города, но в его менее известной и «нахоженной» части, у станции метро «Площадь Александра Невского». Городская среда здесь ощутимо дифференцирована: люксовые магазины соседствуют с белорусским трикотажем, энотеки – с демократичными пекарнями, дорогая недвижимость – с аварийными домами. Чем ближе к Неве, тем больше промышленных зон скрывается за парадными фасадами. 

ЖК «Новый Невский»
ЖК «Новый Невский»
Фотография © Андрея Белимова-Гущина / предоставлена мастерской «Евгений Герасимов и партнеры»

Адрес дома – Тележная улица. В XVIII веке она могла стать продолжением Невского проспекта, а в советское время – его дублером, если бы градостроители решились соединить ее с Гончарной улицей, снеся пару зданий XIX века в квартале между Полтавской и Харьковской. Но этого не произошло, и улица оказалась несколько дистанцированной от центра города и окружения Московского вокзала. Может быть из-за этого, а может – из-за соседства инфекционной Боткинской больницы и деревообрабатывающего завода, или из-за общей потрепанности фасадов расположенных здесь исторических «доходников», – за последние десятилетия Тележная вошла в образ улицы скорее окраинной, чем центральной. До недавнего времени ее юго-восточная часть, ведущая в сторону метро и садов Александро-Невской лавры, была практически незастроенной: слева гаражи и шиномонтаж, справа промзона деревообрабатывающего завода. 

Спроектированный мастерской Евгения Герасимова дом «Новый Невский» вытянулся на 130 метров по левой стороне улицы. Он подхватывает ритм и морфологию ее исторического фронта – «доращивает» улицу в чуть более крупном масштабе, но в современном качестве, намечая таким образом будущее ее вероятного развития. 
ЖК «Новый Невский»
ЖК «Новый Невский»
Фотография © Андрея Белимова-Гущина / предоставлена мастерской «Евгений Герасимов и партнеры»

Проектировать дом мастерская начала давно – в 2009 году. Количество вариантов позволяет отследить, как менялись предпочтения – от броских фасадов архитекторы постепенно переходят ко все более лаконичным. На одном из первых эскизов дом решен в модернистском духе и напоминает другую работу авторов – дом на Невском 137, построенный в 2004 году. Следующая итерация – брутальная, с крупными объемами и агрессивными консолями. Затем дом все больше напоминает итоговый вариант, однако отличается большей орнаментальностью. На одной из визуализаций встречается фасад, облицованный красным кирпичом, где небольшие детали из архбетона похожи на хлопья снега – этот прием перекликается с проектом дома тех же авторов на соседней Миргородской улице.
Вариант дома «Новый Невский» © Изображение предоставлено мастерской «Евгений Герасимов и партнеры»
Вариант дома «Новый Невский»
© Изображение предоставлено мастерской «Евгений Герасимов и партнеры»
Вариант дома «Новый Невский» © Изображение предоставлено мастерской «Евгений Герасимов и партнеры»
Вариант дома «Новый Невский»
© Изображение предоставлено мастерской «Евгений Герасимов и партнеры»
Вариант дома «Новый Невский» © Изображение предоставлено мастерской «Евгений Герасимов и партнеры»
Вариант дома «Новый Невский»
© Изображение предоставлено мастерской «Евгений Герасимов и партнеры»
Вариант дома «Новый Невский» © Изображение предоставлено мастерской «Евгений Герасимов и партнеры»
Вариант дома «Новый Невский»
© Изображение предоставлено мастерской «Евгений Герасимов и партнеры»
Вариант дома «Новый Невский» © Изображение предоставлено мастерской «Евгений Герасимов и партнеры»
Вариант дома «Новый Невский»
© Изображение предоставлено мастерской «Евгений Герасимов и партнеры»
Вариант дома «Новый Невский» © Изображение предоставлено мастерской «Евгений Герасимов и партнеры»
Вариант дома «Новый Невский»
© Изображение предоставлено мастерской «Евгений Герасимов и партнеры»

Несмотря на ощутимые различия, все варианты объединяет прием имитации брандмауэрной застройки: объем, вытянутый по красной линии улицы, составлен из нескольких различных фасадов. Парцелляция сохраняется и в итоговом проекте – в уличном корпусе «Нового Невского» пять секций и одна арка во двор, а его фасадная стена трактована как три разных «дома», нарисованных в рамках общей логики, но «разной рукой». Уличный корпус дополнен дворовым: он вдвое короче, фасады решены нейтрально. 
ЖК «Новый Невский»
ЖК «Новый Невский»
© Евгений Герасимов и партнеры

Все три уличных фасада главного корпуса объединяет материал облицовки – кирпич ручной формовки, а также структура – первый коммерческий этаж образует базу, а пять основных жилых этажей – «тело» дома. Шестой жилой ярус «пентхаусов», отступает от плоскости фасада в глубину, образуя открытые террасы перед квартирами; с улицы он почти не заметен.

Архитектурная проработка фасадов и масштаб корпусов адаптированы к исторической застройке. Дом встраивается в контекст и одновременно предлагает новое высказывание на тему развития этой части города. Дальше следуют различия. 
ЖК «Новый Невский»
ЖК «Новый Невский»
Фотография © Ивана Смелова / предоставлена мастерской «Евгений Герасимов и партнеры»

Ближе всего к Александро-Невской лавре располагается «дом» из светлого, слегка разнотонового кирпича. Он решен симметрично, центром оси стала башенка, доходящая до уровня террас и завершенная подобием зубцов. Ритмичную сетку фасада украшают очаровательные детали из архитектурного бетона, словно оттиснутые на поверхности стены, – ромбы и «косички», которым вторят тонкие кованые решетки на окнах. Ветер приносит на Тележную улицу запах хлеба от расположенного неподалеку завода «Каравай», и тогда кажется, что «косички» появились именно благодаря этому обстоятельству. Однако архитекторы утверждают, что ориентировались на ар-нуво. В любом случае эта часть «Нового Невского» получилась элегантной и несколько романтической.
ЖК «Новый Невский»
ЖК «Новый Невский»
Фотография © Андрея Белимова-Гущина / предоставлена мастерской «Евгений Герасимов и партнеры»
ЖК «Новый Невский»
ЖК «Новый Невский»
Фотография © Андрея Белимова-Гущина / предоставлена мастерской «Евгений Герасимов и партнеры»

Средний «дом» из классического красного кирпича обладает другим характером: вместо каскадов орнамента – ритмичные эркеры, вытянутые по стойке «смирно», рыхлую кладку сменяет гладкая глянцевитая поверхность, а распахнутые витрины первого этажа – более узкие интровертные окна. Несмотря на четкую границу, второй «дом» переплетается с первым благодаря отделке эркеров светлым натуральным камнем и светлому кладочному раствору. 
ЖК «Новый Невский»
ЖК «Новый Невский»
Фотография © Андрея Белимова-Гущина / предоставлена мастерской «Евгений Герасимов и партнеры»
ЖК «Новый Невский»
ЖК «Новый Невский»
Фотография © Андрея Белимова-Гущина / предоставлена мастерской «Евгений Герасимов и партнеры»
ЖК «Новый Невский»
ЖК «Новый Невский»
Фотография © Азамат Абикенов / предоставлена мастерской «Евгений Герасимов и партнеры»

Третий «дом» – единственный без оси симметрии и самый лофтовый благодаря крупной сетке окон и кирпичу винного «фабричного» оттенка, глубину которого подчеркивает молочный орнамент в «шашечку». На стыке с соседним пятиэтажным домом 1961 года подстройки красная линия улицы меняется, что позволило добавить довольно массивную и чуть выступающую акцентную башню. По словам архитекторов, этот фасад стилистически связан со строгой функционалистской архитектурой Европы начала XX века. 
ЖК «Новый Невский»
ЖК «Новый Невский»
Фотография © Андрея Белимова-Гущина / предоставлена мастерской «Евгений Герасимов и партнеры»
ЖК «Новый Невский»
ЖК «Новый Невский»
Фотография © Андрея Белимова-Гущина / предоставлена мастерской «Евгений Герасимов и партнеры»

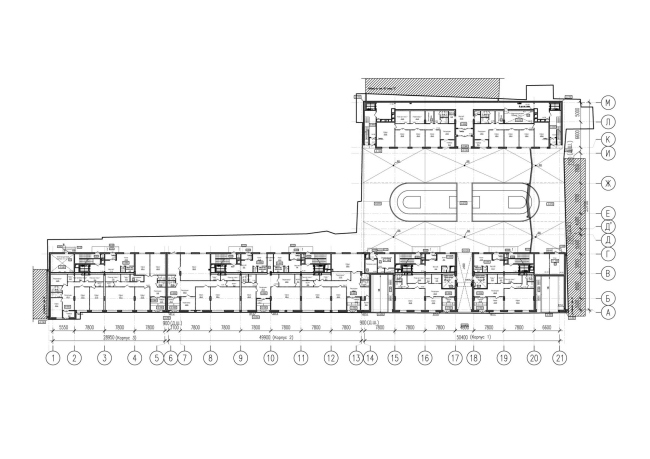
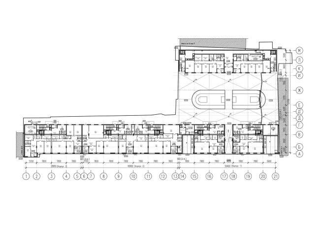
Со стороны двора дом сохраняет отделку и основные фасадные решения, в то время как второй корпус решен достаточно нейтрально: три стены получились глухими, поскольку «спиной» он граничит с дореволюционным флигелем. Все окна этого дома выходят во дворик комплекса. Корпуса объединяет подземный уровень, в котором располагается паркинг на 89 машин. В главном корпусе «Нового Невского» размещается 120 квартир площадью от 47 до 180 м2
ЖК «Новый Невский»
ЖК «Новый Невский»
Изображение предоставлено мастерской «Евгений Герасимов и партнеры»
ЖК «Новый Невский»
ЖК «Новый Невский»
Изображение предоставлено мастерской «Евгений Герасимов и партнеры»