Размещено на портале Архи.ру (www.archi.ru)

28.04.2022

Градсовет Петербурга 26.04.2022

Алёна Кузнецова
Объект:
Северная часть намывных территорий Невской губы Финского залива западнее Васильевского острова
Адрес:
Россия, Санкт-Петербург.
Территория развития СПбГУ. Генплан и объемно-планировочная композиция
Адрес:
Россия, Санкт-Петербург.
Мастерская:
АБ INTERCOLUMNIUM
Евгений Герасимов и партнеры
Студия 44

Градсовет обсудил два масштабных проекта северной столицы: застройку второй половины намыва Васильевского острова жилыми кварталами и перенос основной части Санкт-Петербургского государственного университета в город Пушкин.

Северная часть намыва

Северная часть территории Невской губы Финского залива 
Проектировщик: «Евгений Герасимов и партнеры», «УРБИС-СПБ», «Земцов, Кондиайн и партнеры», «ИНТЕРКОЛУМНИУМ», «Архитектурная мастерская «Б2»
Заказчик: ООО «Специализированный застройщик «ЛСР»
Обсуждали: эскиз застройки


Эскиз застройки северной части намыва Невской губы разрабатывал консорциум из пяти мастерских: «Евгений Герасимов и партнеры», «УРБИС-СПб», «Земцов, Кондиайн и партнеры», «Интерколумниум», «Архитектурная мастерская «Б2». Руководители представляли проект по очереди, начав с истории. 

Мастер-план для всего намыва разработала в 2006 году компания Gensler – тогда предполагалась, что северная часть будет деловой. В 2015 году был утвержден проект планировки намывных территорий, выполненный компанией «Союз-55» – он внес серьезные корректировки в замысел Gensler: застройка резко уменьшилась в высоте и стала преимущественно жилой.
Северная часть намывных территорий Невской губы Финского залива западнее Васильевского острова. ППТ,  «СОЮЗ 55». Схема участков, 2015 г.
Северная часть намывных территорий Невской губы Финского залива западнее Васильевского острова. ППТ, «СОЮЗ 55». Схема участков, 2015 г.
© изображение предоставлено пресс-службой КГА
Северная часть намывных территорий Невской губы Финского залива западнее Васильевского острова. Правила землепользования и застройки в редакции от 26.02.2021
Северная часть намывных территорий Невской губы Финского залива западнее Васильевского острова. Правила землепользования и застройки в редакции от 26.02.2021
© изображение предоставлено пресс-службой КГА

Согласуясь с принятым ППТ, в северной части архитекторы предлагают сделать набережную – «корочку» – по всей дуге полуострова. За ней последует «пояс» из жилых кварталов, которые удобно делить на «лоты» и распределять между разными архитектурными мастерскими, чтобы добиться разнообразия застройки. Следующий «слой», защищенный от морских ветров, – широкая зеленая полоса с территориями детских садов, школ и поликлиник. Сердцевину занимает еще одна группа жилых домов, расположенных меридионально по краям общегородского парка. Центральная ось всей композиции – пешеходный бульвар, который ведет от дома, напоминающего большую арку Дефанс, через весь полуостров к морю. Ближе к ЗСД располагаются паркинги, котельная, подстанция, одна из школ, а также отрезанный дорогами кусочек парка. Застройка рассчитана на 23 000 проживающих. Авторы предлагают достичь предельно разрешенных параметров высоты, акцентные здания будут достигать 75 метров. 
Северная часть намывных территорий Невской губы Финского залива западнее Васильевского острова. Проект планировки 
территории, разработанный 
ООО  «СОЮЗ 55», 2015 г. © изображение предоставлено пресс-службой КГА
Северная часть намывных территорий Невской губы Финского залива западнее Васильевского острова. Проект планировки территории, разработанный ООО «СОЮЗ 55», 2015 г.
© изображение предоставлено пресс-службой КГА
Северная часть намывных территорий Невской губы Финского залива западнее Васильевского острова. Схема генерального плана, предложение 2022 г. © изображение предоставлено пресс-службой КГА
Северная часть намывных территорий Невской губы Финского залива западнее Васильевского острова. Схема генерального плана, предложение 2022 г.
© изображение предоставлено пресс-службой КГА

Многие эксперты высказали мнение, что работу нужно согласовать, если авторы учтут рекомендации. А их было достаточно много. Владимир Григорьев указал на то, что система обслуживания держится на встроенных учреждениях – по словам авторов, они должны обеспечить больше 10 000 рабочих мест – при этом крупные торговые центры, кинотеатры, дома культуры практически отсутствуют. Владимир Аврутин также усомнился, что такой инфраструктуры будет достаточно для жителей и гостей района. Многие отметили нелогичное расположение паркингов и отсутствие пешеходных связей с «материковой» частью города, от которой намыв отделяет серьезная преграда в виде ЗСД.  
Северная часть намывных территорий Невской губы Финского залива западнее Васильевского острова. Эскиз застройки. Функциональная схема © изображение предоставлено пресс-службой КГА
Северная часть намывных территорий Невской губы Финского залива западнее Васильевского острова. Эскиз застройки. Функциональная схема
© изображение предоставлено пресс-службой КГА
Северная часть намывных территорий Невской губы Финского залива западнее Васильевского островаЭскиз застройки. Схема нормативных радиусов обслуживания школ © изображение предоставлено пресс-службой КГА
Северная часть намывных территорий Невской губы Финского залива западнее Васильевского островаЭскиз застройки. Схема нормативных радиусов обслуживания школ
© изображение предоставлено пресс-службой КГА
Северная часть намывных территорий Невской губы Финского залива западнее Васильевского острова. Схема нормативных радиусов обслуживания детских садов © изображение предоставлено пресс-службой КГА
Северная часть намывных территорий Невской губы Финского залива западнее Васильевского острова. Схема нормативных радиусов обслуживания детских садов
© изображение предоставлено пресс-службой КГА
Северная часть намывных территорий Невской губы Финского залива западнее Васильевского острова. Схема нормативных радиусов обслуживания поликлиник и спортивного комплекса © изображение предоставлено пресс-службой КГА
Северная часть намывных территорий Невской губы Финского залива западнее Васильевского острова. Схема нормативных радиусов обслуживания поликлиник и спортивного комплекса
© изображение предоставлено пресс-службой КГА

Сергей Орешкин предложил проработать структуру высотных доминант и выйти за рамки разрешенных 75 метров, а также обратил внимание на то, что пешеходную аллею несколько раз пересекают автомобильные магистрали, а «арка Дефанс» упирается в задворки школы. Михаилу Мамошину работа напомнила стрелку Васильевского острова, но он призвал усилить «традиционные градостроительные сюжеты», сделать площади более читаемыми, а также определить место под строительство храма. 
Северная часть намывных территорий Невской губы Финского залива западнее Васильевского острова. Эскиз застройки. Схема высотности
Северная часть намывных территорий Невской губы Финского залива западнее Васильевского острова. Эскиз застройки. Схема высотности
© изображение предоставлено пресс-службой КГА

Святослав Гайкович отметил, что «группы жилых домов явно сделаны не на одном уровне»: есть откровенно неудачные – например восточный и западный блоки «в виде тоннелей, в которых будет свистеть ураган», или стен, загораживающих вид на залив. Владимиру Григорьеву странным показался квартал со школой у ЗСД, который не формирует ни дворовых, ни уличных пространств. 
Северная часть намывных территорий Невской губы Финского залива западнее Васильевского острова. Схема генерального плана, предложение 2022 г. © изображение предоставлено пресс-службой КГА
Северная часть намывных территорий Невской губы Финского залива западнее Васильевского острова. Схема генерального плана, предложение 2022 г.
© изображение предоставлено пресс-службой КГА
Северная часть намывных территорий Невской губы Финского залива западнее Васильевского острова. Схема генерального плана, предложение 2022 г. © изображение предоставлено пресс-службой КГА
Северная часть намывных территорий Невской губы Финского залива западнее Васильевского острова. Схема генерального плана, предложение 2022 г.
© изображение предоставлено пресс-службой КГА
Северная часть намывных территорий Невской губы Финского залива западнее Васильевского острова. Схема генерального плана, предложение 2022 г. © изображение предоставлено пресс-службой КГА
Северная часть намывных территорий Невской губы Финского залива западнее Васильевского острова. Схема генерального плана, предложение 2022 г.
© изображение предоставлено пресс-службой КГА
Северная часть намывных территорий Невской губы Финского залива западнее Васильевского острова. Схема генерального плана, предложение 2022 г. © изображение предоставлено пресс-службой КГА
Северная часть намывных территорий Невской губы Финского залива западнее Васильевского острова. Схема генерального плана, предложение 2022 г.
© изображение предоставлено пресс-службой КГА
Северная часть намывных территорий Невской губы Финского залива западнее Васильевского острова. Схема генерального плана, предложение 2022 г. © изображение предоставлено пресс-службой КГА
Северная часть намывных территорий Невской губы Финского залива западнее Васильевского острова. Схема генерального плана, предложение 2022 г.
© изображение предоставлено пресс-службой КГА
Северная часть намывных территорий Невской губы Финского залива западнее Васильевского острова. Схема генерального плана, предложение 2022 г. © изображение предоставлено пресс-службой КГА
Северная часть намывных территорий Невской губы Финского залива западнее Васильевского острова. Схема генерального плана, предложение 2022 г.
© изображение предоставлено пресс-службой КГА

Часть экспертов в корне не согласилась с размещением на знаковой для города территории «периферийных» жилых кварталов, которые вполне могли бы существовать в Кудрино или Мурино. По мнению Владимира Аврутина, подобная территория должна быть «наполнена общественно-деловыми объектами в гораздо большей степени». Максим Атаянц согласился – «по площади и количеству жителей это отдельный город, но никакая настоящая общественная функция не прибавлена». Слово дали также депутату Борису Вишневскому, который призвал повременить с застройкой, оценить экологические последствия от намыва, провести общественные слушания и решить, действительно ли здесь нужен еще один «человейник». Семен Михайловский заявил, что город должен проявить волю и не повторять опыт южного намыва, который эксперт назвал неблагополучной территорией. Предложенную работу он назвал «ужасной челюстью», «невнятной и не имеющей авторского почерка». Георгий Снежкин отметил, что в подобном ответственном месте обидно появление спального района. Но «все проблемы участка сводятся к разработанному ППТ», что решаемо, поскольку «нет земли, а есть вода».



Итоги голосования станут известны позже.

Подробнее о проекте ->
 
СПбГУ в Пушкине
Санкт-Петербург, Пушкинский район
Проектировщик: «Студия 44»
Заказчик: Санкт-Петербургский государственный университет
Обсуждали: архитектурно-градостроительный облик


Парадокс текущего градсовета отметил Владимир Аврутин еще в первой части обсуждения: «Спальный район строится в центре города, а СПбГУ – в полях». Территория развития университета сейчас действительно представляет собой поля между Пушкиным и Павловском, но судя по обстоятельному докладу генерального директора Центра транспортного планирования Санкт-Петербурга Рубена Тертеряна, ее ждет фантастическая транспортная обеспеченность: две станции метро – «Царское село» и «Университетская», ТПУ «Царское село», новые магистрали, путепроводы и развязки, в том числе с трассы М-11, а также линия скоростного трамвая. Предполагается, что по этой причине новая попытка переноса основных факультетов Университета в пригород будет успешнее, чем предыдущий опыт в Петродворце – более удаленном и труднодоступном.    
Территория развития СПбГУ. Генплан и объемно-планировочная композиция. Ситуационная схема
Территория развития СПбГУ. Генплан и объемно-планировочная композиция. Ситуационная схема
© Студия 44
Территория развития СПбГУ. Генплан и объемно-планировочная композиция. Этапы 1-3
Территория развития СПбГУ. Генплан и объемно-планировочная композиция. Этапы 1-3
© Студия 44

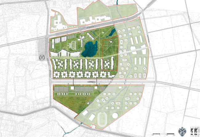
Концепцию развития Университет заказал «Студии 44», которая имеет серьезный опыт в проектировании учебных заведений. Одна из последних работ – кампус ИТМО в городе-спутнике Южном. Однако развитие СПбГУ – наиболее масштабный из аналогичных проектов: городок рассчитан на 25 000 учащихся. Застройка ведется в несколько этапов, в проект заложена возможность изменений и адаптации.
Территория развития СПбГУ. Генплан и объемно-планировочная композиция
Территория развития СПбГУ. Генплан и объемно-планировочная композиция
© Студия 44

Коммуникационное ядро территории – зеленый бульвар между будущими станциями метро, протянутый через весь городок. На него «нанизаны» здания университета. Функциональные блоки формируются линиями – «немножко шашлык», как определил Никита Явейн, но такая универсальная схема позволяет системе адаптироваться и меняться – здания не «завязаны» на определенный факультет, но легко приспосабливаются к запросам.  
Территория развития СПбГУ. Генплан и объемно-планировочная композиция. Концептуальная схема планировочной организации участка. Этапы 1-3
Территория развития СПбГУ. Генплан и объемно-планировочная композиция. Концептуальная схема планировочной организации участка. Этапы 1-3
© Студия 44

Ниже оси первыми строятся учебные корпуса, следом лаборатории. Крупнейший в Европе виварий и криогенная лаборатория вынесены на территорию открытой парковки, расчитаной на 1130 машин. Выше оси развивается общественный центр, где студенты будут встречаться и неизбежно знакомиться. Сюда войдет комплекс столовых, студенченский клуб, спортивный центр и библиотека на 4 млн томов, читальные залы и коворкинги которой обращены к озеру – его планируют очистить и укрепить. Далее структура теряет жесткость: административные блоки и гимназия располагаются более свободно. Следующие, а возможно и параллельные этапы развития, которые в данный проект не включены, предполагают строительство общежитий и гостиниц, медицинского блока, физкультурно-оздоровительного центра с бассейнами.   
Территория развития СПбГУ. Генплан и объемно-планировочная композиция. Схема функционального зонирования. Этапы 1-3
Территория развития СПбГУ. Генплан и объемно-планировочная композиция. Схема функционального зонирования. Этапы 1-3
© Студия 44
Территория развития СПбГУ. Генплан и объемно-планировочная композиция. Концептуальная схема планировочной организации участка
Территория развития СПбГУ. Генплан и объемно-планировочная композиция. Концептуальная схема планировочной организации участка
© Студия 44

Работу оценили высоко, пользуясь словами «выдающийся» и «блистательный». Рецензент Владимир Григорьев отметил, что «созданы все предпосылки для комфортной среды приятного для человеческого восприятия масштаба, высотный регламент безукоризненно соблюдается, территория проницаема, а студентов ждет интересная жизнь». Владимир Линов отметил, что концепция соответствует общемировым тенденциям университетского строительства и идее гуманизации высшего образования. Эксперту понравилась открытость территории городу, парцелляция комплекса на множество зданий и наличие главного объекта – эффектно решенного общественного центра, который напомнил ему «архитектурный факультет в Гарварде, но большего масштаба и более сложно устроенный». Ассоциации продолжились: Михаилу Мамошину концепция напомнила метаболизм и проекты Луиса Кана, Сергею Падалко – университетский городок в Лозанне. Феликс Буянов назвал работу обаятельной и захотел снова стать студентом, а также отметил удачу с площадкой – «в блистательном пригороде», но не отягощенную контекстом.  
Территория развития СПбГУ. Генплан и объемно-планировочная композиция
Территория развития СПбГУ. Генплан и объемно-планировочная композиция
Территория развития СПбГУ. Генплан и объемно-планировочная композиция © Студия 44
Территория развития СПбГУ. Генплан и объемно-планировочная композиция
© Студия 44
Территория развития СПбГУ. Генплан и объемно-планировочная композиция © Студия 44
Территория развития СПбГУ. Генплан и объемно-планировочная композиция
© Студия 44

Итоги голосования станут известны позже.

Подробнее о проекте ->