Размещено на портале Архи.ру (www.archi.ru)

28.01.2021

Градсовет Петербурга 20/27.01.2021

Алёна Кузнецова
Объект:
Многоквартирный дом на Кубинской
Адрес:
Россия, Санкт-Петербург. Кубинская улица, дом 82
Памятный знак «Петр I, спасающий утопающих близ Лахты»
Адрес:
Россия, Санкт-Петербург.
Мастерская:
Архитектурная мастерская Мамошина
Проектная культура
Авторский коллектив:
Михаил Александрович Мамошин, Степан Владимирович Мокроусов-Гульельми, Алексей Олегович Кравченко, Диана Юрьевна Лисица

На январских заседаниях обсудили заказанный «Газпромом» памятник Петру I, а также жилой комплекс с «Берлинской стеной».

ЖК на Кубинской, 27.01.2021
Санкт-Петербург, Кубинская улица, дом 82
Проектировщик: ООО «Проектная культура»
Заказчик: ООО «СЗ «РСТИ-Нова»

Обсуждали: архитектурно-градостроительный облик

Кубинская улица, как выразился Александр Зюзин, застраивается «изнутри наружу» – пока многочисленные жилые комплексы резво возводятся в глубине кварталов, уличный фронт все еще формируют склады и производственные здания. Жилой комплекс «Проектной культуры» первым выйдет на Кубинскую, что подразумевает определенные сложности: и без того узкий участок «прижат» нормативными зонами соседних комплексов, к тому же ему суждено играть роль доминанты, которая оформит угол со 2-м Предпортовым проездом и будет встречать при съезде с развязки Пулковского шоссе и Дунайского проспекта.



Комплекс разновысотный, что для жилья подобного класса редкость. Роль акцента выполняют три 18-этажные башни – это максимально допустимая высота на данном участке. Вдоль Кубинской протянутся две г-образные секции с высотой в 12 и 16 этажей. Корпуса объединит стилобат, на котором располагаются игровые и спортивные площадки, сюда же выходит встроено-пристроенный детский сад на 100 детей.
Многоквартирный дом
Многоквартирный дом
© Проектная культура

Многие эксперты похвалили проект за генплан, силуэтность, пропорции и фасадные решения. Сергей Орешкин также отметил дифференциацию оконных проемов и типов квартир. «Все в единой стилистике при достаточном разнообразии», – отметил Никита Явейн.

Семен Михайловский назвал комплекс «абсолютно прагматичным, девелоперским, не блещущим решениями, но приемлемым». Больше всего авторов «кошмарили», по выражению Феликса Буянова, за длинную глухую стену, соединяющую корпуса вдоль Кубинской улицы – за ней располагается полузаглубленный паркинг. Никита Явейн предложил сделать хотя бы один магазин в центре этой стены, что дало бы ощущение жилой улицы, а иначе возникает не просто скучная, а «неконтролируемая зона». Владимир Григорьев поддержал: нужно что-то более изысканное, например, вертикальное озеленение, или прозрачная стена, через которую видны машины и подсветка. В конце концов будут хороши уже скамейки – стена «теплая», люди будут сидеть и греться.
Многоквартирный дом © Проектная культура
Многоквартирный дом
© Проектная культура
Многоквартирный дом © Проектная культура
Многоквартирный дом
© Проектная культура
Многоквартирный дом © Проектная культура
Многоквартирный дом
© Проектная культура
Многоквартирный дом © Проектная культура
Многоквартирный дом
© Проектная культура

Эмоциональнее других выступил Евгений Герасимов: «Улица Кубинская – не самая видная, но нужно уважать и улицу, и людей на ней. Нужно заглублять паркинг, делать фронт обслуживания. Иначе получится грязный забор с граффити, в котором нет никакого шарма. Нынешнее решение – ради экономии денег заказчика».

Владимира Линова и Владимира Аврутина также заинтересовал «собачий хвостик» – длинная и узкая зеленая зона, которая могла бы иметь какой-то смысл – быть бульваром, например. По словам авторов, это остатки подъездных железнодорожных путей, и все, что с ними можно сделать – это засеять газоном.

Владимир Григорьев отметил человеческий масштаб комплекса и в целом поддержал его.
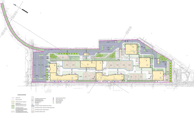
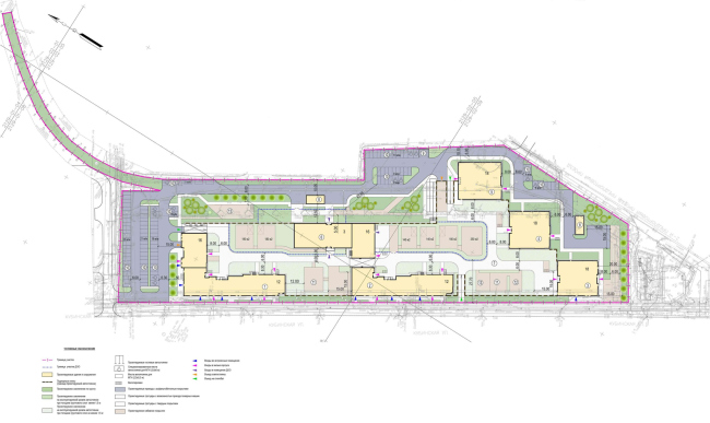
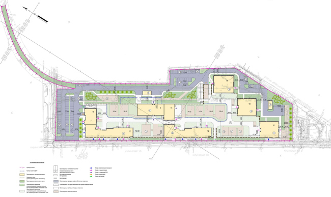
Генплан. Многоквартирный дом
Генплан. Многоквартирный дом
© Проектная культура
Фасад северо-восточный. Многоквартирный дом
Фасад северо-восточный. Многоквартирный дом
© Проектная культура
Северо-западный и юго-восточный фасады. Многоквартирный дом
Северо-западный и юго-восточный фасады. Многоквартирный дом
© Проектная культура
Петр I, спасающий утопающих близ Лахты, 20.01.2021
Авторский коллектив: архитектор Михаил Мамошин, скульптор Степан Мокроусов-Гульельми, идеолог проекта Алексей Кравченко, архитектор Диана Лисица
Инициатор: Фонд поддержки социальных инициатив Газпрома
Обсуждали: эскизный проект


Памятник Петру I рядом с «Лахта-центром» обсуждали во второй раз. Новый вариант выглядит куда более лаконично: клумбы и зеленая «кулиса» как «модные молодежные современности» исчезли полностью, вместо них появились монументальные гранитные скамьи. Доработанный пьедестал по словам Михаила Мамошина теперь «сочетается с геометрией второй очереди «Лахта-цетра».
Вид со стороны города. Памятный знак «Петр I, спасающий утопающих близ Лахты». Второй вариант
Вид со стороны города. Памятный знак «Петр I, спасающий утопающих близ Лахты». Второй вариант
© Архитектурно-проектный центр Мамошина
Проект памятника Петру I, спасающему утопающих близ Лахты. Первый вариант
Проект памятника Петру I, спасающему утопающих близ Лахты. Первый вариант
Авторский коллектив: Михаил Мамошин, Степан Мокроусов-Гульельми, Алексей Кравченко, Диана Лисица

Начатая в прошлый раз дискуссия по поводу «позитивности» Петра, который в оригинальном варианте Леопольда Бернштама был совсем не позитивным, продолжилась и в этот раз. После вопросов Евгения Герасимова удалось уточнить, что скульптура не является копией, скорее это «работа по мотивам», поскольку для достоверного воссоздания не хватает иконографических материалов, а намерение изменить общее настроение работы, судя по всему, сохранилось.

Евгений Герасимов посчитал «поделку по мотивам Бернштама в такой редакции невозможной по идеологическим и этическим причинам» и предложил оставить Бернштама в покое и делать авторскую скульптуру. Михаил Сарри напомнил, что есть сотни интерпретаций «Евгения Онегина» или «Анны Карениной», и предположил, что 90% населения все равно не знает, кто такой Бернштам. Никита Явейн призвал не изобретать велосипед, поскольку «вся современная культура – это наполовину парафразы исторических тем».

Александр Карпов в связи с обсуждением вспомнил рассказ Хорхе Луи Борхеса «Пьер Менар, автор «Дон Кихота», «где подробно разобрана эта коллизия – можно ли через 100 или 200 лет повторить авторский замысел». И подытожил: «Нет ощущения, что идея памятника кристаллизовалась до конца. Мысль в том, что люди «Газпрому» не нужны. Ставится знак – на него можно смотреть из окон машины, этого достаточно. Таким образом, площадка – это лишнее. Памятник ничего не потеряет, если будет стоять в воде, прямо в лагуне. Но как человеколюбец я предложил бы вернуть зелень и сделать соединительный проход, транзит, чтобы люди ходили».
Вид со стороны МФК Лахта Центра. Памятный знак «Петр I, спасающий утопающих близ Лахты». Второй вариант
Вид со стороны МФК Лахта Центра. Памятный знак «Петр I, спасающий утопающих близ Лахты». Второй вариант
© Архитектурно-проектный центр Мамошина
Проект памятника Петру I, спасающему утопающих близ Лахты. Первый вариант
Проект памятника Петру I, спасающему утопающих близ Лахты. Первый вариант
Авторский коллектив: Михаил Мамошин, Степан Мокроусов-Гульельми, Алексей Кравченко, Диана Лисица

Сергей Орешкин предложил оставить этические вопросы на усмотрение скульпторов, а вместо этого обсуждать градостроительство: с его точки зрения выбор места для памятника разумен. Владимир Линов поддержал, но высказал парадоксальную позицию: «Чем хуже скульптура сейчас, тем лучше в будущем: она не будет являться охраняемым объектом, эстетические взгляды изменятся, а постамент удачен для размещения современного абстрактного объекта. Может возникнуть хорошая композиция. Идеологически согласен – безобразие. Я бы проект одобрил».
Вид со стороны области. Памятный знак «Петр I, спасающий утопающих близ Лахты» © Архитектурно-проектный центр Мамошина
Вид со стороны области. Памятный знак «Петр I, спасающий утопающих близ Лахты»
© Архитектурно-проектный центр Мамошина
Вид со стороны 
Приморского шоссе. Памятный знак «Петр I, спасающий утопающих близ Лахты» © Архитектурно-проектный центр Мамошина
Вид со стороны Приморского шоссе. Памятный знак «Петр I, спасающий утопающих близ Лахты»
© Архитектурно-проектный центр Мамошина
Вид со стороны 
Приморского шоссе. Восточная набережная.  Памятный знак «Петр I, спасающий утопающих близ Лахты» © Архитектурно-проектный центр Мамошина
Вид со стороны Приморского шоссе. Восточная набережная. Памятный знак «Петр I, спасающий утопающих близ Лахты»
© Архитектурно-проектный центр Мамошина
Фасадные решения скульптурной композиции. Памятный знак «Петр I, спасающий утопающих близ Лахты» © Архитектурно-проектный центр Мамошина
Фасадные решения скульптурной композиции. Памятный знак «Петр I, спасающий утопающих близ Лахты»
© Архитектурно-проектный центр Мамошина

Семен Михайловский назвал место, на котором стоит памятник, «пустой коленкой» и задался вопросом, что за люди будут приходить сюда и с какой целью? Владимир Григорьев предположил, что это будут сотрудники «Газпрома» и вспомнил Шемякинских сфинксов, которые «очень одиноко себя чувствуют». К концу обсуждения Семен Михайловский смирился: «Сначала я горячился, а сейчас уже спокойно смотрю – ну черт с ним. Это абсурд нашей современной жизни. Я не против».

Открыть памятник планируют в 2024 году.