Размещено на портале Архи.ру (www.archi.ru)

27.05.2020

Электрические колонны

Дарья Горелова
Объект:
Клубный дом «Кутузовский XII»
Адрес:
Россия, Москва. Кутузовский проспект, 12
Мастерская:
Argentum Innovation Group (AIG)
HILTI
Цимайло Ляшенко и Партнеры
Авторский коллектив:
Руководители авторского коллектива: Александр Цимайло, Николай Ляшенко; главные архитекторы проекта: Павел Тютюнник, Антон Путилов, Алексей Шкудов; архитекторы: Татьяна Душина, Станислав Каптур, Наиля Латыпова, Кристина Никитина, Иван Пашкевич, Всеволод Хаблиев, Александра Якушенко; генпланист: Ольга Насырова

Новый дом на Кутузовском по-своему интерпретирует как классицистический контекст места, так и присущий проспекту премиальный статус. В то же время он смел: таких колонн – стеклянных, светящихся в ночи трубок, в Москве еще не было. Пластические высказывание получилось сильным и бескомпромиссным, буквально на грани между декоративностью «Украины» и хай-теком Сити.

Клубный дом «Кутузовский, 12» построен в начале проспекта, если ехать от центра – справа, вскоре после гостиницы «Украина». Красную линию здесь удерживают два дома, фланкирующие новостройку: они построены вскоре после смерти Сталина, в момент прокладки этой части проспекта – так что верны классическим пропорциям, но уже затронуты редуцированием фасадного декора. Элитный дом, спроектированный и реализованный архитектурным бюро Цимайло и Ляшенко, заполняет лакуну в строе улицы, но существенно отступает от красной линии в глубину участка, прямо до границы территории Бадаевского пивзавода, о котором так много говорилось в прошедшем году. Девелопер у Бадаевского и «Кутузовского, 12» один – Capital Group.

Местоположение. ЖК «Кутузовский XII»
Местоположение. ЖК «Кутузовский XII»
© Цимайло Ляшенко и Партнеры
Генеральный план. ЖК «Кутузовский XII»
Генеральный план. ЖК «Кутузовский XII»
© Цимайло Ляшенко и Партнеры
Главный фасад. ЖК «Кутузовский XII»
Главный фасад. ЖК «Кутузовский XII»
© Цимайло Ляшенко и Партнеры

Застройка Кутузовского вообще здесь устроена так: много кварталов, выходящих на красные линии, не то чтобы строгих и стройных, но равномерных, – и несколько лакун, где здания отступают к набережной Тараса Шевченко, оставляя перед собой скверы: одно из них английская школа №1232, другое башня «Багратион», а третьим стал клубный дом (архитекторы упоминают еще поликлинику Управделами, итого четыре здания, но ее градостроительное значение несколько меньше).
Концепция. ЖК «Кутузовский XII»
Концепция. ЖК «Кутузовский XII»
© Цимайло Ляшенко и Партнеры

Изначально, с учетом всех ограничений, на участке по Кутузовскому проспекту, 12 вырисовывался объем чуть меньшей высоты, вровень с 10-этажными соседями, большей ширины и толщины, то есть несколько кургузый. Архитекторы «собрали» разрешенную плотность в 13-этажную пластину и отодвинули ее к самому дальнему краю.
Формообразование. ЖК «Кутузовский XII»
Формообразование. ЖК «Кутузовский XII»
© Цимайло Ляшенко и Партнеры

Как результат – вдоль фасада открылся вид на башню гостиницы «Украина».
Клубный дом «Кутузовский, XII»
Клубный дом «Кутузовский, XII»
Фотография © Илья Иванов / Цимайло Ляшенко и Партнеры

Таким образом при восприятии с проспекта, благодаря перспективному искажению, дом встраивается в общую линию, хотя сквер-курдонер с магазинчиком Ламборджини придает ему несколько дворцовый вид: как будто по бокам крылья, а внутри, за деревьями, – там и есть настоящий дворец.

На самом деле так и есть. Дом выглядит как дворец хотя бы в том смысле, что, в отличие от соседей, он покрыт не штукатуркой и не пестрой ненадежной керамической плиткой – сталинские дворцы при всем желании редко могли позволить себе большее, – а недешевым плотным известняком контекстуально-бежевого, но чуть более прохладного оттенка, что в свою очередь обеспечивает некоторую степень аристократической дистанцированности дорогого жилья от старой советской элитки. Заметим, что в какой-то момент планировался темно-фиолетовый камень.
ЖК «Кутузовский XII». Проект 2016 г. © Цимайло Ляшенко и Партнеры
ЖК «Кутузовский XII». Проект 2016 г.
© Цимайло Ляшенко и Партнеры
ЖК «Кутузовский XII». Проект 2016 г. © Цимайло Ляшенко и Партнеры
ЖК «Кутузовский XII». Проект 2016 г.
© Цимайло Ляшенко и Партнеры
ЖК «Кутузовский XII». Проект 2016 г. © Цимайло Ляшенко и Партнеры
ЖК «Кутузовский XII». Проект 2016 г.
© Цимайло Ляшенко и Партнеры
ЖК «Кутузовский XII». Проект 2016 г. © Цимайло Ляшенко и Партнеры
ЖК «Кутузовский XII». Проект 2016 г.
© Цимайло Ляшенко и Партнеры
ЖК «Кутузовский XII». Проект 2016 г. © Цимайло Ляшенко и Партнеры
ЖК «Кутузовский XII». Проект 2016 г.
© Цимайло Ляшенко и Партнеры
ЖК «Кутузовский XII». Проект 2016 г. © Цимайло Ляшенко и Партнеры
ЖК «Кутузовский XII». Проект 2016 г.
© Цимайло Ляшенко и Партнеры

В боковых и верхних простенках камень позволил создать декоративную «раму». Ее структура похожа на плетение ткани и напоминает как о пластике рельефов Кутузовки, среди которых есть, например, богатые волны лепных снопов на доме 23, – так и об опытах европейского ар-деко, нередко менее фигуративных и более орнаментальных, чем простодушная скульптура сталинских 1940-х. Так или иначе, а равномерный рисунок треугольных выступов обогащает поверхность и останавливает взгляд.
Клубный дом «Кутузовский, XII»
Клубный дом «Кутузовский, XII»
Фотография © Илья Иванов / Цимайло Ляшенко и Партнеры

Но главный признак дворца – конечно же, колонны. Архитекторы с достойной уважения тщательностью посчитали примеры проявления ордера на этой стороне проспекта аж до Третьего кольца, подчеркивая тем самым, что колонны уместны как проявление контекста.
Концепция. ЖК «Кутузовский XII»
Концепция. ЖК «Кутузовский XII»
© Цимайло Ляшенко и Партнеры

Но как ни считай, а в доме Цимайло и Ляшенко колонн больше всех. Никакая классика не облепляла дом колоннами так обильно. Кроме того они не совсем колонны, нет ни баз ни капителей, не говоря уже о фризе и тем более фронтоне – скорее это стеклянные трубки, дерзко прошивающие фасад сквозь выступы межэтажных плашек снизу доверху. Лично мне они напомнили трубки пневмопочты и обнаженные внутренности центра Помпиду, деконструкцию и хайтек – последнее логично при соседстве со стеклянным Сити, хорошо видным со стороны, противоположной гостинице «Украина». [UPD: читатели подсказали отличную аналогию, а может быть даже и прототип – колонну Алексея Козыря, инсталляцию на Арх Москве]
ЖК «Кутузовский XII»
ЖК «Кутузовский XII»
Фотография © Илья Иванов / Цимайло Ляшенко и Партнеры

В какой-то момент думаешь – да никакие это не колонны. Колонна, даже в не слишком правдивой традиции античного Рима и итальянского Ренессанса, в любом случае – элемент тектоники, она что-то несет и как правило понятно, что. Эти ничего не несут, а неконтролируемо размножаются вдоль фасадов, заставляя предположить в общем замысле интонации постмодернизма. В принципе их можно понять как вариант лопаток на многоэтажках ар-деко, только лопатки обособились от плокости и вернули себе исходную круглую в сечении форму.
Клубный дом «Кутузовский, XII»
Клубный дом «Кутузовский, XII»
Фотография © Илья Иванов / Цимайло Ляшенко и Партнеры

И в то же время череда колонн и межэтажных фризов сродни аркадам ренессансных дворов, пространству по определению внутреннему. А мы видим, что дом стоит внутри, в глубине квартала и обрамляет собой двор-сквер. Но если и так, это жёсткий вариант такого двора, спроекцированный на «железный» XXI век.
ЖК «Кутузовский XII»
ЖК «Кутузовский XII»
Фотография © Александр Цимайло

Колонны светятся. Они отбрасывают рисунок лучей света на стены и фризы, отчетливо деля все этажи и проявляя рельеф каменных выступов. Фасад светится на всю катушку, с неимоверной силой, я бы даже сказала, самоотдачей. Эффект гипериллюминации неожиданный и довольно феерический.
ЖК «Кутузовский XII»
ЖК «Кутузовский XII»
Фотография © Илья Иванов / Цимайло Ляшенко и Партнеры

Мы, конечно, привыкли к окнам домов в ночи и к подсветке, которая в недавние годы силами главного архитектора Москвы приобрела в городе классические приоритеты, подчеркивая горизонтали карнизов и вертикали на стенах даже там, где их нет. Этому дому подсветка не нужна, он все решает сам: не только создает регулярную сетку вертикалей и горизонталей, но и щедро «делится» светом с городом. В общем-то он сам как огромный фонарь. Что заставляет думать о «колоннах» скорее как о световых трубках.
ЖК «Кутузовский XII» Фотография © Илья Иванов / Цимайло Ляшенко и Партнеры
ЖК «Кутузовский XII»
Фотография © Илья Иванов / Цимайло Ляшенко и Партнеры
Клубный дом «Кутузовский, XII» Фотография © Илья Иванов / Цимайло Ляшенко и Партнеры
Клубный дом «Кутузовский, XII»
Фотография © Илья Иванов / Цимайло Ляшенко и Партнеры
ЖК «Кутузовский XII» Фотография © Илья Иванов / Цимайло Ляшенко и Партнеры
ЖК «Кутузовский XII»
Фотография © Илья Иванов / Цимайло Ляшенко и Партнеры

И между тем они все-таки колонны, поскольку, утратив такие первичные признаки как база и капитель, сохранили ряд вторичных – прежде всего каннелюры, которые решены здесь интересным образом. Внутри колонны – несущая металлическая трубка, вокруг нее звездообразно, с семью лучами, уложен гнутый металл – в терминологии авторов проекта отражатель, он формирует подсветку, из-за него свет не ровный, а лучистый. На него надеты обручи золотистого металла, которые держат цилиндры моллированного стекла, по три штуки на этаж. На стекло нанесены полоски, которые усиливают эффект каннелюр и лучистость света.
Схема колонн. Клубный дом «Кутузовский, XII»
Схема колонн. Клубный дом «Кутузовский, XII»
© Цимайло Ляшенко и Партнеры

С каннелюрами понятно, но золотые обручи, входящие в резонанс с золотыми же решетками балконов, работают не только на обозначение дороговизны и премиального статуса дома и похожи не только на пальцы, унизанные кольцами.
ЖК «Кутузовский XII»
ЖК «Кутузовский XII»
Фотография © Илья Иванов / Цимайло Ляшенко и Партнеры

Они также удерживают в нашем сознании классическую идею, напоминая бронзовые и железные обручи креплений на античных колоннах. Одним из видов архитектурной драгоценности в античности была колонна из ценного камня – их дарили храмам поштучно, ими, конечно же, украшали дома, и тот кто не мог оценить пропорции портика, безусловно не оставался глух к ценности материала, из которого сделан ствол. «Хрустальные» колонны, наполненные восторгом перед электрическим светом, не утраченным нашей цивилизацией за прошедшие 150 лет, – сродни драгоценной колонне, только в новом, так и скажем, свете.
ЖК «Кутузовский XII» Фотография © Александр Цимайло
ЖК «Кутузовский XII»
Фотография © Александр Цимайло
ЖК «Кутузовский XII» Фотография © Илья Иванов / Цимайло Ляшенко и Партнеры
ЖК «Кутузовский XII»
Фотография © Илья Иванов / Цимайло Ляшенко и Партнеры
ЖК «Кутузовский XII» Фотография © Илья Иванов / Цимайло Ляшенко и Партнеры
ЖК «Кутузовский XII»
Фотография © Илья Иванов / Цимайло Ляшенко и Партнеры
ЖК «Кутузовский XII» Фотография © Илья Иванов / Цимайло Ляшенко и Партнеры
ЖК «Кутузовский XII»
Фотография © Илья Иванов / Цимайло Ляшенко и Партнеры
ЖК «Кутузовский XII» Фотография © Илья Иванов / Цимайло Ляшенко и Партнеры
ЖК «Кутузовский XII»
Фотография © Илья Иванов / Цимайло Ляшенко и Партнеры
ЖК «Кутузовский XII» Фотография © Илья Иванов / Цимайло Ляшенко и Партнеры
ЖК «Кутузовский XII»
Фотография © Илья Иванов / Цимайло Ляшенко и Партнеры
ЖК «Кутузовский XII» Фотография © Илья Иванов / Цимайло Ляшенко и Партнеры
ЖК «Кутузовский XII»
Фотография © Илья Иванов / Цимайло Ляшенко и Партнеры
ЖК «Кутузовский XII» Фотография © Илья Иванов / Цимайло Ляшенко и Партнеры
ЖК «Кутузовский XII»
Фотография © Илья Иванов / Цимайло Ляшенко и Партнеры
ЖК «Кутузовский XII» Фотография © Илья Иванов / Цимайло Ляшенко и Партнеры
ЖК «Кутузовский XII»
Фотография © Илья Иванов / Цимайло Ляшенко и Партнеры
ЖК «Кутузовский XII» Фотография © Илья Иванов / Цимайло Ляшенко и Партнеры
ЖК «Кутузовский XII»
Фотография © Илья Иванов / Цимайло Ляшенко и Партнеры
ЖК «Кутузовский XII» Фотография © Илья Иванов / Цимайло Ляшенко и Партнеры
ЖК «Кутузовский XII»
Фотография © Илья Иванов / Цимайло Ляшенко и Партнеры
Клубный дом «Кутузовский, XII» Фотография © Илья Иванов / AGC
Клубный дом «Кутузовский, XII»
Фотография © Илья Иванов / AGC
ЖК «Кутузовский XII» Фотография © Илья Иванов / Цимайло Ляшенко и Партнеры
ЖК «Кутузовский XII»
Фотография © Илья Иванов / Цимайло Ляшенко и Партнеры
ЖК «Кутузовский XII» Фотография © Александр Цимайло
ЖК «Кутузовский XII»
Фотография © Александр Цимайло
Клубный дом «Кутузовский, XII» Фотография © Илья Иванов / Цимайло Ляшенко и Партнеры
Клубный дом «Кутузовский, XII»
Фотография © Илья Иванов / Цимайло Ляшенко и Партнеры

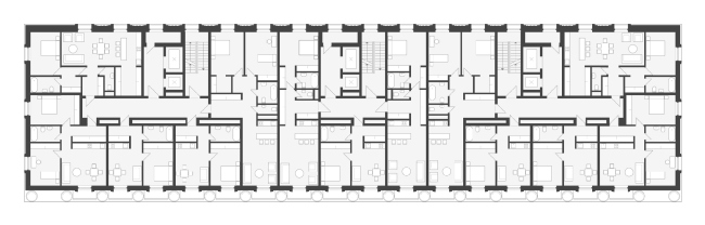
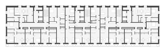
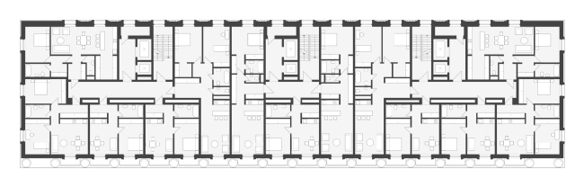
Дом трехсекционный, входы – с тыльной стороны, от Бадаевского. Квартиры начинаются со 2 этажа, их площадь растет к верхним этажам; большинство квартир сквозные, но самые маленькие обращены целиком к южному фасаду, как полагается. Дом рекламируют как меняющий отношение к квартирографии, по словам риелторского сайта, он «располагает не квартирами, а пространствами». Здесь как минимум есть двухъярусные пентхаусы и возможность объединиять квартиры на этаже вплоть до «семейной резиденции», которая займет весь этаж. Цены порядка 700 000 рублей за м2. И, что в наше время удивительно, сообщается, большинство квартир уже продано.
План типового этажа. ЖК «Кутузовский XII»
План типового этажа. ЖК «Кутузовский XII»
© Цимайло Ляшенко и Партнеры