Размещено на портале Архи.ру (www.archi.ru)

30.03.2020

Жилье с поддержкой

Нина Фролова
Объект:
Комплекс доступного жилья с социальной поддержкой MLK1101
Адрес:
США, None, Лос-Анджелес.
Мастерская:
LOHA

Комплекс MLK1101 в Лос-Анджелесе по проекту Lorcan O’Herlihy Architects – это жилье для бездомных ветеранов вооруженных сил, «хронических» бездомных и семей без места жительства.

Калифорния известна своим качественным социальным жильем, в том числе предназначенным для самых незащищенных и неблагополучных граждан. Мы публиковали большое интервью специалиста по таким проектам в Сан-Франциско Дэвида Бейкера, а также сочетающие продуманность, привлекательность и экологичность отдельные сооружения – например, здесь и здесь.
 

Комплекс доступного жилья с социальной поддержкой MLK1101
Комплекс доступного жилья с социальной поддержкой MLK1101
Фото © Paul Vu

Лос-анджелесское бюро Lorcan O’Herlihy Architects, или LOHA, тоже занимается такими проектами, которые дожны быть не просто удобным жильем, но включать в себя «социальную поддержку», помогающую обитателям пережить сложные периоды, которые у них нередко бывают. Речь идет об инклюзивном, борющимся с изоляцией дизайне, рассчитанном на контакт жильцов между собой, визуальную связь всех квартир с окружающей средой, безопасность – не только реальную, но и психологическую. В округе Лос-Анджелес сейчас более 58 тысяч бездомных при населении в 10 миллионов, и число это только растет. Среди них значительную часть составляют бывшие военнослужащие, «хронические» бездомные, а также семьи с низким доходом – последние оказываются на улице из-за высокой арендной платы, характерной для Калифорнии.
 
Комплекс доступного жилья с социальной поддержкой MLK1101
Комплекс доступного жилья с социальной поддержкой MLK1101
Фото © Paul Vu

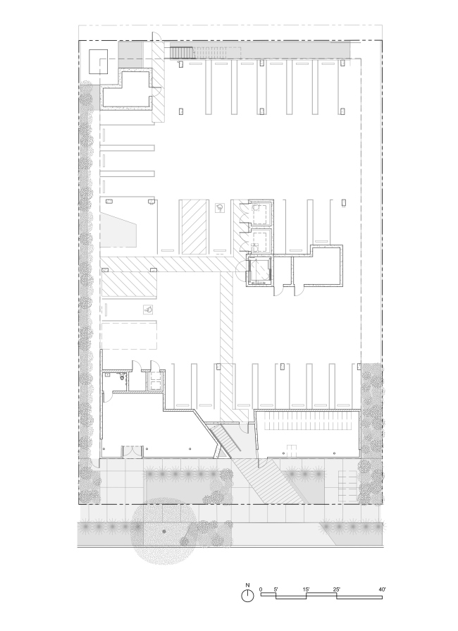
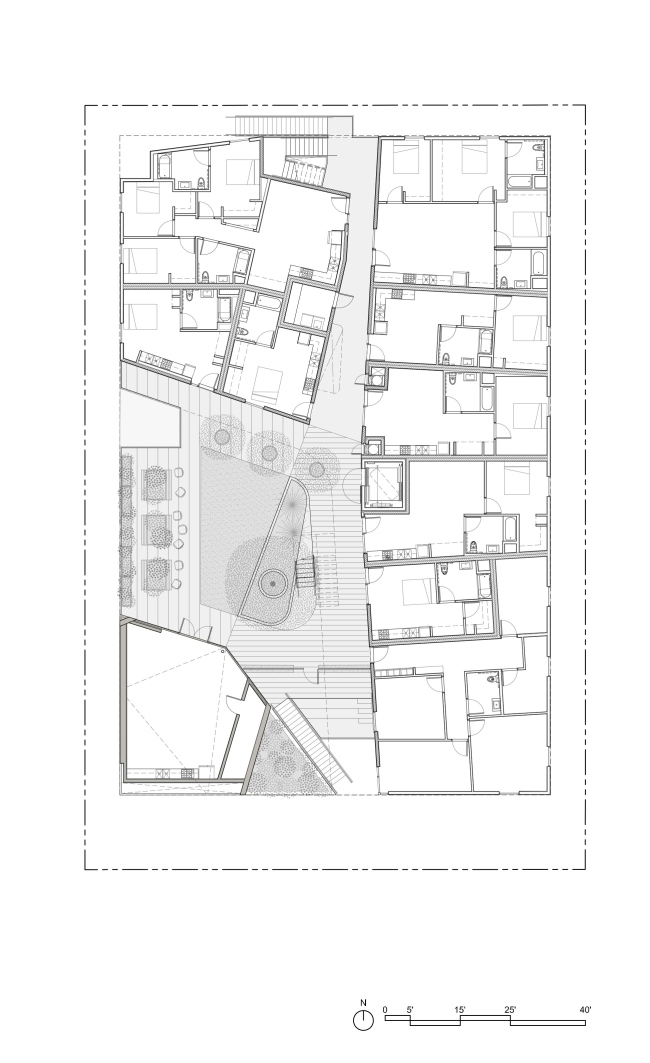
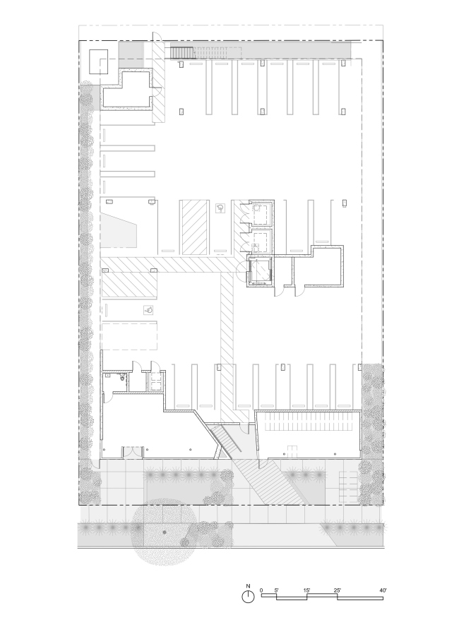
Пустырь на бульваре Мартина Лютера Кинга (аббревиатура адреса дала название жилому комплексу – MLK1101) силами архитекторов LOHA и занимающегося социальными проектами девелопера Clifford Beers Housing превращен в жилой комплекс на 26 квартир размером от одной до трех спален.
 
Комплекс доступного жилья с социальной поддержкой MLK1101
Комплекс доступного жилья с социальной поддержкой MLK1101
Фото © Paul Vu

Общая площадь ЖК – 3160 м2, дополнительные 370 м2 – гараж на первом этаже. На его крыше устроен двор-сад с не требующими особого полива растениями и огородными грядками. Там можно отдохнуть и пообщаться с соседями, как и на выходящих туда галереях с дверями квартир: эти галереи варьируются по ширине именно с этой целью, чтобы хотелось остановиться и поболтать.



Психологически и акустически двор защищен от улицы «общественной» комнатой с кухней и обеденными зонами. Там можно проводить уроки кулинарии, обеды в складчину, групповую психотерапию и любые другие собрания и мероприятия. Она обращена на улицу, с уровня которой туда ведет лестница – еще одно место отдыха и общения жителей этого и соседних домов.
Комплекс доступного жилья с социальной поддержкой MLK1101
Комплекс доступного жилья с социальной поддержкой MLK1101
Фото © Paul Vu

Со стороны города гараж скрыт не только за этой лестницей, но и за двумя магазинами: доход от этих коммерческих площадей частично оплатил проект, также они служат для профессиональной подготовки жильцов, которая помогает им вернуться к нормальной жизни.
Комплекс доступного жилья с социальной поддержкой MLK1101
Комплекс доступного жилья с социальной поддержкой MLK1101
Фото © Paul Vu

Проект получил «золотой» сертификат LEED благодаря серии пассивных и активных компонентов. Г-образный план обеспечил сквозное проветривание и естественное освещение. Также имеются высокоэффективные система отопления и охлаждения помещений, бытовые приборы и выключатели, солнечные коллекторы для нагрева воды и т.д.
Комплекс доступного жилья с социальной поддержкой MLK1101
Комплекс доступного жилья с социальной поддержкой MLK1101
Фото © Paul Vu
Комплекс доступного жилья с социальной поддержкой MLK1101
Комплекс доступного жилья с социальной поддержкой MLK1101
Фото © Paul Vu
Комплекс доступного жилья с социальной поддержкой MLK1101
Комплекс доступного жилья с социальной поддержкой MLK1101
Фото © Paul Vu
Комплекс доступного жилья с социальной поддержкой MLK1101
Комплекс доступного жилья с социальной поддержкой MLK1101
Фото © Paul Vu
Комплекс доступного жилья с социальной поддержкой MLK1101
Комплекс доступного жилья с социальной поддержкой MLK1101
Фото © Paul Vu
Комплекс доступного жилья с социальной поддержкой MLK1101
Комплекс доступного жилья с социальной поддержкой MLK1101
© Lorcan O’Herlihy Architects
Комплекс доступного жилья с социальной поддержкой MLK1101
Комплекс доступного жилья с социальной поддержкой MLK1101
© Lorcan O’Herlihy Architects
Комплекс доступного жилья с социальной поддержкой MLK1101
Комплекс доступного жилья с социальной поддержкой MLK1101
© Lorcan O’Herlihy Architects
Комплекс доступного жилья с социальной поддержкой MLK1101
Комплекс доступного жилья с социальной поддержкой MLK1101
© Lorcan O’Herlihy Architects
Комплекс доступного жилья с социальной поддержкой MLK1101
Комплекс доступного жилья с социальной поддержкой MLK1101
© Lorcan O’Herlihy Architects
Комплекс доступного жилья с социальной поддержкой MLK1101
Комплекс доступного жилья с социальной поддержкой MLK1101
© Lorcan O’Herlihy Architects
Комплекс доступного жилья с социальной поддержкой MLK1101
Комплекс доступного жилья с социальной поддержкой MLK1101
© Lorcan O’Herlihy Architects
Комплекс доступного жилья с социальной поддержкой MLK1101
Комплекс доступного жилья с социальной поддержкой MLK1101
© Lorcan O’Herlihy Architects