Размещено на портале Архи.ру (www.archi.ru)

12.04.2019

Тени капителей

Алёна Кузнецова
Объект:
Дом нового формата
Адрес:
Россия, Московская обл.,, гольф-клуб Пирогово
Архитектор:
Илья Гринберг
Мастерская:
АБ Гринберг

Деревянный модульный дом для курорта «ПИРогово», который сочетает стилизованные элементы традиционного зодчества и классической архитектуры.

Дом нового формата
Дом нового формата
Фотография © Илья Иванов / предоставлена ILYA GRINBERG

Модульный дом студии Ильи Самсонова победил в закрытом конкурсе, который проводил подмосковный курорт «ПИРогово» в 2017 году. Проект молодого архитектора обошел предложения Тотана Кузембаева и Эрика ван Эгерата, уже реализован и, таким образом, вписан в ряд других архитектурных достопримечательностей места: в «ПИРогово» строили также Александр Бродский, Евгений Асс, Николай Лызлов, Владимир Плоткин.
Дом нового формата. Вид с птичьего полета
Дом нового формата. Вид с птичьего полета
© ILYA GRINBERG
Дом нового формата
Дом нового формата
Фотография © Илья Иванов / предоставлена ILYA GRINBERG

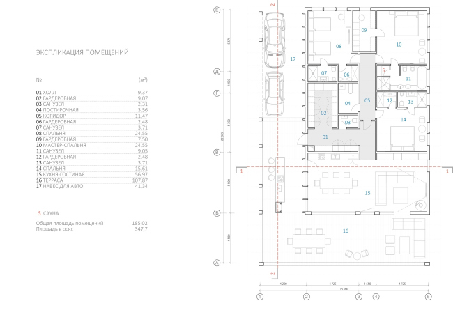
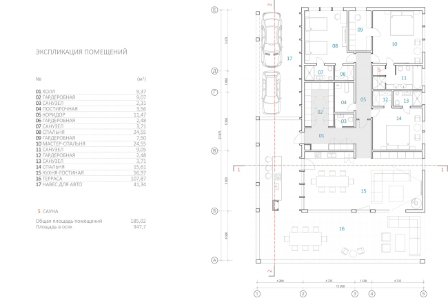
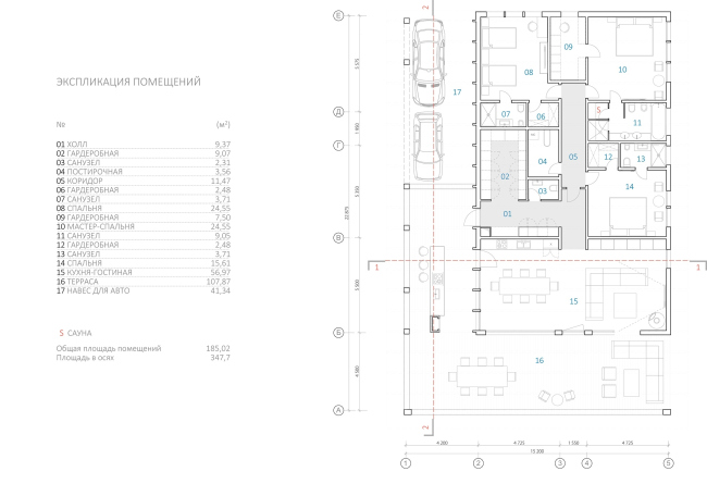
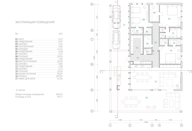
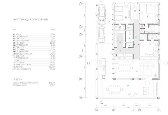
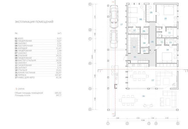
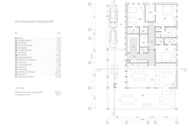
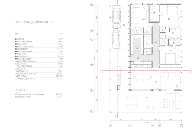
Дом одноэтажный, на три спальни, площадь его – приличных 185 м2, еще 108 приходится на просторную террасу, образованную выносом кровли и ее скатами. Модули делали в эллинге прямо на территории курорта, поскольку не смогли найти завод подходящего уровня, зато делали максимально большими, так как транспортировка не требовалась. Технологию пришлось сочинять и испытывать на ходу.
Дом нового формата
Дом нового формата
Фотография © Илья Иванов / предоставлена ILYA GRINBERG

Дом состоит из лаконичного объема жилого «короба» и приставленной к нему углом террасы, все вместе накрывает двускатная крыша с широким разлетом и «причелиной», которая опускается довольно низко и переходит в коренастые опоры-пилоны. Терраса делится на зону для парковки машин – в этой части фасад сделан глухим, и зону отдыха, «веранду», где фасад остеклен наиболее щедро, впуская внутрь дома красоту окружающего леса и воды.
Дом нового формата
Дом нового формата
Фотография © Илья Иванов / предоставлена ILYA GRINBERG
Дом нового формата
Дом нового формата
Фотография © Илья Иванов / предоставлена ILYA GRINBERG
Дом нового формата
Дом нового формата
Фотография © Илья Иванов / предоставлена ILYA GRINBERG

Необычность, которая, возможно и стала «пропуском» в «ПИРогово» – в деталях. На первый взгляд кажется, что дом – это больше интерпретация традиционного деревянного: читается стилизованная причелина, слеги, на месте двускатная крыша стропильной системы и водоточник. На одном из эскизов архитекторы даже вынесли на веранду кухонный модуль, очень похожий на русскую печку. Который, кажется, при реализации все же трансформировалась в более современный гриль-очаг.
Дом нового формата. Фасады
Дом нового формата. Фасады
© ILYA GRINBERG
Дом нового формата
Дом нового формата
Фотография © Илья Иванов / предоставлена ILYA GRINBERG

Но если чуть сместить фокус, на фасадах обнаружатся намеки на «городские» элементы: в чередовании узких и более широких реек, в горизонтальной и вертикальной укладке читаются пилястры, карнизы и капители. Опоры тут же становятся колоннами, потолок веранды оказывается кессонированным, а главному фасаду становится недалеко и до портика. Автор проекта Илья Самсонов рассказывает, что стремился создать «метафоры классических форм и игру недосказанности».
Дом нового формата
Дом нового формата
Фотография © Илья Иванов / предоставлена ILYA GRINBERG
Дом нового формата
Дом нового формата
Фотография © Илья Иванов / предоставлена ILYA GRINBERG
Дом нового формата
Дом нового формата
Фотография © Илья Иванов / предоставлена ILYA GRINBERG

Для студии Ильи Самсонова опыт создания модульного дома не первый. В 2016 году проект «Русский стиль» получил награду на «Зодчестве», а в планах у архитекторов запустить целый «магазин» – он-лайн платформу, на которой любой человек сможет заказать дом и через 90-120 дней он уже будет стоять на участке.
Дом нового формата
Дом нового формата
Фотография © Илья Иванов / предоставлена ILYA GRINBERG
Дом нового формата
Дом нового формата
Фотография © Илья Иванов / предоставлена ILYA GRINBERG
Дом нового формата. План
Дом нового формата. План
© ILYA GRINBERG
Дом нового формата. План
Дом нового формата. План
© ILYA GRINBERG
Дом нового формата. Рабочий план
Дом нового формата. Рабочий план
© ILYA GRINBERG
Дом нового формата. План этажа
Дом нового формата. План этажа
© ILYA GRINBERG
Дом нового формата. Ситуационный план
Дом нового формата. Ситуационный план
© ILYA GRINBERG