Размещено на портале Архи.ру (www.archi.ru)

04.02.2019

Геометрия интеграции

Алёна Кузнецова
Объект:
ЖК на ул. Прилукская
Адрес:
Россия, Санкт-Петербург. Прилукская ул., д. 28, лит. А
Архитектор:
Анатолий Столярчук
Мастерская:
АМ А.А. Столярчука
Авторский коллектив:
Архитекторы – А.А. Столярчук; Е.Е. Рубина; Д.А. Карагодин; А.В. Леднев

Проект жилого дома за Обводным каналом в Петербурге построен на поиске баланса между нормативами, контекстом и убежденностью в актуальности модернистской, лишенной признаков стилизаторства, архитектуры.

ЖК на ул. Прилукская
ЖК на ул. Прилукская
© Архитектурная мастерская А.А. Столярчука

Участок под застройку расположен в исторической части города, которая когда-то называлась Каретной, – неподалеку от Лиговского проспекта и станции метро Обводный канал, за домом 28 по Прилукской улице. В противоположном углу квартала возводится комплекс «Дом у каретного моста», также десятиэтажный, остальная застройка постарше – доходные дома начала века, хрущевка, складские и производственные корпуса, все они располагаются друг относительно друга сравнительно хаотично. Примерно такая же морфология присуща и соседним кварталам. Самый заметный в окружении – краснокирпичный Дворец культуры железнодорожников, признанный федеральным памятником, самая высокая – АТС, которая делит пространство напротив будущего жилого комплекса с безымянным сквером.
ЖК на ул. Прилукская. Ситуационный план
ЖК на ул. Прилукская. Ситуационный план
© Архитектурная мастерская А.А. Столярчука

Дом 1905 года постройки, который находится на участке и выходит на красную линию Прилукской улицы, – это корпус бывшей слюдяной фабрики, который с 2000-х годов занимали офисы. Здание планируют освободить от позднейших пристроек, затем ему подновят фасады, вернут двускатную крышу и приспособят под новую функцию – спортивную. Поскольку планировка не является предметом охраны, межэтажные перекрытия уберут совсем – получится три светлых и просторных зала для тренировок, а также все необходимые сопутствующие помещения, общей площадью около 500 м².
ЖК на ул. Прилукская. План реконструируемого корпуса
ЖК на ул. Прилукская. План реконструируемого корпуса
© Архитектурная мастерская А.А. Столярчука

Руководитель мастерской Анатолий Столярчук признается, что работа в исторической части Петербурга требует «ювелирного» подхода: чтобы интегрировать в сложившуюся ткань города новое здание, приходится учитывать множество нюансов и порой взаимоисключающих требований. В частности, архитектор рассказывает, что был бы рад выстроить новые жилые корпуса в одну линию, но этому помешали нормы инсоляции – первый этаж в таком случае не получает достаточно света. «Коэффициент сложности» увеличивают также пожарные нормы, логика проездов, необходимость уместить на участке достаточно открытых парковочных мест и детскую площадку. Кроме того, продолжает архитектор, ответить на требования заказчика с его готовой квартирографией и предложить при этом приемлемую архитектуру – все равно что пройти по лезвию ножа. Ситуация, которую архитекторы нередко сравнивают с математической задачей, головоломкой, пазлом.

«Уравнение» данного участка можно решить двумя способами: поставить корпус за историческим зданием перпендикулярно, либо параллельно Прилукской улице. Первый вариант мастерская отвергла, поскольку считает, что смотреть на уличный фронт «торцом» дому неправильно. Поэтому корпуса располагаются вдоль улицы и чуть в глубине участка. Это дает довольно много «воздуха» историческому зданию, скрадывает высоту новых корпусов, уводит их подальше от улицы с автомобилями, раскрывает больше окон на южную сторону. Таким образом, на красную линию в границах участка выходят лаконичный павильон въезда в подземный паркинг, исторический дом, трансформаторная подстанция и открытые парковочные места.
ЖК на ул. Прилукская. Генеральный план
ЖК на ул. Прилукская. Генеральный план
© Архитектурная мастерская А.А. Столярчука

Жилой комплекс после учета всех ограничений участка получился двухчастным. Секция за историческим домом узкая и принадлежит к редкой для России галерейной типологии – все квартиры в ней ориентированы на Прилукскую улицу, поскольку расположить окна в северной стене было невозможно из-за близкого расположения границы соседнего участка. Галерея поэтому получилась без окон, как коридор, а внешняя стена – по-ампирному лаконичной. Однако отсутствие окон позволило найти рядом со стеной дома место для детской площадки, поскольку при глухой стене не требуется соблюдать нормативный отступ 12 метров.
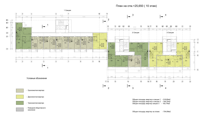
ЖК на ул. Прилукская. План на отм. +25.650
ЖК на ул. Прилукская. План на отм. +25.650
© Архитектурная мастерская А.А. Столярчука

Второй корпус, выдвинутый ближе к Прилукской улице, состоит из двух секций; он «толще», окна смотрят как на улицу, так и во двор. Его десятый верхний этаж полностью остеклен и отступает от края в глубину, образуя ряд пентхаусов – квартир чуть большей площади с террасами и видами на город. Отступающий верхний этаж выдвинутого вперед корпуса включен в тщательно просчитанную авторами перспективную игру, благодаря которой от перекрестка с Тамбовской улицей карнизы обоих корпусов нового дома выстраиваются практически в одну линию друг с другом и с карнизом псевдоампирного дома 1899 года на перекрестке. Актуальный паттерн фасада, объединяющий пары этажей по вертикали, также откликается на ритм окружающей застройки: четыре яруса визуально сдвоенных окон перекликаются с четырьмя этажами исторического дома (хотя заметим, что на развертке новый дом почти вдвое выше исторического «соседа»).
ЖК на ул. Прилукская
ЖК на ул. Прилукская
© Архитектурная мастерская А.А. Столярчука
ЖК на ул. Прилукская. Развертка
ЖК на ул. Прилукская. Развертка
© Архитектурная мастерская А.А. Столярчука

Фасады решены в едином ключе. В мастерской считают, что новая застройка обязана попасть в масштаб существующей, но придерживаются внутреннего запрета на работу «в стилях»: для того, чтобы увязать старое и новое на более глубинном уровне, архитекторы, по словам Анатолия Столярчука, используют ритм, пропорции и пластику.

Пластика построена на активной «слоистости» уличного фасада, которая помогает обыграть, а отчасти – смягчить ступеньку между корпусами. Группы лоджий в западной и восточной части образуют выступающие пластины фланкирующих объемы «ризалитов», лоджии в центральной части, ближе к месту стыковки зданий, расположены в изящном и регулярном шахматном порядке – для того, чтобы избежать «набивших оскомину стеклянных градусников».

Все лоджии отчеркнуты тонкими вертикалями – визуальный прием, напоминающий о щелях проветривания, но призванный придать фасаду больше стройности, подчеркнуть его «тонкокостность». Полоски на «шахматных» эркерах регулярны, а на ризалитах чередуются, располагаясь то слева, то справа; они вторгаются в горизонтали межэтажных перекрытий и приобретают ампирный бежевый цвет, который служит основой для колористической переклички с историческим городом.
ЖК на ул. Прилукская
ЖК на ул. Прилукская
© Архитектурная мастерская А.А. Столярчука

Тот же цвет мягкой охры подхватывают ящики для кондиционеров перед окнами в паузах между эркерами и П-образные козырьки над входами в подъезды. Основной цвет дома – светло-серый, почти белый, а желтые вкрапления образуют декор – и получается, его фасады «переворачивают» логику стен старого Петербурга, того же псевдоампирного дома: там фон желтый, детали белые, а здесь наоборот, – своего рода инверсия. Фасады планируется оштукатурить, что также сроднит их с окружением.
ЖК на ул. Прилукская
ЖК на ул. Прилукская
© Архитектурная мастерская А.А. Столярчука
ЖК на ул. Прилукская
ЖК на ул. Прилукская
© Архитектурная мастерская А.А. Столярчука
ЖК на ул. Прилукская
ЖК на ул. Прилукская
© Архитектурная мастерская А.А. Столярчука

Несложно заметить, что тонкий и «пластинчатый», светло-гризайльный дом перекликается с другими проектами Анатолия Столярчука – домами на улице Эсперова и на улице Красного Курсанта, – всех их в той или иной степени можно назвать представителями «средового» контекстуального модернизма, деликатной авторской архитектуры, геометрически вписанной в контекст. Заметим, что дом, достаточно высокий, делает все для того, чтобы не только откликнуться на соседнюю застройку, но и «раствориться», уменьшить свой объем и свое влияние – к примеру, с помощью серых пиксельных штрихов на торцах. Между тем здесь, за Лиговским проспектом на границе масштабных промзон 10-этажная высота даже для Петербурга, пожалуй, выглядит непротиворечивой.
 
ЖК на ул. Прилукская. Фасады
ЖК на ул. Прилукская. Фасады
© Архитектурная мастерская А.А. Столярчука
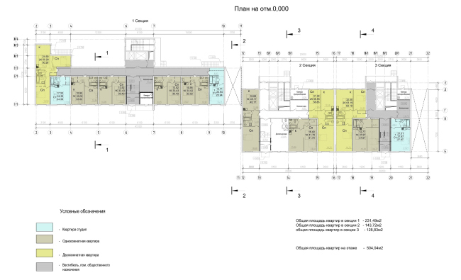
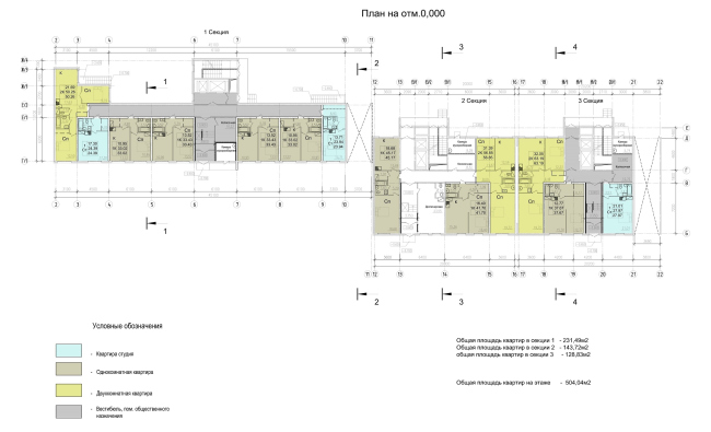
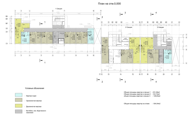
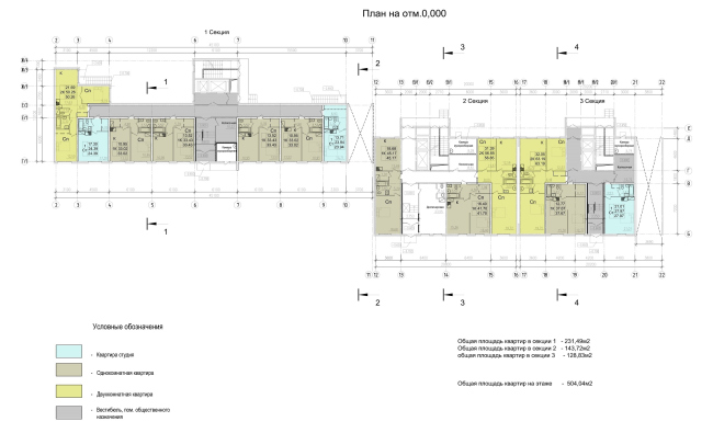
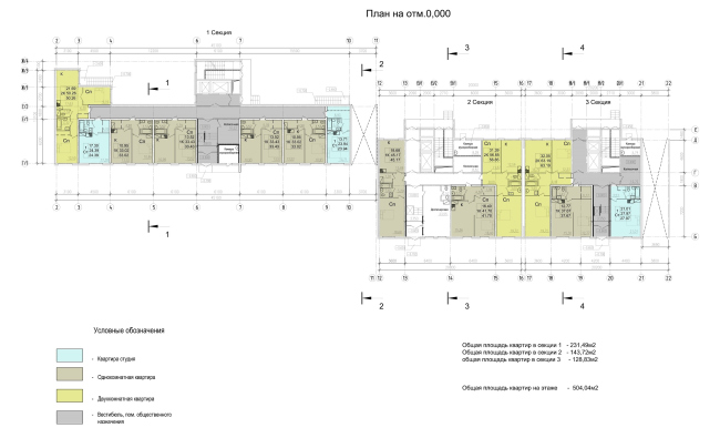
ЖК на ул. Прилукская. План на отм. 0.000
ЖК на ул. Прилукская. План на отм. 0.000
© Архитектурная мастерская А.А. Столярчука
ЖК на ул. Прилукская. План на отм. +3.000
ЖК на ул. Прилукская. План на отм. +3.000
© Архитектурная мастерская А.А. Столярчука
ЖК на ул. Прилукская. План типового этажа
ЖК на ул. Прилукская. План типового этажа
© Архитектурная мастерская А.А. Столярчука
ЖК на ул. Прилукская. План на отм. -5.300
ЖК на ул. Прилукская. План на отм. -5.300
© Архитектурная мастерская А.А. Столярчука
ЖК на ул. Прилукская. Разрезы
ЖК на ул. Прилукская. Разрезы
© Архитектурная мастерская А.А. Столярчука