Размещено на портале Архи.ру (www.archi.ru)

29.01.2019

Павел Андреев: «Дом на Б.Никитской, 17 – исторический, подлинный»

Юлия Тарабарина
Объект:
Гринхаус. Реконструкция здания на Большой Никитской, 17 строение 1
Адрес:
Россия, Москва. Большая Никитская 17 стр.1
Авторский коллектив:
Павел Андреев совместно с арх: А. Беланом, инж. Г.Марова.

Беседуем с автором реконструкции 1992-1995, рассказываем, что именно реконструировано, и публикуем чертежи, доказывающие, что историческое ядро дома сохранено внутри и снаружи.

Дом Булошникова, Большая Никитская, 17 стр.1.  Фотография:  Фонд сохранения исторического наследия
Дом Булошникова, Большая Никитская, 17 стр.1.
Фотография: Фонд сохранения исторического наследия

Вероятность сноса так называемого «доходного дома Булошникова» на Большой Никитской, 17 корпус 1, вкупе с возможностью строительства там жилого дома высотой до 9 этажей, стала одним из самых шумных московских скандалов начала текущего года. Параллельно возник вопрос: подлинный ли дом, который защищают общественники? Или его полностью построили заново в 1990-е? Мы встретились с автором реконструкции, архитектором Павлом Андреевым, и расспросили его о проекте. Спойлер – дом сохранили, хотя и достроили со двора. Так что он настоящий.
Павел Андреев, архитектор
В 1995 году, когда вы работали над реконструкцией дома 17к1 по Большой Никитской, в чем заключалась работа? Была это реставрация, реконструкция или дом полностью сломали и построили заново?

Дом был целиком сохранен, и капитальные конструкции, и декор фасадов. Мы провели длительное обследование – насколько помню, начали работать с ним в 1992 году. Дом был достаточно сильно поврежден, испорчен протечками, заражен грибком, в подвале было очень сыро, вероятно, из-за прорывов коммуникаций. Мы углубили подвал примерно на метр и укрепили его, вылечили стены от грибка. Одновременно на Большой Никитской строился коллектор, и подземные работы оказались достаточно сложными, прежде всего из-за решения сохранить капитальные конструкции. Довольно долгим был период инъектирования стен, пенетрации и так далее. Стены всех трех этажей, как наружные несущие, так и внутренние поперечные и весь объем остался подлинным, что хорошо видно на планах стадии РД.

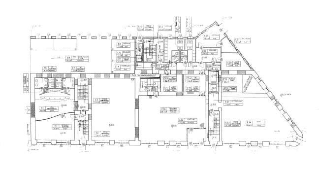
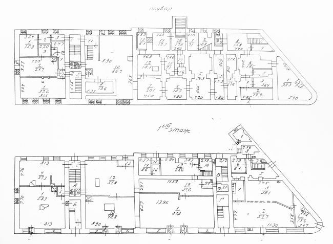
обмеры до реконструкции: 
Обмер до реконструкции, подвальный и 1 этажи. Дом по Большой Никитской, 17к1. Архитектурная мастерская АБВ, Павел Андреев
Обмер до реконструкции, подвальный и 1 этажи. Дом по Большой Никитской, 17к1. Архитектурная мастерская АБВ, Павел Андреев
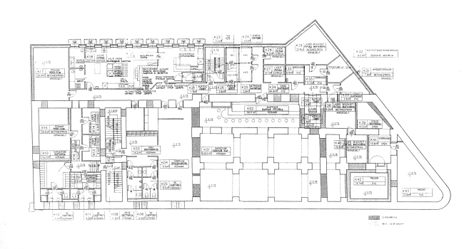
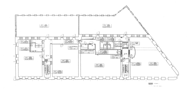
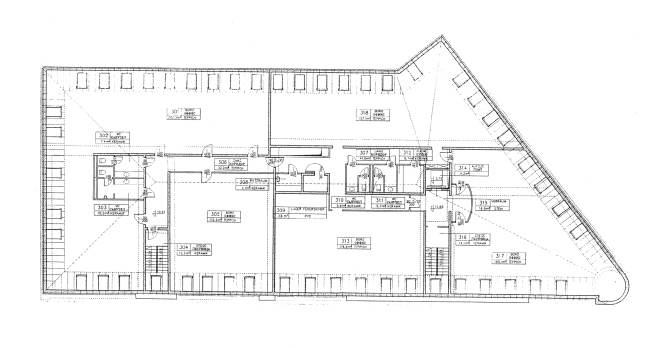
Обмер до реконструкции, 2 
 и 3 этажи. Дом по Большой Никитской, 17к1. Архитектурная мастерская АБВ, Павел Андреев
Обмер до реконструкции, 2 и 3 этажи. Дом по Большой Никитской, 17к1. Архитектурная мастерская АБВ, Павел Андреев


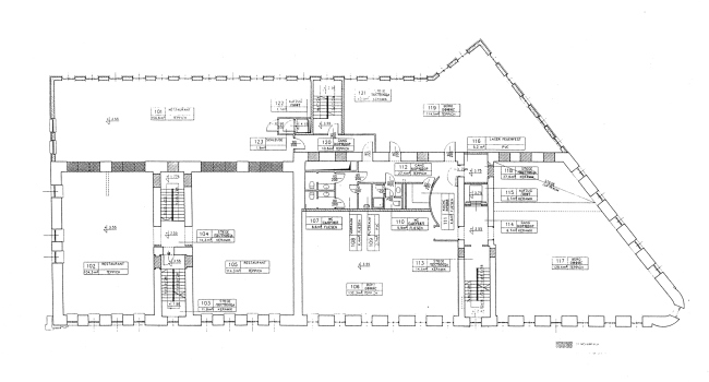
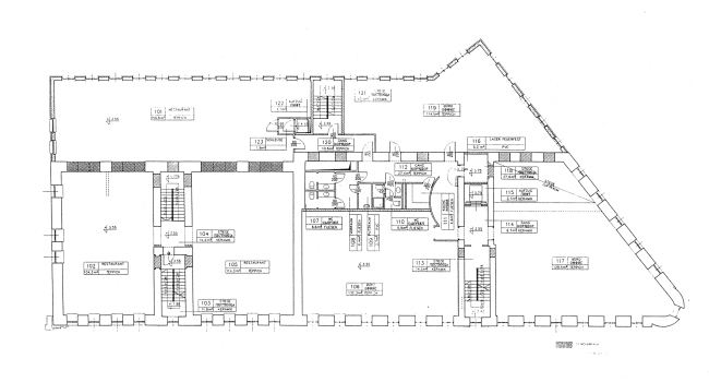
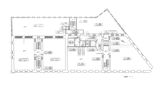
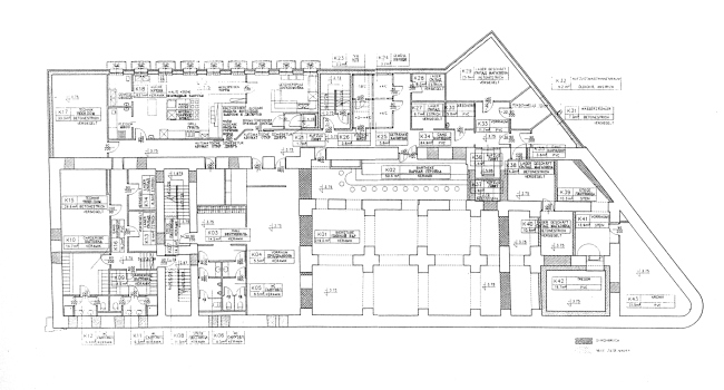
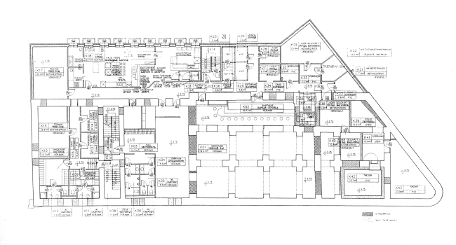
проектная документация: 
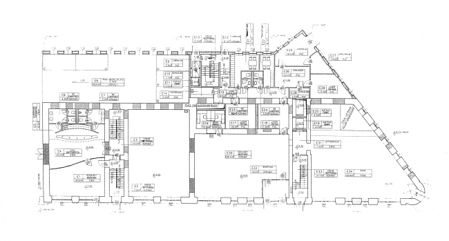
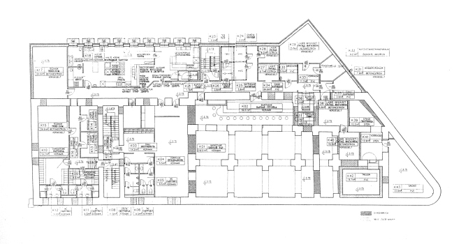
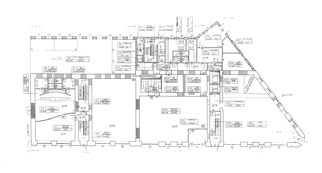
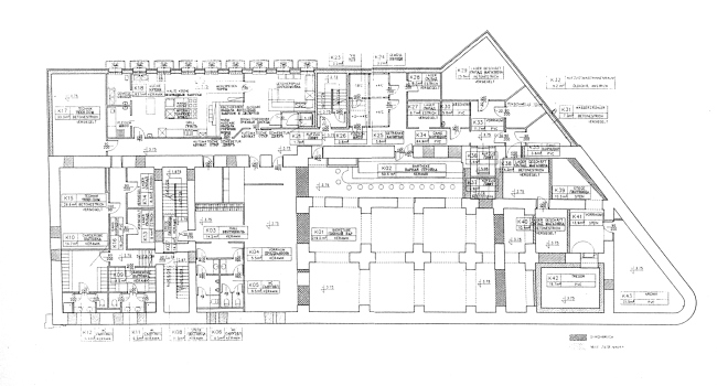
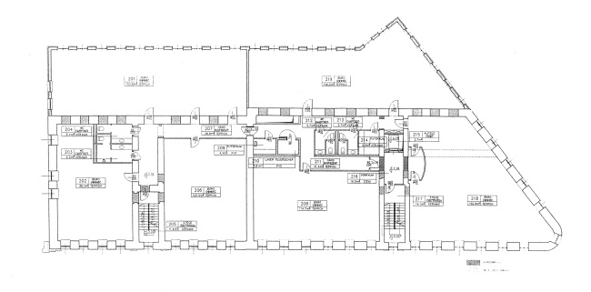
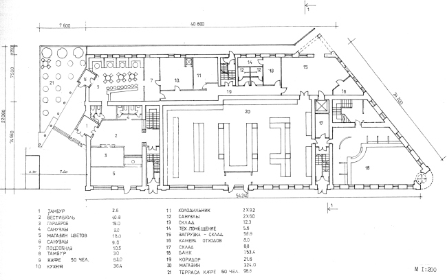
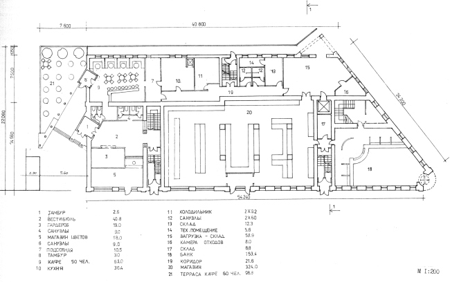
План подвала. Проект. Гринхаус. Реконструкция дома по Большой Никитской, 17к1. Архитектурная мастерская АБВ, Павел Андреев
План подвала. Проект. Гринхаус. Реконструкция дома по Большой Никитской, 17к1. Архитектурная мастерская АБВ, Павел Андреев
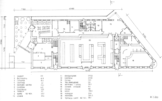
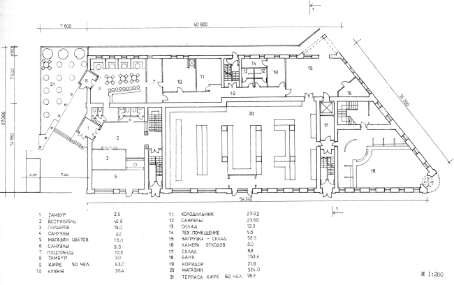
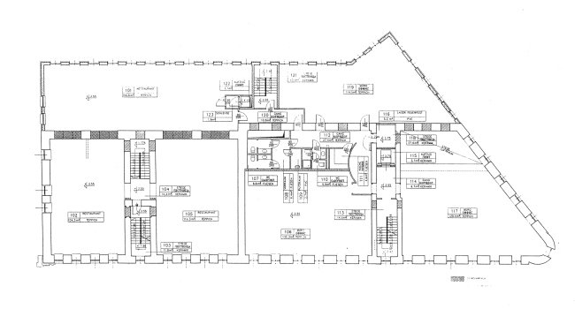
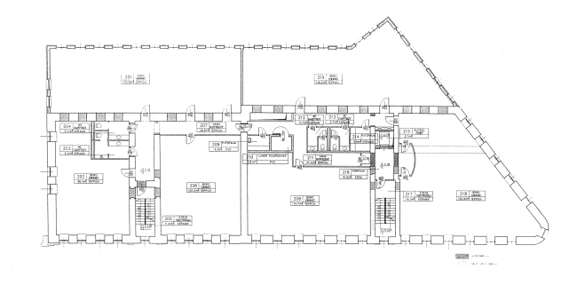
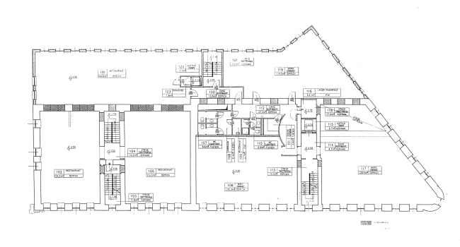
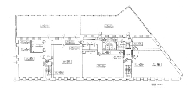
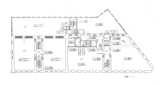
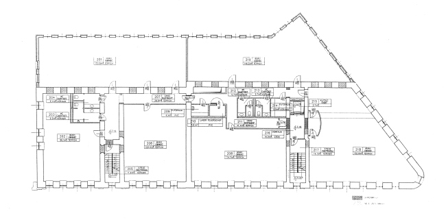
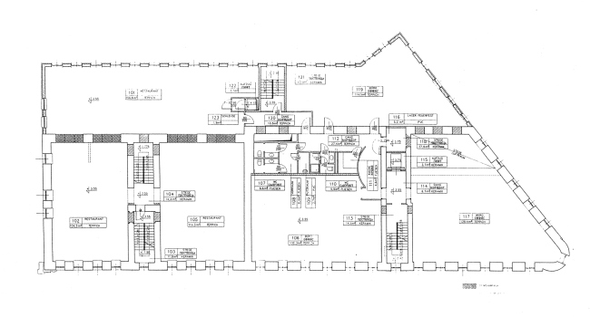
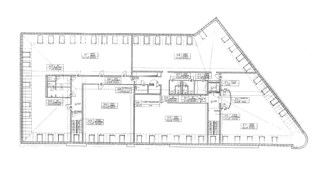
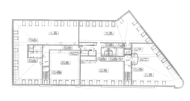
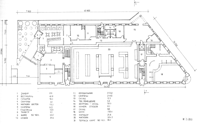
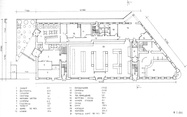
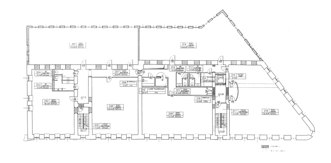
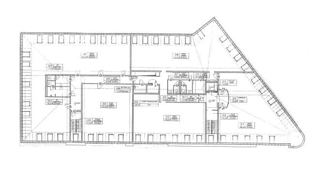
План 1 этажа. Проект. Гринхаус. Реконструкция дома по Большой Никитской, 17к1. Архитектурная мастерская АБВ, Павел Андреев
План 1 этажа. Проект. Гринхаус. Реконструкция дома по Большой Никитской, 17к1. Архитектурная мастерская АБВ, Павел Андреев
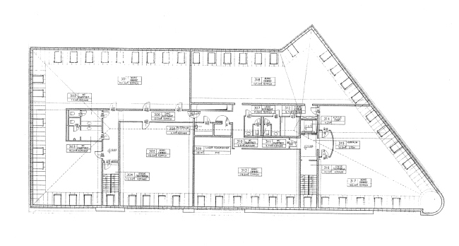
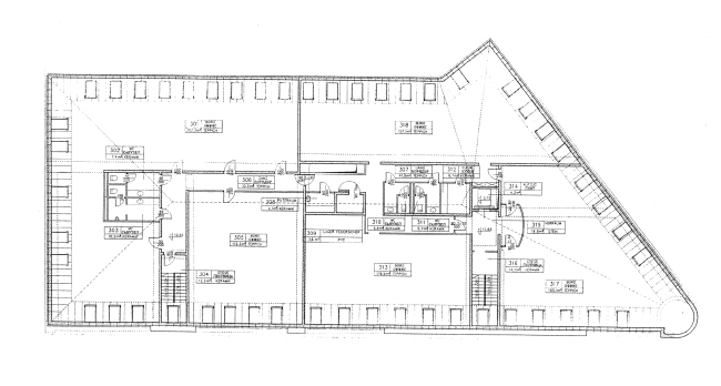
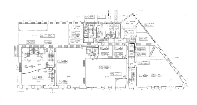
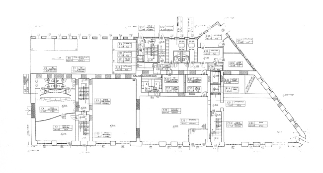
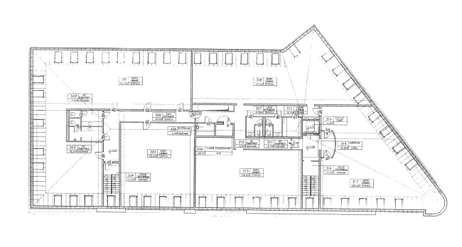
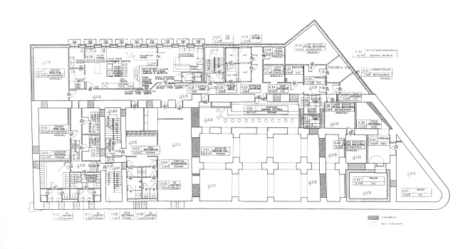
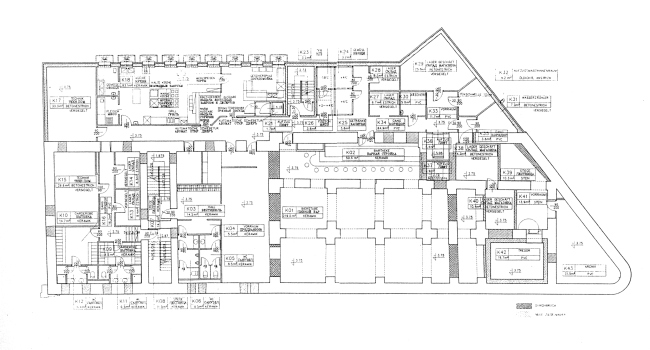
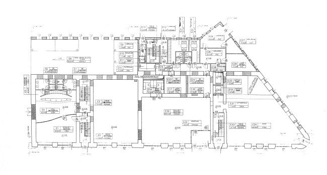
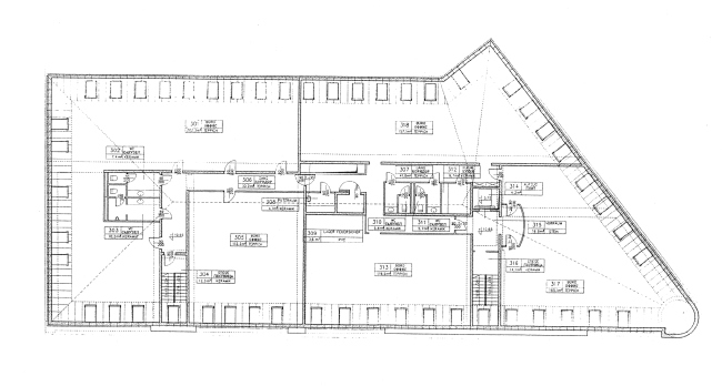
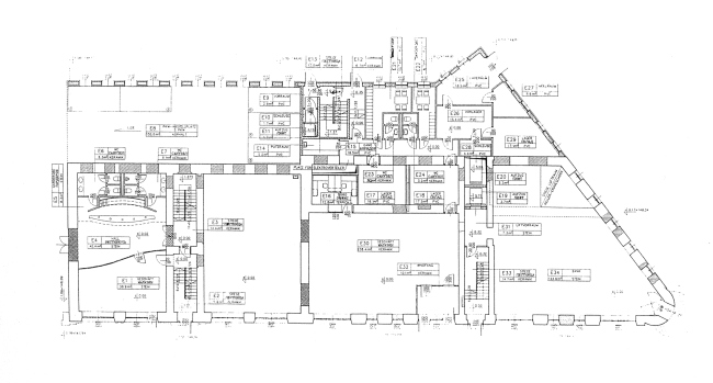
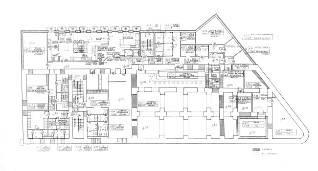
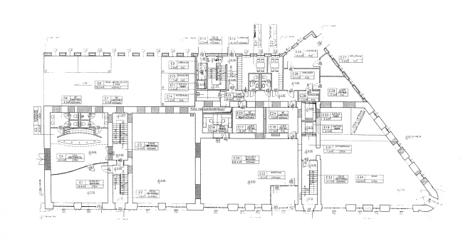
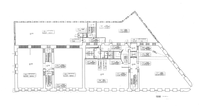
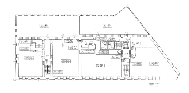
План 2 этажа. Проект. Гринхаус. Реконструкция дома по Большой Никитской, 17к1. Архитектурная мастерская АБВ, Павел Андреев
План 2 этажа. Проект. Гринхаус. Реконструкция дома по Большой Никитской, 17к1. Архитектурная мастерская АБВ, Павел Андреев
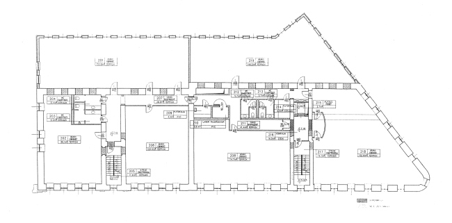
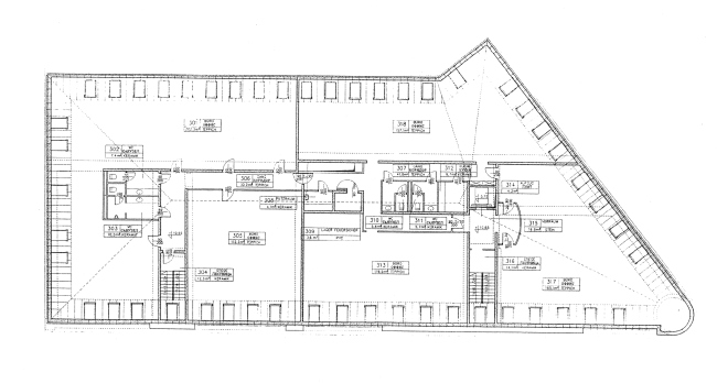
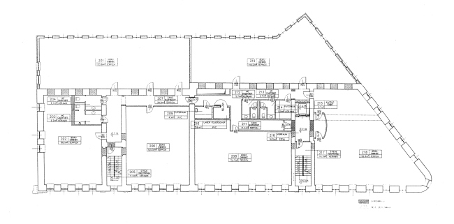
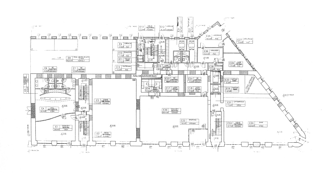
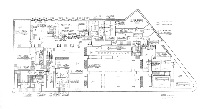
Проект. План 3 этажа. Гринхаус. Реконструкция дома по Большой Никитской, 17к1. Архитектурная мастерская АБВ, Павел Андреев
Проект. План 3 этажа. Гринхаус. Реконструкция дома по Большой Никитской, 17к1. Архитектурная мастерская АБВ, Павел Андреев

В подвале заметны шесть сводчатых ячеек…

Мы вычистили своды, отпескоструили и открыли их кирпич. С учетом понижения пола подвала высота внутреннего пространства стала около 2,5 м. Там некоторое время работал пивной ресторан – один из инвесторов был австрийцем, что и определило специфику. Заказчик купил где-то много фотографий старой Москвы, развесил их там, получилось довольно атмосферно.
Поперечный разрез. Гринхаус. Реконструкция дома по Большой Никитской, 17к1. Архитектурная мастерская АБВ, Павел Андреев
Поперечный разрез. Гринхаус. Реконструкция дома по Большой Никитской, 17к1. Архитектурная мастерская АБВ, Павел Андреев

Что вы добавили при реконструкции?

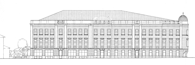
В эскизном проекте было три варианта, в одном планировалась протяженная пристройка в глубину Малого Кисловского переулка. В конечном счете был выбран вариант с продольной пристройкой, которая сделала объем здания более «толстым», но позволила поднять высоту конька кровли, не меняя традиционный угол ее наклона. Там мы разместили вентиляционное оборудование, полностью скрыв его под кровлей. Чердак холодный, забор воздуха происходит через слуховые окна, забранные решетками. Удивительно, что сейчас многие архитекторы оформляют технический этаж в виде коробок, когда его можно вот таким образом спрятать.

Со стороны улицы карниз проходит над небольшим аттиковым выступом, со стороны двора поднят чуть выше, и в центральной части, под чердаком образовался достаточно просторный аттиковый этаж.
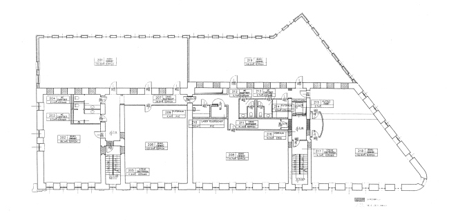
Мансардный этаж. Проект. Гринхаус. Реконструкция дома по Большой Никитской, 17к1. Архитектурная мастерская АБВ, Павел Андреев
Мансардный этаж. Проект. Гринхаус. Реконструкция дома по Большой Никитской, 17к1. Архитектурная мастерская АБВ, Павел Андреев

Кто предложил купол на углу?

Я предложил. Там был скругленный угол без двери, мы устроили в углу вход, за которым внутри расположился вестибюль банка. Вход потребовал акцента, им стал купол. Должен сказать, он появился в последних вариантах, поначалу этой идеи не было.
Купол. Проект. Гринхаус. Реконструкция дома по Большой Никитской, 17к1. Архитектурная мастерская АБВ, Павел Андреев
Купол. Проект. Гринхаус. Реконструкция дома по Большой Никитской, 17к1. Архитектурная мастерская АБВ, Павел Андреев
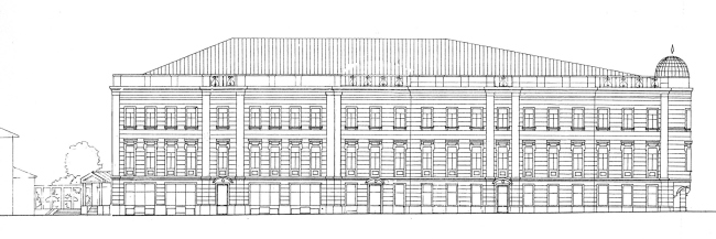
Боковой фасад. Проект. Гринхаус. Реконструкция дома по Большой Никитской, 17к1. Архитектурная мастерская АБВ, Павел Андреев
Боковой фасад. Проект. Гринхаус. Реконструкция дома по Большой Никитской, 17к1. Архитектурная мастерская АБВ, Павел Андреев
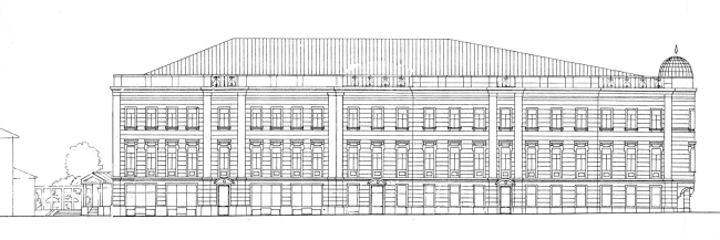
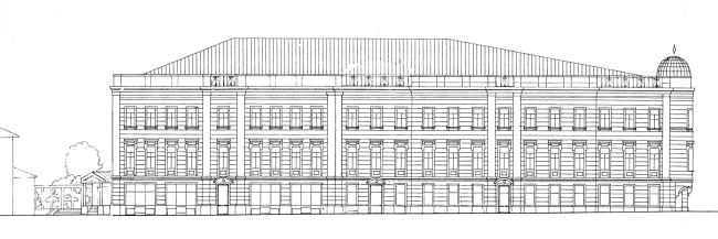
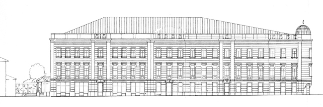
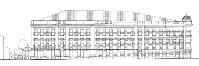
Фасад по ул. Б. Никитская (бывш. Герцена). Гринхаус. Реконструкция дома по Большой Никитской, 17к1. Архитектурная мастерская АБВ, Павел Андреев
Фасад по ул. Б. Никитская (бывш. Герцена). Гринхаус. Реконструкция дома по Большой Никитской, 17к1. Архитектурная мастерская АБВ, Павел Андреев

Насколько подлинный декор фасадов?

Подлинного очень много, мы обмерили все детали и докомпоновали разрушенные места – причем, заметьте, штукатуркой, а не пенополистиролом. Думаю, нашу работу с фасадом вполне можно определить как реставрацию, что и записано в альбоме. Цвет фасадов мы подобрали к названию – Грин хаус, причем он не слишком-то соответствовал цветовой концепции, которую в то время разрабатывали для Москвы.

Тогда, в 1992-1995, дом стоял на охране?

Нет, не стоял.

Решение сохранить дом со всеми капитальными конструкциями как ценную часть среды было принято коллегиально экспертами Управления охраны памятников, которым руководил Владимир Ильич Соколовский. В обсуждении принимал участие такой видный эксперт как Виктор Иванович Шередега, также как и Алексей Михайлович Куренной, Владимир Иосифович Чернышенко. Тогда все решалось на уровне людей, заинтересованных в охране наследия: в процессе обсуждения вырабатывались принципы охраны, которые становились основой для ТЗ и затем, будучи облечены в форму проекта, рассматривались на совете при Управлении охраны памятников, после чего приобретали форму официальных согласований.

В том-то и дело, что когда профессионально грамотные люди рассматривают какой-то вопрос, они могут рассматривать неклассифицированные вещи, в частности, не имеющие определенного статуса памятника, определять принцип дозволенного в работе с ними. В то время памятников было меньше, чем сегодня, сегодня их около четырех тысяч.

Если вы меня спросите, что важнее, памятник или среда, я однозначно отвечу что важнее среда. Можно все снести, а оставить несколько памятников – и потерять город начисто, хотя в нем будет несколько безумно красивых вещей. Такой город – Самарканд, там есть несколько отдельных достопримечательностей, но города нет. А в Бухаре и Хиве есть среда. И если потерять в Москве среду, то отдельные памятники можно будет смотреть как, скажем чернильницу на зеленом сукне на столе В.И. Ленина, как вещь, которую можно переставить в любое место.

Памятник можно, переместить в любое место и лишить окружения, но его ценность будет потеряна – лично для меня – на 99 процентов. Атмосфера уйдет. Объекты, в которыми мы работали на протяжении 20 лет, как раз и составляли то, что называется Москвой – контекст, подтекст, называйте как хотите. Потому что отдельные объекты – даже если среди них есть шедевры – город не создадут.

Кто был заказчиком реконструкции 1992-1995?

Валерий Федорович Баранов, директор фирмы Гринхаус, которая владела овощным магазином в этом доме. Реконструкция делалась под супермаркет, кулинарию и ресторан, там был достаточно большой торговый зал – витрины, расположенные ближе к центру, занимал магазин. Отсюда название – «Зеленый дом». Позже банк, расположенный на углу, вытеснил магазин.

Должен сказать, это еще один важный аспект – сохранение не только здания, но и привычной, реперной, в чем-то культовой, если хотите, функции – ориентира в контексте города. Овощной магазин был достаточно известным в Москве, теперь его нет. В конце улицы Герцена был известный магазин Рыба – на этом месте будет гостиница Bulgari; или был не менее известный магазин Сладости на Никитских воротах, теперь на его месте Villroy&Boch… Есть, конечно, вещи, которые можно менять в городе, но вот подумайте: если в Париже убрать с площади Мадлен кондитерскую Fauchon – Париж уже будет не тот.

Как вы считаете, можно ли сейчас переделать дом под жилье? 

Он ведь строился как жилой – доходный дом. Вначале был двухэтажным, затем, еще в конце XIX века, настроили третий этаж. Приспособить его, разумеется, можно – мы же сейчас говорим о сохранении внешности ради сохранения среды, а не о функции. Может быть, можно было бы надстроить один-два этажа с отступом в глубину... Но, думаю, не более того.
 
беседовала: Юлия Тарабарина
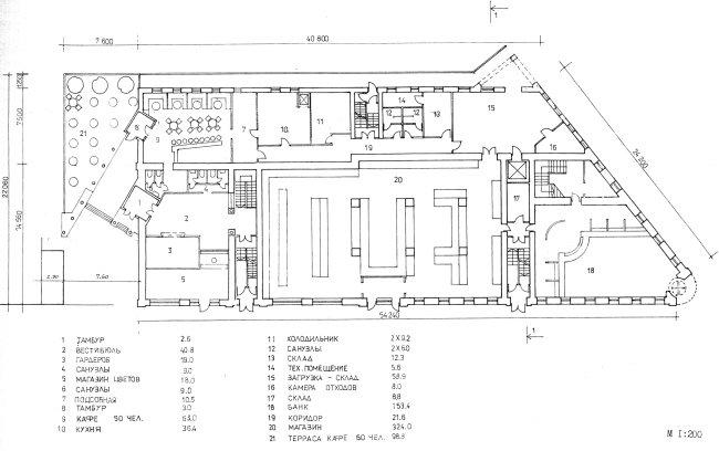
Эскизное предложение, подвальный этаж; обсуждение варианта с подземной парковкой. Гринхаус. Реконструкция дома по Большой Никитской, 17к1. Архитектурная мастерская АБВ, Павел Андреев
Эскизное предложение, подвальный этаж; обсуждение варианта с подземной парковкой. Гринхаус. Реконструкция дома по Большой Никитской, 17к1. Архитектурная мастерская АБВ, Павел Андреев
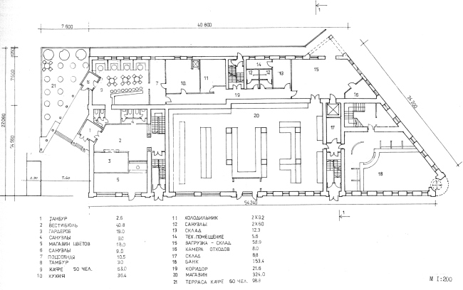
Эскизное предложение, план 1 этажа. Гринхаус. Реконструкция дома по Большой Никитской, 17к1. Архитектурная мастерская АБВ, Павел Андреев
Эскизное предложение, план 1 этажа. Гринхаус. Реконструкция дома по Большой Никитской, 17к1. Архитектурная мастерская АБВ, Павел Андреев
Эскизное предложение, разрез. Гринхаус. Реконструкция дома по Большой Никитской, 17к1. Архитектурная мастерская АБВ, Павел Андреев
Эскизное предложение, разрез. Гринхаус. Реконструкция дома по Большой Никитской, 17к1. Архитектурная мастерская АБВ, Павел Андреев